
The department store for the furniture tradesman Franz Klein was built on the original narrow and deep Gothic plot in 1911, after the demolition of a residential building with a commercial ground floor space. The author of the design was architect Christoph Glaser, who was inspired by the Gerngross/Herzmansky department store in Vienna. In 1911, it was a structurally, operationally, and spatially progressive building, one of the first implementations of a monolithic reinforced concrete frame not only in Olomouc but also in the whole of Austria-Hungary. After war damage, the original all-glass Art Nouveau facade was purified in the spirit of late functionalism in 1946 and provided with ceramic cladding according to the design of architect Jaroslav Česal. In contrast to these changes, the sculptural “sacral” central space of the atrium with sales galleries and roof lighting was preserved. During the communist regime and the 1990s, the house served its original purpose. However, for thermal insulation reasons, mineral wool was laid on the glazing horizontal steel structure on the third floor – thereby denying upper natural lighting.
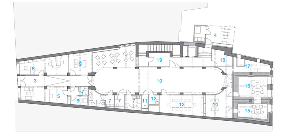
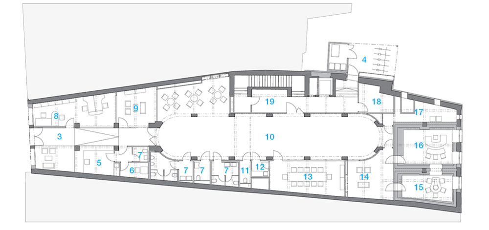
The building had to be adapted to the new operation of the Czech Radio and also to current static, fire, thermal-technical and sanitary standards. During the design process, we tried hard to preserve the visible supporting structure of the house and not to destroy the integrity and sculptural quality of the central space. All installations are guided visibly, are co-ordinated and form an artistic technological dialogue with the original supporting structure without suppressing it. Technologies are a colourful layer in a strictly monochrome space. The space of the galleries has been divided to the maximum extent possible by glass walls so that it continues to flow freely and interact with the central space of the atrium. The shape and proportions of the broadcast studios, control room, and self-service studios arose from the possibility of building into the existing skeleton structure. The design and materiality of the studios are subordinated to the needs of spatial acoustics, white colour prevails as in the entire building, with a band of blue night sky – aether through which radio waves spread.
In the beginning, we worked with the option of removing the rear part of the building behind the atrium and building a new part for the recording hall with a pentagonal direction on the ground floor; on the floors then, to place studios with control rooms in ideal proportions and shapes for spatial acoustics, with constructions that ideally solve building acoustics. However, this option was abandoned for financial reasons. In the course of construction-technical surveys, design work and during the actual implementation, it was fascinating to discover how high the technical, aesthetic and craftsmanship of our ancestors were. And how much freer their actions were more than a hundred years ago, freed from the many regulations of today. With the purchase of the building of the former department store by Czech Radio and its conversion, the building gained a new dignified function and a chance for a second life. An “empty place” with dying energy in the historical core of Olomouc has been replaced by a new symbolic object.

가구상이었던 프라츠 클라인(Franz Klein)을 위해 1911년에 지어진 1층에 상업 공간이 있던 백화점은 좁고 깊은 대지 위에 고딕 양식으로 지어졌다. 설계자는 비엔나의 겐그로스/헤르츠만스키(Gerngross/Herzmansky) 백화점에서 영감을 받은 건축가 크리스토프 글레이저(Christoph Glaser)였다. 이 건물은 1911년에 울로모우츠뿐만 아니라 오스트리아와 헝가리 전역에서 처음 철근 콘크리트 구조로 지어진 구조적, 기능적, 공간적으로 가장 진보된 건물이었다. 전쟁이 끝난 후, 기존의 전면 유리였던 아르누보 파사드는 1946년 후기 기능주의 정신을 따르게 되었고, 건축가 야로슬라프 체살(Jaroslav Chesal)의 설계로 세라믹 외장재를 사용한 입면이 만들어졌다. 이러한 변화와 반대로, 상가 갤러리와 지붕 조명이 있는 아트리움의 조각적인 ‘천상’ 중심 공간은 보존되었다. 공산주의 체제부터 1990년대까지, 이 집은 본래의 역할을 다 했다. 그러나 단열의 이유로 3층의 유리 수평 철골 구조물에 광물 울을 깔아 자연광을 차단했었다.
새로운 기업인 체코 라디오와 현재의 전기, 화재, 단열 기술과 위생 기준에 맞춰 건물을 새롭게 단장해야 했다. 설계하면서 눈에 보이는 구조 형태를 보존하고, 중앙 공간의 조각적 품질과 완전한 상태를 파괴하지 않기 위해 많은 노력을 기울였다. 모든 설비는 눈에 띄게 드러내며, 조정하고, 원래의 구조를 숨기지 않는, 예술적인 기술의 대화를 한다. 기술은 완전한 단색의 공간에 있는 다채로운 층이다. 갤러리 공간은 유리 벽으로 최대한 분할되어 자유롭게 흐르며, 아트리움의 중심 공간과 상호작용한다. 방송 스튜디오, 제어실, 셀프서비스 스튜디오의 형태와 비율은 기존 골격 구조에서 비롯되었다. 스튜디오의 디자인과 유형은 공간 음향을 위해 계획되었다. 건물 전체적으로 하얀색을 사용했고, 푸른 밤하늘 색의 띠는 라디오 전파가 퍼지게 하는 에테르를 보여준다.
처음에는 아트리움 뒤의 건물 뒷부분을 제거하고 지상층에 오각형의 방향을 가진 녹음실을 위해 새롭게 건물을 지으려 했다. 그다음에, 그 층에 건축물의 음향을 이상적으로 해결할 수 있는 구조와 함께 최적의 공간 음향을 만들어낼 수 있는 비율과 스튜디오를 배치하고자 했다. 하지만 재정적인 이유로 실현되지는 못했다. 시공과 기술조사, 설계와 실제 시행 과정에서 조상의 기술, 미학, 장인정신이 얼마나 높았는지 알게 돼 신기했다. 그리고 100년 전에는 오늘날의 많은 규제에서 벗어나, 얼마나 더 자유로웠는지 알 수 있었다. 체코 라디오가 옛 백화점 건물을 사들이고, 고치면서 건물은 새로운 품격 있는 기능과 제2의 삶의 기회를 잡게 되었다. 올로모우츠의 역사적 중심에서 죽어가던 ‘빈 곳’이 새로운 상징의 건물로 재탄생했다.



















Architect Atelier 38
Location Olomouc, Czech Republic
Program Office
Building area 642㎡
Gross floor area 2,270㎡
Building scope B1, 5F
Design period 2019 - 2020
Completion 2022
Principal architect Atelier 38
Electrical engineer Elektro projekce
Client Czech Radio
Photographer BoysPlayNice
해당 프로젝트는 건축문화 2022년 11월호(Vol. 498)에 게재되었습니다.
The project was published in the November, 2022 recent projects of the magazine(Vol. 498).
November 2022 : vol. 498
Contents : RECORDS Architecture Week held at Yongsan Park after tearing down the wall 벽을 허물고 돌아온 용산공원에서 열린 건축주간 : NEWS / COMPETITION / BOOKS : SKETCH A rural house painted with Passion Sangria / Sangwon Kim 열정적
anc.masilwide.com
'Architecture Project > Office' 카테고리의 다른 글
| Damon Studio (0) | 2023.03.17 |
|---|---|
| Antwerp City Hall (0) | 2023.03.02 |
| MASS C&G Office Building in Magok (0) | 2023.01.18 |
| THE WRITER’S CABIN (0) | 2022.12.21 |
| GYEONG-BUK PROVINCIALGOVERNMENT TOWN DGB OFFICE BUILDING (0) | 2022.11.10 |
마실와이드 | 등록번호 : 서울, 아03630 | 등록일자 : 2015년 03월 11일 | 마실와이드 | 발행ㆍ편집인 : 김명규 | 청소년보호책임자 : 최지희 | 발행소 : 서울시 마포구 월드컵로8길 45-8 1층 | 발행일자 : 매일



