
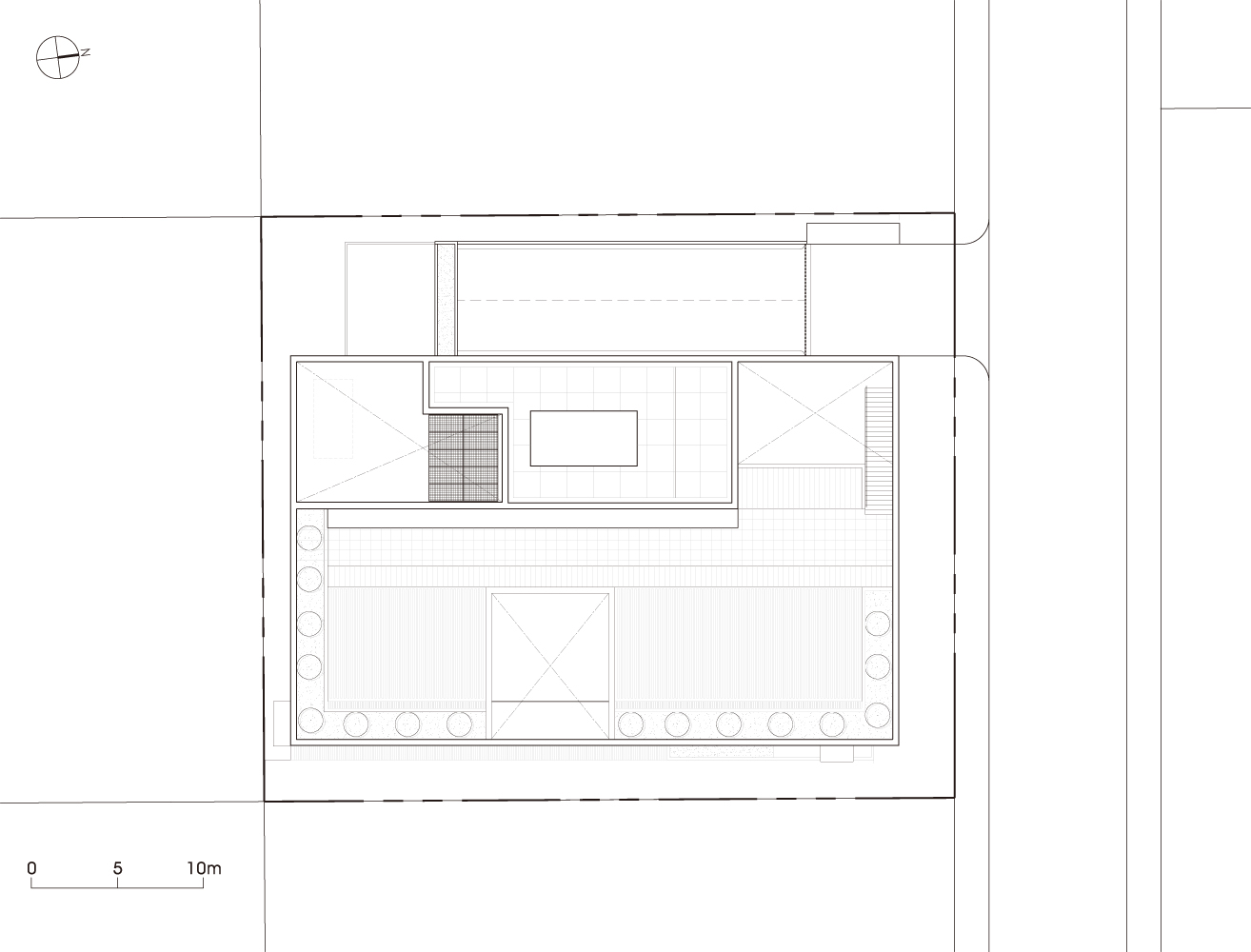
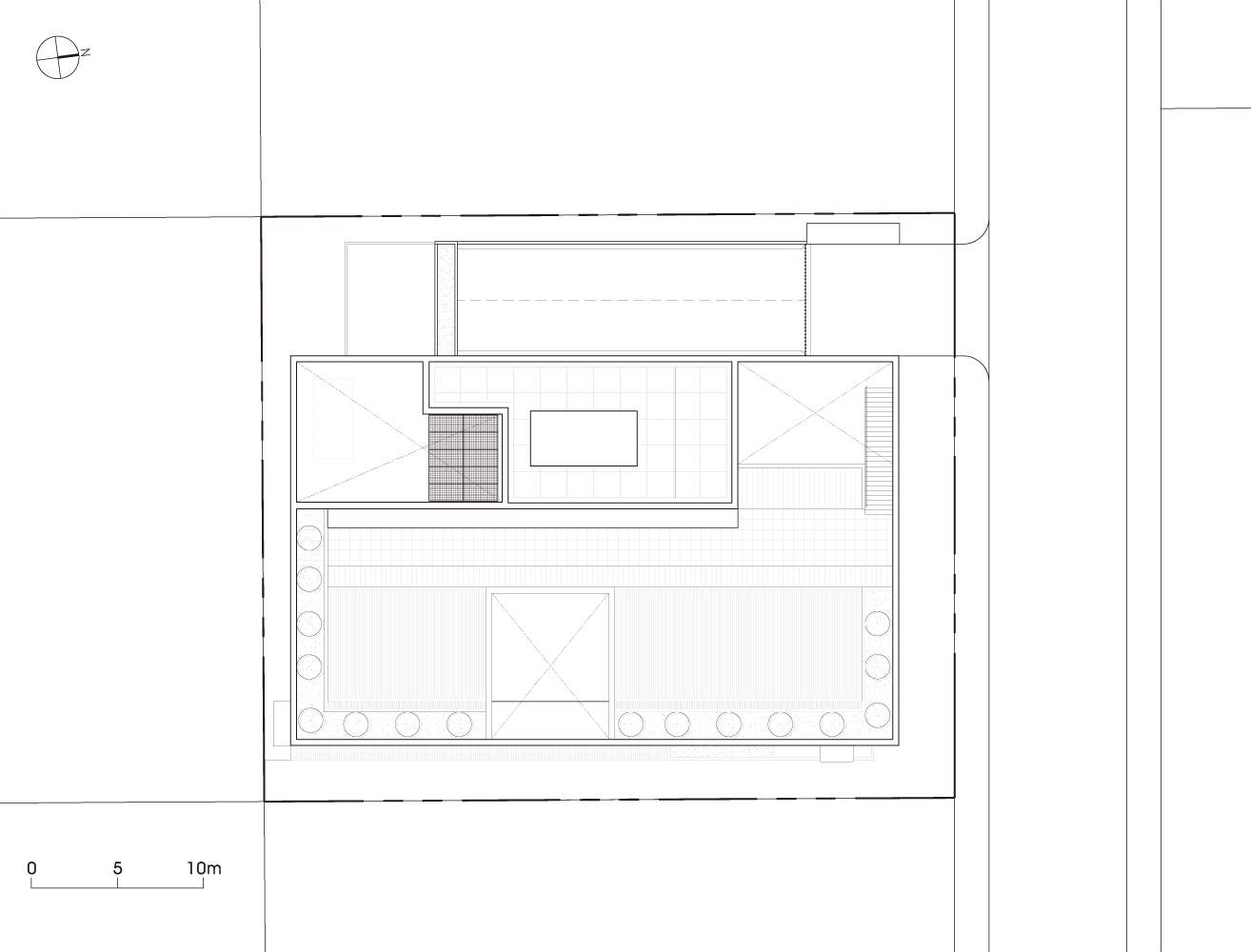
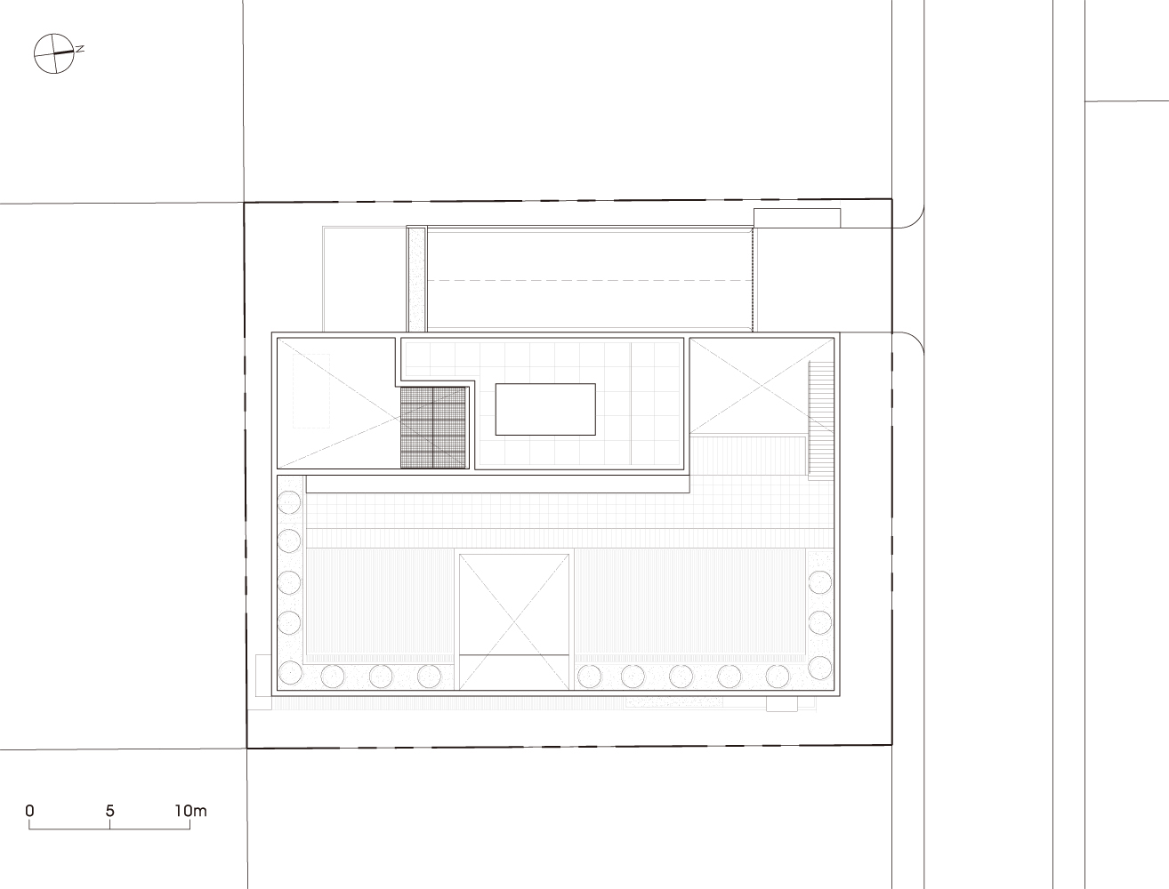
Corporate headquarters should actively promote corporate culture externally, and functionally fulfill the role of a space for research and work. In particular, it is an important architectural strategy for clients to recognize the brand image of MASS C&G, a design company, through the office building. The design was approached with this in mind. The site is located on a back road of the Magok district, and is adjacent to a pedestrian-friendly road formation section with a width of 2m on the left. This means that the minimum conditions are given to avoid the stuffiness of existing roadside buildings.
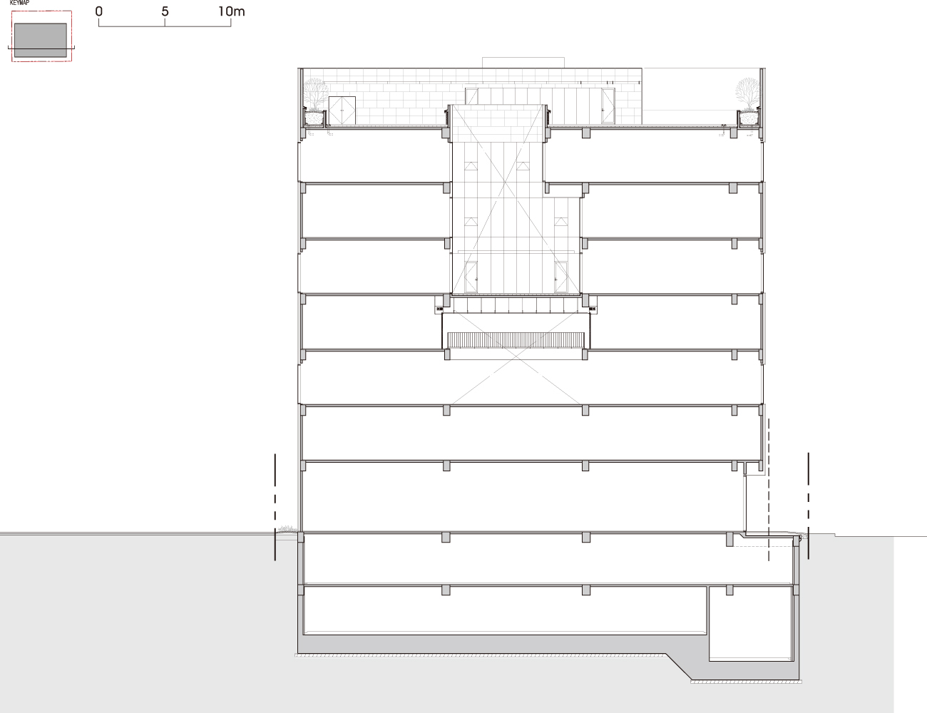
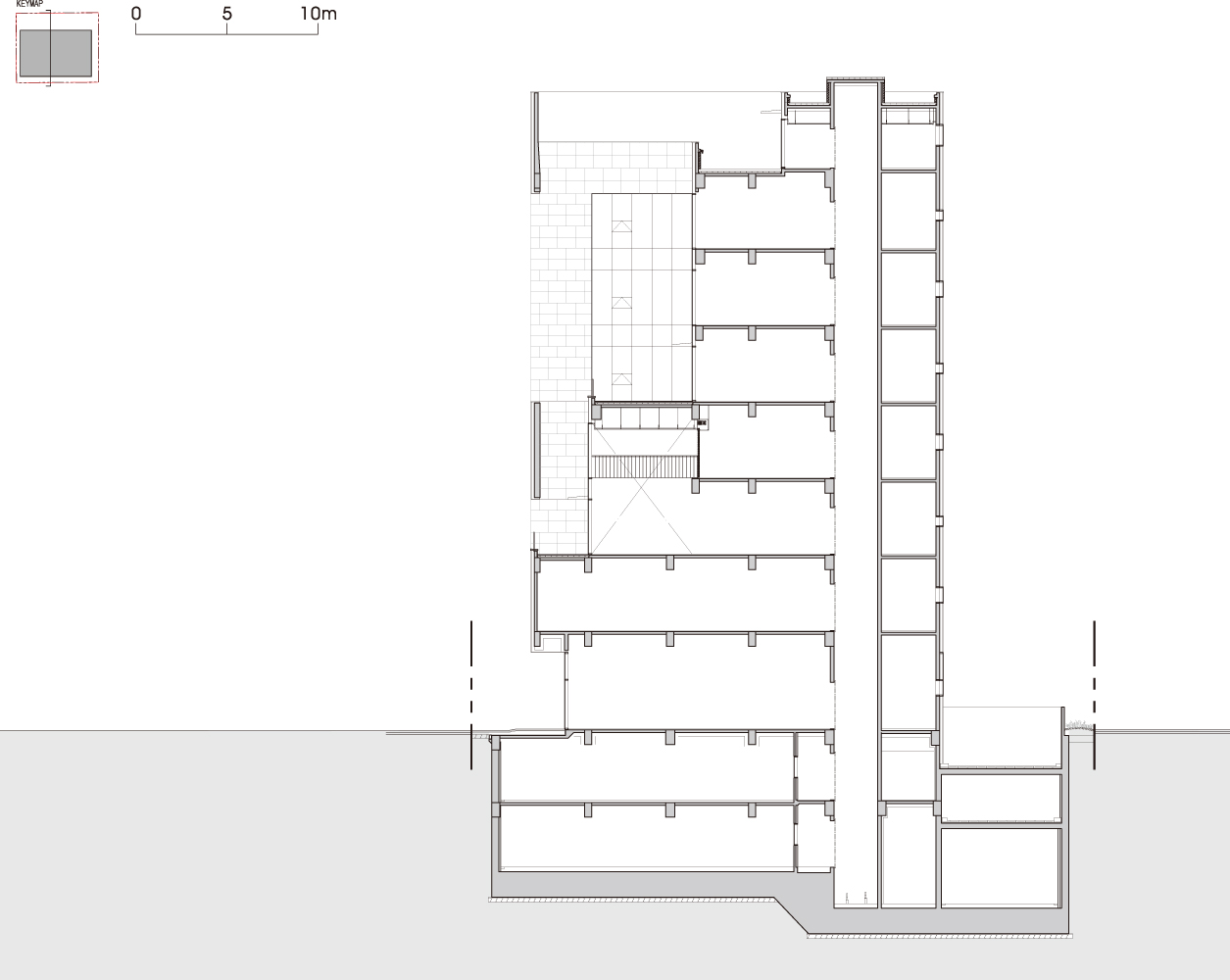
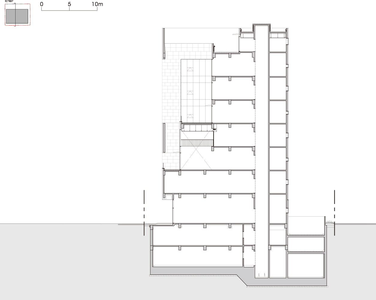
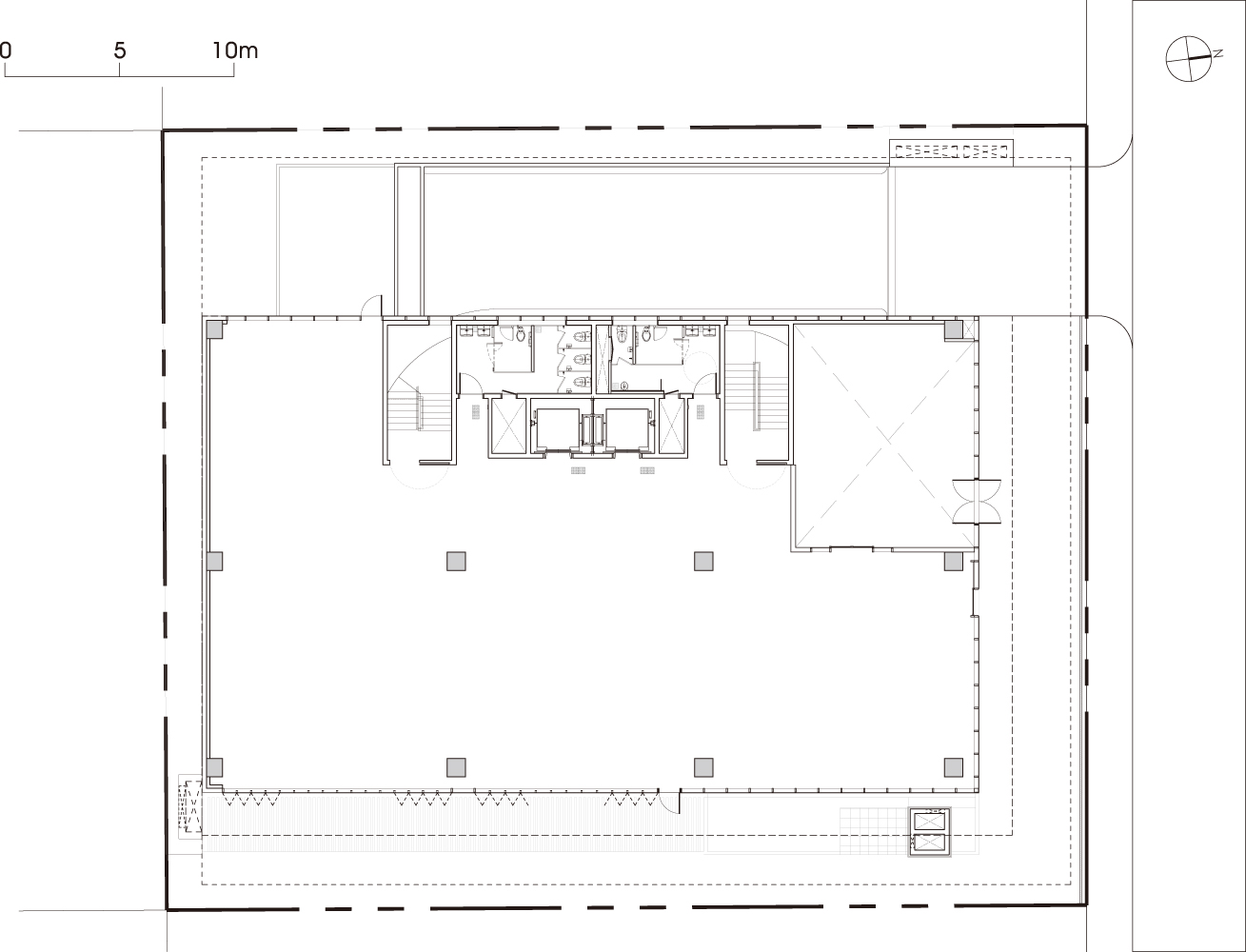
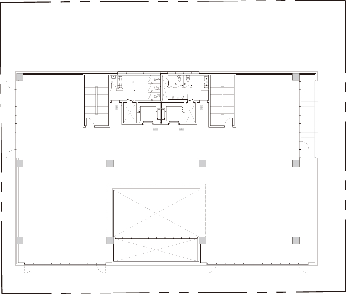
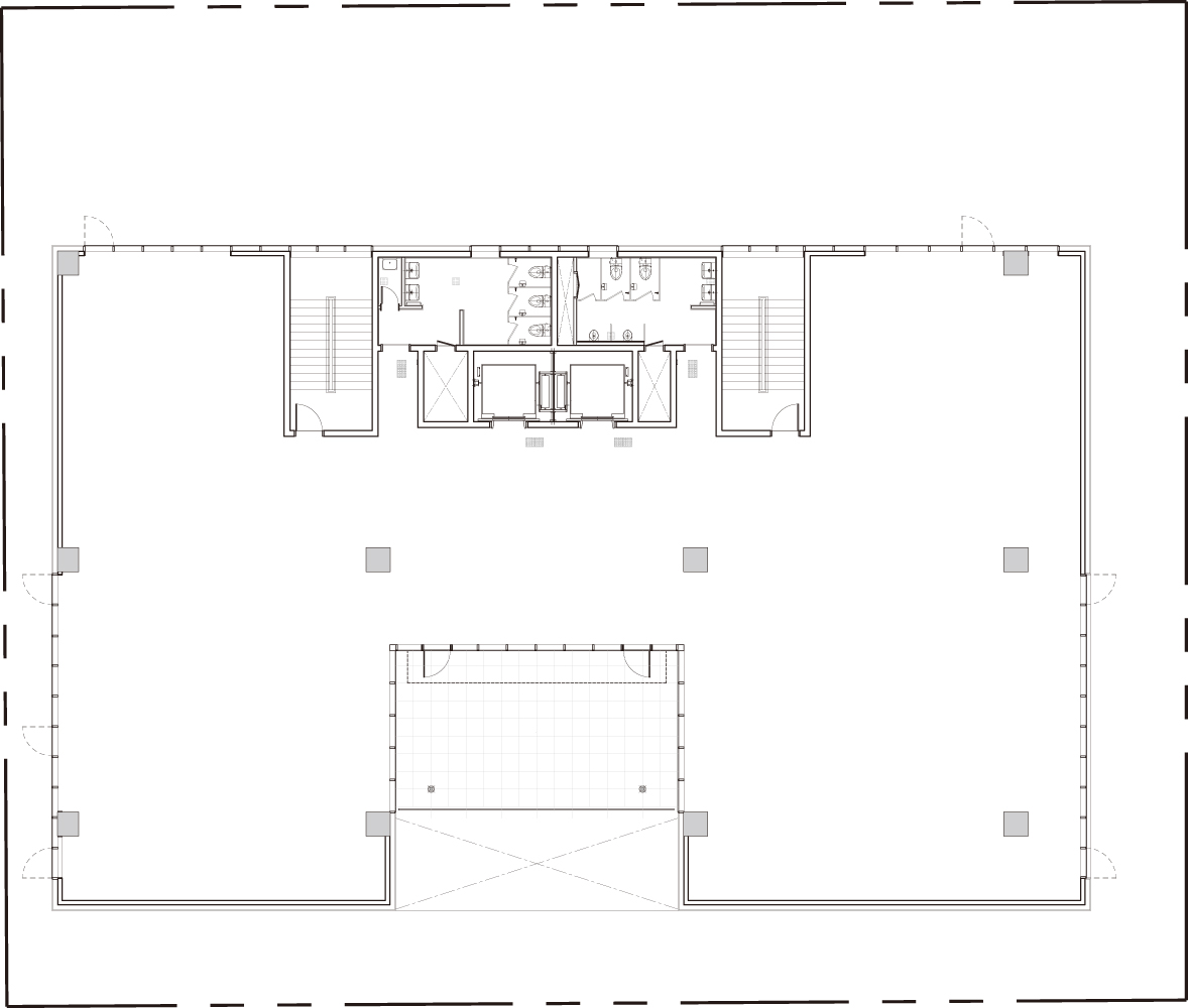
In order to make the building better perceived, the left side was pushed further back 2m, and the right side was also separated by 8.4m including the parking ramp to expose three sides. The form is MASSIVE with the motif of the company name, and this was intended to reveal a creative corporate image. The combination of the void balcony that makes the solid stand out is the main factor. This solid wall is used as a signboard or a space for corporate promotion, and it enhances the formativeness of the building as part of the night view. Taking advantage of the requirement that the effective floor area of one floor is not very large, a balcony facing the outside air and an open space inside are placed on each floor. A floor with a small area naturally maximizes these formative elements. In a way, it is also a strategic approach that differentiates it from other buildings that are light and mostly glass.
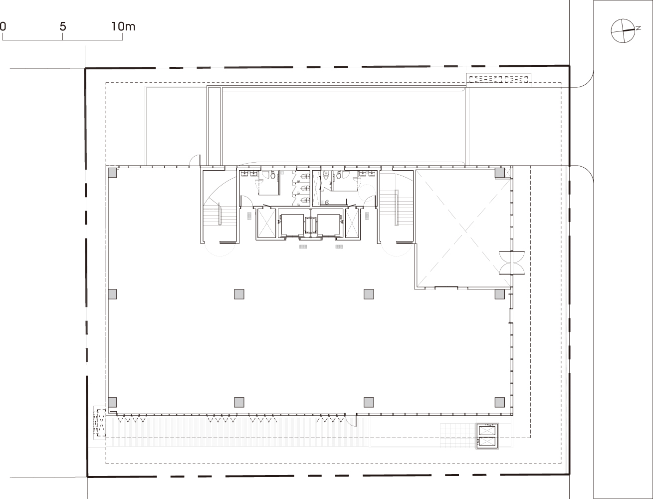
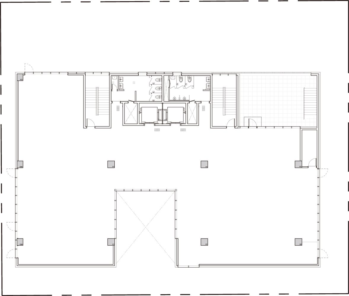
Recently, it is difficult for companies to disregard the environmental aspect. By securing a lounging space at an additional distance to the left, the atmosphere of the pedestrian path and the first floor was improved, and this emphasizes the company's eco-friendly image. It is also the reason why we retreated from the entrance on the first floor and opened the windbreak room. The building also actively accommodates environmental elements such as a yard, trees, and light on each floor. On the other hand, the flat surface maximizes efficiency by closely adhering to the core, and secures flexibility by minimizing the internal pillars. This is an architectural consideration that accommodates the growth and change of the company. Meanwhile, a comfortable working environment was provided by arranging living rooms on the west core, east and south sides, and a rest area was created by installing a rooftop and a balcony on the base floor. Sliding windows on the balcony improve building ventilation, and the stairwell with light and ventilation invites pedestrians. Although it is a small part, these are architectural devices that help the healthy and open corporate culture that the CEO dreams of.

MASS C&G 마곡사옥
기업의 사옥은 대외적으로는 기업문화를 적극적으로 홍보하고, 기능적으로는 연구, 업무공간의 역할을 충분히 수행해야 한다. 특히 MASS C&G라는 디자인회사의 브랜드 이미지를 사옥을 통해 거래처가 인식하는 것은 중요한 건축전략이다. 설계는 이 점을 중시하여 접근하였다. 부지는 마곡지구 이면도로에 위치하며, 좌측에 폭 2m 보행친화길 형성구간과 접하고 있다. 기존에 조성된 도로변 건물들의 답답함을 피할 수 있는 최소한의 조건이 주어진 셈이다.
배치는 건물의 인지를 높이기 위해 좌측을 추가로 2m 물러서고, 우측도 주차램프를 포함한 8.4m 이격하여 3면을 노출시켰다. 조형은 상호를 모티브로 매시브(Massive)하나 창의적인 기업이미지를 드러내고자 하였다. 솔리드(Solid)를 돋보이게 하는 보이드(Void)한 발코니의 결합이 주된 요소이다. 이 솔리드(Solid) 벽면은 간판이나 기업홍보를 위한 공간으로 활용되며, 야간 경관으로 건물의 조형성을 돋보이게 한다. 한 층의 유효면적이 그리 크지 않은 요구를 활용하여 각 층에 외기와 면한 발코니와 내부 오픈 공간을 두었다. 면적이 적은 층은 자연스럽게 이러한 조형요소를 극대화한다. 어찌 보면 가볍고 유리 위주의 주변 다른 건물들과 차별화하는 전략적인 접근이기도 하다.
최근에 기업은 환경적인 측면을 외면하기 힘들다. 좌측 추가 이격으로 휴게마당을 확보하여 보행로와 1층의 분위기를 향상하고, 기업의 친환경 이미지를 강조하였다. 1층 출입구를 물러서고 방풍실을 오픈한 이유이기도 하다. 그리고 층마다 환경요소들(마당, 나무, 빛)을 적극적으로 수용한다.ㅜ반면 평면은 코어를 밀착하여 효율을 극대화하였고, 내부기둥 최소화로 융통성을 확보하였다. 이는 기업의 성장과 변화를 수용하는 건축적인 고려이다. 한편, 서측 코어, 동측과 남측에 거실배치로 쾌적한 근무환경을 제공하고, 옥상 루프탑, 기준층 발코니 설치로 휴게공간을 만들었다. 발코니의 슬라이딩 창호로 건물의 환기를 향상하며, 채광과 환기가 가능한 계단실은 보행을 유도한다. 작은 부분이지만 이러한 것들이 대표가 꿈꾸는 건강하고 개방된 기업문화에 도움이 되는 건축적 장치들이다.



















Architect KAGA Architects & Planners│(주)가가건축사사무소
Location 66, Magokjungang 4-ro, Gangseo-gu, Seoul, Republic of Korea
Use Educational research facilities(laboratory)
Site area 1,366.5㎡
Built area 770.88㎡
Total floor area 7,006.83㎡
Floor B2F, 8F
Structure Reinforced concrete construction
Exterior finish Granite
Interior finish Exposed concrete, Tile, Paint
Design period 2019. 10 - 2020. 3
Construction period 2020. 11 – 2022. 3
Lead architect Yong-Dae Ahn
Design team Jin-Young Jeon, Ye-Sol Han, Beom-Jin Jeong, Dae-Kyung Kim
Cooperation Mintech Co., Ltd, Jungyeon engineering office, Chunil Engineering Co., Ltd
Construction Welcron Hantec Co., Ltd.
Photographer Joonhwan Yoon
해당 프로젝트는 건축문화 2022년 10월호(Vol. 497)에 게재되었습니다.
The project was published in the October, 2022 recent projects of the magazine(Vol. 497).
October 2022 : vol. 497
Contents : RECORDS About the Changed Lifestyle and Living Space, ‘The 14th Seoul Architecture Festival’ 달라진 생활과 주거 공간에 대하여, '제14회 ‘2022 서울 건축문화제’ : NEWS / COMPETITION / BOOKS : SKETCH Free City, a Scene
anc.masilwide.com
'Architecture Project > Office' 카테고리의 다른 글
| Antwerp City Hall (0) | 2023.03.02 |
|---|---|
| Czech Radio Olomouc (0) | 2023.02.28 |
| THE WRITER’S CABIN (0) | 2022.12.21 |
| GYEONG-BUK PROVINCIALGOVERNMENT TOWN DGB OFFICE BUILDING (0) | 2022.11.10 |
| HEUNGKUK TOWER BUSAN (0) | 2022.10.20 |
마실와이드 | 등록번호 : 서울, 아03630 | 등록일자 : 2015년 03월 11일 | 마실와이드 | 발행ㆍ편집인 : 김명규 | 청소년보호책임자 : 최지희 | 발행소 : 서울시 마포구 월드컵로8길 45-8 1층 | 발행일자 : 매일



