
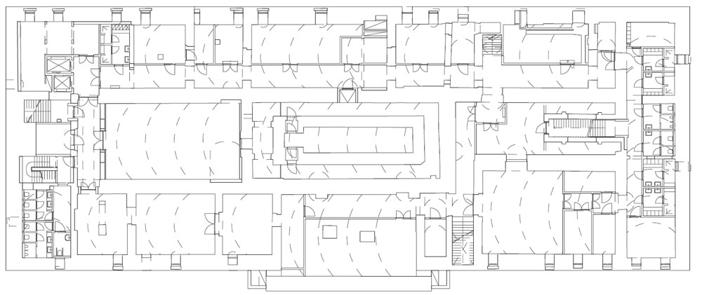
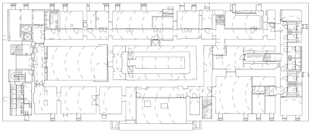
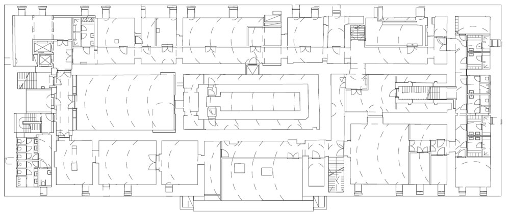
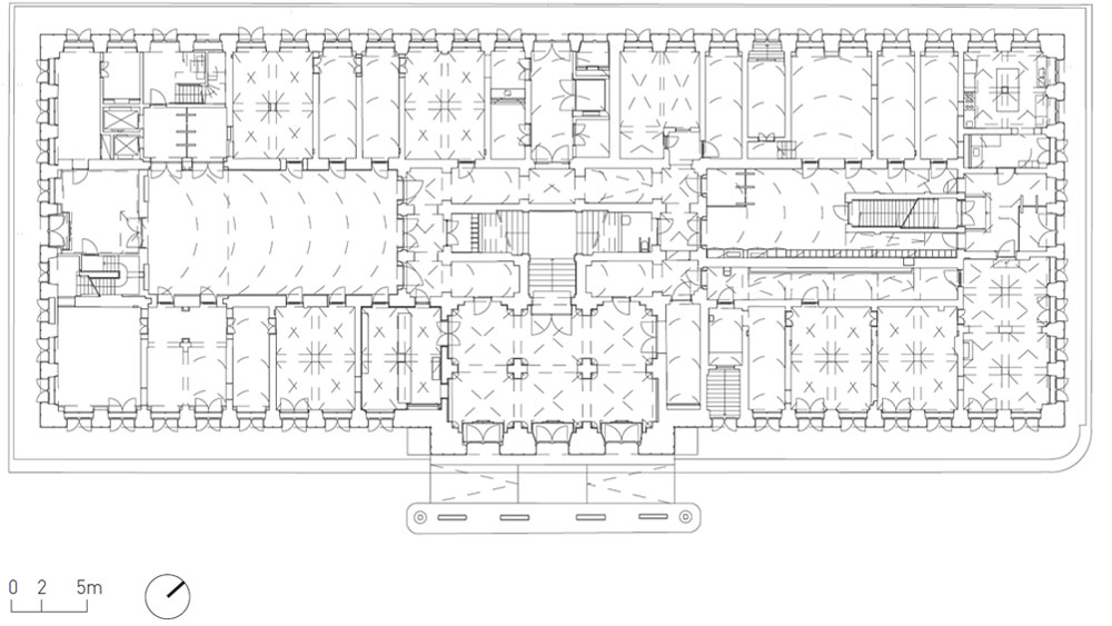
The City Hall becomes a true ‘house of the city’. The ground floor and Noble floor will be (partially) opened up to the public while all councilors and their staff will be brought back under one roof. In addition, the façades and interiors needed to be completely restored, while building also had to be readied for future in terms of comfort and energy performance (BREEAM standard: ‘excellent’). These aims mark the second major transition of the historic City Hall. One that can be compared to the very extensive transition of the 19th century in which changes were made deep into the building’s spatial programme. It is therefore important to situate the current programme in the context of past changes to the building.
Despite the extent of the transition realised in the 19th century, it nevertheless succeeded in retaining the City Hall’s historic “layered coherence”. There were certain revisions, newly made connections and shifts in emphasis. And, building on the articulation and dimensions typical of the Floris style that defined the original City Hall, Location Antwerpen, Belgium Program City hall Gross floor area 10,300m2 Building scope B1, 4F Completion 2022 Client City of Antwerp Photographer Stijn Bollaert Editor Hyunkyung Kim a more contemporary atmosphere was created that was evocative of the neo-Flemish renaissance. Nevertheless, the original structure remained legible – it was literally “set forth” - and to the present day remains the canon of the building. Preserving and reinforcing this layered coherence throughout the City Hall’s second historic transition calls for an approach that has respect for the essence of the existing structure. An architecture mfounded on the conviction that the existing building must define what it needs itself, and that answers to new questions are in fact already contained within the building’s historic structure or “code”.
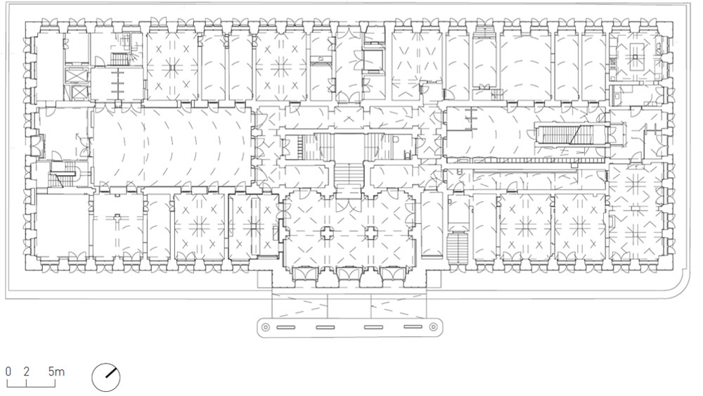
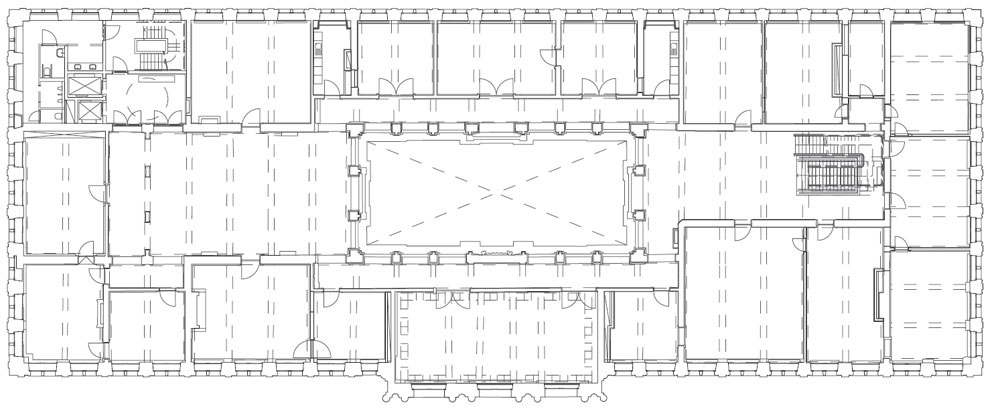
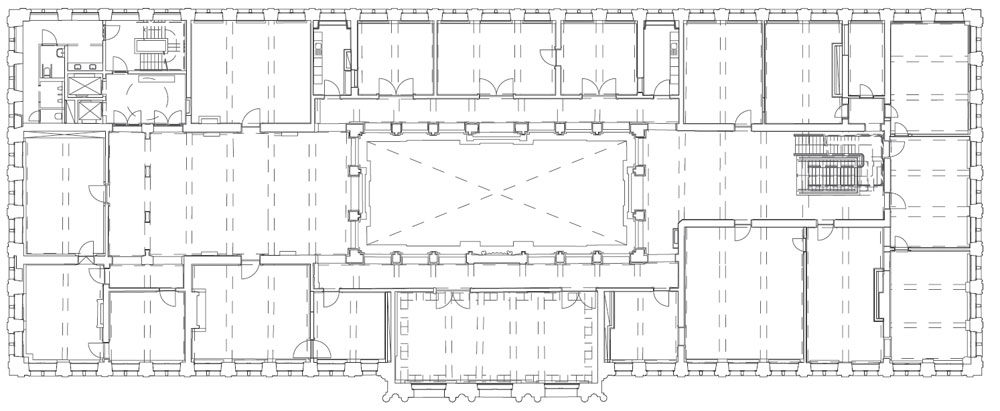
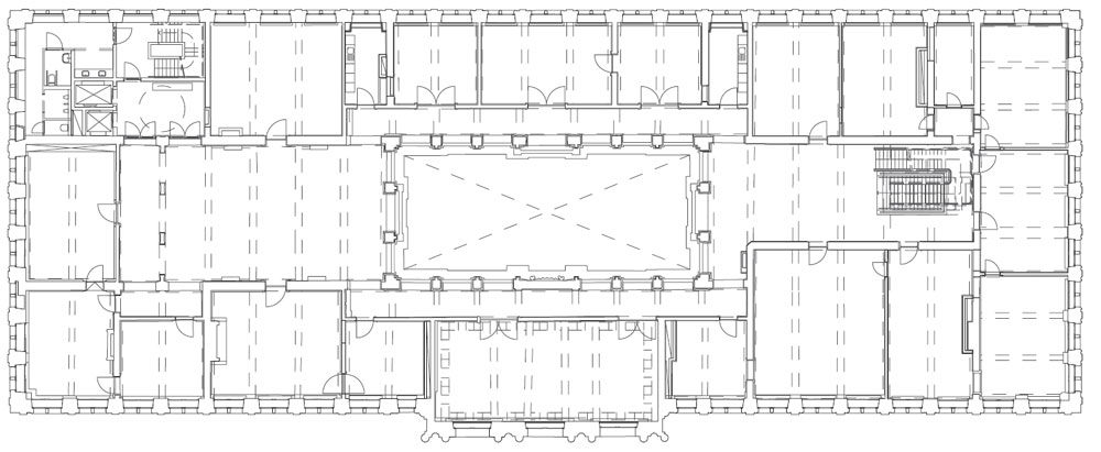
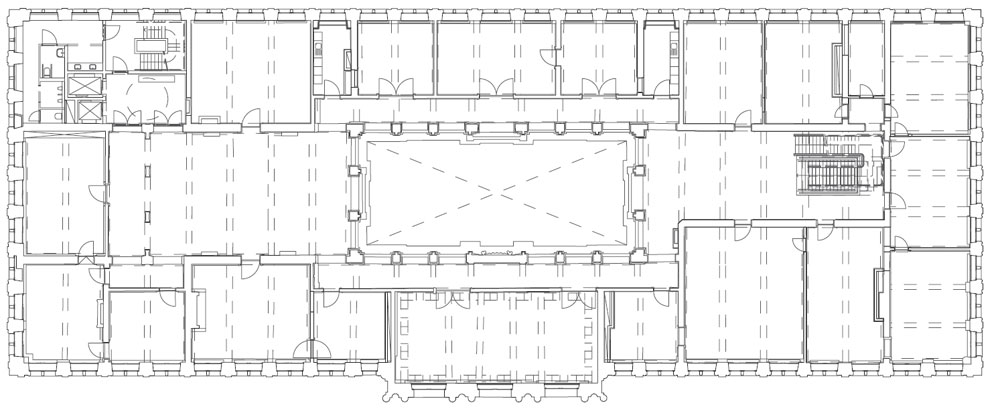
The façades and interiors were restored with great attention and respect for the traces of time. The building did not undergo a ‘rejuvenation cure’ but a dignified restoration. We restored the spatial structure of the ground floor so that the space regains its brightness. All the gates can be opened again and the main entrance is located on the Grote Markt. The second or ‘Illuminated Floor’, currently unknown to many people, will be made equally important as the ‘Noble Floor’, because it is here that the majority of councilors and their staff will be housed. We designed two centrally located, doubleheight spaces – the vestibules - who will let in more daylight and open up the view towards the skies and historic bell tower. The vestibules extend the spatial articulation of the underlying floors to the level of the new ‘Illuminated Floor’.

시청은 진정한 ‘도시의 집’이 되어야 한다. 1층과 노블 층의 일부는 모두에게 개방될 것이고, 모든 의원과 직원들은 한 지붕 아래로 돌아가야 했다. 또한, 입면과 인테리어를 완전히 복원해야 했고, 공간의 쾌적함과 에너지 성능 면에서는 미래를 위해 준비되어야 했다. 이 목표들은 역사적인 시청의 두 번째 중요한 변화를 보여준다. 이번 프로젝트는 공간 프로그램이 많이 바뀌었던 19세기의 광범위했던 변화와 비교될 수 있다. 그렇기에 과거의 변화에 대한 맥락에서 현재의 프로그램을 배치하는 것이 중요했다.
19세기에 많은 변화가 있었음에도, 시청은 역사적인 ‘일관성이 있는 층’을 유지했다. 첫 번째 변화에는 특정한 수정, 새롭게 만들어진 연결과 강조의 변화가 있었다. 또한, 기존 시청을 정의했던 폴로리스 양식의 전형적인 장식과 공간을 바탕으로 더 현대적인 분위기의 신플랑드르 르네상스를 연상시키게 조성되었다. 그럼에도 원래 구조는 읽을 수 있는 상태로 유지되었고, 지금까지도 이 건물의 표준으로 남아있다. 시청의 두 번째 역사적인 변화에는 일관된 층을 유지하고 강화하기 위해서는 기존 건물의 구조를 존중하는 접근 방식이 필요했다. 기존 건물이 그 자체로 필요한 것을 정의해야 한다는 생각을 바탕으로 했다. 이 질문에 대한 답은 사실 건물의 역사적 구조나 ‘코드’ 안에 이미 포함되어 있었다.
시간의 흔적에 집중하고, 존중하면서 건물의 입면과 인테리어를 복원해 나갔다. 시청은 ‘젊어지는 치료’가 아닌 위엄 있는 복원을 거쳤다. 밝은 공간이 될 수 있도록 지상층의 공간 구조를 복원했다. 모든 문은 다시 열 수 있게 되었고, 주 출입구는 그로테 마켓을 향해 두었다. 현재 많은 사람이 모르고 있는 두 번째 혹은 ‘일루미네이티드 층’은 ‘노블 층’만큼 중요하게 만들어질 예정이다. 의원들 대다수와 그들의 직원들이 상주할 곳이기 때문이다. 중앙에는 둔 2층 높이의 현관은 햇빛을 안으로 더욱 들어오게 하고, 하늘과 오랜 역사를 지닌 종탑을 향해 열린 공간이 되도록 했다. 현관의 공간적 표현들은 새로운 ‘일루미네이티드 층’의 수준으로 확장된다.


















Architect HUB
Location Antwerpen, Belgium
Program City hall
Gross floor area 10,300㎡
Building scope B1, 4F
Completion 2022
Client City of Antwerp
Photographer Stijn Bollaert
해당 프로젝트는 건축문화 2022년 11월호(Vol. 498)에 게재되었습니다.
The project was published in the November, 2022 recent projects of the magazine(Vol. 498).
November 2022 : vol. 498
Contents : RECORDS Architecture Week held at Yongsan Park after tearing down the wall 벽을 허물고 돌아온 용산공원에서 열린 건축주간 : NEWS / COMPETITION / BOOKS : SKETCH A rural house painted with Passion Sangria / Sangwon Kim 열정적
anc.masilwide.com
'Architecture Project > Office' 카테고리의 다른 글
| ETI CENTRE DES SAVOIRS POUR L’INNOVATION A SAINT-ETIENNE (0) | 2023.03.27 |
|---|---|
| Damon Studio (0) | 2023.03.17 |
| Czech Radio Olomouc (0) | 2023.02.28 |
| MASS C&G Office Building in Magok (0) | 2023.01.18 |
| THE WRITER’S CABIN (0) | 2022.12.21 |
마실와이드 | 등록번호 : 서울, 아03630 | 등록일자 : 2015년 03월 11일 | 마실와이드 | 발행ㆍ편집인 : 김명규 | 청소년보호책임자 : 최지희 | 발행소 : 서울시 마포구 월드컵로8길 45-8 1층 | 발행일자 : 매일



