
The project is located in Haidian District, Beijing, where the famous Jingxi Rice and Qianlong Imperial Fields are no longer well known to young people. Under the nourishment of the Xishan Mountains and Yongding River, the villages in the joint region of urban and rural areas have taken over the baton of urban development. As a result, countryside houses may become the focus in this situation, influencing the villages and towns and the people there in the new era.
Wang Daquan, the designer of Tanzo Space Design was commissioned to complete the landscape and interior design for a two-story house. This red brick building constructed by local workers is no different from other houses in the village. The owner has an open attitude towards the interior design, which allows the complete presentation of Guan Zi Zai. Without any reference because of the maximized freedom, the designer proposed an intervening method without any presupposing purpose, which takes the physical environment and the owner’s habits as the fundamental law and logic. Although slower, this process guarantees the right direction, which has been proven by fact.
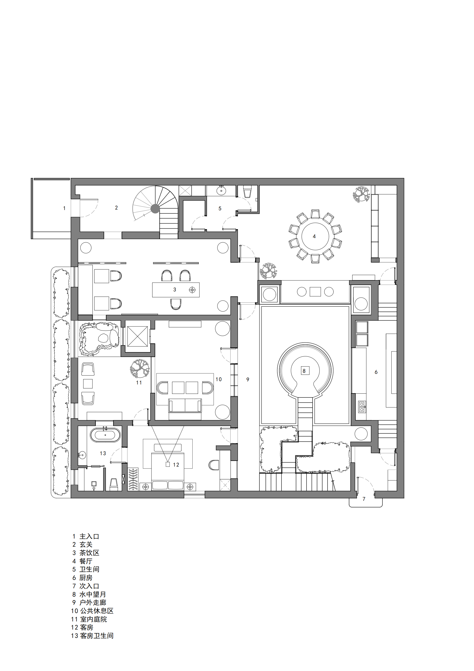
To arrange the air-conditioning pipeline and ventilation, the door head fixed plates form a double-sided slope, which unexpectedly looks like a small tower from a distance, and the owner likes its implied meaning of promoting to a higher position. What’s more, the black half-enclosed wall gives entering the door meaning of approaching and retreating.
This kind of flexible treatment runs through the entire design process, and only when one is in it can one realize that the village is far from static. For example, when the designer was still immersed in the landscape formed by the old roof ridges of the front and rear houses, the front house had already been demolished and become a two-story building with stainless steel railings. In the meantime, the narrow and sloping drainage gap between the two buildings required further adjustment of the interior structure.
A pavilion-like area was inserted in the center of the house, opening up the tense artificial interior space into the environment. Small amount of water was embedded in the sinking area enclosed by cement, among which the children often jump back and forth between the pools in the courtyard. The width of the water is just suitable for children’s stride.
Sitting around this small area shaped like a key, there are hundreds of millions of stars up in the sky and romantic moonlight nearby. The literati-style romance blends with the countryside, opening a life in a simple and lovely way. Taking advantage of the situation makes the emphasis relaxed, and Guan Zi Zai comes into being.

관세음보살 하우스
관세음보살 하우스는 이제는 젊은 사람들이 잘 모르는 곳이 되어버린 징시리스(Jingxi Rice)와 건륭 임페리얼 필즈(Qianlong Imperial Fields)가 있는 베이징의 하이뎬에 있다. 시산산맥(Xishan Mountains)과 용딩강(Yongding River)의 영향으로 도시와 농지가 결합한 이 지역은 도시 개발의 바통을 이어가고 있다. 결과적으로 개발의 중점에는 시골집들이 있었고, 새로운 시대 속 마을과 도시, 사람들에게 영향을 주었다.
건축가는 조경과 인테리어를 새롭게 단장해야 했다. 붉은 벽돌의 기존 건물은 마을의 다른 집들과 별반 다르지 않았다. 건축주는 인테리어 디자인에 열려 있었고, 그 덕에 관세음보살 하우스를 완벽하게 연출할 수 있었다. 자유롭게 설계할 수 있었기 때문에, 건축가는 다른 조건은 배제하고 어떤 참고도 없이 건축주의 습관과 주변 환경을 기본 법칙으로 한 설계를 제안했다. 비록 진행 과정은 더디었지만, 옳은 방향으로 가는 방법을 보장했고, 결과물로 보여주었다.
공조 배관과 환기 장치를 배치하기 위해 도어헤드 고정판은 양면 경사로 만들어 멀리서 보면 작은 타워처럼 보인다. 건축주는 더 잘 된다는 것을 암시하는 것 같아 흡족해했다. 또한, 반쯤 닫힌 검은 벽은 출입문을 통한 연결과 차단을 의미한다.
이런 유연한 대처는 전체 설계 과정에 걸쳐 진행되었고, 설계가 진행되면서 마을 분위기가 이전과 다르다는 것을 알 수 있었다. 예를 들어, 앞집과 뒷집의 낡은 지붕 능선이 만들어내는 풍경에 잠겨 있던 사이에 앞집은 이미 철거되어 스테인리스 스틸 난간이 있는 2층 건물이 되어 있었다. 그 탓에, 좁아진 두 건물 사이의 경사진 배수 간격 때문에 내부 구조를 조정해야 했다.
집 중앙에는 정자 같은 공간을 넣어, 긴장된 실내 공간을 풀어주었다. 시멘트로 만들어진 낮은 공간에는 물이 고여 있는데, 아이들이 웅덩이 사이를 뛰어다니기 일쑤였다. 물길의 너비는 아이들의 보폭을 고려했다.
열쇠 모양을 한 이 작은 곳에 앉아 올려다보면 하늘에는 수억 개의 별과 낭만적인 달빛이 가까이 있다. 문학적 낭만과 시골의 모습이 어우러져 소박하고 사랑스러운 방식으로 삶을 연다. 상황을 활용하면 도드라지는 것들도 느슨해지고, 관세음보살이 된다.



























Archtiect 탄조 스페이스 디자인 | Tanzo Space Design
Location Haidian District, Beijing, China
Program Single family house
Gross floor area 442㎡
Building scope 3F
Design period 2021
Completion 2022
Principal architect Wang Daquan
Project architect Wang Kun
Photographer Shi Yunfeng
해당 프로젝트는 건축문화 2022년 10월호(Vol. 497)에 게재되었습니다.
The project was published in the October, 2022 recent projects of the magazine(Vol. 497).
October 2022 : vol. 497
Contents : RECORDS About the Changed Lifestyle and Living Space, ‘The 14th Seoul Architecture Festival’ 달라진 생활과 주거 공간에 대하여, '제14회 ‘2022 서울 건축문화제’ : NEWS / COMPETITION / BOOKS : SKETCH Free City, a Scene
anc.masilwide.com
'Architecture Project > Single Family' 카테고리의 다른 글
| Teu-in House (0) | 2023.02.09 |
|---|---|
| Hwamyeong D-House (0) | 2023.02.08 |
| CRM House (0) | 2023.01.10 |
| Cottage Inspired by a Ship Cabin (0) | 2023.01.09 |
| Hygge (0) | 2023.01.03 |
마실와이드 | 등록번호 : 서울, 아03630 | 등록일자 : 2015년 03월 11일 | 마실와이드 | 발행ㆍ편집인 : 김명규 | 청소년보호책임자 : 최지희 | 발행소 : 서울시 마포구 월드컵로8길 45-8 1층 | 발행일자 : 매일



