
The client is a middle school friend of an architect who runs an interior and construction company in Chuncheon. The client said he was planning to move to a suburb of downtown due to his wife’s health issue, and although the site has not yet been decided, he wanted to ask the architect to design it with only a plan. Usually, the architecture design process begins with the architect reviewing the conditions of the site already sold by the client, but this project was different. The architect began the design by signing a sales contract in a few weeks, looking for a place where the client could sit the house he wanted, considering location conditions such as accessibility to client and the city, surrounding environment, and budget.
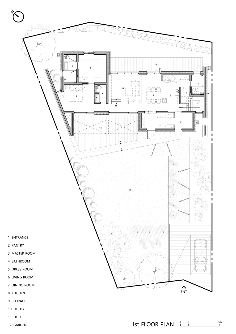
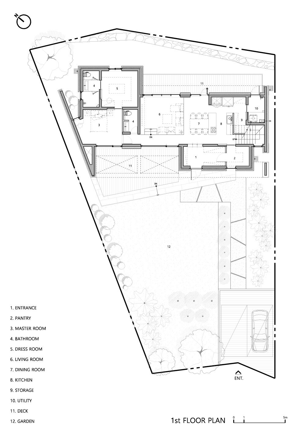
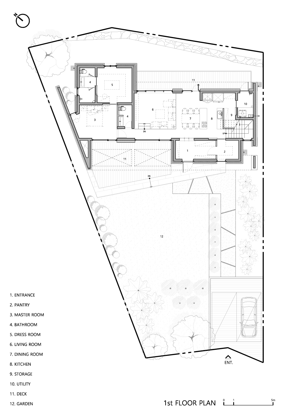
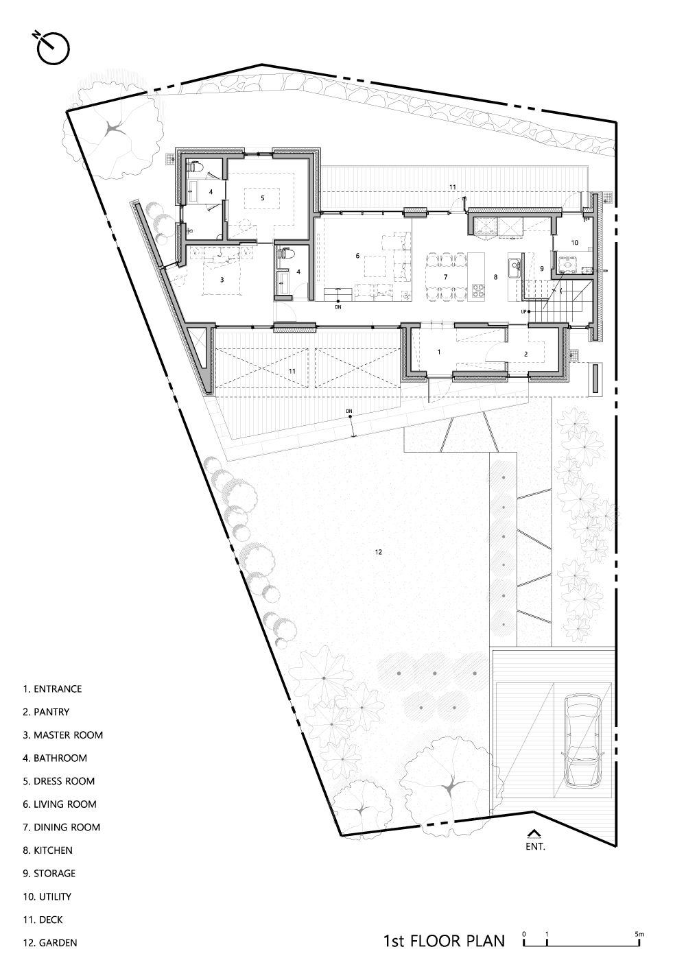
The site was adjacent to the ring road that crosses Chuncheon-si, but it was surrounded by low mountains, giving the client’s family a sense of stability and the south-facing sunlight planted warmth in every corner of the house. The shape of the building is designed to blend in with the surrounding landscape through simple mass and elevation design, avoiding fancy or excessive decorations. It provides a secret view of the main room and bathroom through the gap of the wall twisted diagonally in line with the shape of the earth. The yard in the front actively accepts nature, secures lighting, and communicates with the surroundings over the low vegetation fence. The terrace space on the back, connected to the living room, kitchen, and dining room, becomes a private rest and small group space where you can relate to nature and enjoy relaxation. On the first floor, storage spaces are arranged everywhere at the request of the builder, and the entrance, kitchen-linked grocery storage rooms, and large dress rooms are spaces that embody the minimal life desired by the builder. The living room space, which is connected to the kitchen, and dining, shows a space that can be expanded, and the living room with steps interacts with the front yard and the rear terrace, giving a variety of space and openness. The second floor is a children’s space, reflecting the educational view of the client couple. The large family room is a learning space and play space for children. The window on the back is framed as if the natural scenery changes all year round, and the panoramic view that unfolds in a distant view is drawn into the family room.
Hygge is a resting place for only one family who feels relaxed in the greenery of the low hill in the north and the sound of the water in the small valley. It is a place where the client’s heart for his wife and two young children is in contact, as the words “Hygge, a Danish word meaning cozy and pleasant state, a Danish and Norwegian way of life that values simple daily life with close people.”

휘게
건축주는 춘천에서 인테리어 및 건설 회사를 운영하는 건축가의 중학교 친구이다. 건축주는 아내의 건강이 좋지 않아 시내 근교로 이사를 계획하고 있다며, 아직 땅도 정해지지 않았으나 급한 마음에 구상만 가지고 건축가에게 설계를 의뢰하고 싶어 했다. 대개 설계라는 건축의 과정은 건축주가 이미 매매한 대지의 조건을 건축가가 검토하는 것부터 시작되나, 이번 프로젝트는 달랐다. 건축가는 건축주와 시내와의 접근성, 주변 환경, 예산 등 입지 조건을 따져가며 몇 주 만에 건축주가 원하는 집을 앉힐 수 있는 곳을 찾아 매매계약을 체결하고 설계를 시작했다.
대지는 춘천시를 가로지르는 순환도로와 인접하였으나 주변이 낮은 산들로 둘러싸여 있어 건축주 가족에게는 안정감을 주고 남향의 햇살은 집안 구석구석까지 온기를 심어줄 곳이었다. 건물의 형태는 화려하거나 과한 장식을 지양하고 단순한 매스와 입면 디자인을 통해 주변경관과 어우러지도록 계획했다. 대지의 형태에 순응한 사선으로 틀어진 벽체 틈 사이로 안방과 욕실에서의 비밀스러운 뷰를 제공한다. 전면에 있는 마당은 적극적으로 자연을 받아들이며 채광을 확보하고, 낮은 식생 담장 너머로 주변과 소통한다. 거실, 주방, 다이닝룸과 연계된 배면의 테라스 공간은 자연과 관계를 맺고 여유를 즐길 수 있는 프라이빗한 휴식, 소모임 공간이 된다. 1층은 건축주 요청에 맞춰 수납공간이 곳곳에 배치되어 있으며 현관, 주방과 연계된 식료품 저장실, 대형 드레스룸은 건축주가 바라는 미니멀라이프를 구현한 공간이다. 거실, 주방, 다이닝이 연계된 거실 공간은 확장할 수 있는 공간을 보여주며, 단차를 둔 거실은 전면 마당과 배면 테라스와 교류하며 다양한 공간감과 개방감을 준다. 2층은 자녀들 공간으로 건축주 부부의 교육관이 반영되어 있다. 넓은 가족실은 아이들의 학습공간이자 놀이공간이다. 배면의 창은 사시사철 변하는 자연경관이 손에 닿을 듯 액자처럼 담기며, 전면으로는 원경으로 펼쳐지는 파노라마의 경관을 가족실로 끌어들인다.
휘게는 북쪽 낮은 동산의 푸르름과 작은 계곡 물소리 속 여유로움을 느끼는 한 가족만을 위한 휴식 공간이다. 휘게(Hygge, ‘아늑하고 기분 좋은 상태, 가까운 사람들과 함께 하는 소박한 일상을 중시하는 덴마크와 노르웨이식 생활 방식’을 뜻하는 덴마크 단어)라는 말처럼 아내와 어린 두 자녀를 향한 건축주의 마음이 닿아 있는 곳이다.















Architect 건축사사무소 노아 | Architects N.O.A.
Location Mancheon-ri, Chuncheon-si, Gangwon-do, Republic of Korea
Program Housing
Site area 576.00㎡
Building area 114.90㎡
Gross floor area 180.96㎡
Building scope 2F
Building to land ratio 19.95%
Floor area ratio 31.42%
Design period 2021. 10 - 11
Construction period 2021. 12 - 2022. 8
Completion 2022. 9
Principal architect / Project architect Seokgu Hwang
Design team Woojin Lee
Structural engineer Midam structural engineering
Mechanical and Electrical engineer SAJO engineering
Construction Seoha Construction company / Interior_Design Zieum
Client Hoon Hwang
Photographer Yongsu Kim
해당 프로젝트는 건축문화 2022년 10월호(Vol. 497)에 게재되었습니다.
The project was published in the October, 2022 recent projects of the magazine(Vol. 497).
October 2022 : vol. 497
Contents : RECORDS About the Changed Lifestyle and Living Space, ‘The 14th Seoul Architecture Festival’ 달라진 생활과 주거 공간에 대하여, '제14회 ‘2022 서울 건축문화제’ : NEWS / COMPETITION / BOOKS : SKETCH Free City, a Scene
anc.masilwide.com
'Architecture Project > Single Family' 카테고리의 다른 글
| CRM House (0) | 2023.01.10 |
|---|---|
| Cottage Inspired by a Ship Cabin (0) | 2023.01.09 |
| A-Dam (0) | 2022.12.30 |
| ATMOSPHERIC WALL (0) | 2022.12.29 |
| Gasan 60-9 (0) | 2022.12.22 |
마실와이드 | 등록번호 : 서울, 아03630 | 등록일자 : 2015년 03월 11일 | 마실와이드 | 발행ㆍ편집인 : 김명규 | 청소년보호책임자 : 최지희 | 발행소 : 서울시 마포구 월드컵로8길 45-8 1층 | 발행일자 : 매일


