
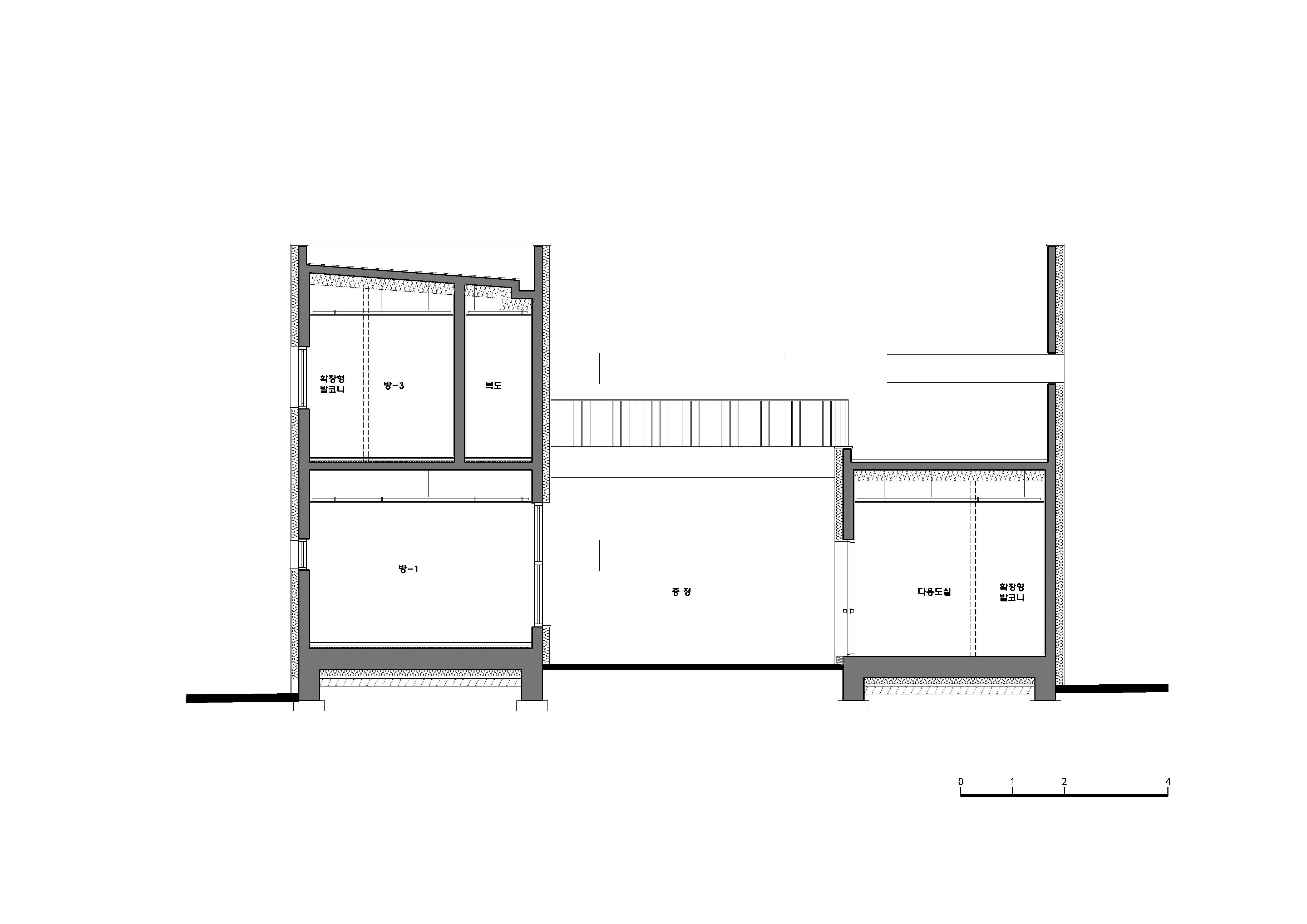
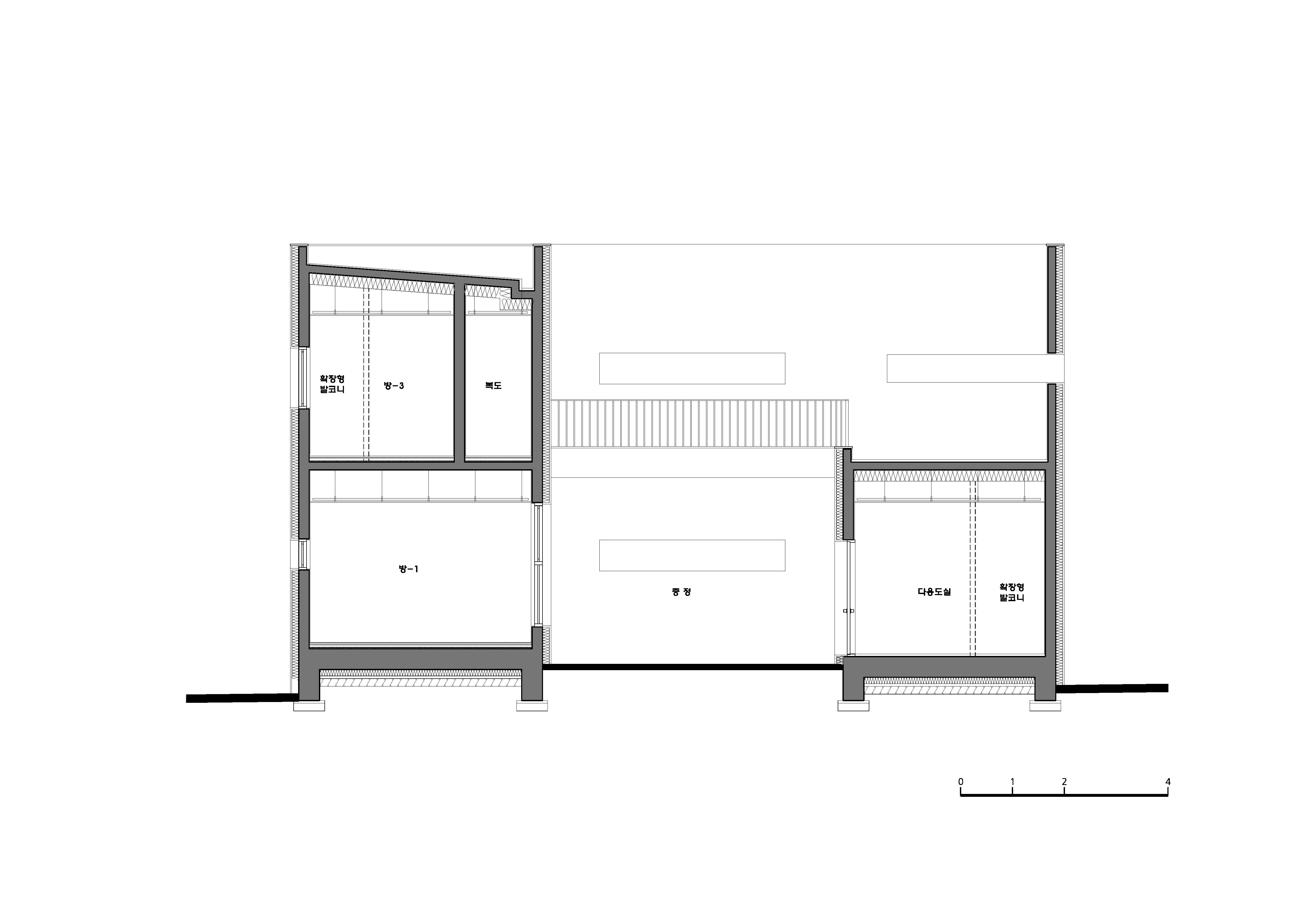
‘A-Dam’ is a house where young married couples in 40s live with 2 kids. The couple wanted the house to be a space where communication could be continued with kids like playing. According to the building owner’s wish, there were some blank spaces in interior and exterior space where they can see their eyes in every corner of the house and play each other. 2 open spaces connect bedroom and kitchen, living room and courtyard, playroom on the 2nd floor and living room, and terrace and yard with eyes so communication could be done naturally wherever the kid is.
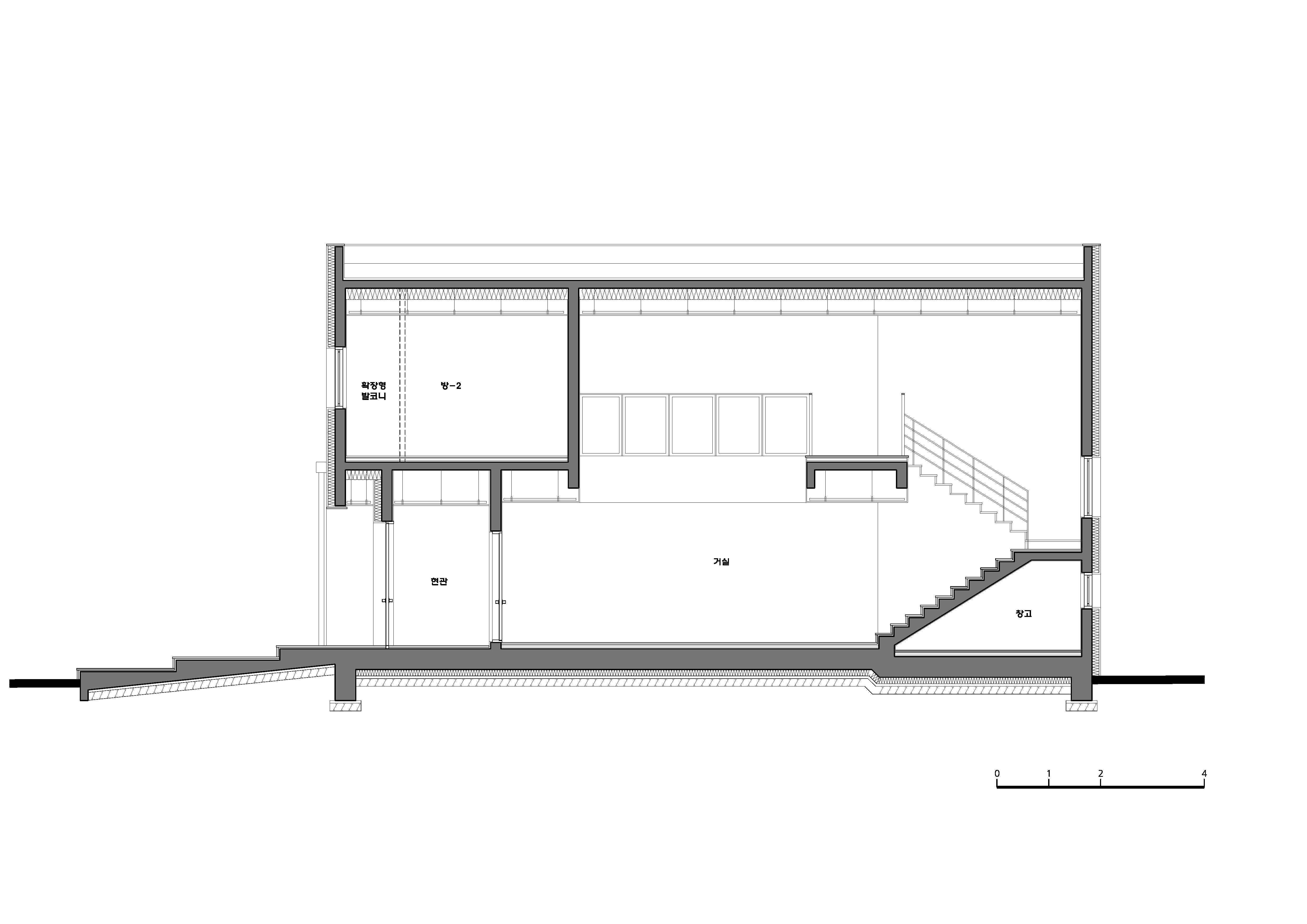
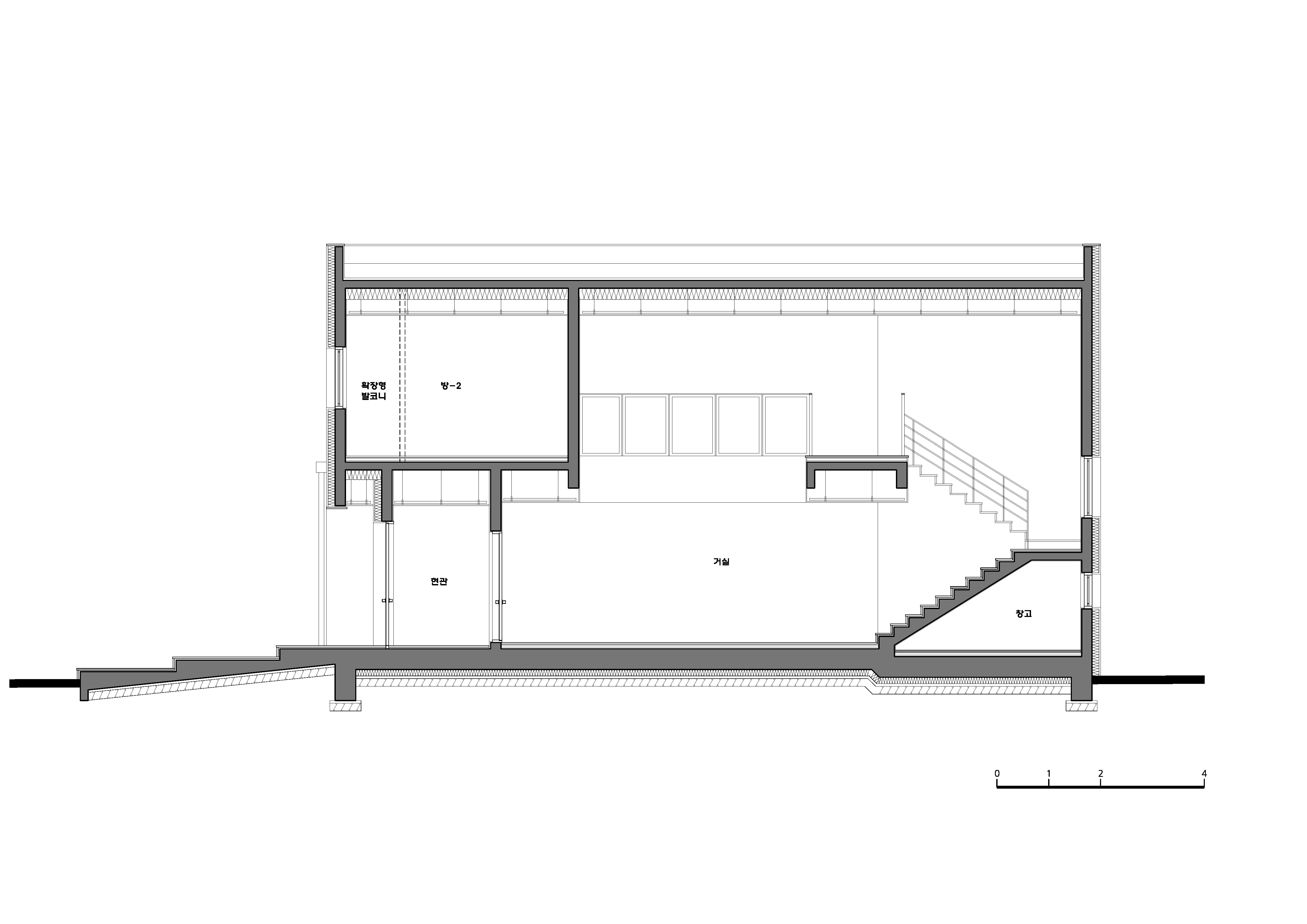
Unlike the slightly heavy and monotonous exterior, the open space is revealed as soon as you enter the interior. The reversal of the space, as if meeting through the rabbit hole in Alice in Wonderland, adds to the interest in the house. The empty interior space attached to the porch relieves the frustration of entering the house with a high floor. In addition, the space that must be passed to move the space was emptied so that the family could make eye contact, greet with hands, and make communication continues.
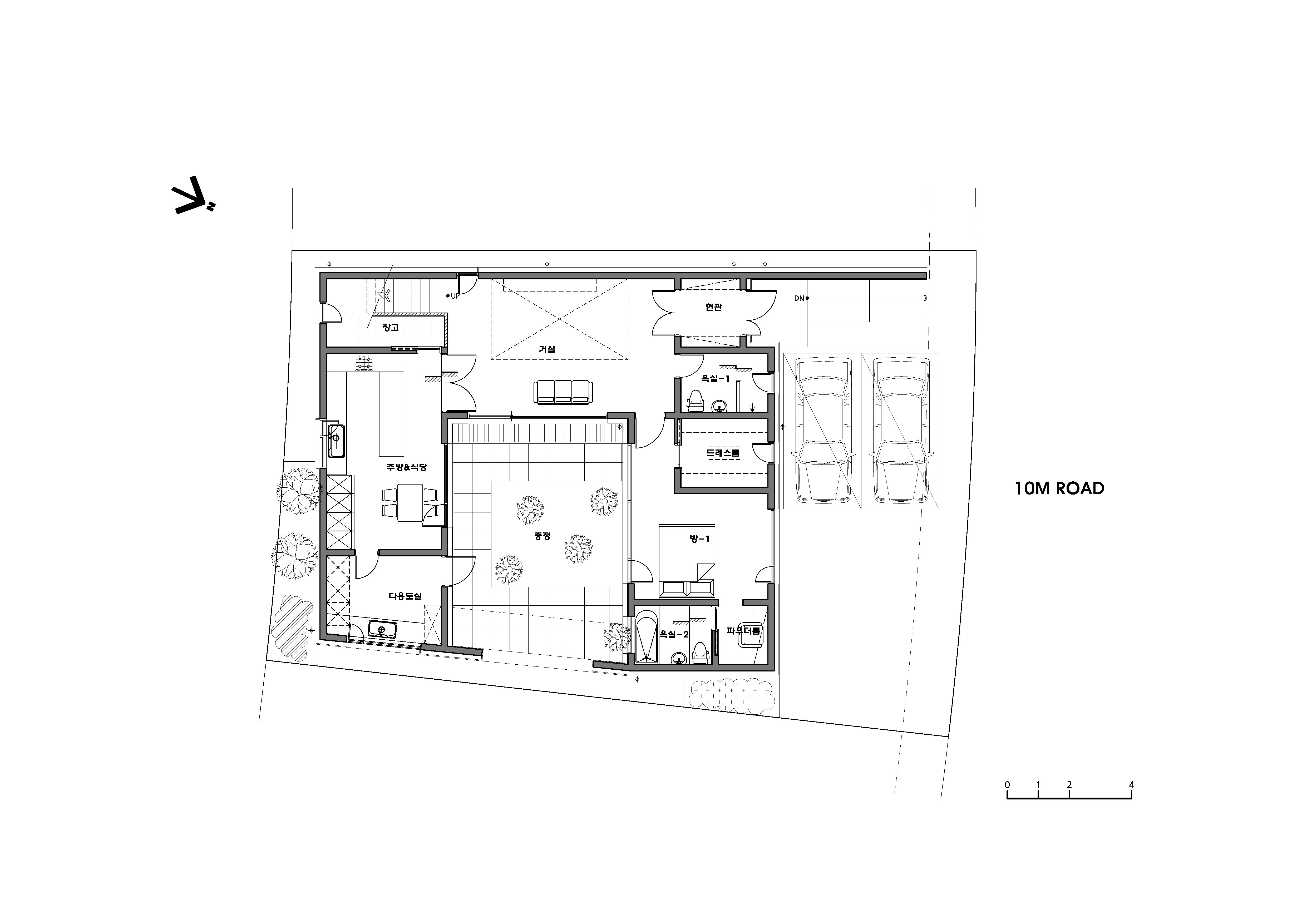
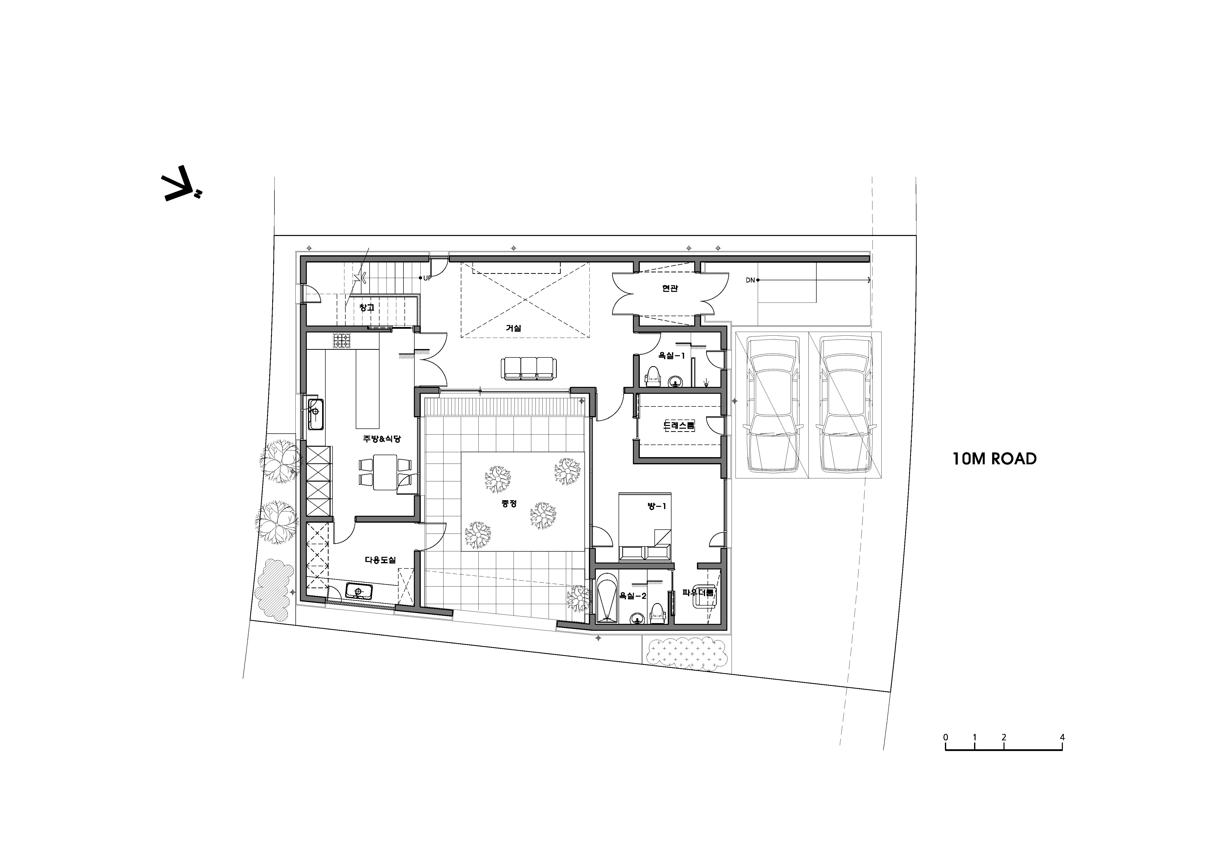
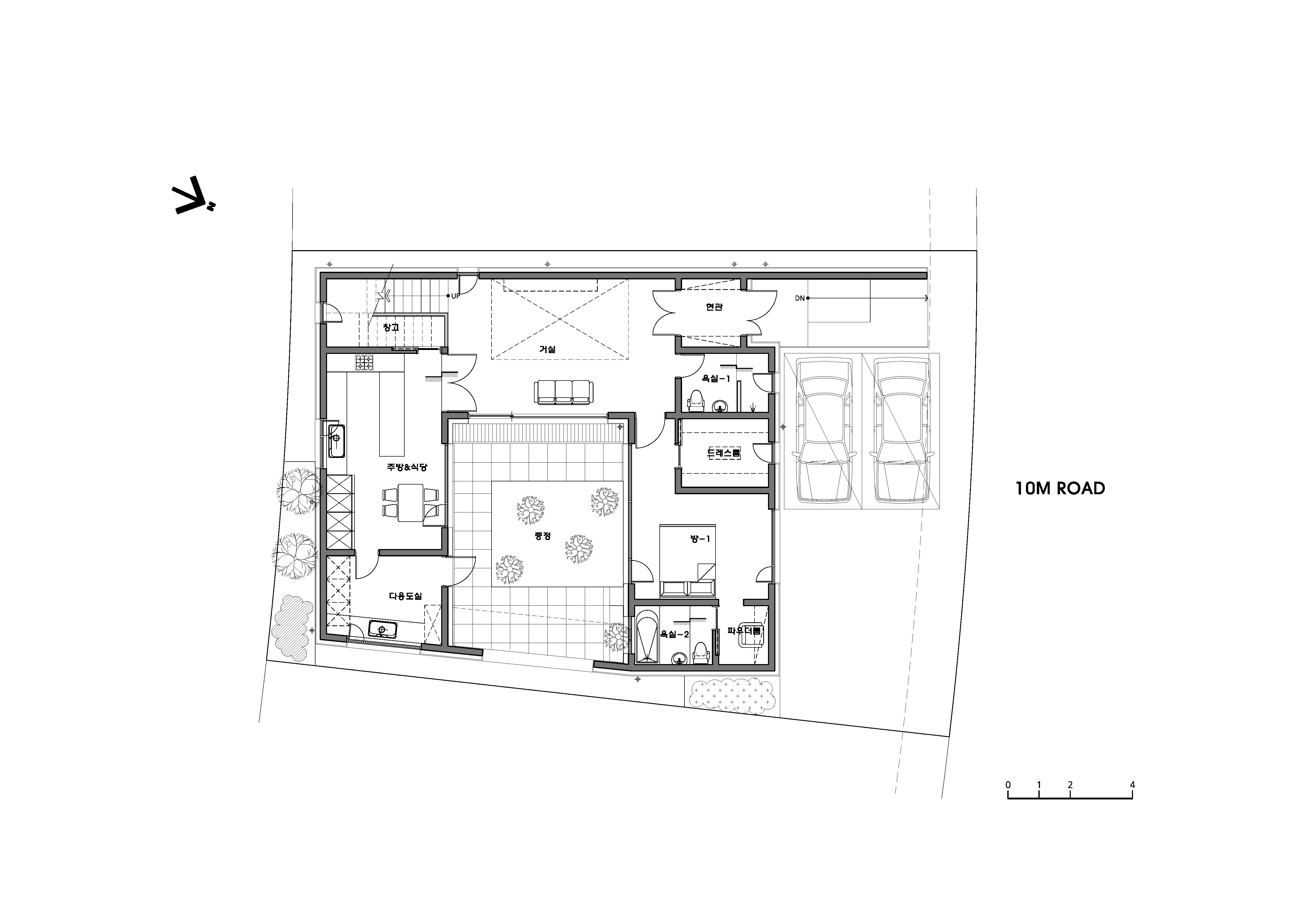
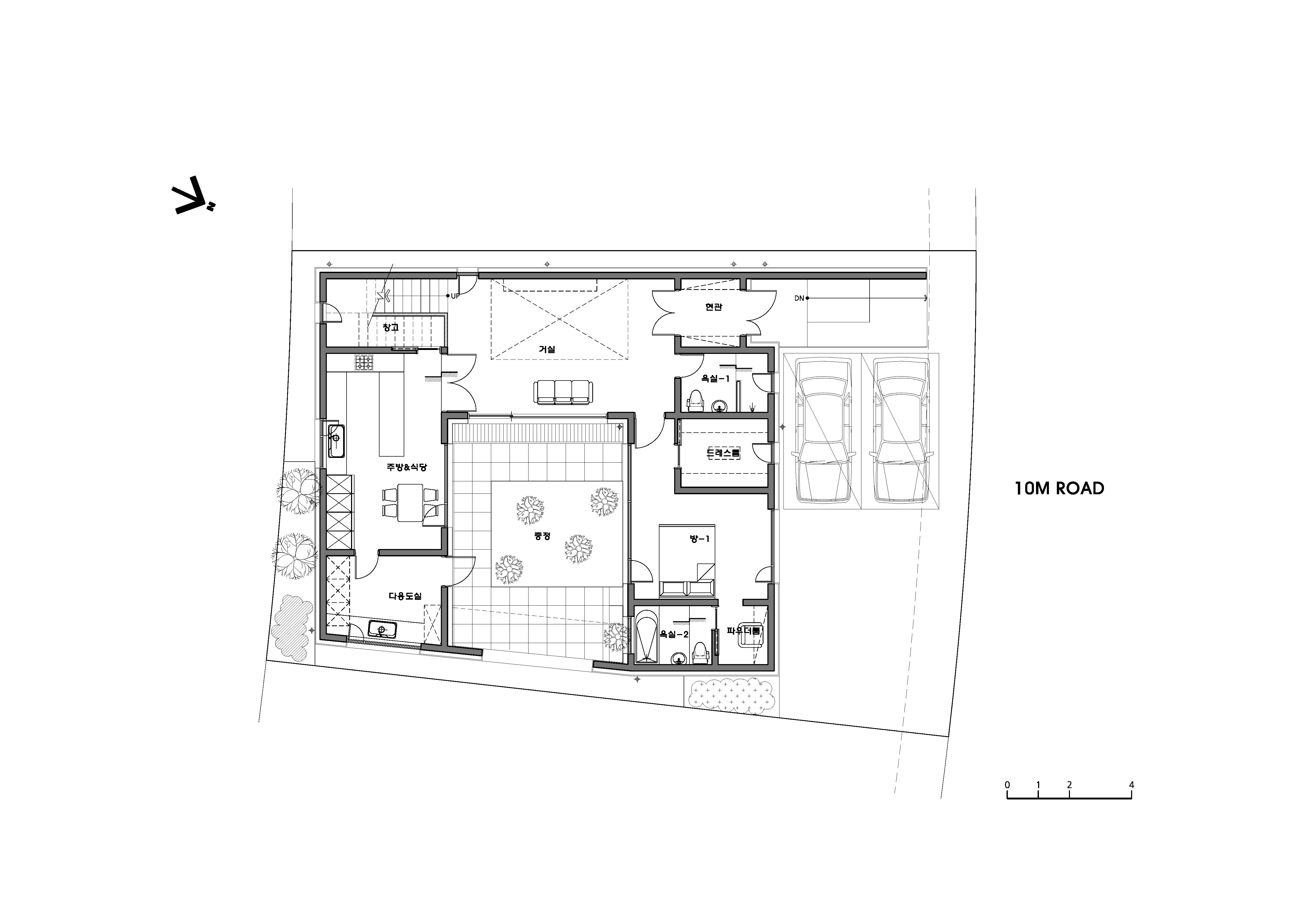
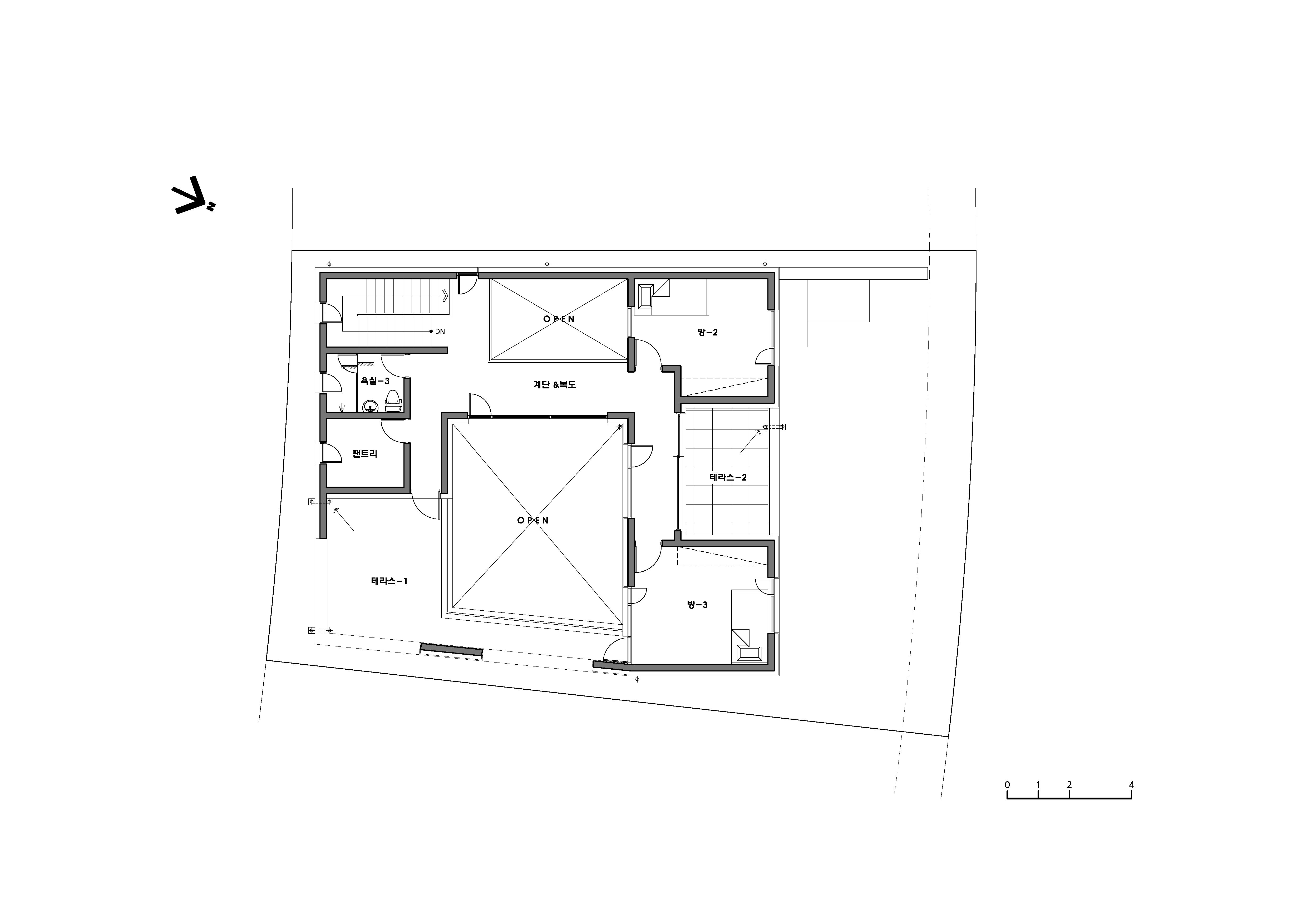
The essential part of the house is a courtyard. Courtyard is emptiness for communication and makes the attention to be shared in every spaces. Unlike the existing residential space where people only communicate in the living room, we made people to feel they are together though they are in the respective spaces. Also, as light, wind, snow and rain come into the exterior space where we could encounter by entering the building, we could feel the nature inside the house as well. It’s a space where kids who can see the plants grow by nature, not by an artificial installment, and plants grow together.
There are two types of terrace in A-Dam. We made a space to stay by emptying out part of the building. The terrace in front of the building is connected to the outside as a space where children can sit on chairs and watch their children go to and from school or wait for their parents to play. The indoor terrace connects the courtyard with the interior space. The second floor also provides a space to communicate with the courtyard and adds the effect the courtyard.

아담兒談
‘아담(兒談)’은 40대의 젊은 부부와 두 아이가 함께 사는 집이다. 부부는 집이 아이와 놀이하듯 소통이 이어지는 공간이 되길 바랐다. 건축주의 바람대로, 집안 어디에서도 서로 눈을 마주치고 장난을 주고받을 수 있도록 내부와 외부에 비워진 공간을 두었다. 두 개의 열린 공간은 침실과 부엌, 거실과 중정, 2층 놀이방과 거실, 테라스와 마당을 시선으로 연결해 아이가 어디에 있어도 자연스럽게 소통할 수 있게 한다.
조금은 무겁고 단조로운 외부와 달리 내부로 들어서는 순간 탁 트인 공간이 드러난다. 마치 ‘이상한 나라의 앨리스’의 토끼굴을 지나 만나는 것 같은 공간의 반전은 집에 대한 흥미를 더한다. 현관과 붙어있는 비워진 내부공간은 높은 층고로 집에 들어오면서 느끼는 답답함을 덜어낸다. 또한, 공간을 이동하려면 필연적으로 지나야 하는 공간을 비워내, 가족들이 눈을 맞추고, 손 인사를 하며 소통이 계속해서 이어지도록 했다.
이 집의 핵심 공간은 중정이다. 중정은 소통을 위한 비움으로 모든 공간에서 시선을 공유할 수 있도록 한다. 거실에서만 소통하던 기존 주거공간과 달리 각자의 공간에서도 함께 있다는 것을 느낄 수 있도록 했다. 또한, 건물을 들어서면 만나는 실외공간으로 빛, 바람, 눈과 비가 들어와 집 안에서도 자연을 느낄 수 있다. 인공적인 장치가 아닌 자연으로 식물이 자라는 것을 볼 수 있는 아이들과 식물이 함께 자라는 공간이다.
아담에는 두 종류의 테라스가 있다. 건물 일부를 비워 머물 수 있는 공간을 마련했다. 건물 앞쪽의 테라스는 의자에 앉아 아이가 등하교하는 모습을 바라보거나, 아이들이 부모님을 기다리며 놀 수 있는 공간으로 외부와 연결된다. 실내 테라스는 중정과 내부공간을 연결한다. 2층에도 중정과 소통할 수 있는 공간을 마련하여 중정의 효과를 더해준다.




















Architect 예린 건축사사무소 | YERIN Architects & Design Group
Location Sandongeup, Gumisi, Gyeongsangbukdo, Republic of Korea
Program Single family house
Site area 318.00㎡
Building area 137.85㎡
Gross floor area 199.00㎡
Building scope 2F
Building to land ratio 43.35 %
Floor area ratio 62.58 %
Design period 2021. 9 - 10
Construction period 2021. 10 - 2022. 7
Completion 2022. 7. 14
Principal architect Ilhwan Byeon
Project architect Ilhwan Byeon
Design team Jiyeong Byeon
Structural engineer Jewon E&C
Mechanical engineer Sinwoo ENG
Electrical engineer Songgwang E&C
Construction DEAR, Jongmoon Kim
Client Soogwang Eo, Yunhui Hong
Photographer Jiyeong Byeon
해당 프로젝트는 건축문화 2022년 10월호(Vol. 497)에 게재되었습니다.
The project was published in the October, 2022 recent projects of the magazine(Vol. 497).
October 2022 : vol. 497
Contents : RECORDS About the Changed Lifestyle and Living Space, ‘The 14th Seoul Architecture Festival’ 달라진 생활과 주거 공간에 대하여, '제14회 ‘2022 서울 건축문화제’ : NEWS / COMPETITION / BOOKS : SKETCH Free City, a Scene
anc.masilwide.com
'Architecture Project > Single Family' 카테고리의 다른 글
| Cottage Inspired by a Ship Cabin (0) | 2023.01.09 |
|---|---|
| Hygge (0) | 2023.01.03 |
| ATMOSPHERIC WALL (0) | 2022.12.29 |
| Gasan 60-9 (0) | 2022.12.22 |
| LITTLE CAPTAIN HOUSE (0) | 2022.11.28 |
마실와이드 | 등록번호 : 서울, 아03630 | 등록일자 : 2015년 03월 11일 | 마실와이드 | 발행ㆍ편집인 : 김명규 | 청소년보호책임자 : 최지희 | 발행소 : 서울시 마포구 월드컵로8길 45-8 1층 | 발행일자 : 매일



