
There is a house built along a small hill in Jinae-ri, Dong-myeon, Chucheon city. Gasan 60-9 is a house for a young couple with two children. The client moved to the suburbs of Chuncheon to be close to work, and for the education of their children, who are to enter elementary school soon, as well as to escape from the noise between floors of apartment complexes. Even in the tranquil neighborhood of Jinae-ri, the site of Gasan 60-9 has a long form stretching from east to west, as well as a hill in the east and the main access road in the south.
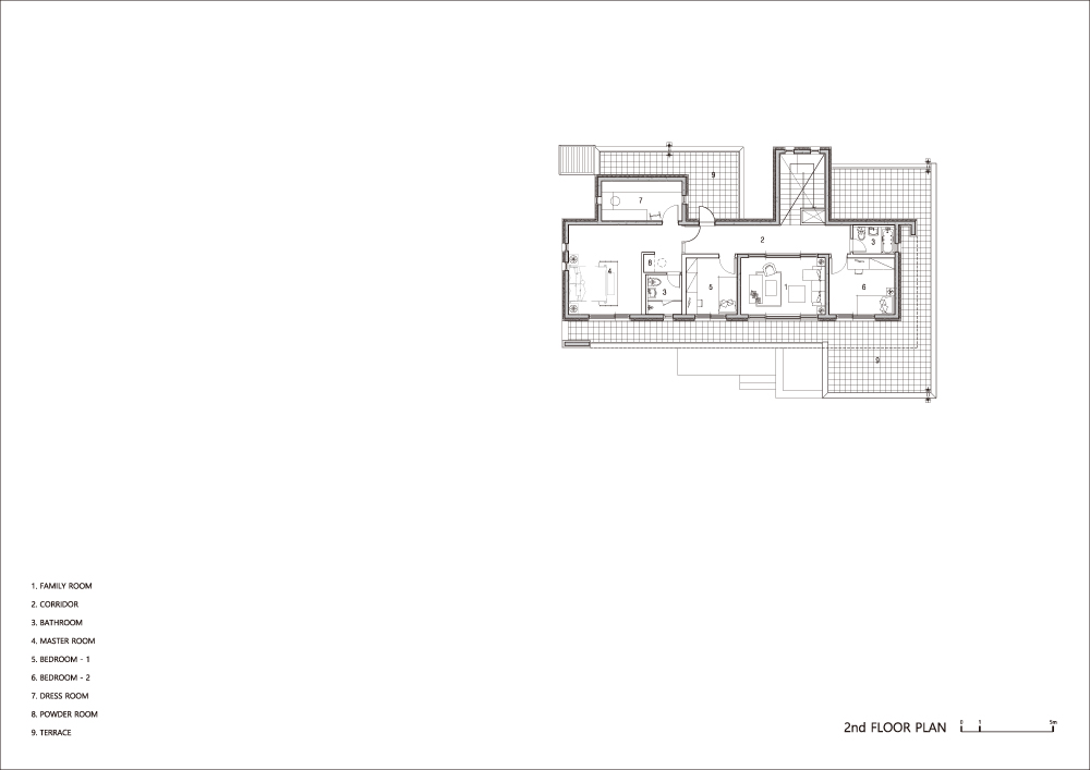
The young couple didn’t have many belongings other than their children’s things, and since they were used to urban life, the space that allowed easy management of the large house in the countryside mattered, and there had to be a yard where the client and their children, who like soccer, can run around. The first floor of Gasan 60-9 is composed around the reception and a space for guests, and the second floor has the living space for the family. Furthermore, there is also an interior parking space as well as a small pool just for the family in the deck area. The first floor can be accessed with the front entrance through the interior parking lot. The laundry room is located next to the front door so that the husband can take a shower and do the laundry right after he gets home from work, and there is a separate space for guests at the end of the hallway. The living room in the south was distinguished by giving it a difference in floor height from the kitchen, and there is a small exterior pool right next to the kitchen that allows the children to be watched over from the wife’s line of sight. The circulation from the front door of the first floor through the stairs to the second floor, the main living space, is clear and short. The second floor is the living space for the children and the couple, and the family room is the children’s education and play space for the couple. Two children’s rooms and a bedroom for the couple are arranged around this family room. In particular, all spaces on the second floor are arranged to face the south, allowing the stretched-out nature to be seen from the inside and outside through the wide terrace.
The exterior of Gasan 60-9 was decided to have a simple and clear mass that excludes any decorations or exaggerations, and to be centered around the large external space within the building. As for the materials, the use of somewhat diverse materials was avoided, and the material of the fence was also made using the same materials as the facade. The garden, a welcoming space managed by the client, is a landscape space that consists of a fountain and low hill and was considered to allow nature to be felt close to home.

가산 60-9
춘천시 동면 지내리에 야트막한 동산을 끼고 들어선 주택이 있다. 가산 60-9는 두 자녀를 키우는 젊은 부부를 위한 집이다. 건축주는 직장과 가까우며 곧 초등학교에 입학해야 하는 자녀들의 교육 문제, 더불어 아파트의 층간 소음에서 벗어나고자 춘천 근교로 이사를 왔다. 지내리의 한적한 동네에서도 가산 60-9가 들어선 땅은 동서로 긴 형상이며, 동쪽의 동산, 남쪽의 주 진입로를 가지고 있다.
젊은 부부는 자녀 용품 외에 특별히 짐이 많지 않으며, 도시 생활에 익숙했기에 전원의 큰 집을 쉽게 관리할 수 있는 공간이 중요했으며, 축구를 좋아하는 건축주와 자녀들을 위한 뛰어놀 수 있는 마당이 필요했다. 가산 60-9는 응접실과 손님을 위한 공간을 중심으로 1층이 구성되며, 2층은 가족들을 위한 생활공간이 있다. 또한, 내부 주차 공간과 데크 부분에는 가족들만을 위한 자그마한 수영장도 있다. 1층은 내부 주차장을 통해 현관으로 진입할 수 있다. 남편이 퇴근 후, 바로 샤워와 세탁을 할 수 있도록 현관 옆에 세탁실이 있으며, 복도 끝에 손님을 위한 공간을 별도 마련되어 있다. 남쪽의 거실은 주방과 바닥 높이차를 둬서 구분하며, 아내의 시선에서 아이들이 관찰되도록 주방 바로 옆에 작은 야외 수영장이 있다. 1층 현관으로부터 계단을 통해 주생활 공간인 2층까지의 동선은 명쾌하고 짧다. 2층은 자녀들과 부부의 생활공간으로 가족실은 부부를 위한 자녀들의 교육 및 놀이공간이다. 이 가족실을 중심으로 두 개의 아이 방과 부부를 위한 침실이 배치되어 있다. 특히, 2층의 모든 공간은 남향으로 배치되어 넓은 테라스를 통해 펼치진 자연을 내외부에서 눈에 담을 수 있다.
가산 60-9는 장식이나 과장을 배제하고 단순하고 명쾌한 매스 디자인과 더불어 건물 내의 넓은 외부 공간을 중심으로 외형이 정해졌다. 재료는 비교적 여러 재료의 사용을 지양하였으며 담장 또한 입면 재료와 맞춰져 있다. 건축주가 관리하는 맞이 공간인 정원은 분수대와 둔덕으로 이루어진 조경 공간으로 집 가까이에서 자연을 느낄 수 있도록 고려한 것이다.

















Architect UAD 건축사사무소 | UAD Architects
Location Jinae-ri, Chuncheon-si, Gangwon-do, Korea
Program House
Site area 990.00㎡
Building area 190.32㎡
Gross floor area 228.99㎡
Building scope 2F
Building to land ratio 19.22%
Floor area ratio 23.13%
Design period 2021. 6 - 11
Construction period 2021. 12 - 2022. 7
Completion 2022. 7
Principal architect / Project architect Oeksoon Choi
Design team Jongdae Seung, Hyesung Choi
Structural engineer Midam structural engineering
Mechanical engineer LUCKY engineering
Electrical engineer YEKANG engineering
Construction Heungyoon SON, NewWon Construction
Client Heungyoon SON
Photographer Yongsu Kim
해당 프로젝트는 건축문화 2022년 10월호(Vol. 497)에 게재되었습니다.
The project was published in the October, 2022 recent projects of the magazine(Vol. 497).
October 2022 : vol. 497
Contents : RECORDS About the Changed Lifestyle and Living Space, ‘The 14th Seoul Architecture Festival’ 달라진 생활과 주거 공간에 대하여, '제14회 ‘2022 서울 건축문화제’ : NEWS / COMPETITION / BOOKS : SKETCH Free City, a Scene
anc.masilwide.com
'Architecture Project > Single Family' 카테고리의 다른 글
| A-Dam (0) | 2022.12.30 |
|---|---|
| ATMOSPHERIC WALL (0) | 2022.12.29 |
| LITTLE CAPTAIN HOUSE (0) | 2022.11.28 |
| DOT HOUSE (0) | 2022.11.24 |
| TINI M (0) | 2022.11.23 |
마실와이드 | 등록번호 : 서울, 아03630 | 등록일자 : 2015년 03월 11일 | 마실와이드 | 발행ㆍ편집인 : 김명규 | 청소년보호책임자 : 최지희 | 발행소 : 서울시 마포구 월드컵로8길 45-8 1층 | 발행일자 : 매일



