
“Teu-in House”, a single family house located in Hopyeong-dong
Located at the southern foot of Mt. Cheonmasan,Namyangju, Hopyeong-dong is a neighborhood with the majority of apartments since the development of housing sites. The mountains are cut out aggressively by artificial lines and replaced with houses. The valley in the mountains has long since been eradicated and its footsteps are no longer visible. At the highest point of the dead-end road, civil engineering work is in full swing. The owner couple, who has many family members, lives in an apartment near the site of their house, and they say they feel sorry for their children who are trying to adapt to the existing living style. The landscape of the village surrounded by mountain ranges offers a wide open sky and the south-facing view is available through in between the houses. Considering the structure of the family, the two lots were combined and arranged.
Placing the house over before the land takes on its shape
A land which has just been created or is still undergoing a building process is faced with a series of boundaries that cannot be defined. While it is an uncertain situation around the site, one finds the elements that will not change, and arrange the house employing this context. Since it is not a dense area which requires to be sensitively searched for by cadastral lines, it has been arranged to ensure that there is a gap between the site boundaries and adjacent sites. One could also avoid awkward encounters with neighbors of the surrounding houses by finding an angle which allows for an open view and opening up the boundaries between the site and the space by pivoting the house. Rather than a direct method of enclosing a wall or fence, it is about creating a spatial relationship. One elevates the ground to allow for an unobstructed view towards the direction in which the eyes are opened, and searches the shape of the ground so that the nature can percolate through the gap..
Coexisting without being isolated from the nature
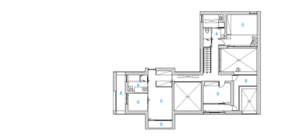
Imagine the daily life of a large family consisted of the owner couple, five children, and a cat. Even the apartment they lived in before was not small at all. Fatigue arises as the lives of a family of 10 become functionally fragmented. If one is isolated from the life created by a rational combination of apartment houses and does not move in harmony, one will be disturbed. Hence, in order to find a room to relax, one departs for a new destination away from home and enjoys traveling. The owner’s desire is to have a house where his family can relax and enjoy for daily life. In an apartment space where the density of family relationship was high, it was difficult to find a space for anyone to squeeze in. If the house were a physical and psychological form of spatial relationship, the tension of family relationship is also carried within the house. A relaxed space that releases a tense mind or atmosphere creates a gap, expands contact with natural elements, and naturally allows one to feel the changes of time. The bedrooms of the family are not arranged in parallel or according to a reasonable area, yet are distinguished for differentiated views, sunlight, and the sense of space. Consequently, the living room on the first floor remains with the nature through the courtyard, which is an external space, as an open structure rather than a walled house.

호평동 단독주택 ‘트인 집’
남양주 천마산 남쪽 자락, 호평동은 택지개발 이후로 아파트가 대다수인 동네다. 산 들은 인위적인 선들로 잘려 나가고 집들로 채워지는 중이다. 산속의 골짜기는 그 모습이 지워진 지 오래다. 막다른 길의 제일 높은 곳에 다다르면 토목공사가 한창이다. 가족 구성원이 많은 건축주 부부는 집터 근방 아파트에 살고 있는데, 기성의 주거방식에 적응하려 노력하는 자녀들이 안쓰럽다고 한다. 산줄기로 둘러싸인 마을의 풍경은 하늘이 넓게 열려있고 집들 사이로 남향 조망이 가능하다. 가족 구성을 고려해 두 개의 필지를 합하여 배치했다.
땅의 모습이 갖춰지기 전에 집을 앉히다
막 조성되었거나, 아직은 조성되고 있는 땅은 규정지을 수 없는 경계의 연속이다. 불확실한 대지 주변의 상황이지만 변하지 않을 요소를 찾고, 이를 맥락 삼아 집을 배치한다. 지적선으로 민감하게 형태를 찾아야 하는 밀도 높은 지역이 아니므로 대지 경계와 인접한 대지들 사이에 틈이 생길 수 있도록 배치한다. 열린 조망이 가능한 각도를 찾고 집을 틀어 대지 경계와 공간적인 틈을 벌리면 이웃하는 집들과 어색한 대면을 피할 수 있다. 벽이나 담장을 두르는 직접적인 방법보다는 공간적인 관계를 만드는 것이다. 시선이 열리는 방향으로 탁 트인 조망이 가능하도록 땅을 돋우고 벌어진 틈으로 자연이 스며들도록 땅의 모습을 찾는다.
자연과 격리되지 않고 공존하다
건축주 내외와 다섯 명의 자녀, 고양이까지 대가족의 일상을 상상해본다. 전에 살던 아파트도 작은 규모라고 할 수 없다. 열 식구의 삶이 기능적으로 파편화되면서 피로도가 높아진다. 공동주택의 합리적인 조합이 만드는 삶 속에 격리되어 일사불란하게 움직이지 않으면 흐트러진다. 그래서 여유를 찾기 위해 집을 벗어나 여행을 즐긴다.
건축주의 바람은 일상에서 여유를 갖고 쉴 수 있는 집이다. 가족관계의 밀도가 높았던 아파트 공간에서는 비집고 들어갈 틈을 찾기가 어렵다. 집이 공간적인 관계로 이루어진 물리적, 심리적 형태라면 가족관계의 긴장감도 집에 담긴다. 긴장된 정신이나 분위기를 풀어주는 이완된 공간은 틈새를 만들고 자연 요소와 접점을 넓히며, 자연스레 시간의 변화를 느끼게 한다. 가족들의 침실은 병렬된 구조나 합리적인 면적에 맞춰 배열하지 않고 차별적인 조망, 햇빛, 공간감을 위해 차별화 된다. 이로써 벽 구조로 막힌 집이 아닌 탁 트인 구조로, 1층의 거실은 외부공간인 마당과 하나로 통하여 자연 속에 머물게 된다.

















Architect TODOT Architects and Partners
Location Neureul-ro, Namyangju-si, Gyeonggi-do, Republic of Korea
Program Single-family housing
Site area 857㎡
Building area 169.01㎡
Gross floor area 365.29㎡
Building scope B1, 2F
Building to land ratio 19.72%
Floor area ratio 32.71%
Completion 2022. 2
Principal architect Byungkyu Cho, Seungmin Mo
Project architect Mo Seungmin
Design team Chris Cheon, Jungho So, Jaejun Lee, Keonkyu Shim
Structural engineer Delta Structure
Mechanical engineer Hanbit Safety Technology Group
Electrical engineer Chunil MEC
Construction Choon architect
Photographer Youngtaek Cheon
해당 프로젝트는 건축문화 2022년 11월호(Vol. 498)에 게재되었습니다.
The project was published in the November, 2022 recent projects of the magazine(Vol. 498).
November 2022 : vol. 498
Contents : RECORDS Architecture Week held at Yongsan Park after tearing down the wall 벽을 허물고 돌아온 용산공원에서 열린 건축주간 : NEWS / COMPETITION / BOOKS : SKETCH A rural house painted with Passion Sangria / Sangwon Kim 열정적
anc.masilwide.com
'Architecture Project > Single Family' 카테고리의 다른 글
| Lipno Lakeside Cabin (0) | 2023.02.14 |
|---|---|
| House along cul de sac (0) | 2023.02.10 |
| Hwamyeong D-House (0) | 2023.02.08 |
| Guan Zi Zai House (0) | 2023.01.11 |
| CRM House (0) | 2023.01.10 |
마실와이드 | 등록번호 : 서울, 아03630 | 등록일자 : 2015년 03월 11일 | 마실와이드 | 발행ㆍ편집인 : 김명규 | 청소년보호책임자 : 최지희 | 발행소 : 서울시 마포구 월드컵로8길 45-8 1층 | 발행일자 : 매일



