
The building is located in the heart of Bohemian Forest with a view of Lipno lake. This cabin was built on a place where an old wooden cabin used to be. It is designed to provide the perfect base for nearby mountain sports in all conditions. The design follows the urbanism of the buildings in its neighborhood and respects the height conditions in the area. The land is screened by forest from the regional railway line, which passes through the territory to the northeast. A narrower part of the Lipno lake opens to the southeast behind the track, there lies the mouth of the Vltava River.
The morphology of the house stands on several principles of Bohemian Forest architecture: rectangular floor plan, compact shape, orientation along the contour line, creation of a covered porch, and more pronounced articulation of the gable (overhang). The building is single-story with an attic. The height alignment of the eaves plane with the lintel of the windows and doors on one horizontal line is a contemporary interpretation of the cornice.
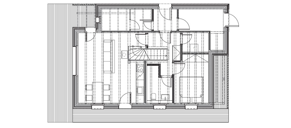
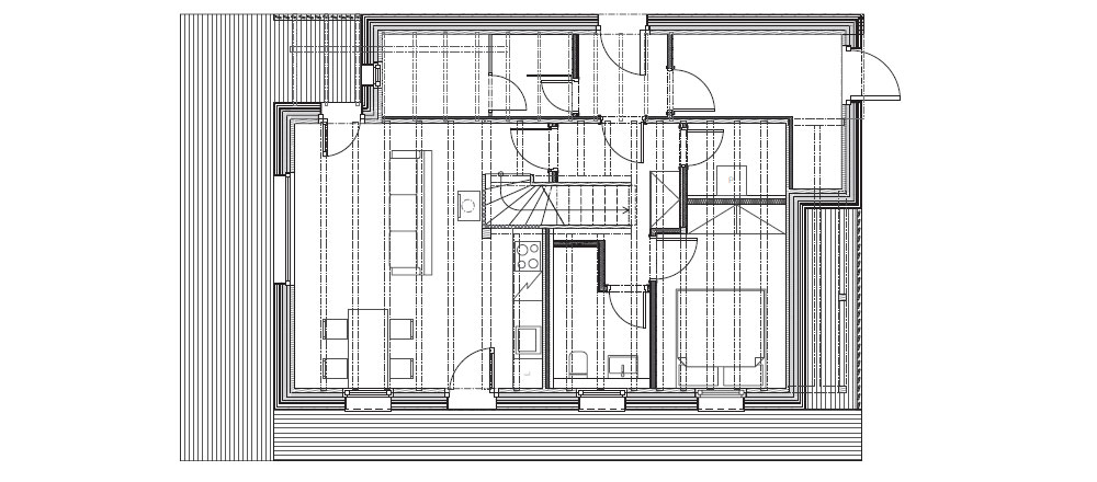
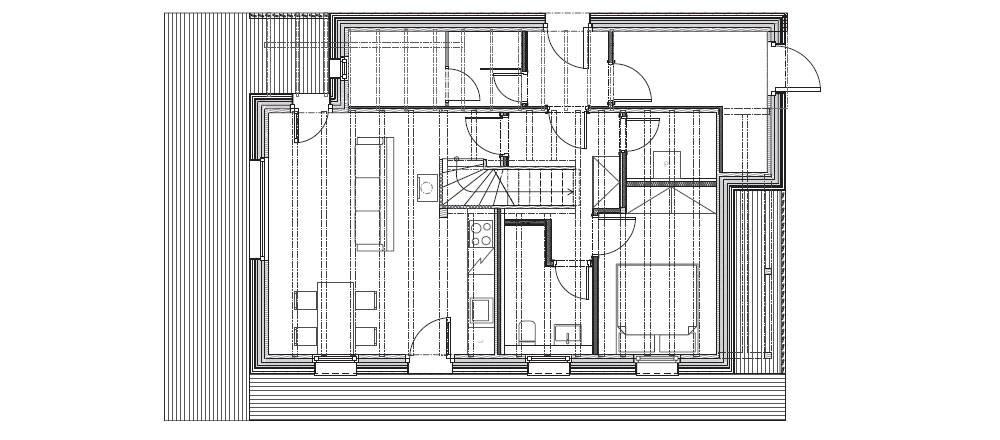
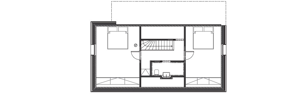
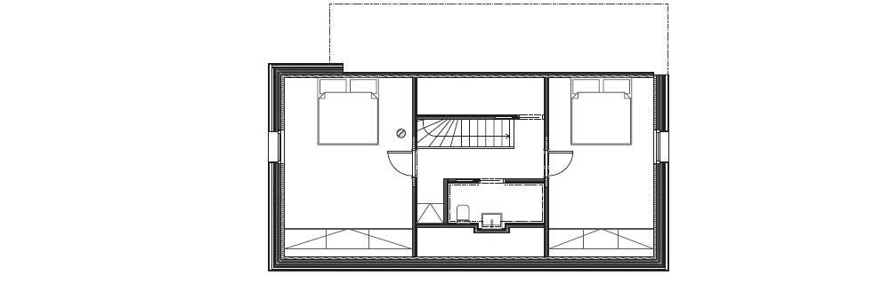
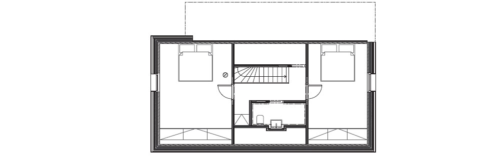
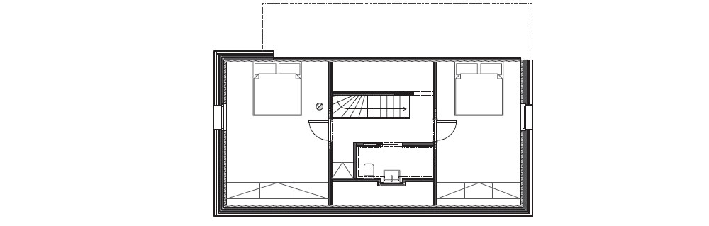
The view of Lipno lake, with two major peaks in the background, becomes the main point of the project. The living space of the house is centered around the dominant gabled square window facing toward the lake. The other windows have a direct view of the forest. The forest is present in the interior as a material, smell, and color. One small room, a bathroom, a laundry room, a small sauna, and a room for storing sports and technical equipment are located on the ground floor. The attic hides a bathroom, a pantry and two bedrooms with a circular window in the gable, framing other peaks in the area. Three sides of the house are lined by a wooden terrace, which, depending on its variable width, creates, together with a significant overhang of the roof, a space for various uses (sitting in the sun and in the shade, a sauna rest room, storage of wood and bicycles).
The building is designed as a wooden structure made of CLT panels visible in the interior. The cladding of the facade consists of vertical larch profiles, the windows are complemented by integrated sliding shutters, and the roof is sheet metal. The building was realised by a family company 3AE which worked in close collaboration with the author. Besides the final quality of the building, they also ensured a high level of detail execution. Shared values, a sense for detail and an appreciation of natural materials make the final result resonate.

리프노 호수가 보이는 보헤미안 숲의 중심에 있는 오두막은 오래된 나무 집이 있던 자리 위에 지어졌다. 이 건물은 근처에 있는 산의 스포츠를 위한 완벽한 기반을 제공하기 위해 모든 조건을 고려해 설계되었다. 설계는 인근 건물의 도시성을 따라, 지역의 높이 조건을 고려했다. 대지는 북동쪽 땅을 지나는 지역 철도와 숲으로 가려져 있다. 리프노 호수의 좁은 부분은 선로 뒤 남동쪽으로 열려 있으며, 블타바 강의 하구가 있다.
집의 형태는 직사각형 평면, 작은 크기, 등고선을 따른 방향, 지붕이 있는 현관 그리고 확연한 표현법과 같은 보헤미안 숲의 여러 건축 원칙을 따랐다. 다락방이 있는 단층의 리프노 호숫가 오두막은 처마 장식을 현대적으로 해석해, 하나의 수평선 상에 창틀과 문틀, 처마의 높이를 일정하게 두었다.
두 개의 산봉우리를 배경으로 둔 리프노 호수의 풍경이 이번 프로젝트에서 가장 중요한 포인트였다. 집의 생활 공간은 호수를 향하고 있는 사각형 창을 중심으로 구성되었다. 다른 창은 숲을 바로 볼 수 있다. 자재, 냄새와 색을 통해 내부에서도 숲을 느낄 수 있다. 1층에는 작은 방 1개와 욕실, 세탁실, 사우나와 스포츠와 기술 장비 보관실이 있다. 다락방에는 욕실, 팬트리가 있고, 원형의 창이 난 두 개의 침실은 서로 다른 산봉우리를 그림처럼 걸어두었다. 집의 세 면에는 나무 테라스가 있는데, 폭과 지붕이 돌출된 정도에 따라 다양한 공간(햇볕과 그늘에 앉기, 사우나 휴게실, 나무와 자전거 보관소)을 만든다.
CLT패널을 사용해 내부에서도 목재를 볼 수 있는 목구조로 설계되었다. 입면은 낙엽송을 수직으로 두어 윤곽을 만들고, 창문은 슬라이딩 셔터를 지붕은 금속판을 사용했다. 디테일에 대한 감각과 자연의 재료가 주는 감상은 ‘리프노 호숫가 오두막’의 최종 결과물을 한 층 더 높였다.














Architect Les Archinautes
Location Lipno, Czech Republic
Program Single family house
Building area 123㎡
Gross floor area 118㎡
Building scope 2F
Completion 2021
Photographer Petr Polák
해당 프로젝트는 건축문화 2022년 11월호(Vol. 498)에 게재되었습니다.
The project was published in the November, 2022 recent projects of the magazine(Vol. 498).
November 2022 : vol. 498
Contents : RECORDS Architecture Week held at Yongsan Park after tearing down the wall 벽을 허물고 돌아온 용산공원에서 열린 건축주간 : NEWS / COMPETITION / BOOKS : SKETCH A rural house painted with Passion Sangria / Sangwon Kim 열정적
anc.masilwide.com
'Architecture Project > Single Family' 카테고리의 다른 글
| MADEIRA HOUSE (0) | 2023.03.16 |
|---|---|
| YEOHEUNJAE (0) | 2023.02.15 |
| House along cul de sac (0) | 2023.02.10 |
| Teu-in House (0) | 2023.02.09 |
| Hwamyeong D-House (0) | 2023.02.08 |
마실와이드 | 등록번호 : 서울, 아03630 | 등록일자 : 2015년 03월 11일 | 마실와이드 | 발행ㆍ편집인 : 김명규 | 청소년보호책임자 : 최지희 | 발행소 : 서울시 마포구 월드컵로8길 45-8 1층 | 발행일자 : 매일



