
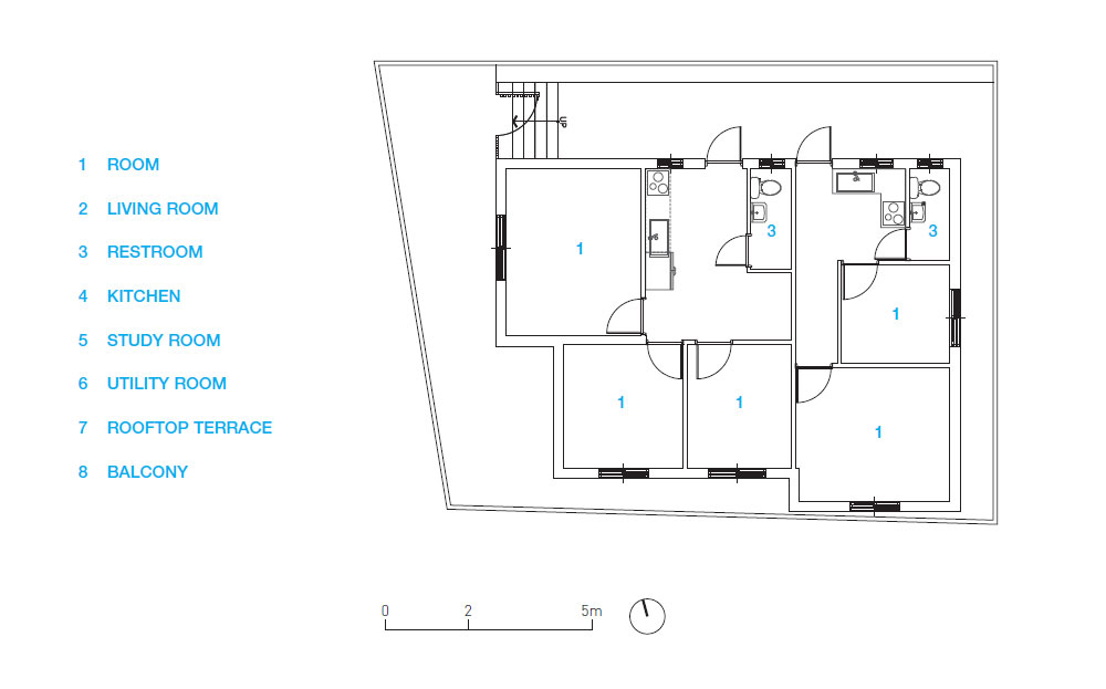
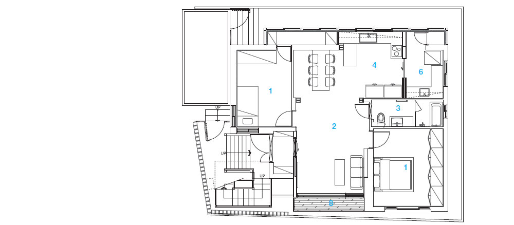
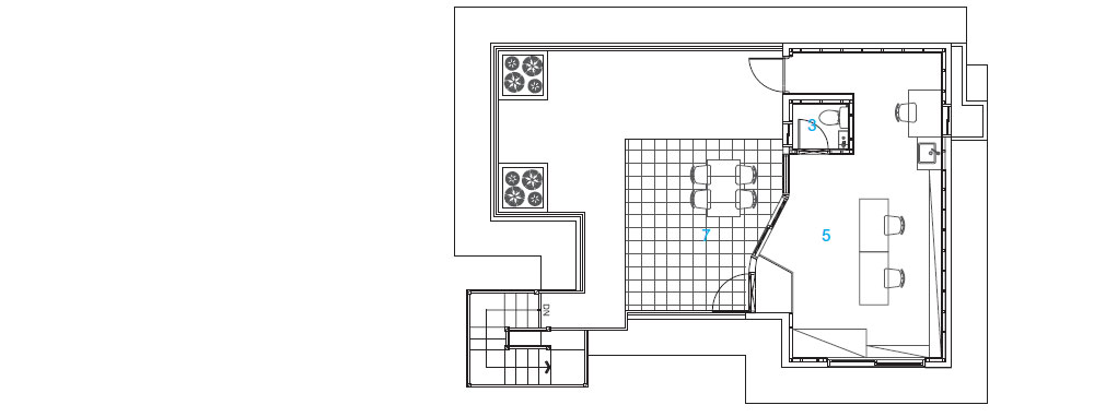
The work to build a house was a dream of the owner's family. Ten years ago, I was introduced to the client couple and did a renovation for them. The relationship continued, and one day they contacted me saying that they wanted to leave their apartment life and go live with their parents in a house with a yard. After visiting several houses with the couple, we found this house in Gwangjang-dong. It was a house with a strong structure, close to the Han River and to the university of the client and his wife, who are professors. The first floor is a space for the couple. The second floor is composed of a work/study space for their daughter, who majored in fashion design, and a space for their son, who is studying abroad, to stay when they come home. The third floor is made up of a study and a studio with a yard for the professor and his wife. This is a project that gave me great joy, in which after drawing the big picture of changing the spatial structure, the client and I happily made decisions through our discussions.
YEOHEUNJAE (與欣齋)
Yeo (與) meaning to be together; to give
Heun(欣) meaning to rejoice, to be delighted
As the name implies, it is a home where the family is happy together.

주택설계는 건축주 가족의 꿈을 이루는 작업이다. 십 년 전, 지인으로부터 건축주 부부를 소개받고 리모델링을 해드렸던 인연이 있다. 그 인연이 이어져, 어느 날 아파트를 벗어나 마당 있는 집에서 부모님을 모시고 살고 싶다며 연락을 주셨다. 건축주 부부와 함께 몇 차례 집을 보러 다니던 중 지금의 광장동 집을 만나게 되었다. 한강이 근처이고 교수이신 건축주 부부의 학교와도 가까운, 튼튼한 구조의 집이었다. 1층은 건축주 부부를 위한 공간, 2층은 패션디자인을 전공한 딸의 패션연구공간과 유학 중인 아들이 귀국 시 머물 수 있는 공간, 3층은 교수님 부부를 위한 마당 있는 서재와 화실로 만들어졌다. 공간 구조를 변경하는 큰 그림을 그린 후, 교수님들과 즐겁게 의논하며 진행된 행복한 결정들과 모습을 보며 큰 기쁨을 얻었던 프로젝트이다.
여흔재(與欣齋)
함께하다, 주다의 의미를 가진 여(與)
기뻐하다, 즐거워하다의 의미를 가진 흔(欣)
이름의 의미처럼, 더불어 함께 즐거운 집이다.













Architect JFULLCM Architect
Location Achasan-ro, Gwangjin-gu, Seoul, Republic of Korea
Program Housing
Site area 149㎡
Building area 89.35㎡
Gross floor area 280.57㎡
Building scope B1, 3F
Building to land ratio 59.97%
Floor area ratio 133.42%
Design period 2020. 6 - 10
Construction period 2020. 10 - 2021. 4
Completion 2021. 6
Principal architect Dohyun Kim
Design team Byungjoo Kim, Cheong Choi
Construction JFULL Construction
Client Jowon Park, Guiohk Lee
Photographer Hanbit Kim(BEEZY STUDIO)
해당 프로젝트는 건축문화 2022년 11월호(Vol. 498)에 게재되었습니다.
The project was published in the November, 2022 recent projects of the magazine(Vol. 498).
November 2022 : vol. 498
Contents : RECORDS Architecture Week held at Yongsan Park after tearing down the wall 벽을 허물고 돌아온 용산공원에서 열린 건축주간 : NEWS / COMPETITION / BOOKS : SKETCH A rural house painted with Passion Sangria / Sangwon Kim 열정적
anc.masilwide.com
'Architecture Project > Single Family' 카테고리의 다른 글
| House of shimonagaya (0) | 2023.03.23 |
|---|---|
| MADEIRA HOUSE (0) | 2023.03.16 |
| Lipno Lakeside Cabin (0) | 2023.02.14 |
| House along cul de sac (0) | 2023.02.10 |
| Teu-in House (0) | 2023.02.09 |
마실와이드 | 등록번호 : 서울, 아03630 | 등록일자 : 2015년 03월 11일 | 마실와이드 | 발행ㆍ편집인 : 김명규 | 청소년보호책임자 : 최지희 | 발행소 : 서울시 마포구 월드컵로8길 45-8 1층 | 발행일자 : 매일



