
The site is located in a quiet neighborhood one block inside from the roads at the point where Geumgok-daero, Waseok Marketplace, and Hwamyeong-daero meet. Large apartment village and the downtown have formed in the surroundings but only this place has formed silent and cozy like an island, and it’s an area where there are a lot of native residents who have lived since before. A little far away, it is surrounded by a tall building, so a good view is not secured, but it is located on a slope that rises to the north, so it was a warm and cozy land where sunlight filled into the south. The land has a rhombus shape that is arranged long from east to west facing south. The shape of the land was reflected in the layout of the building so that it could naturally melt into the land. The axis of the building’s arrangement went along the axis of the land, and the axis of each room inside was arranged along the direction so that all the rooms were facing south.
The road in this area is narrower than the surrounding area, so accessibility is not good, and because of that, development was being delayed. The aging houses and shops were cluttering up the city’s landscape, using colorful old paint and various colored bricks. It took a lot of thought to melt into the surrounding context, and as a result of it, warm grey toned bricks have used to naturally mingle the new house with this village and identified the tone suitable with any surrounding colors. By using white stucco, it released the heaviness which brick has and gave a rhythm to facade of the building. Warm-gray brick and curved surfaces are intended to blend naturally into the old and chaotic landscape of the neighborhood, while at the same time helping to change the atmosphere of the area to a richer and warmer atmosphere when housing is completed and acts as part of the neighborhood landscape.
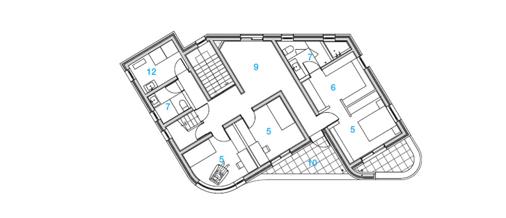
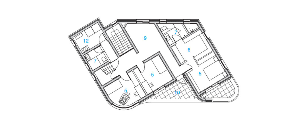
The building owner supports their parents, and they are a married couple who have 2 kids. The building owner and their parents attended the meeting together every time and adjusted each other’s opinion and made a place where 3 generations will live together. Since they wanted a yard where they could play with children while growing trees, the first floor devoted a lot of space to parking, yard, and landscaping, and the garage door on the first floor was located 2~3m inside on the narrow road as a consideration for neighbors using narrow roads. The residential space starts from the second floor, and there is a balcony integrated with the living room in the parents’ living space, and each balcony is also in the children’s room and the couple’s room, drawing communication with nature and the neighborhood. It reflects the architect’s desire to enter the old buildings with a sense of communication and respect in the materials, shapes, and spaces of the building.

대지는 금곡대로, 와석장터로, 화명대로가 만나는 지점에서 그 도로들로부터 한 블록식 안쪽에 있는 조용한 동네에 위치하고 있다. 주변에는 대규모 아파트 단지와 번화가가 형성되어 있지만 이 동네만 섬처럼 조용하고 아늑하게 형성 되어 있으며 이전부터 살던 토박이 주민이 많은 지역이다. 조금 멀리로는 높은 빌딩에 둘러 쌓여 있어 좋은 뷰가 확보되는 건 아니지만 북으로 높아지는 경사지에 위치하고 있어 주변보다 지대가 높아 남향으로 햇빛이 가득 들어오는 따뜻하고 아늑한 대지였다. 대지는 남향을 향해 동서로 길게 배치되어 있는 마름모꼴 형태를 띠고 있다. 땅의 형상을 건물 배치에 그대로 반영하여 자연스럽게 대지에 녹아 들도록 하였다. 건물의 배치의 축은 대지의 축을 따라 갔으며 내부 각 실들의 축은 향을 따라 배치되어 모든 실들이 남향을 향하도록 하였다.
이 지역은 주변에 비해 도로가 좁아 접근성이 좋지 않으며 그 때문에 개발이 늦어 지고 있었다. 노후화된 주택들과 상가들은 형형색색의 낡은 페인트와 여러가지 색의 벽돌들을 사용하며 도시의 풍경을 어지럽게 구성하고 있었다. 주변 맥락에 녹아 들기 위해 많은 고민이 필요했고, 그 결과 신축 주택이 자연스럽게 이 동네와 어우러지게 하기 위해 웜그레이톤의 벽돌을 사용하여 주변의 어느 색과도 어울리게 톤을 맞추었고 백색의 스터코를 사용하여 벽돌이 가지는 무게감을 완화 시키며 건물 입면에 리듬감을 부여하였다. 웜그레이 색상의 벽돌과 곡선의 입면은 낡고 어지러운 이 동네의 풍경에 자연스럽게 녹아 들고자 함이며 동시에 주택이 완성되고 동네 풍경의 일부로 작용할 때 이 지역의 분위기를 좀 더 풍성하고 따스하게 바꾸는데 일조하기 위한 의지이다.
건축주는 부모님을 모시고 있고 두 명의 자녀가 있는 부부이다. 미팅 때 마다 부모님과 건축주는 다 같이 참여 하여 서로의 의견을 조율하며 3대가 함께 생활할 공간을 만들어 나갔다. 자녀들과 나무를 키우며 함께 뛰어 놀 수 있는 마당을 원했기 때문에 1층 부분은 주차장과 마당, 조경에 많은 공간을 할애 하였으며 좁은 도로를 이용하는 이웃 주민들을 위한 배려로써 1층 차고문은 좁은 도로면에서 2~3m가량 들여 위치시켰다. 주거공간은 2층부터 시작하는데 부모님의 생활 공간에 거실과 통합된 발코니가 있고, 자녀들의 방과 부부의 방에도 각각의 발코니가 있어 자연과 동네와의 소통을 이끌어 내었다. 건물의 재료와 형태 그리고 공간에서 소통과 존중의 자세로 옛 건물들 사이로 들어서길 원하는 건축주의 마음이 반영되었다.

















Architect FLM architects
Location Hwamyeong-dong, Buk-gu, Busan
Program Single house
Site area 228.80㎡
Building area 137.18㎡
Gross floor area 292.59㎡
Building scope 3F
Building to land ratio 59.9%
Floor area ratio 127.88%
Design period 2021. 1 - 5
Construction period 2021. 10 - 2022. 6
Completion 2022. 7
Principal architect Joongkyu Park, Daeseo Koo
Design team FLM architects
Structural engineer In Structure
Mechanical engineer YK Engineering
Electrical engineer YK Engineering
Construction Daejang Consturction
Photographer Yongsu Kim
해당 프로젝트는 건축문화 2022년 11월호(Vol. 498)에 게재되었습니다.
The project was published in the November, 2022 recent projects of the magazine(Vol. 498).
November 2022 : vol. 498
Contents : RECORDS Architecture Week held at Yongsan Park after tearing down the wall 벽을 허물고 돌아온 용산공원에서 열린 건축주간 : NEWS / COMPETITION / BOOKS : SKETCH A rural house painted with Passion Sangria / Sangwon Kim 열정적
anc.masilwide.com
'Architecture Project > Single Family' 카테고리의 다른 글
| House along cul de sac (0) | 2023.02.10 |
|---|---|
| Teu-in House (0) | 2023.02.09 |
| Guan Zi Zai House (0) | 2023.01.11 |
| CRM House (0) | 2023.01.10 |
| Cottage Inspired by a Ship Cabin (0) | 2023.01.09 |
마실와이드 | 등록번호 : 서울, 아03630 | 등록일자 : 2015년 03월 11일 | 마실와이드 | 발행ㆍ편집인 : 김명규 | 청소년보호책임자 : 최지희 | 발행소 : 서울시 마포구 월드컵로8길 45-8 1층 | 발행일자 : 매일



