
The dictionary meaning of “Borrowed Landscape” comes out as “a technique that does not go against nature and uses the surrounding landscape as a material that constitutes the landscape (source: Korean open dictionary).”
There are many ways to plan with the conditions and programs of the site, but this project has become especially focused on the site, and it has come to consider how architecture can intervene between Halla Mountain and Yeongju Mountain. However, since it contributes to the scenery but does not want to interfere, the building was placed on the axis, and the angle was carefully set so as not to block the view.
368 Oreum (Volcanoes Cones) are irregularly distributed around Halla Mountain, making Jeju another landscape. On the other hand, Yeongju Mountain was located, and about 200 Oreum visible from the site were scattered and meandering. The work of planning construction in the garden where horses were grazing and grazing was to go beyond capturing this landscape and become a material for the landscape. In other words, it was an attempt to create a new landscape with borrowed landscape.
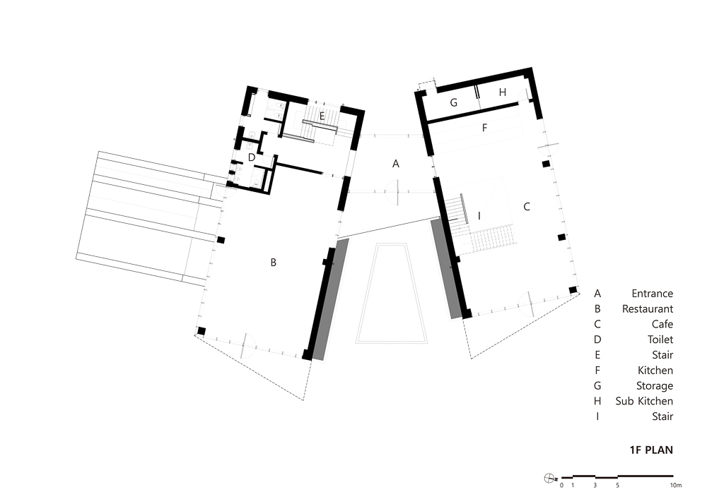
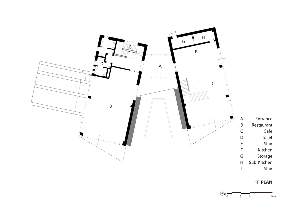
The center of the building, which consists of two 120 pyeong buildings, consists of the entrance and the hall against the backdrop of Halla Mountain and Yeongju Mountain, and serves to combine them into one building. The two masses give a clear direction rather than the meaning of connection, making it a subject that gives the meaning of the building’s Yeongju Mountain and Halla Mountain, which are reflected through windows, are located in the courtyard water space. The water in the middle becomes a mountain, sometimes a sky, and captures nature as it is. Place a wall to emphasize the axis and turn the two buildings to bring Hallas Mountain closer. For the wall, a pine board is placed in a mold and concrete is poured to make a rough wall rather than a smooth wall. It creates a rough wall naturally made with the passage of time and wind, not an expression of physical properties that are heterogeneous to the surrounding environment. The wall serves as a visual frame as well as a role of dividing each program. Through the wall, it was blocked and opened by the architect intended. The open space becomes a window and connects the inside and outside to capture the surrounding Oreum. The oak tree, which was the owner of the site, becomes the background of the gallery and assimilates with the landscape to create a root view.
Even when looking at the same scenery, the viewer’s feelings change in proportion to the length of time he or she stays. You might think that the longer you stay and the more you stay, the more you get used to it, but depending on various factors such as season, time, weather, wind, and cloud shape, it gives you different emotions and inspiration. Over time, the architectural landscape will change according to these factors. We try to be an architecture that allows the occupants to see the landscape by incorporating the changing time.

프레임즈 오브 리플렉션
‘차경(借景)(Borrowed Landscape)’의 사전적 의미는 ‘자연에 거스르지 않고, 주위의 풍경을 그대로 경관을 구성하는 재료로 활용하는 기법(출처: 우리말 샘)’이라고 나온다.
프레임즈오브리플렉션은 한라산과 영주산 사이 대지에서 건축이 끼어들 방법을 고민한 결과물이었다. 풍광에 기여는 하되 간섭하고 싶지 않기에 축선상에 배치된 건물이 시선을 가로막지 않는 앵글을 가진다.
제주는 368개의 오름이 불규칙적으로 분포되어 있으며, 그중 대지에는 한라산과 영주산 축을 중심으로 약 200여개의 오름이 산재한 모습을 볼 수 있다. 말들이 방목되어 풀을 뜯던 동산에 건축을 계획하는 작업은 이 풍경을 담는 것을 넘어, 풍경의 재료가 되도록 하는 것이었다. 즉, 차경으로 새로운 경관을 만드는 작업을 시도한 것이다.
두 동으로 구성된 건물의 중심엔 한라산과 영주산을 배경으로 입구와 홀로 구성하고 하나의 건물로 묶는 역할을 하게 한다. 두 매스는 연결의 의미보단 명확한 방향성을 주어 이 건물이 존재하는 의미를 주는 주제가 된다. 창으로 비치는 영주산과 한라산은 중정 수공간에 담아 자리한다. 중정의 물은 산이 되고, 때론 하늘이 되기도 하며 자연을 그대로 담아낸다. 벽을 두어 축을 강조하고 두 동을 틀어 멀리 있는 한라산을 가깝게 오도록 한다. 벽은 거푸집 속에 송판을 대어 넣고 콘크리트를 부어 매끈한 벽이 아닌 거친 벽을 만든다. 주변 환경에 이질적인 물성의 표현이 아닌 시간의 흐름과 바람으로 자연스레 만들어진 거친 벽을 만든다. 벽은 각 프로그램을 나누는 역할과 동시에 시각적인 프레임의 역할도 한다. 열린 공간은 창이 되어 안과 밖을 이어 주변의 오름을 담는다. 사이트의 주인이었던 참나무는 갤러리의 배경이 되고 풍경과 동화되어 근경을 만들어 준다. 같은 풍경을 보더라도 보는 사람으로 하여금 머문 시간에 비례하여 느끼는 감정이 달라진다. 오래 머물수록 그리고 자주 머물수록 어느 정도 익숙해졌다고 생각할 수 있었지만, 계절과 시간, 날씨, 바람, 구름의 형태 등 다양한 요소에 따라 또 다른 감정을 주고 영감을 준다. 프레임즈오브리플렉션은 시간이 흐르면서 건축의 풍경이 요소들에 따라 변하며 머무는 사람에게 변화하는 시간이 담긴 풍경을 보여주는 공간이다.


















Architects JNDA ; June and Design Associates │ (주)제이앤디에이건축사사무소
Location Beonyeong-ro, Pyoseon-myeon, Seogwipo-si, Jeju-do, Republic of Korea
Program Commercial & Gallery
Site area 3,273㎡
Building area 522.48㎡
Gross floor area 991.70㎡
Building scope B1, 2F
Building to land ratio 15.96%
Floor area ratio 27.48%
Design period 2016. 11 - 2019. 8
Construction period 2019. 3 - 2021. 4
Completion 2021.04
Principal architect Seungjune Lee
Project architect Seungjune Lee
Design team Heegeun Lee, Namsoo Ko(PM), Wonbong Lee, Byoungho Park, Mihyeon Hwang
Structural engineer AJU Structure ENG
Mechanical engineer Dongbang MEC
Electrical engineer GK ENG
Construction Cheonma Construction
Client Yoon Han
Photographer Joonhwan Yoon
해당 프로젝트는 건축문화 2022년 7월호(Vol. 494)에 게재되었습니다.
The project was published in the July, 2022 recent projects of the magazine(Vol. 494).
July 2022 : vol. 494
Contents : RECORDS I LIVE ALONE AND TOGETHER 나 혼자, 그리고 같이 산다 “SPACE COORDINATOR”, AN EXPERIMENTAL AND INNOVATIVE DISCOURSE THAT REVOLUTIONIZES THE CITY 도시를 새롭게..
anc.masilwide.com
'Architecture Project > Single Family' 카테고리의 다른 글
| HILLTOP HOUSE (0) | 2022.10.26 |
|---|---|
| BARO HOUSE (0) | 2022.10.26 |
| MB HOUSE (0) | 2022.09.29 |
| CHELMER RIVER HOUSE (0) | 2022.09.28 |
| HOUSE C (0) | 2022.09.07 |
마실와이드 | 등록번호 : 서울, 아03630 | 등록일자 : 2015년 03월 11일 | 마실와이드 | 발행ㆍ편집인 : 김명규 | 청소년보호책임자 : 최지희 | 발행소 : 서울시 마포구 월드컵로8길 45-8 1층 | 발행일자 : 매일



