
The house has been built on top of a hill that was generated during land development at the foot of mountain. The housing site occupies about 830㎡, and is situated in a location with nice panoramic views of nearby mountains. The approach that looks like a forest path branches off from a road at the foot of the hill, and leads to the house entrance.
The client requested to create extraordinariness in everyday living while making the best use of the location. We then planned a courtyard house that faces open towards the mountains as a borrowed scenery. The building is composed of a horizontally-emphasized voluminous shape and a wall surrounding the courtyard. The height of the wall has been determined so as to view great mountain ridges from the rooms. It has been designed to be integrated in the building, which has created beautiful skyline, making itself as part of the new scenery and raising further the scenic value that resides in the location.
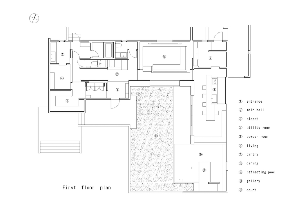
The graveled courtyard that has no planting has been designed to be as a blank space. With the background landscape as the borrowed scenery, it makes you feel extended tranquil space. To produce extraordinariness, a space under the eaves has been designed to provide a water basin facing the courtyard and a room. Visually connecting inside with outside, it appears differently every second and thus is used as a gallery. The landscape reflected in the water and/or light and shade, together with the objects placed there, creates delicate scenes. The independent partition wall that catches eyes from inside the room disperses light from the skylight, making the space more impressive. The bench, wall and ceiling are continued beyond the glass partition that separates inside from outside. They create depth in the scene and produce flows between inside and outside.
The building takes in landscapes and external environment. Each individual room utilizes clear sightlines and natural light, creating a continuous space while loosely segmented. The house that appears tranquil but fluid will continue to produce fresh and extraordinary space experiences in daily life.

힐탑 하우스
힐탑 하우스는 산기슭의 토지 개발 과정에서 만들어진 언덕 위에 지어졌다. 약 830㎡의 대지는 주변의 산과 풍경이 한 눈에 들어오는 곳에 있는데, 언덕 기슭의 도로에서 갈라진 숲길을 따라가면 집의 대문에 도착한다.
건축주는 대지를 최대한 활용해, 일상 생활이 특별해지는 공간을 만들어 달라고 요청했다. 요청에 따라 주변의 풍경을 고스란히 가져온 산을 향해 열린 안뜰이 있는 집을 계획했다. 수평으로 뻗은 볼륨감 있는 건물은 중정을 둘러싸고 있는 벽으로 구성했다. 각 공간에서 거대한 산등성이를 볼 수 있도록 벽의 높이를 결정했고, 건물에 통합되도록 했다. 지붕선은 그 자체가 새로운 풍경의 일부가 되었고, 더 아름다운 풍경을 만들어냈다.
식물 없이 자갈만 깔린 마당은 여백을 보여준다. 주변의 풍경을 고스란히 담아내는 마당에서는 고요함을 느낄 수 있다. 처마 아래, 안뜰과 방을 마주보는 수공간은 일상 속 특별함을 만들어 주며, 내부와 외부를 시각적으로 이어, 시시각각 다르게 보이는 갤러리에 있는 듯한 느낌을 준다. 물에 비친 풍경, 빛과 그림자는 주변 오브제와 함께 섬세한 장면을 연출한다. 내부에서 시선을 사로잡는 칸막이 벽은 채광창을 통해 들어오는 빛을 분산시켜 더욱 인상적인 공간을 만든다. 내부와 외부를 나누는 유리 파티션 너머로 벤치, 벽, 천장을 줄지어 두어 깊이를 만들고, 내부와 외부 사이의 흐름을 만들어냈다.
이 건물은 풍경과 주변 풍경을 담고 있다. 각 공간은 깨끗한 시선과 자연 채광을 이용해 여유롭게 나누어진 느낌이 들면서도 연속적인 공간을 만들어낸다. 동적이면서도 고요함이 느껴지는 이 집은 일상 속에서 신선하고 특별한 경험을 계속해서 만들어낼 것이다.






























Architect FORM│Kouchi kimura Architects / 폼│코우치 기무라 아키텍츠
Location Shiga, Japan
Program Single family house
Site area 828.57㎡
Gross floor area 232.15㎡
Building scope 2F
Completion 2022
Photographer Norihito Yamauchi
해당 프로젝트는 건축문화 2022년 7월호(Vol. 494)에 게재되었습니다.
The project was published in the July, 2022 recent projects of the magazine(Vol. 494).
July 2022 : vol. 494
Contents : RECORDS I LIVE ALONE AND TOGETHER 나 혼자, 그리고 같이 산다 “SPACE COORDINATOR”, AN EXPERIMENTAL AND INNOVATIVE DISCOURSE THAT REVOLUTIONIZES THE CITY 도시를 새롭게..
anc.masilwide.com
'Architecture Project > Single Family' 카테고리의 다른 글
| BRICK VEIL (0) | 2022.10.28 |
|---|---|
| CANAL HOUSE HUMBEEK (0) | 2022.10.27 |
| BARO HOUSE (0) | 2022.10.26 |
| FRAMES OF REFLECTION (0) | 2022.10.21 |
| MB HOUSE (0) | 2022.09.29 |
마실와이드 | 등록번호 : 서울, 아03630 | 등록일자 : 2015년 03월 11일 | 마실와이드 | 발행ㆍ편집인 : 김명규 | 청소년보호책임자 : 최지희 | 발행소 : 서울시 마포구 월드컵로8길 45-8 1층 | 발행일자 : 매일



