
Immersed in the greenery yet located in the heart of the city, a few minutes from iconic sites of contemporary Rome such as the Auditorium National Museum of the 21st century arts by Zaha Hadid, the architectural firm Alvisi Kirimoto has completed the interiors and the design of the outdoor spaces of a farmhouse rebuilt on the volume of the existing building, firmly anchored on a hill overlooking the Inviolatella Borghese park, north of the capital. For the owners, it was important to have a home well integrated into the landscape, with bright environments and a strong connection with the outside, where nature can be enjoyed without relinquishing the vibrant pace of the city. This welcoming, open house was designed primarily for moments of conviviality with friends, but also to host the atelier of the owner. The archetypal shape of the farmhouse is balanced by the contemporary interiors, which are spread over three floors, in which the architects wanted to enhance the feeling of freedom and space, exploiting the height of the ceilings, limiting the number of walls and leaving the perimeter permeable with a series of French doors leading to a large garden.
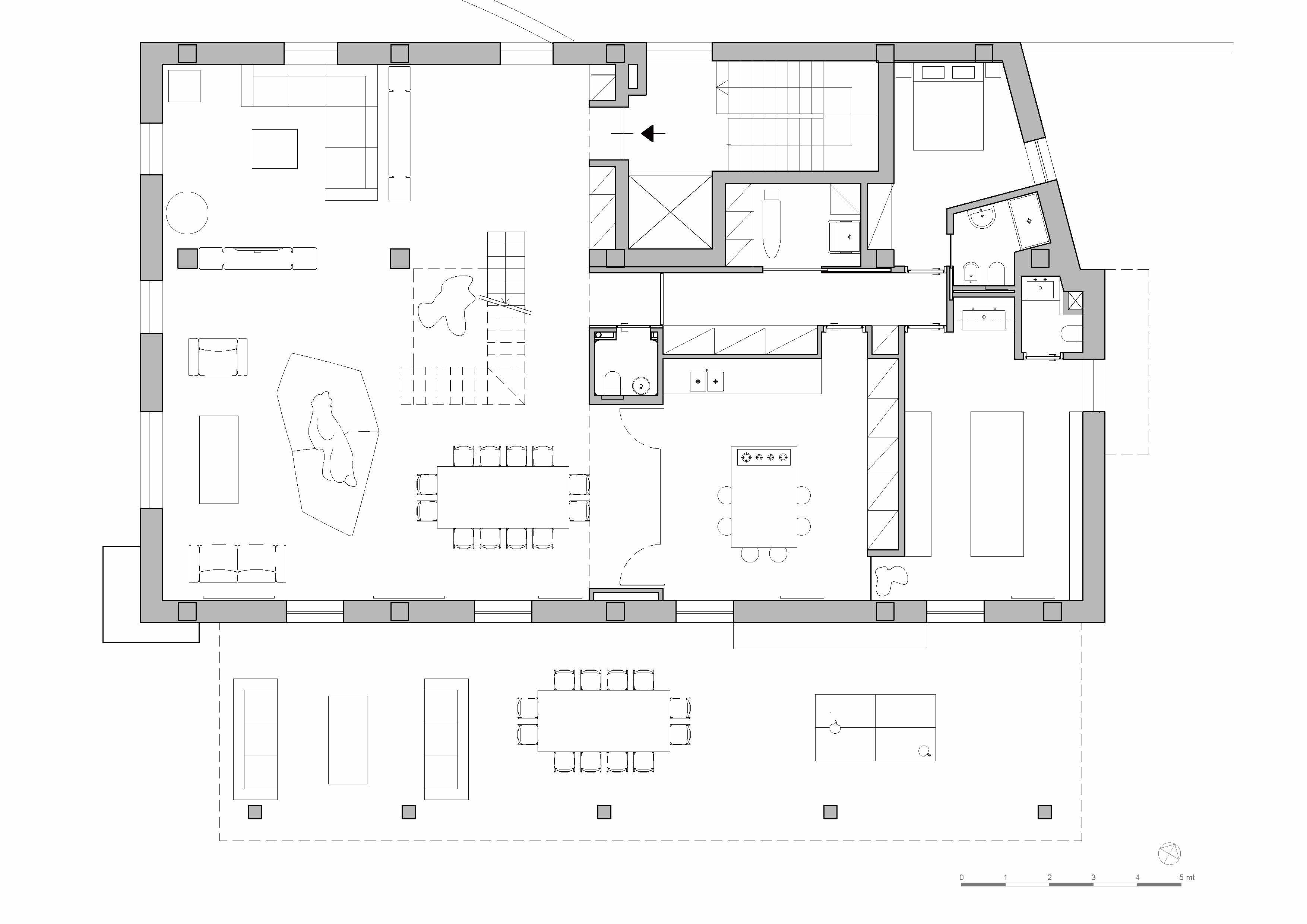
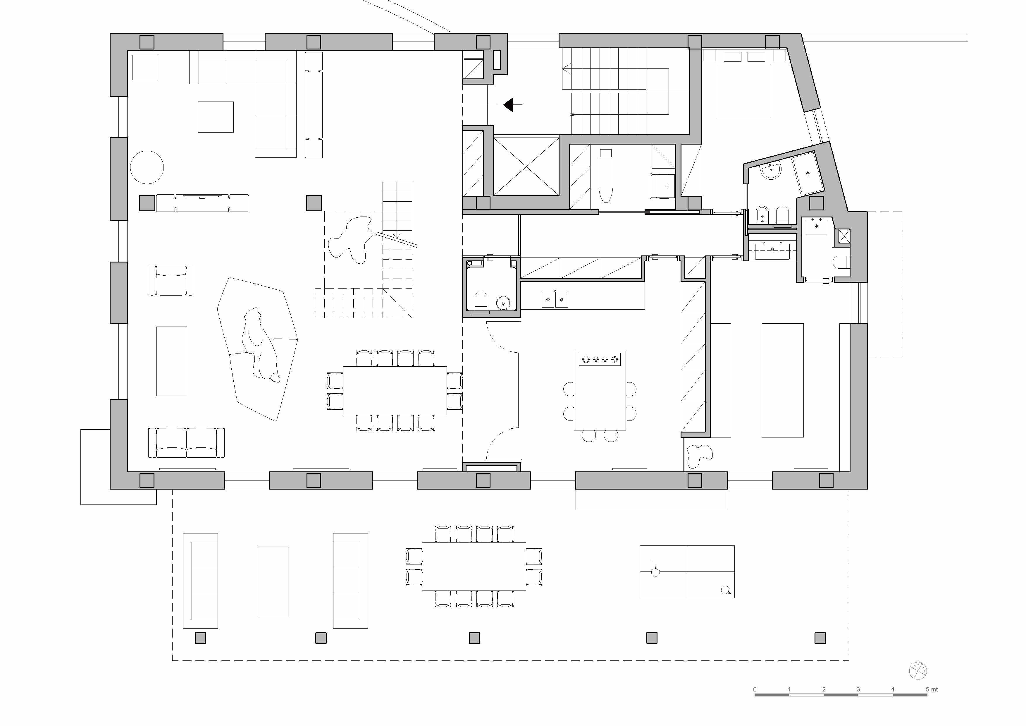
The ground floor is designed as an informal space, with a large living room that houses a TV area with a custom-designed bookcase in natural wood and black iron supports, and a dining area and open kitchen entirely in stainless steel with a central black island, shielded by a stained-glass window. From its central position, the scenic staircase dominates, made entirely of natural iron treated with a slender central support leg and a single sheet of micro-perforated metal sheet that constitutes the steps and the parapet. Light and transparent, the staircase, with its permeable skin, offers unusual perspectives and invites appreciation of the entire stairwell, which culminates on the top floor with a large skylight. The layout is completed by the owner's laboratory, and a series of accessory spaces, including the laundry room and the guest bathroom, treated with a corten-effect micro cement finish that introduces an additional material element on the ground floor, where ceilings and white walls highlight the structure of the pillars deliberately left in exposed concrete.
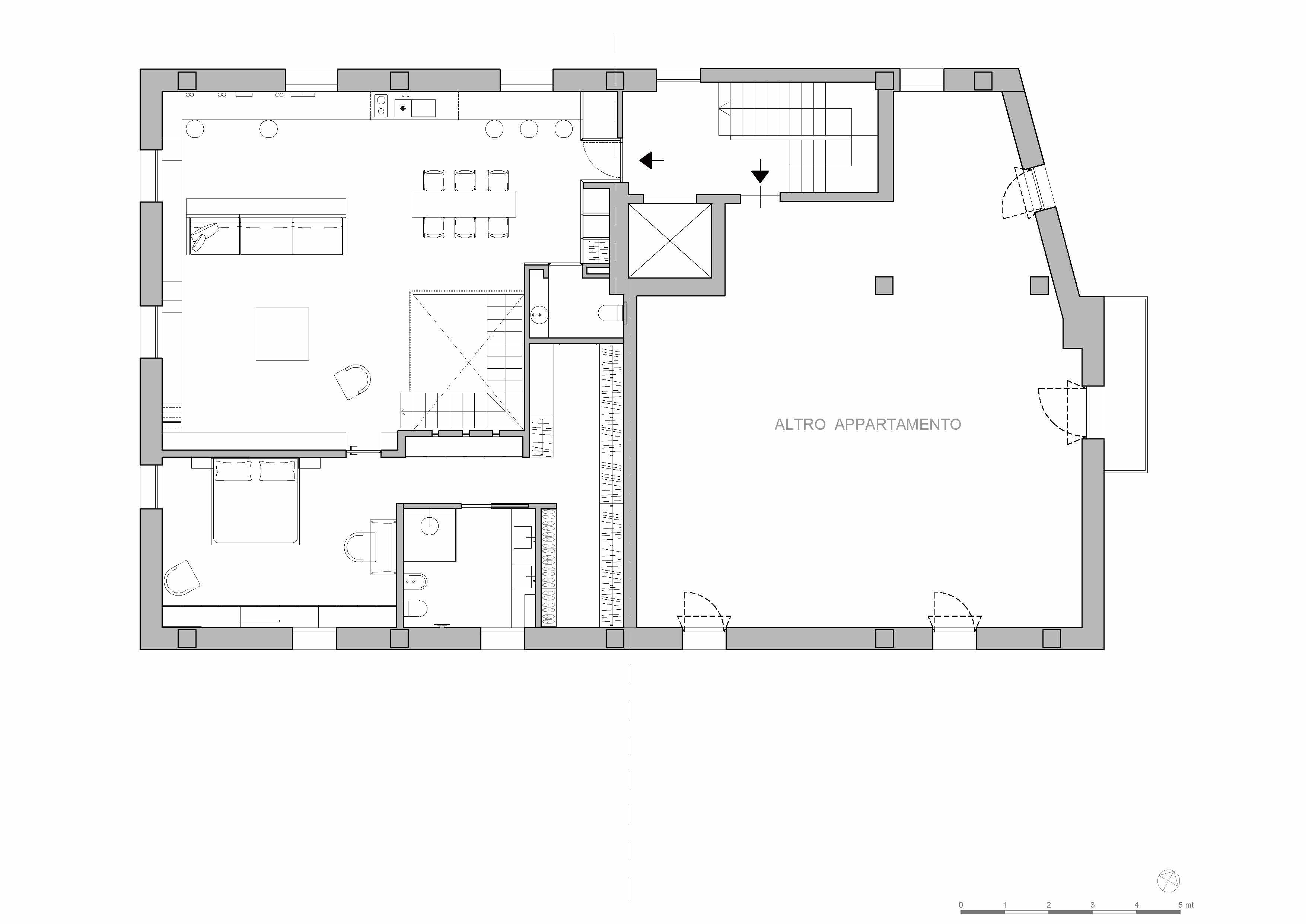
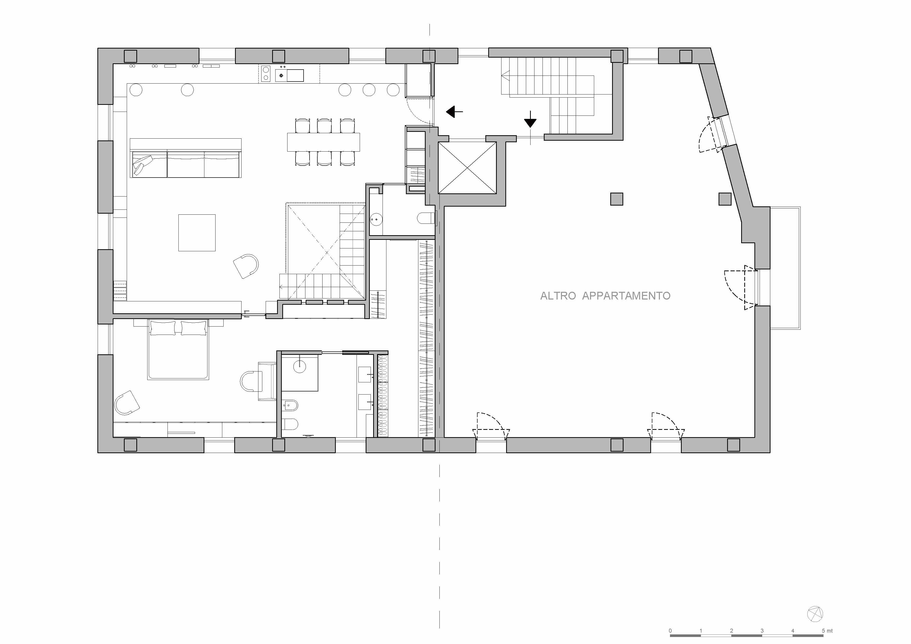
The same colour choices and finishes are repeated on the first floor, which is dedicated to the children and characterized by an extra note of colour in its yellow ceilings. Along a corridor with a balcony overlooking the staircase, are the retractable doors of the bathrooms and the four bedrooms, with their refined custom-designed furnishings, from bookcases to desks, from blackboard walls to hangers. Wandering further, visitors access an extensive living and study area with a guest bathroom, which acts as a filter for the area reserved for the couple, with a double bedroom with custom-made furniture in OSB treated with glossy green lacquer, a bathroom and a walk-in closet. The top level has a highly material character: the floor, in grey micro-cement contrasts with the pitched roof with wooden trusses and exposed tiles. A natural OSB tape, treated with a transparent protective coating, and the upper shelf covered in treated black iron, winds along the whole room, wrapping it on three sides. From suspended furniture for the TV, the ribbon transforms into a magazine rack, becomes a bench, folds to take the shape of a chaise longue, rises to become a work surface, then a flap top that conceals a kitchen with sink and stove top, which finally, at 90°, becomes the covering of the opening door of a piece of furniture. The porch, designed with a living area and a dining area near the kitchen, blurs the boundaries between inside and outside. The garden with English lawn houses the vegetable garden with corten tubs, projected onto the urban landscape.

씨 하우스는 수도 북쪽의 인비올라텔라 보르게즈 공원이 내려다 보이는 언덕에 자리잡은 오래된 농가이다. 소유자들에게는 도시의 활기찬 속도를 포기하지 않고 자연을 즐길 수 있는 밝은 환경과 외부와의 강한 연결고리가 있는 경관에 잘 통합된 집을 갖는 것이 중요했다. 이 환대하는 오픈 하우스는 주로 친구들과 즐거운 시간을 보내기 위해 설계됐지만, 거주자의 작업실을 위해 위해 또한 설계됐다. 농가의 전형적인 형태는 건축가가 자유와 공간의 느낌을 유지하며 세 개의 층에 모두 현대식 인테리어를 접목하기로 했다. 또한, 천장의 높이를 이용하여, 벽의 수를 제한하고, 넓은 정원으로 이어지는 일련의 프랑스 문으로 주변이 스며들 수 있도록 했다.
일 층은 자연 목재와 검정 철재 지지체로 이뤄진 맞춤제작 책꽂이가 있는 TV영역을 주관하는 거대한 거실로 된 비격식 공간으로써 설계되었다. 중앙 위치에서, 경치가 좋은 계단은 전체적으로 자연 철재로 만들어져 있고, 가느다란 중앙 지지 다리와 계단과 난간을 구성하는 작은 구멍이 뚫린 금속판 한 장으로 이루어져 있다. 가볍고 투명한 이 계단은 투과성이 있는 외피로 특이한 시야를 제공하며 커다란 천창으로 꼭대기 층에 정점을 이루는 계단 전체를 감상할 수 있다. 건물주의 작업실, 세탁실, 손님용 화장실 등 부속 공간이 배치됐으며, 천장과 흰 벽을 노출하여 기둥의 구조를 강조하도록 코르텐으로 마감됐다.
계단을 내려다보는 발코니가 있는 복도를 따라 화장실에는 접이식 문들이 있고, 책장부터 책상까지, 칠판으로 된 벽부터 행거까지 그 정제된 맞춤 제작 가구들이 있는 네 개의 침실들이 있다. 더 멀리 헤매다 보면, 방문객들은 커플들을 위해 예약된 영역의 필터 역할을 하는 손님용 화장실과 광택이 나는 녹색 옻칠로 처리된 OSB의 맞춤 가구가 있는 더블 침실, 욕실, 워크인 옷장이 있는 넓은 거실과 서재가 있는 영역에 접근할 수 있다. 꼭대기 층은 회색 마이크로 시멘트 바닥은 나무 트러스와 노출된 타일이 있는 지붕과 대비된다. 투명한 보호 코팅으로 처리된 천연 OSB 테이프와 마감된 검은 철로 덮인 상단 선반이 방 전체를 따라 감겨 세 면을 감싼다. 현관은 생활공간과 주방 근처 식당공간으로 설계돼 안팎의 경계를 흐린다. 도시 경관에 투영된 영국식 잔디밭이 있는 정원은 코르텐 통이 있는 채소밭도 있다.


























Architects Alvisi Kirimoto
Location Rome, Italy
Completion 2020
Principal architect Alvisi Kirimoto
Design team Massimo Alvisi, Junko Kirimoto, Chiara Quadraccia
Furnishing Opificio Lauchli Custom-made
Furniture Alvisi Kirimoto
Suppliers Joinery_Marcello Manieri / Metal works_Massimo de Frussi / Kitchen_Cecchi Cucine / Lighting_Telmotor S.p.a. Roma / Sanitary taps and fittings_Contact Design-Roma / Micro-cement walls and cladding_Il Cementificio Roma
Contractor Silex S.r.l.
Photographer Serena Eller Vainicher
May 2022 : vol. 492
Contents : RECORDS THE STORY OF THE CITY THAT PUBLISHERS DREAMED OF, RELEASED 꿈꾸던 도시가 들려주는 이야기, <위대한 계약: 파주, 책, 도시> 개봉 : NEWS / COMPETITION / BOOKS : SK..
anc.masilwide.com
'Architecture Project > Single Family' 카테고리의 다른 글
| MB HOUSE (0) | 2022.09.29 |
|---|---|
| CHELMER RIVER HOUSE (0) | 2022.09.28 |
| CANAL HOUSE HUMBEEK (0) | 2022.09.02 |
| CAGE HOUSE (0) | 2022.07.26 |
| PS HOUSE (0) | 2022.07.25 |
마실와이드 | 등록번호 : 서울, 아03630 | 등록일자 : 2015년 03월 11일 | 마실와이드 | 발행ㆍ편집인 : 김명규 | 청소년보호책임자 : 최지희 | 발행소 : 서울시 마포구 월드컵로8길 45-8 1층 | 발행일자 : 매일



