
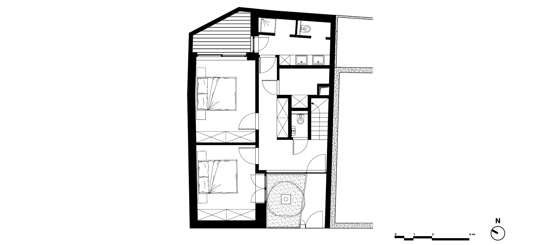
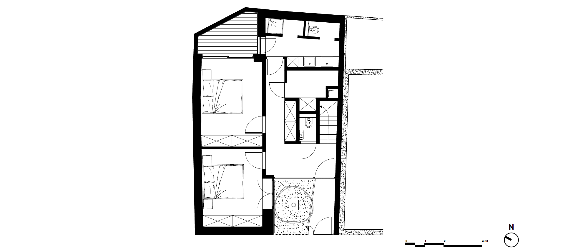
A small residence is inserted with originality among the houses overlooking the Brussel-Scheldt Maritime canal that splits the small town of Humbeek, part of the municipality of Grimbergen, in the province of Flemish Brabant in Belgium. In emphasizing the relationship with the canal, the project of this house draws upon an original spatial configuration based on the definition of a new relationship between the inside and outside. Humbeek Canal House was created to substitute a pre-existing building and makes the most of the available surface area by respectfully placing itself within the profile defined by the row of residential buildings facing the canal, complying to the surrounding gabled roofscape. The architect worked on the volume and distribution of space, emptying part of the original envelope, reversing the program by placing the living area upstairs and the sleeping areas on the ground floor, working on a careful redefinition of the boundaries between indoors and outdoors. The building recedes, resulting in an introverted facade that is organized around a new open space created by the volume subtraction. The project thus determines an unexpected spatial layout consisting of an entrance courtyard on the ground floor, which acts as a filter between the street and the house, matched by a small garden at the back of the house. It is a sort of “Japanese courtyard”. The idea is that of a small secret garden, to be discovered beyond the gate that separates it from the road along the canal. The courtyards also help to determine a spatial continuity between the ground floor and the upper floor, where the living quarters are arranged. The staircase that can be accessed from the entrance courtyard leads to the upper floor and unfolds adjacent to the entrance courtyard, leading to the discovery of the canal view. At this point, the living room projects and expands to the outside through a terrace that brings air and light inside. The relationship established between the interiors, the courtyards and the outdoor spaces helps to define an ideal connection between the two floors and to give the entire intervention a spatial continuity that reveals at every turn a new relationship with the outside.

벨기에 플랑드르 브라반트주, 그림베르겐 지방의 작은 마을인 훔빅은 브뤼셀-셸드 운하(Brussel-Scheldt Maritime Canal)가 가로지르고 있는 곳이다. 이 운하 옆으로 빼곡하게 들어선 주택들은 비슷한 모양을 하고 있다. 훔빅 커널하우스 역시 운하 옆에 들어선 주택들 중 하나로, 외부 공간과 내부 공간의 관계에서 새로운 정의를 바탕으로 설계된 독창적인 주거공간이다. 훔빅 커널하우스는 표면적으로 보기에는 주변의 박공 지붕을 가진 주택들을 따르지만, 내부를 들여다보면 정해진 면적 안에서 재배치된 공간들로 이 집만의 독특함을 가진다. 건축가는 원래 있었던 공간의 일부를 비워내면서 새로운 주거 공간을 재정의했다. 생활공간을 2층에, 침실은 1층에 배치한 것이다. 이러한 배치는 건물이 뒤쪽으로 후퇴되면서 만들어진 새로운 빈 공간이 만들어졌기 때문이다. 이 열린 공간은 내향적인 담벼락 같은 벽이 형성되어 있어, 밖에서는 들여다볼 수 없는 공간이다. 이렇게 거리와 집 사이의 완충 효과를 주는 공간은 1층의 입구에서부터 이어지며, 안뜰, 집 뒤에 있는 작은 정원과도 자연스럽게 이어진다. 마치 일본식 정원 같은 이 안뜰은 문을 지나면서 거주자들만 만날 수 있는 작은 비밀 정원이다. 1층의 침실과도 연결되며, 안뜰에서 접근할 수 있는 계단은 바로 위층으로 이어져 운하 풍경을 즐길 수 있다. 거실에 연결된 테라스는 공기와 빛을 내부로 끌어들이고, 외부의 풍경은 투사하며 공간의 시각적 감각을 확장한다. 내부, 안뜰, 야외 공간 사이에 긴밀하게 구축된 관계를 통해 두 층 사이의 이상적인 연결을 보여주는 프로젝트다.












Architects Studio Farris Architects
Location Humbeek, Grimbergen, Belgium
Program Residence
Building area 73㎡
Gross floor area 89㎡
Design period 2015. 11
Construction period 2020. 2
Completion 2022. 11
Principal architect Giuseppe Farris
Project archtiect Giuseppe Farris
Design team Studio Farris Architects
Contractor KLOBO
Photographer Koen Van Damme, Martino Pietropoli
해당 프로젝트는 건축문화 2022년 7월호(Vol. 494)에 게재되었습니다.
The project was published in the July, 2022 recent projects of the magazine(Vol. 494)
July 2022 : vol. 494
Contents : RECORDS I LIVE ALONE AND TOGETHER 나 혼자, 그리고 같이 산다 “SPACE COORDINATOR”, AN EXPERIMENTAL AND INNOVATIVE DISCOURSE THAT REVOLUTIONIZES THE CITY 도시를 새롭게..
anc.masilwide.com
'Architecture Project > Single Family' 카테고리의 다른 글
| CHELMER RIVER HOUSE (0) | 2022.09.28 |
|---|---|
| HOUSE C (0) | 2022.09.07 |
| CAGE HOUSE (0) | 2022.07.26 |
| PS HOUSE (0) | 2022.07.25 |
| GO-GANG HOUSE (0) | 2022.07.20 |
마실와이드 | 등록번호 : 서울, 아03630 | 등록일자 : 2015년 03월 11일 | 마실와이드 | 발행ㆍ편집인 : 김명규 | 청소년보호책임자 : 최지희 | 발행소 : 서울시 마포구 월드컵로8길 45-8 1층 | 발행일자 : 매일



