
Go-Gyeong’s House is a detached house for a young couple in their mid-30s. For the young couple, with only two members in the household, the meaning of the house was important. It had to be not only a living space, but also a work space and a space where they can gather friends and enjoy leisure.
Since the site where Go-Gyeong’s House was located was designated as a district unit planning area, there were building regulations as well as many complications in forming the space desired by the clients. The site was at the end of a dead-end road, and the building area was limited. Fortunately, there was an open space that was left after a school had closed, where construction was prohibited as a development-restricted zone, and a road for pedestrians to pass in the north side, and this made it possible to plan a semi-basement as well as advantageously plan the entrance level of the house considering the topography of the slope. In addition, since there were almost no restrictions on the height of the building due to the north sunlight, the desired independent space for each floor was able to be formed by increasing the number of floors despite the small building area.
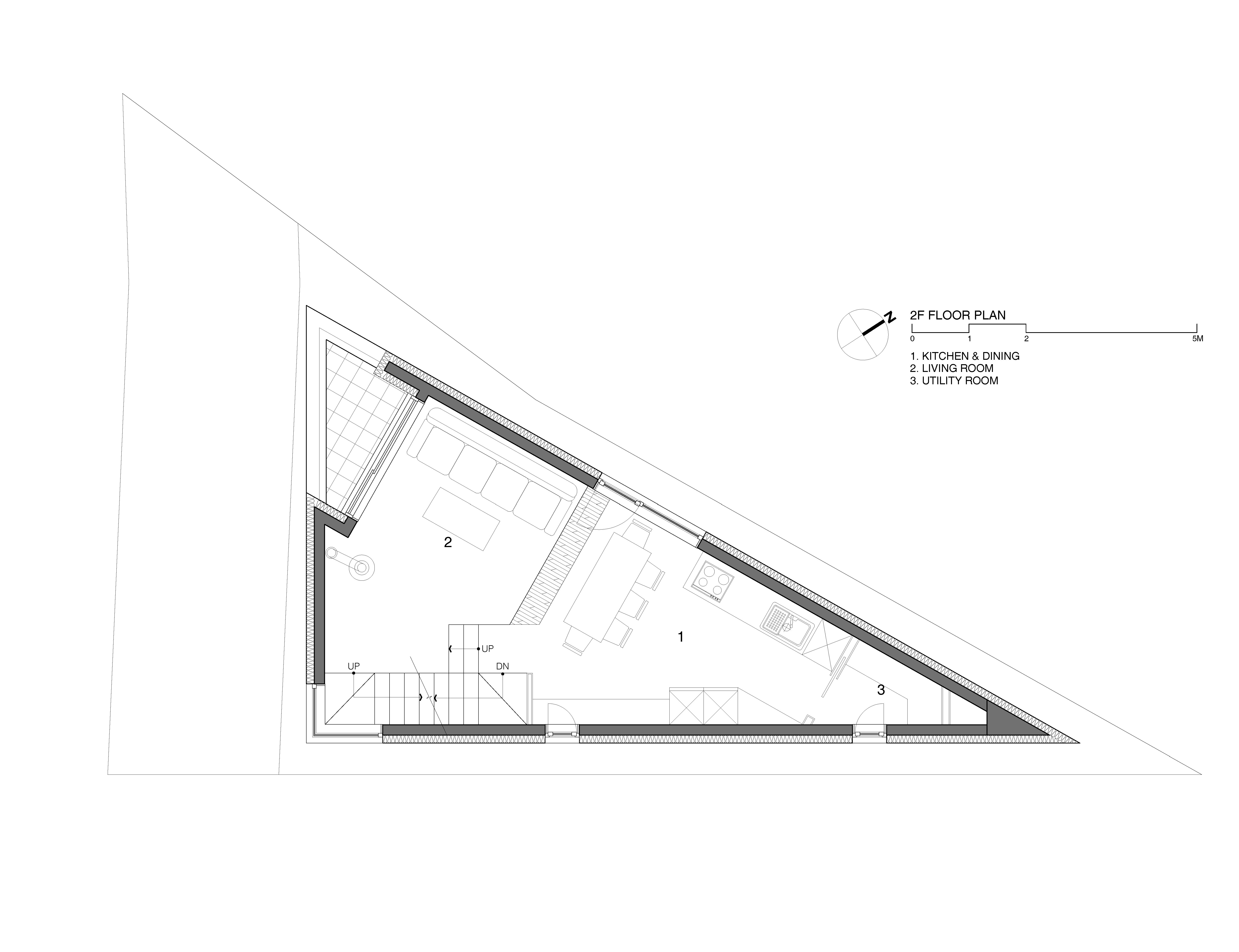
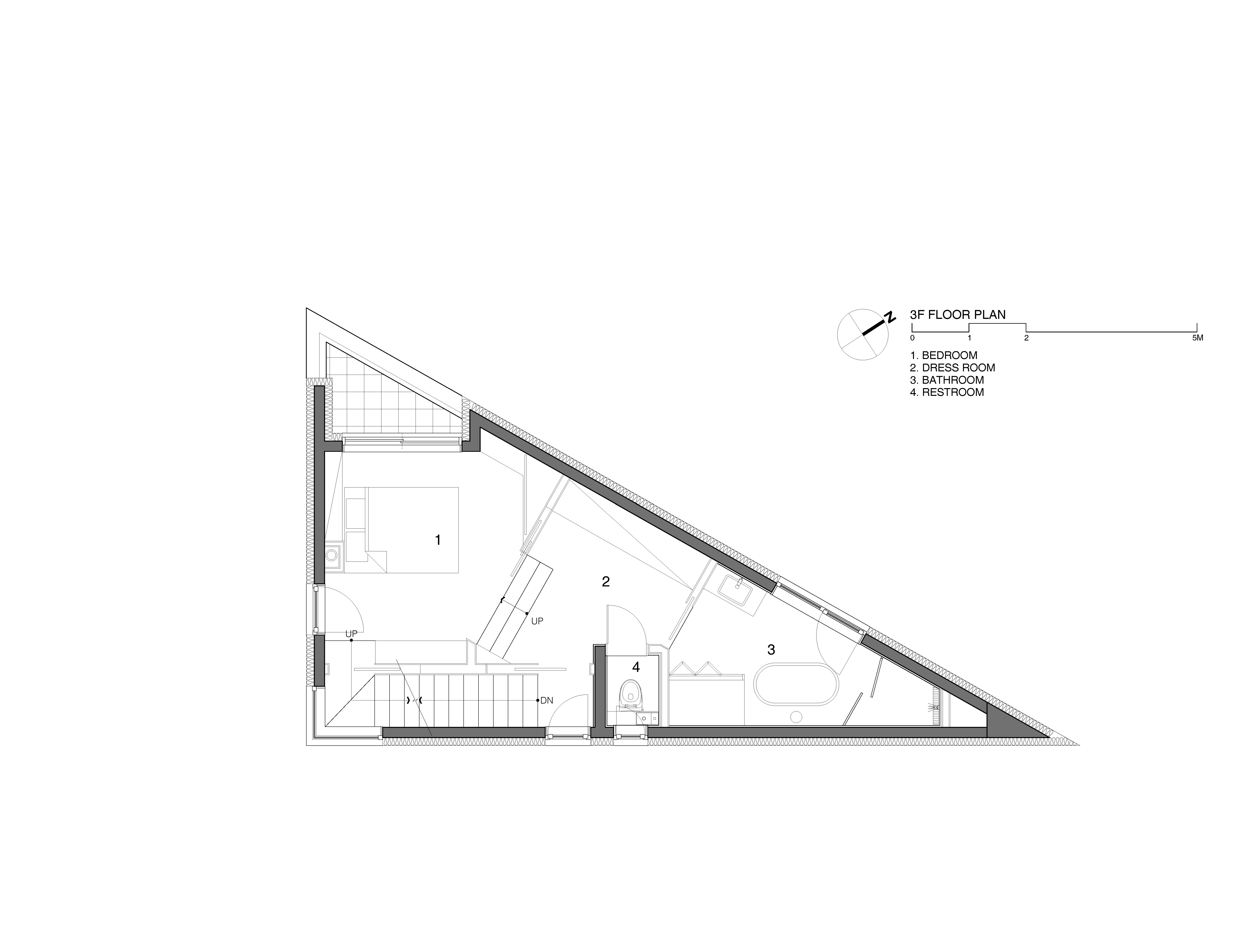
The land had the form of a right-angled triangle with a long hypotenuse, so it had acute-angled vetices. Considering the shape of the land, the dead space of the interior had to be minimized as much as possible, and it was crucial to arrange the rooms according to the hierarchy of the space. Built in this way, the house gains a space separated by floors rather than walls within a small area. The wife gets her own space as a small workshop is made inside Go-Gyeong’s House, and the husband gets a studio where he can work from home. Furthermore, the living room, which must be separated from the personal spaces of the residents when guests visit, was also built using reinforced concrete with a stable structure to minimize the step difference that was formed to overcome the level difference of the access road, as well as to minimize the walls separating the interior space.
The most important part of Go-Gyeong’s House was the location of the entrance of the house and the front door. Only the parking lot and the entrance to the basement level were placed towards the access way used as a road, and there is a separate entrance to the house from the high ground within the narrow alley that used to be a closed school site. The entrance to the semi-basement and the floor level of the house that is raised about half a storey form a naturally skip-floored space on the first floor of the house. A space that is separated using this form of skip-floor structure has the benefit of being able to divide the space without using walls.
The couple, who wanted the house to be filled with spaces of their own, were pleased with the house that had become more abundant than the space they had drawn for themselves. The husband’s surnamie is ‘Go’, and the wife’s name contains ‘Gyeong’. The couple call each other using those words. That is how “Go~!”, “Gyeong~!” House got its name ‘Go-Gyeong House’.

막다른 도로 끝 스킵플로어로 풀어낸 협소주택, 고갱집
‘고갱집’은 30대 중반의 젊은 부부를 위한 단독주택이다. 가족의 구성원이 단둘인 젊은 부부에게 집의 의미가 중요했다. 주거공간일 뿐만 아니라 작업공간이면서 친구들을 불러 모아 여가를 즐길 수 있는 공간이어야 했다. 고갱집이 들어선 대지는 지구단위계획구역으로 지정된 지역으로 건축규제가 있었고, 건축주가 원하는 공간을 구성하는 데 많은 어려움이 있었다. 대지는 막다른 도로 끝에 있으며 건축면적이 제한적이었다. 다행스러운 것은 북측에 폐교되어, 개발제한구역으로 건축이 금지된 공지와 보행자의 통행이 가능한 현황도로가 있었기 때문에 경사지의 지형을 고려한 반지하를 계획하거나 주택의 진입레벨을 유리하게 계획할 수 있었다. 또한, 정북일조에 의한 건축물의 높이 제한을 거의 받지 않았기 때문에 적은 면적의 건축면적에도 층수를 높여 원하는 독립된 층별 공간을 구성할 수 있었다. 땅의 형태는 빗변이 긴 직각삼각형에 형태를 하고 있어서 예각의 꼭짓점 부분을 가지고 있다. 땅의 형태를 고려해 최대한 실내의 데드스페이스를 최소화하며, 공간의 위계에 따른 실 배치가 무엇보다 중요했다. 그렇게 지어진 집은 작은 면적 안에서 벽이 아닌 층으로 공간을 구분했다. 아내는 고갱집 안에 작은 공방을 만들어 자신만의 공간을, 남편은 재택근무를 할 수 있는 작업실을 가진다. 또한, 개인적인 공간과 구분되어야 하는 거실은 고갱집은 진입도로의 레벨차를 극복하기 위한 실내 내부의 단차와 내부의 공간을 구획하는 벽체들 최소화하기 위해 안정적인 구조의 철근콘크리트로 지어졌다. 고갱집에서 가장 중요한 부분은 주택의 진입 부분과 현관의 위치였다. 도로로 사용되는 진입로 쪽으로는 주차장과 지하층의 출입구만 두고 폐교 부지였던 좁은 골목에 높은 지반에서 주택의 출구를 따로 가지고 있다. 반지하의 출입구와 반층 정도 올라온 주택의 바닥 레벨은 주택의 1층에서 자연스럽게 내부의 스킵 된 공간을 만들고 있다. 이러한 스킵 플로어를 활용한 구분된 공간은 벽을 사용하지 않아도 공간을 나눌 수 있는 장점이다. 둘 만의 공간으로 가득 채워지길 원했던 이 부부는 직접 그려보았던 자신들의 공간보다 더 풍부해진 집에 대해 만족했다. 남편의 성은 ‘고’씨이며, 아내 이름에는 ‘경’자가 들어간다. 이 부부는 서로 한 글자로 부른다. “고~!”, “갱~!” 집 이름은 그렇게 ‘고갱집’이 되었다.













ⓒWoocheol Jung



















Architects JoHanjun Architects | 조한준건축사사무소
Location Samsong-ro, Deogyang-gu, Goyang-si, Gyeonggi-do, Republic of Korea
Program Residence, retail
Site area 106.00㎡
Building area 43.99㎡
Gross Floor Area 158.27㎡
Building scope B1, 3F
Building to land ratio 41.5%
Floor area ratio 110.29%
Design period 2019. 6 - 11
Construction period 2019. 12 - 2020. 6
Completion 2020. 6
Principal architect Hanjun Cho
Project architect Hanjun Cho
Design team Daeun Choi, Hyunwoo Lee
Structural engineer Hangil structure engineering
Mechanical engineer GM EMC
Electrical engineer GM EMC
Construction SYSHOME CONSTRUNCTION
Client Jungngseok Go, Gyeongjin Jung
Photographer Woocheol Jung
May 2022 : vol. 492
Contents : RECORDS THE STORY OF THE CITY THAT PUBLISHERS DREAMED OF, RELEASED 꿈꾸던 도시가 들려주는 이야기, <위대한 계약: 파주, 책, 도시> 개봉 : NEWS / COMPETITION / BOOKS : SK..
anc.masilwide.com
'Architecture Project > Single Family' 카테고리의 다른 글
| CAGE HOUSE (0) | 2022.07.26 |
|---|---|
| PS HOUSE (0) | 2022.07.25 |
| SENTINEL HOUSE (0) | 2022.07.13 |
| YONGIN #6 (0) | 2022.07.06 |
| S.A.L.T HOUSE (0) | 2022.07.01 |
마실와이드 | 등록번호 : 서울, 아03630 | 등록일자 : 2015년 03월 11일 | 마실와이드 | 발행ㆍ편집인 : 김명규 | 청소년보호책임자 : 최지희 | 발행소 : 서울시 마포구 월드컵로8길 45-8 1층 | 발행일자 : 매일



