
PS House is located in a low-density urban parish on the outskirts of Braga, a city of Portugal. The land has an approximately rectangular shape, and is located in an area of accentuated slope, with unevenness and sinuous morphology. It is oriented in the North/Northwest direction and facing a small valley area, located next to a small urban agglomeration and some cultivated fields.
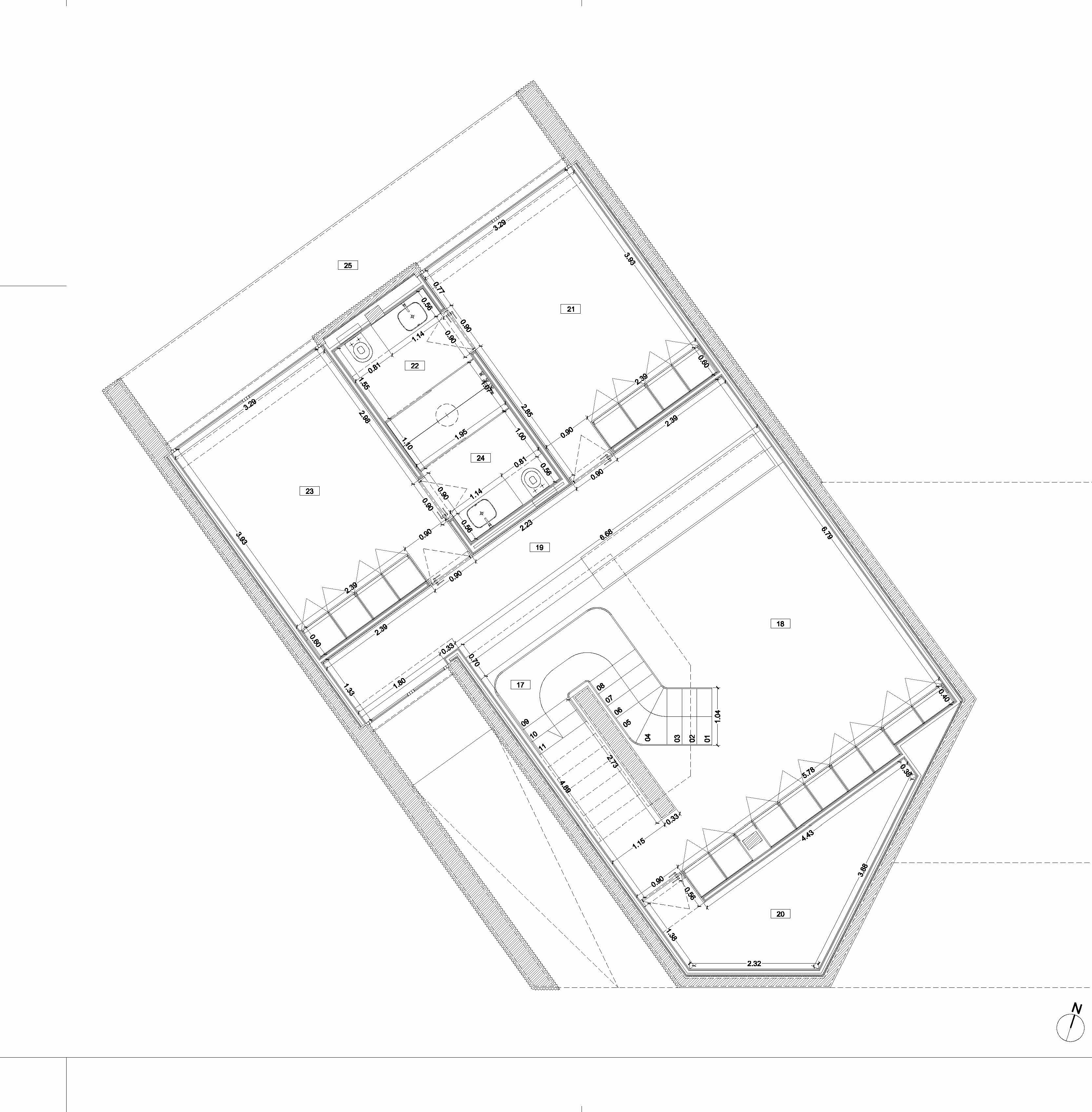
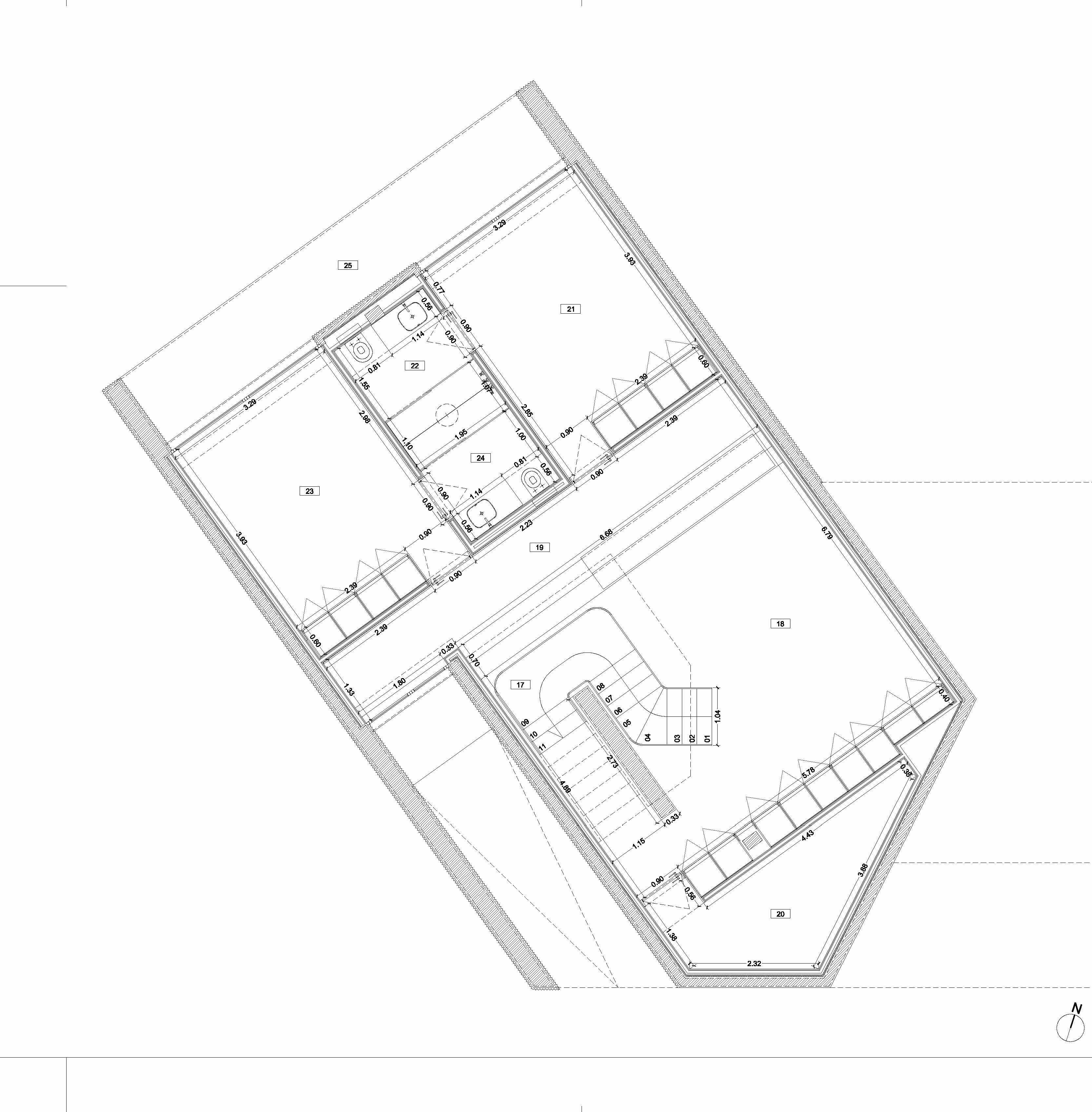
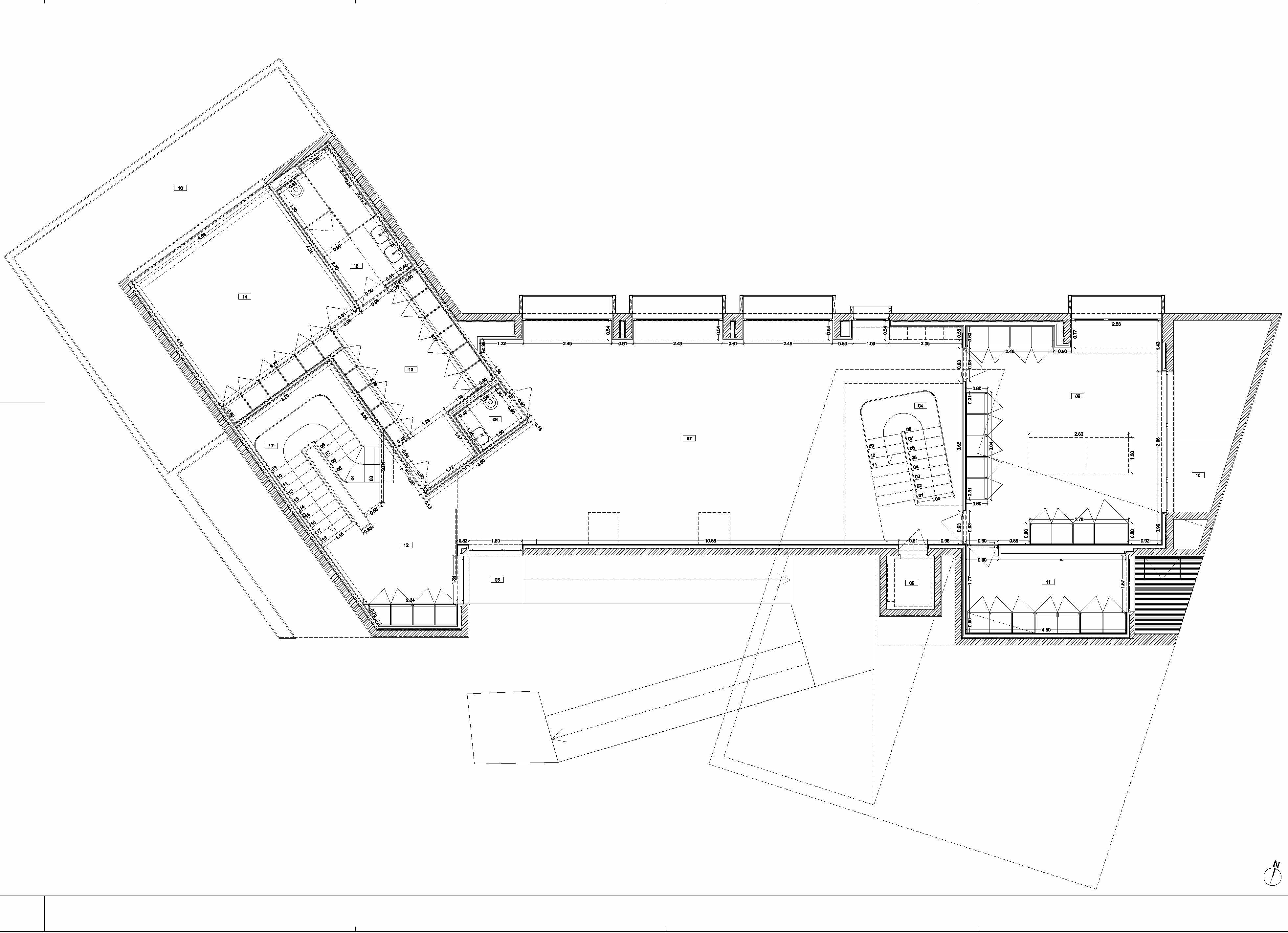
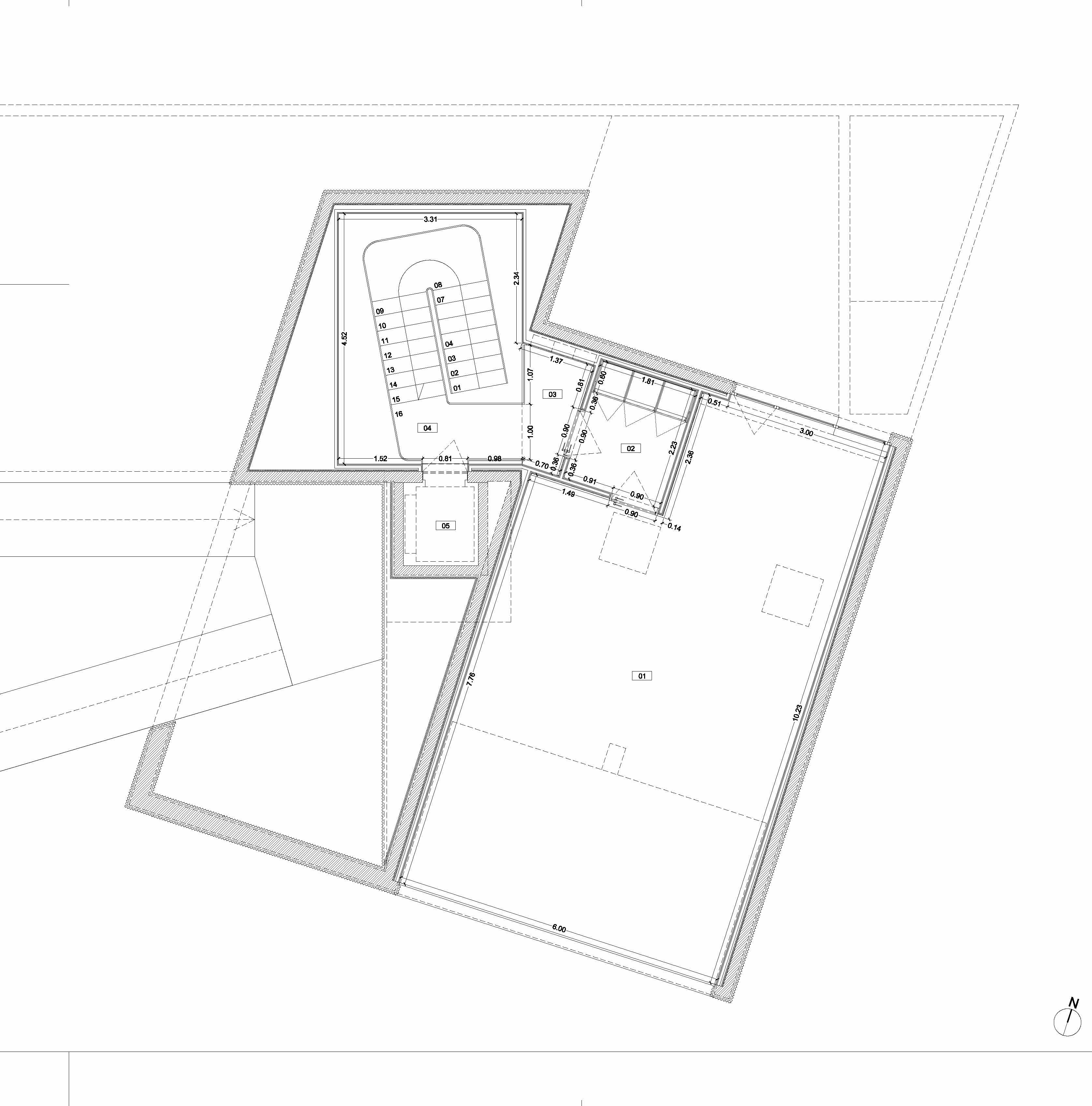
The features of the house are developed over three different floors, facing North and descending the land, following and\ ‘traversing’ the unevenness that it offers, in a coherent functional hierarchy in height, and whose spatial progression is made in a descending direction, that is: functional area, social area and private area.
The house rests on the ground in a ‘terrace’ solution, following its unevenness and its morphology, in a volume that is defined in three fitted blocks.Each of these blocks correspond to three different adapted areas of the house, which are organized in a simple and not complex program:
The entire interior of the house seeks the complementary green space and extensive views, and its location shows the utmost respect for its surroundings and natural environment, as well as the use of the most favorable area of the land for the location of the building and its idyllic areas outdoors.

거친 경사면을 따라 자연에 안긴 집, PS 하우스
포르투갈의 도시, 브라가 외곽에 있는 작은 마을에 있는 ‘PS 하우스’는 직사각형이지만 요철이 튀어나오고 구불구불한 형태로 경사진 대지 위에 자리해 있다. 북-북서 방향으로 향한 대지는 작은 계곡 지역을 향하며, 옆으로는 작은 도심과 밭이 있는 곳이었다.
이 집은 3개의 다른 층으로 만들어졌는데, 울퉁불퉁한 경사면을 가로지르는 집은 북쪽으로 내려가는 경사면을 따라 배치되었다. 높이에 따른 각 층은 기능적으로 구분되었다. 위에서부터 공간의 진행에 따라 기능 공간, 사회적 공간, 개인 공간으로 나뉜다. 각 기능을 하는 3개 층은 거친 땅의 형태를 따라 ‘계단식’으로 두어 해결했다. 각 층은 단순하고 복잡하지 않은 프로그램으로 구성되어 서로 다른 용도로 쓰이고 있다.
집의 모든 공간은 자연과 소통하는 녹색 공간과 넓게 펼쳐진 풍경을 가진다. 주변의 자연을 최대한 존중하여 배치했고, 시골처럼 소박하고 평화로운 야외 공간이 있다.


























Architects Inception Architects Studio
Location Esporões, Braga, Portugal
Program Single family house
Gross floor area 400㎡
Building scope 3F
Interior Vilaça Interiores
Construction Manuel Antunez Construções
Photographer Ivo Tavares Studio
May 2022 : vol. 492
Contents : RECORDS THE STORY OF THE CITY THAT PUBLISHERS DREAMED OF, RELEASED 꿈꾸던 도시가 들려주는 이야기, <위대한 계약: 파주, 책, 도시> 개봉 : NEWS / COMPETITION / BOOKS : SK..
anc.masilwide.com
'Architecture Project > Single Family' 카테고리의 다른 글
| CANAL HOUSE HUMBEEK (0) | 2022.09.02 |
|---|---|
| CAGE HOUSE (0) | 2022.07.26 |
| GO-GANG HOUSE (0) | 2022.07.20 |
| SENTINEL HOUSE (0) | 2022.07.13 |
| YONGIN #6 (0) | 2022.07.06 |
마실와이드 | 등록번호 : 서울, 아03630 | 등록일자 : 2015년 03월 11일 | 마실와이드 | 발행ㆍ편집인 : 김명규 | 청소년보호책임자 : 최지희 | 발행소 : 서울시 마포구 월드컵로8길 45-8 1층 | 발행일자 : 매일



