
Yongin #6 is located in an urban townhouse located at the foot of Mt. Bora in the Bora housing district near the Korean Folk Village. Due to the guidelines for the complex in the first type district unit planning zone, the color and shape of the house form a sense of unity as a whole. Although it is a city center, it is on a slope surrounded by Mt. Depending on the design, it is a location where you can enjoy nature and the view at the same time. The architect did not miss this part. The completed house has a wonderful view towards the city center and the charm of being able to see nature through the road between the houses in front.
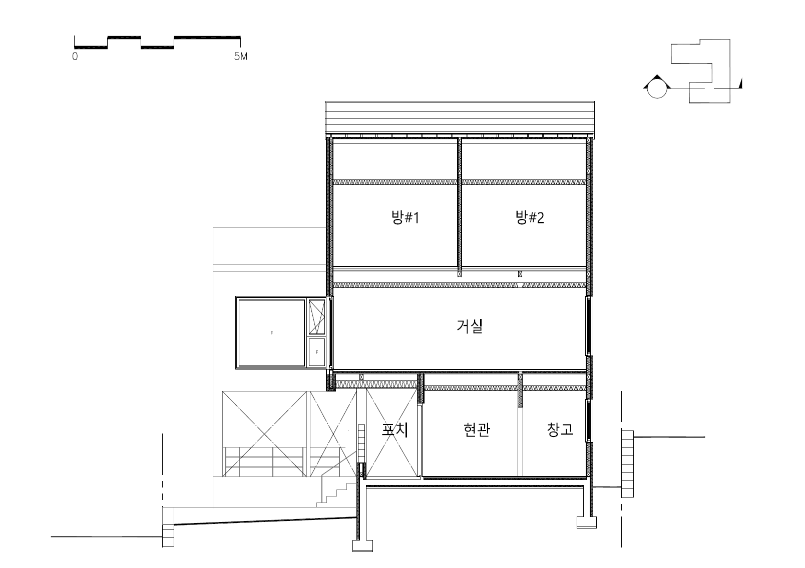
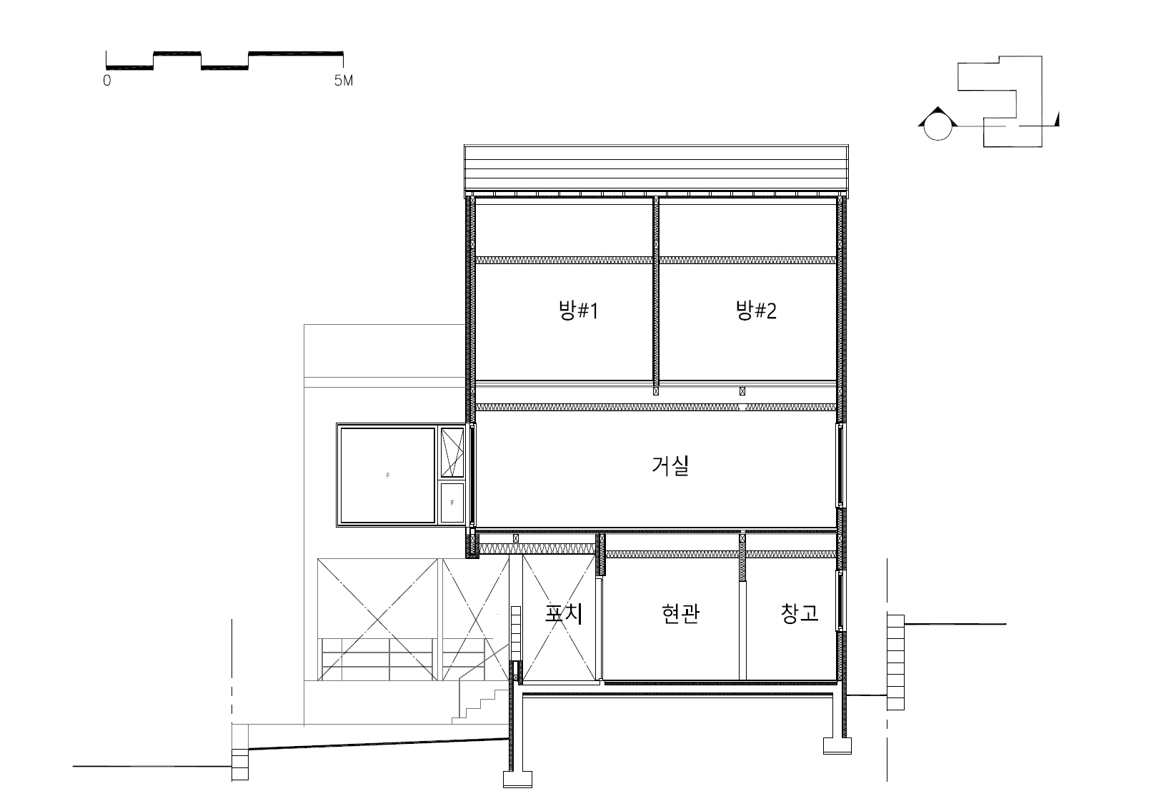
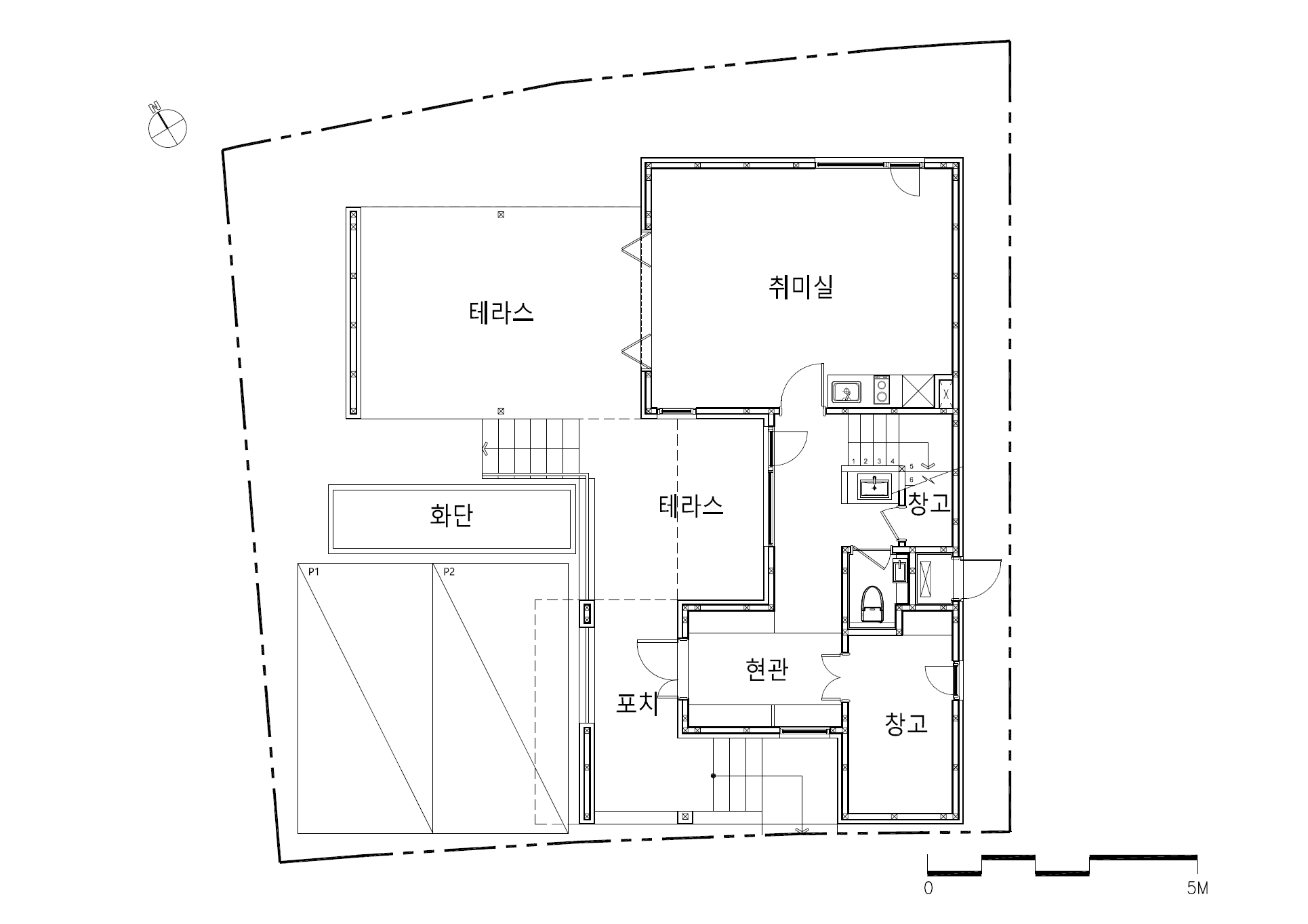
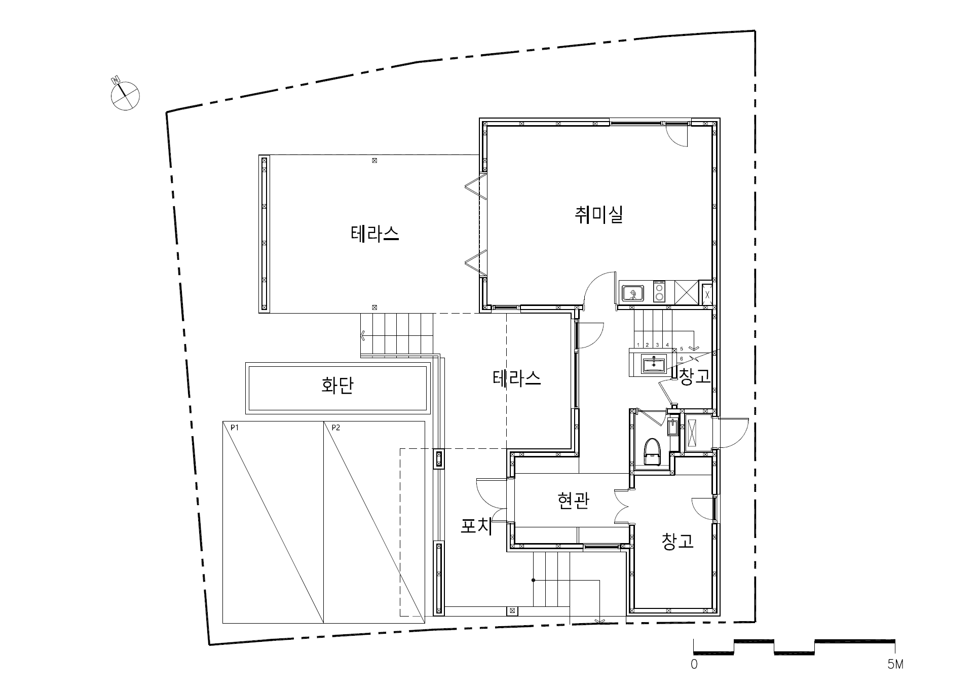
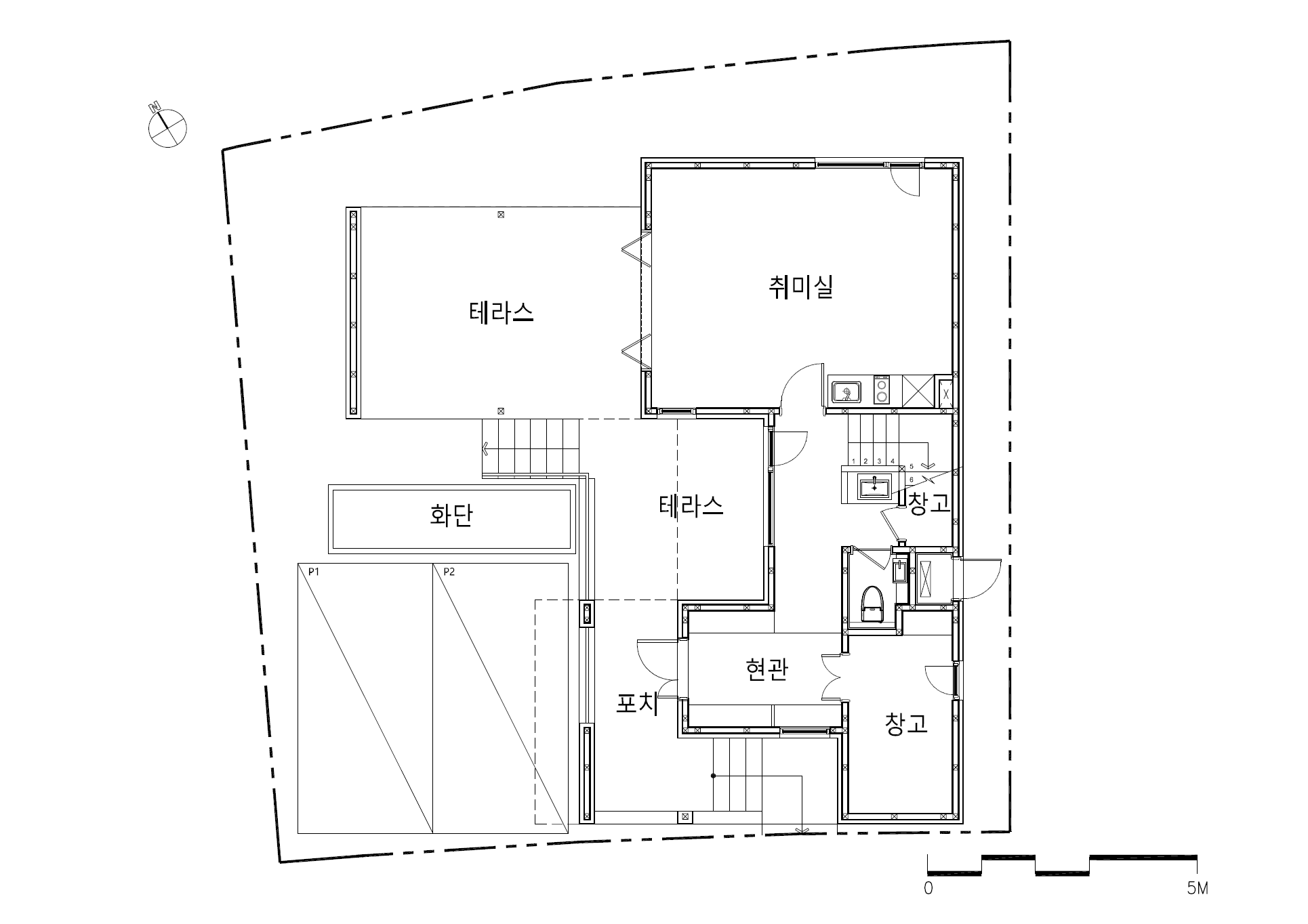
The main rooms, the living room, kitchen, dining room, and couple's bedroom, were placed on the second floor. The reason is to consider blocking the line of sight on the road and to have a view of Mt. Bora and the city center at the same time. A balcony was installed in the courtyard of the U-shaped mass, and trees were planted right in front. The architect planned the psychological stability and connection with the outside by making it possible to feel nature even on the second floor and invisible from the outside. This part is also usefully used when caring for plants. The flower garden inside the open part of the stairs is also connected to this balcony, and you can water it comfortably by taking care of drainage and waterproofing. It can be said that the architect's special consideration was given to creating a natural landscaping space even on the second floor, which was cut off from the site, and to establish a relationship between the inside and outside. The children's rooms on the 3rd floor facing south were designed to let in the warm sunlight through large windows. The roof garden, formed naturally due to the restriction of the direct north sunlight, allows you to enjoy nature and the sky through the gaps in the surrounding houses. It is also connected naturally with the laundry room.

나무를 품은 집은 한국민속촌 인근 보라택지지구의 보라산기슭에 위치한 도심형 타운하우스다. 제1종 지구단위계획구역의 단지에 관한 지침 때문에 주택의 색채와 형태가 전체적으로 통일감을 이루고 있다. 도심이지만 보라산에 둘러싸인 경사지이고 곡선형 도로의 돌출된 부분에 자리해 유리한 조건을 갖추고 있다. 설계에 따라 자연과 조망을 동시에 누릴 수 있는 위치이다. 건축가는 이 부분을 놓치지 않았다. 완공된 주택은 도심을 향한 멋진 조망과 앞집들 사잇길로 자연을 볼 수 있는 매력을 갖췄다.
주요 실들인 거실, 주방, 식당, 부부침실은 2층에 배치했다. 그 이유는 도로에서의 시선 차단을 고려하고 보라산과 도심의 조망을 한꺼번에 가질 수 있도록 하기 위함이다. ㄷ자 매스의 중정에는 발코니를 설치하고 바로 앞에 교목을 식재했다. 건축가는 2층 내부에서도 자연을 느낄 수 있고 외부에서는 잘 보이지 않게 함으로써 심리적 안정감과 외부와의 연결을 계획한 것이다. 이 부분은 식물을 가꿀 때도 유용하게 활용된다. 대지와 단절된 2층에서도 자연스러운 조경공간을 만들어 내외부의 관계 맺기를 고려한 부분은 건축가의 특별한 배려라고 할 수 있다. 3층 남향에 배치된 자녀 방들은 커다란 창호로 따뜻한 햇살을 한껏 받아들이게 계획했다. 정북일조 사선제한으로 자연스럽게 형성된 옥상 정원은 주변 주택의 틈새로 자연과 하늘을 누릴 수 있다. 세탁실과도 자연스럽게 연계된다.















Architects BLUE Architecture
Location Giheung-gu, Yongin-si, Gyeonggi-do, Republic of Korea
Site area 198㎡
Building area 93.89㎡
Gross floor area 186.64㎡
Building scope 3F
Building to land ratio 47.42%
Floor area ratio 94.26%
Design period 2019. 04 - 2019. 10
Construction period 2019. 12 - 2020. 12
Principal architect Kihong Jung
Construction Blue House Korea
Photographer Youngin Ham
해당 프로젝트는 리빙즈, 디테일 04호에 게재되었습니다.
The project was published in LIVINGS, Detail 04
[BOOK] LIVINGS, Detail 리빙즈, 디테일 03호, 04호
<LIVINGS, Detail 리빙즈, 디테일 03호, 04호> 72개의 형태와 라이프스타일을 담은 주거공간, 국내외 “디테일한 주택 프로젝트”의 엮음 매월 국내외 다양한 건축물들을 소개해 온 <월간 건축문화>가 <
www.masilwide.com
'Architecture Project > Single Family' 카테고리의 다른 글
| GO-GANG HOUSE (0) | 2022.07.20 |
|---|---|
| SENTINEL HOUSE (0) | 2022.07.13 |
| S.A.L.T HOUSE (0) | 2022.07.01 |
| CASA PR (0) | 2022.06.23 |
| BREJOS DA CARREGUEIRA HOUSE (0) | 2022.06.21 |
마실와이드 | 등록번호 : 서울, 아03630 | 등록일자 : 2015년 03월 11일 | 마실와이드 | 발행ㆍ편집인 : 김명규 | 청소년보호책임자 : 최지희 | 발행소 : 서울시 마포구 월드컵로8길 45-8 1층 | 발행일자 : 매일



