
The house is located in a slopy terrain which has the virtue to be localised in a fairly high topographic altitude, due to this, with visual orientation to the litoral mountain range, the urban center and the sea. It also takes part in the formation of Vallpineda residential area, one of the first urbanisations that were developed in the city of Sitges.
The house arranged gradually to the natural slope of the land, in order to achieve that its volume lengthens as long as possible towards the lowest topographic elevation. This strategy is decided to achieve the highest number of visuals and natural light as posible and moreover to guarantee the views to the sea from each of the three floors that will organise the structure of the house too: the garage/studio floor, the night floor and the day floor.
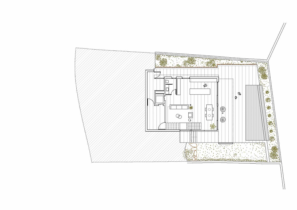
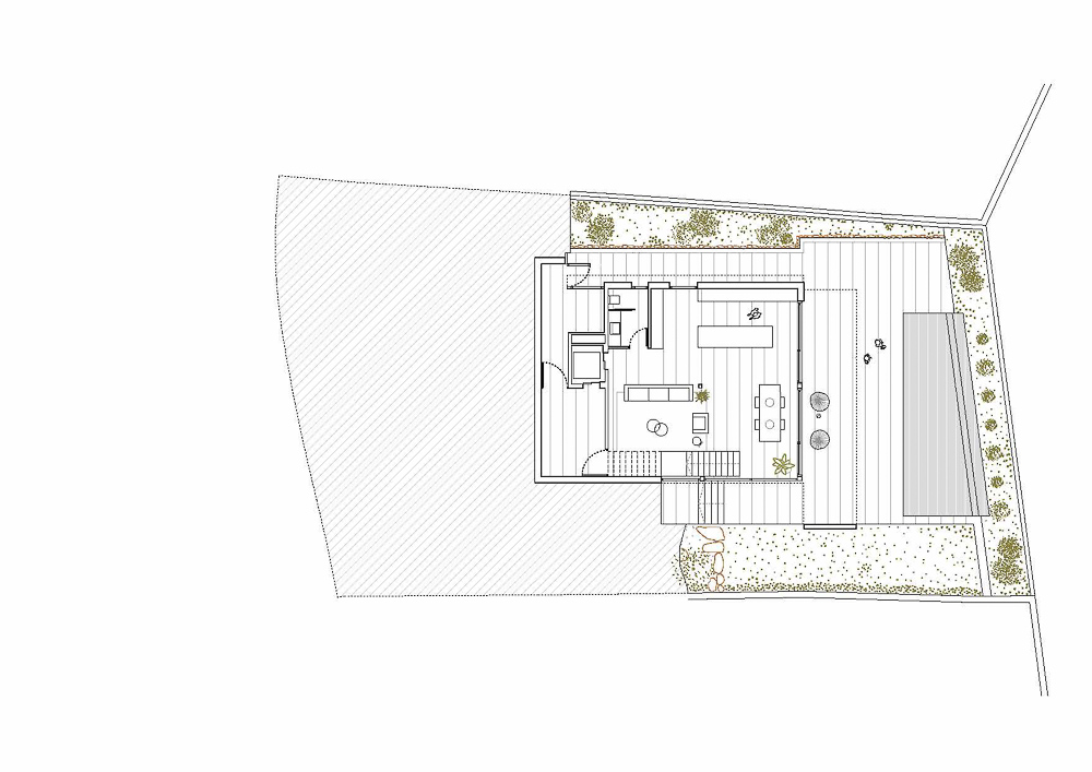
The garage/studio floor contains the driveway to the house, a vehicle parking space, storage spaces, a study and a bathroom. To avoid the circulation of vehicles to the parking lot from conditioning the unbuilt spaces of the site, the garage is located at the level of the street access level, providing this floor with a concept of a differentiated piece from the rest of the house. in addition to being connected by elevator. This differentiation ends in the location of the main entrance to the house on its middle floor: the night floor, which contains a suite room with bathroom and balcony, three bedrooms and a second bathroom. This main access configures its own characteristic space of the house, formed by a wide reception area that connects horizontally with the night area, while vertically connecting with the day floor through a light metal staircase and a double space, part of which it forms part of the living-dining room on the lower floor: the day floor.
The day floor includes the kitchen, the pantry, a third bathroom, the living-dining room and the facilities space. It is the heart of the house. Located on the lower level of the three that make up the house, we find a unique space where the uses of the living room, dining room and kitchen coexist, directly connected with the elements that make up the most immediate outdoor space: the main porch of the house, pool, barbecue and garden areas.

‘카사 PR’은 비탈진 지형의 높은 곳에 위치하여 해안가와 산맥, 도심과 바다를 볼 수 있다는 장점을 가진 곳에 있다. 또한, 시체스(Sitges)시에서 최초로 도시화가 된 곳 중 하나인 발피네다(Vallpineda) 주거지역의 일부이기도 하다.
이 집은 높은 곳에서 낮은 곳을 향해 길게 늘어선 형태로 되어있는데, 시간대에 따른 공간이 땅의 경사면을 따라 점차적으로 배치 되어있다. 이 배치는 3개의 층 모두에서 바다를 볼 수 있도록 하기 위해 결정되었다.
가장 위에 있는 층은 집의 나머지 부분과 차별화된 개념의 공간이다. 맨 위층에는 집으로 가는 길과 차량 주차공간, 창고, 서재와 욕실이 있다. 주차장으로 가는 차량이 건물이 지어지지 않은 공간에 영향을 주는 것을 막기 위해 주차장은 도로와 같은 높이에 있으며, 엘리베이터로 집과 연결된다. 중간층은 주로 밤에 사용하는 공간으로 욕실과 발코니가 있는 스위트룸, 침실 3개와 화장실이 있다. 중간층의 출입구는 야간 공간과 연결되는 넓은 응접실 공간으로 독특한 공간을 구성하고, 가벼운 금속 계단으로 아래층인 낮 공간의 거실과 다이닝 공간에 수직으로 연결되어 이중 공간을 만든다.
마지막 층은 주간을 위한 공간으로 주방, 식료품 저장실, 욕실, 거실 겸 다이닝 공간과 편의시설이 있는 집의 심장부이다. 3개의 층 중 가장 아래에 있는 이곳에는 거실, 식사 공간, 주방의 용도가 공존하는 독특한 공간을 발견할 수 있다. 또한, 수영장, 바비큐장 및 정원 등이 있는 베란다 야외공간과 직접 연결된다.
















Architects GUILLEM CARRERA arquitecte │ 기욤 카레라 아키텍테
Location Barcelona, Espanya
Program Single family house
Gross floor area 371㎡
Principal architect Guillem Carrera
Collaboration Daniel Marcelo, Indibil Solans, Meritxell Angles
Structural engineer Estudi Cuyas 38 SL
Building engineer Albert Pons Energy & Systems Zero Consulting (Ecotec Enginyers SLP)
Topography CARTSIG
Geotechnics Centro Catalan de Geotecnia SL
Construction Construcciones Tomas Gracia SA
Photographer Jose Hevia
해당 프로젝트는 건축문화 2022년 4월호(Vol. 491)에 게재되었습니다.
The project was published in the April, 2022 recent projects of the magazine(Vol. 491).
April 2022 : vol. 491
Contents : RECORDS DIÉBÉDO FRANCIS KÉRÉ, WINNER OF THE 2022 PRITZKER ARCHITECTURE PRIZE 2022년 프리츠커 건축상 수상자, 디에베도 프란시스 케레 : NEWS / COMPETITION / BOOKS : SKET..
anc.masilwide.com
GUILLEM CARRERA arquitecte | Tarragona - Barcelona - Lleida - Girona | arquitecto - architect - arquitectes - arquitectos - arch
Arquitecto, arquitectos, arquitecte, arquitectes, architect, architects. Estudi d'arquitectura, disseny del paisatge, disseny d’interiors, restauració i rehabilitació, dedicat a projectes a Tarragona, Barcelona, Lleida i Girona. Entra i coneix l'estudi
www.guillemcarrera.com
'Architecture Project > Single Family' 카테고리의 다른 글
| YONGIN #6 (0) | 2022.07.06 |
|---|---|
| S.A.L.T HOUSE (0) | 2022.07.01 |
| BREJOS DA CARREGUEIRA HOUSE (0) | 2022.06.21 |
| KELK HOUSE (0) | 2022.06.20 |
| HADOHILLJO TOWNHOUSE (0) | 2022.06.20 |
마실와이드 | 등록번호 : 서울, 아03630 | 등록일자 : 2015년 03월 11일 | 마실와이드 | 발행ㆍ편집인 : 김명규 | 청소년보호책임자 : 최지희 | 발행소 : 서울시 마포구 월드컵로8길 45-8 1층 | 발행일자 : 매일



