
Underneath the roof of a house is a universe of its own: a culmination of both individual and communal life, where each individual life itself is another universe of its own. In it, we find an intersection of social and personal life, where we can get together with others to share a meal, screen a movie, and drink some tea, or have some alone time to get work done or read a book.
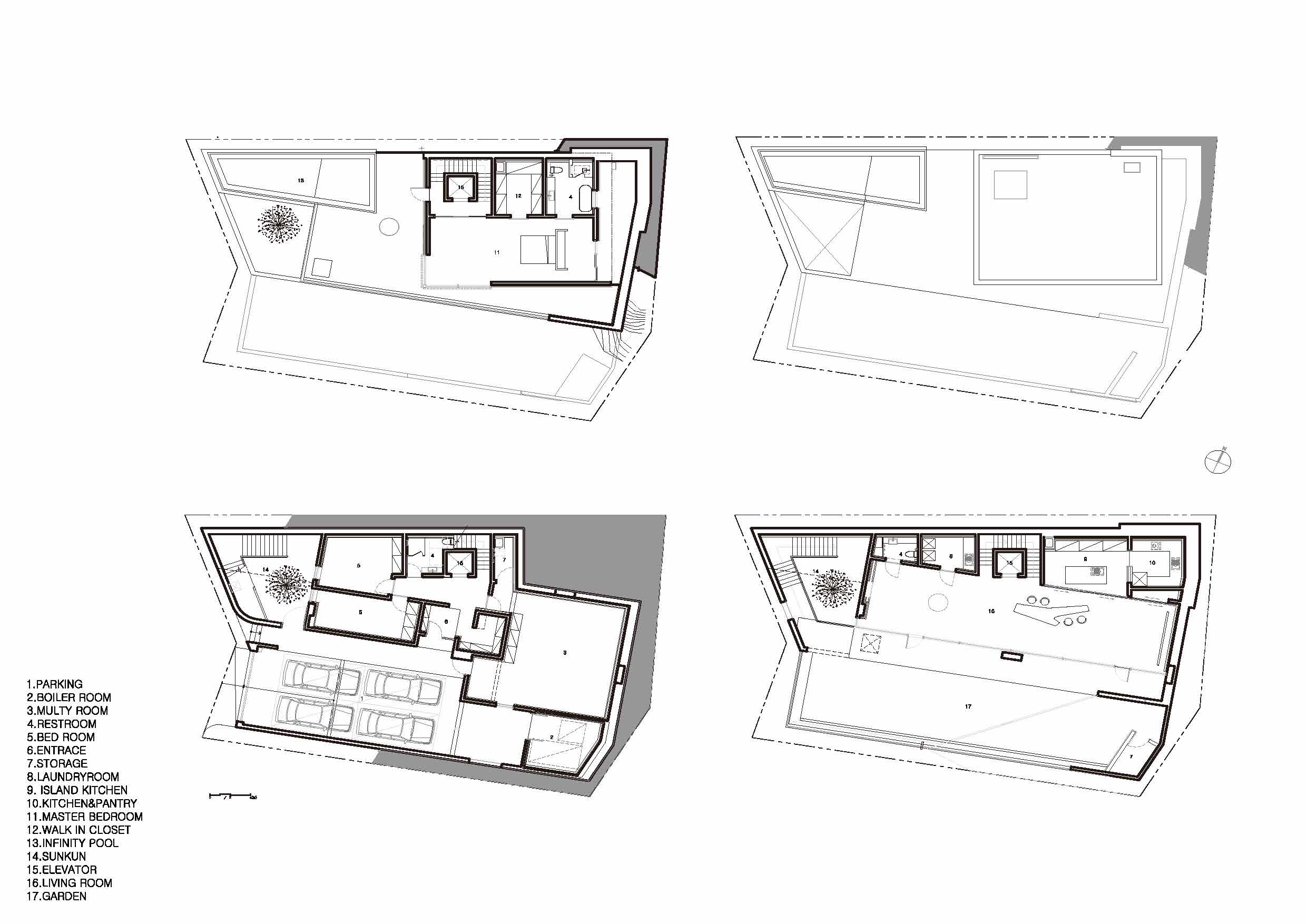
This house vertically enforces a separation between these facets of life: social, public, and private spaces are placed into three different levels, through which a single vertical movement path (including the elevator) weaves its way. Adjacent to the house’s point of entry at the parking space on the lower level, the social spaces include the work station, guest room, and party room. Just above that is the public space, a 20x5m pavilion box that has the kitchen, dining space, and bathroom, in addition to a front yard. On top of the pavilion box is a swimming pool and sun deck, and on the same level is also a bath and a dressing room. Lastly, the house’s private space is a bedroom with a 4 metre-high floor-to-ceiling window looking out to the mountains in the distance, offering a serene moment of solitude.
The surrounding village consists of five or so houses also in the shape of boxes. In similar fashion, when seen from the village entrance, this house appears in the form of three freely stacked boxes, visually representing the organisation of the interior spaces based on three distinct levels of privacy.
The house is home to a young couple, a large dog named Baro, and two cats.
Modern life can be extremely multifaceted, and it is only natural to seek a stronger separation between its private and public aspects - to turn to one as respite from the other. The house was thus organized to allow the inhabitants to manoeuvre the different levels of privacy they experience throughout the week. As Baro and the two cats weave through the different spaces in Möbius loops, they act as nature’s thread holding together the exhausted urbanite, creating balance and filling the void between nature and humankind, and between society and the self.

바로하우스
집은 지붕 아래 작은 우주다. 작은 공동체의 공간은 개인의 삶과 함께 하는 삶을 포함한다. 그리고, 개인의 삶 또한 하나의 우주다. 여기에는 사회적인 삶과 개인적인 삶이 중첩된다. 일을 하고, 다른 사람과 함께 식사를 하고, 친구와 함께 영화를 보고 차를 마시고, 혼자 독서를 하거나 더 개인적인 공간을 필요로 한다.
바로하우스는 이러한 삶의 다양한 층위를 수직적으로 분리하여 배치한 집이다. 집은 현대적인 다섯 개의 박스가 조화롭게 형태를 이루는데, 마을 어귀에서 볼 때는 세 개의 박스가 자유로운 각도로 쌓여 있는 것 처럼 보인다. 세 개의 층위로 나눠진 내부의 공간을 세 개의 박스가 표현하고 있다. 삶은 세 개의 레벨(social-public-private)로 나뉘며, 엘리베이터를 포함한 단일 수직동선으로 연결된다. 입구부터 이어지는 가장 아래 층의 사교 공간들은 작업실, 게스트룸, 파티룸으로 구성되어 있고, 그 위층은 마당을 가진 긴 마당과 부엌과 식당으로 쓰인다. 수영장과 썬 데크를 가진 층으로, 욕실, 드레스룸으로 구성되어 있다. 마지막 사적 공간은 4미터 높이를 가지고 있는 침실인데, 먼 산을 바라보는 큰 통창이 있어 삶 속 고요함을 선사한다. 이 집은 젊은 부부와 바로라고 불리는 큰 강아지, 세 마리의 고양이가 함께 산다. 바로하우스에서 사람의 삶은 사적 공간 보호에 따라 수직적으로 구분된다.
현대인의 삶은 복합적이다. 하지만 복합적일수록 사적인 삶과 일상의 삶에서 강한 분리가 일어나며 각 층위마다 휴식 공간을 원하게 된다. 따라서 주중과 주말, 하루 24시간 속에 이러한 다른 레벨의 삶의 분리된 시간을 담는 공간을 요구한다. 이렇게 분리된 층위를 바로의 두 개의 뫼비우스 동선이 엮어내며, 바로와 세 마리 고양이들은 자연의 실로, 도시인의 고단한 삶을 엮어내어 자연과 인간 사이, 사회와 개인 자아 사이 균형을 이루며 결핍을 채운다.






















Architect CHIASMUS PARTNERS | (주)키아즈머스파트너스 건축사사무소
Location Seongbok-ro, Suji-gu, Yongin-si, Gyeonggi-do, Republic of Korea
Program Private Residence
Site area 460㎡
Building area 87.72㎡
Gross floor area 509.94㎡
Building scope B2, 1F
Building to land ratio 19.06%
Floor area ratio 16.26%
Design period 2017. 10 - 2018. 3
Construction period 2018. 3 - 2020. 2
Completion 2020. 2
Principal architect Hyunho Lee
Project architect Narae Yang, Hansoo Hoh, Yeseul Huh, Yeongwoo Son, Seongyeol Lee
Interior Chika Nomura
Structural engineer Joohyun Park(Cheil Structure Lab)
Mechanical engineer Seungjin ENC
Electrical engineer Seungjin ENC
Construction Nawoo Construction
Client Sangsoo Ahn, Euiseon Baek
Photographer Namsun Lee
해당 프로젝트는 건축문화 2022년 7월호(Vol. 494)에 게재되었습니다.
The project was published in the July, 2022 recent projects of the magazine(Vol. 494).
July 2022 : vol. 494
Contents : RECORDS I LIVE ALONE AND TOGETHER 나 혼자, 그리고 같이 산다 “SPACE COORDINATOR”, AN EXPERIMENTAL AND INNOVATIVE DISCOURSE THAT REVOLUTIONIZES THE CITY 도시를 새롭게..
anc.masilwide.com
'Architecture Project > Single Family' 카테고리의 다른 글
| CANAL HOUSE HUMBEEK (0) | 2022.10.27 |
|---|---|
| HILLTOP HOUSE (0) | 2022.10.26 |
| FRAMES OF REFLECTION (0) | 2022.10.21 |
| MB HOUSE (0) | 2022.09.29 |
| CHELMER RIVER HOUSE (0) | 2022.09.28 |
마실와이드 | 등록번호 : 서울, 아03630 | 등록일자 : 2015년 03월 11일 | 마실와이드 | 발행ㆍ편집인 : 김명규 | 청소년보호책임자 : 최지희 | 발행소 : 서울시 마포구 월드컵로8길 45-8 1층 | 발행일자 : 매일



