
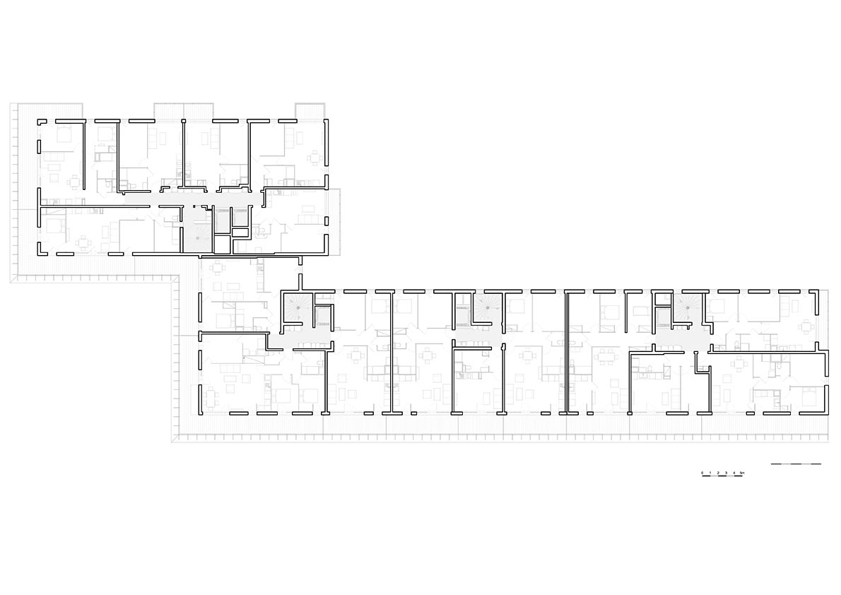
In the south of Toulouse, in the Empalot district, 90 housing units for sale and 20 social housing units are located in two volumes, a vertical one: ‘the belvedere’, and a horizontal one: ‘the prairie building’, sliding against each other and showing light facades with sun protections and generous balconies. A few metro stations from the heart of Toulouse, along the Garonne, Empalot is a district of the city being renewed, close to the city center, mainly composed of housing complexes of the 1950s, with generous public spaces. It is one of the city’s gateways. Composed of a vertical and a horizontal volume sliding against each other and recalling the surrounding volumetrics, this ‘landscape building’ hosts 90 housing units for sale and 20 social housing units.
The sliding layout of the two buildings generates two large green outdoor spaces, one hosting the main entrance hall of the building protected by a large landscaped porch, and the other giving access to the stairwells at the back of the building. With a south-facing main facade bordering a football field, it was essential to think about how to guarantee summer comfort to all apartments.
That is why a double device has been set up, combining large metal sun protections, extending 2m wide long balconies all along the South and West facades, and creating real outdoor rooms in addition.
At the last levels, only a shade covering the entire width of the balconies protects the inhabitants like a pergola. Acting as foliage, these shades have been thought and designed to provide a similar comfort to that offered by the cover of a tree on a sunny afternoon.
On the North side, simple balconies, protected by a shade on the last level, also offer an outdoor space to the smallest typologies of housing.
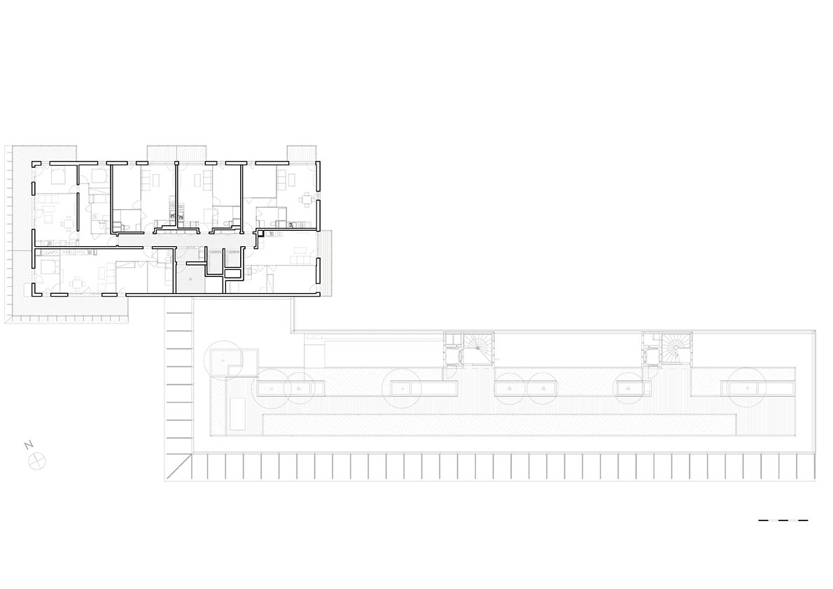
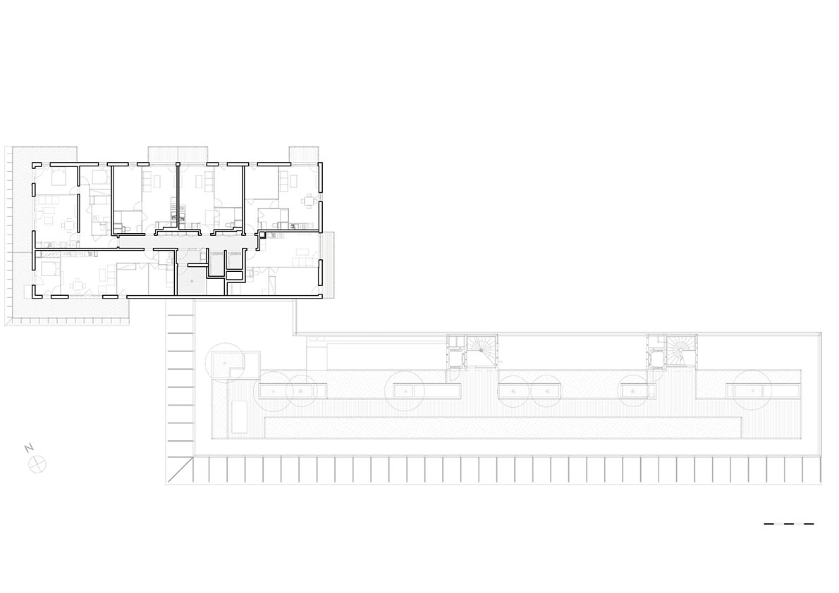
Inside, the belvedere hosts large typologies of housing which all benefit from long balconies, and sun protections to the South and West. The prairie building hosts the same layout of housing on its 5 foors, all crossing or double-oriented, and always accompanied by long balconies. On the last level, a huge landscaped and planted terrace takes place along the entire length of the building. Accessible to all the inhabitants of the building, it offers a large outdoor space covered with a wooden deck.

툴루즈 110 공동주택
방향별 디자인으로 쾌적한 환경을 제공하는 공동주택
툴루즈 남부의 엠팔로 지역에 90세대의 아파트와 20세대의 사회적 공동주택이 두 동으로 나뉜 툴루즈 110 공동주택이 들어섰다. 엠팔로(Empalot)는 툴루즈 중심부에서 가론강을 따라 몇 개의 지하철역이 들어선 재개발 구역으로 주로 1950년대의 주택 단지가 즐비해 있다. 툴루즈 110 공동주택은 수직과 수평으로 조화롭게 지역의 풍경에 녹아든다. 두 동은 큰 녹지 야외 공간을 두 개로 구분하도록 배치되어 있다. 하나는 조경이 된 대형 베란다로 건물의 주 출입구와 접하며, 또 다른 야외 공간은 건물 뒤쪽의 계단과 접한다. 축구장이 있는 남향의 입면에 접한 모든 세대에는 조금 더 쾌적한 여름 환경을 조성하기 위한 햇빛 가리개(퍼걸러: 그늘막을 만들어 주는 설치용 지붕 또는 차양막)가 설치되어 있다. 이 금속 퍼갈러는 건물의 남쪽과 서쪽에 조성된 약 2m 너비의 긴 발코니를 따라 설치되어 있으며, 야외 공간과 접하여 거주민들에게 도시의 뷰를 즐길 수 있는 색다른 공간을 제공한다. 이 퍼걸러는 그늘을 만들어 화창한 오후에 나무 아래 그늘에서 쉬는 것 같은 편안함을 제공한다. 북쪽의 발코니는 꼭대기 층에서 만들어진 그늘이 드리우며 가장 작은 유형의 주택에 야외 공간을 제공한다.
수직형 동 내부에는 남쪽과 서쪽으로 길게 태양열을 막아주는 퍼갈러가 설치된 발코니가 있는 고급 주거 공간이 있으며, 수평 동은 총 다섯 개 층이 동일한 유닛으로 구성되며, 교차되어 있거나 이중으로 설치된 발코니가 제공된다. 꼭대기 층에는 건물 전체 길이를 따라 조경이 식재된 옥상 테라스가 조성되어 있다. 목재 데크로 덮인 넓은 야외 공간은 건물의 모든 거주자가 접근할 수 있다.






















Architects CoBe Architecture et Paysage │ 코베 아키텍처 에트 파이사제
Location Toulouse, France
Program Housing
Gross floor area 7,624㎡
Completion 2022. 3
Principal architect CoBe Architecture et Paysage
Project architect CoBe Architecture et Paysage
Design team CoBe Architecture et Paysage, Girus GE Toulouse, PING, Bureau Veritas, SCBA, 3J Technologies, Pier energie, Polymetrie, Duo Creativ
Client Bouygues Immobilier Toulouse
Photographer Cedric Colin
해당 프로젝트는 건축문화 2022년 6월호(Vol. 493)에 게재되었습니다.
The project was published in the June, 2022 recent projects of the magazine(Vol. 493).
June 2022 : vol. 493
Contents : RECORDS A NEW SPACE PROPOSAL THAT REFLECTS PERSONAL PREFERENCES OUTSIDE THE CITY CENTER 도심 밖, 개인의 취향을 반영한 새로운 공간 제안 CALL FOR ENTRIES: ‘SEOUL AR..
anc.masilwide.com
'Architecture Project > Multifamily' 카테고리의 다른 글
| TREE-HOUSE (0) | 2022.10.25 |
|---|---|
| SAKURAGICHO RESIDENCE (0) | 2022.10.25 |
| SOCIAL HOUSING UNITS IN MASSIVE STONE (0) | 2022.09.28 |
| ARC (0) | 2022.09.21 |
| YEOKSAM MULTI-FAMILY RESIDENCE (0) | 2022.09.15 |
마실와이드 | 등록번호 : 서울, 아03630 | 등록일자 : 2015년 03월 11일 | 마실와이드 | 발행ㆍ편집인 : 김명규 | 청소년보호책임자 : 최지희 | 발행소 : 서울시 마포구 월드컵로8길 45-8 1층 | 발행일자 : 매일



