
The Site
The site is located in the 11th arrondissement of Paris, where local vernacular architecture coexists alongside Hausmannian renovations from the latter half of the 19th century.
The Form
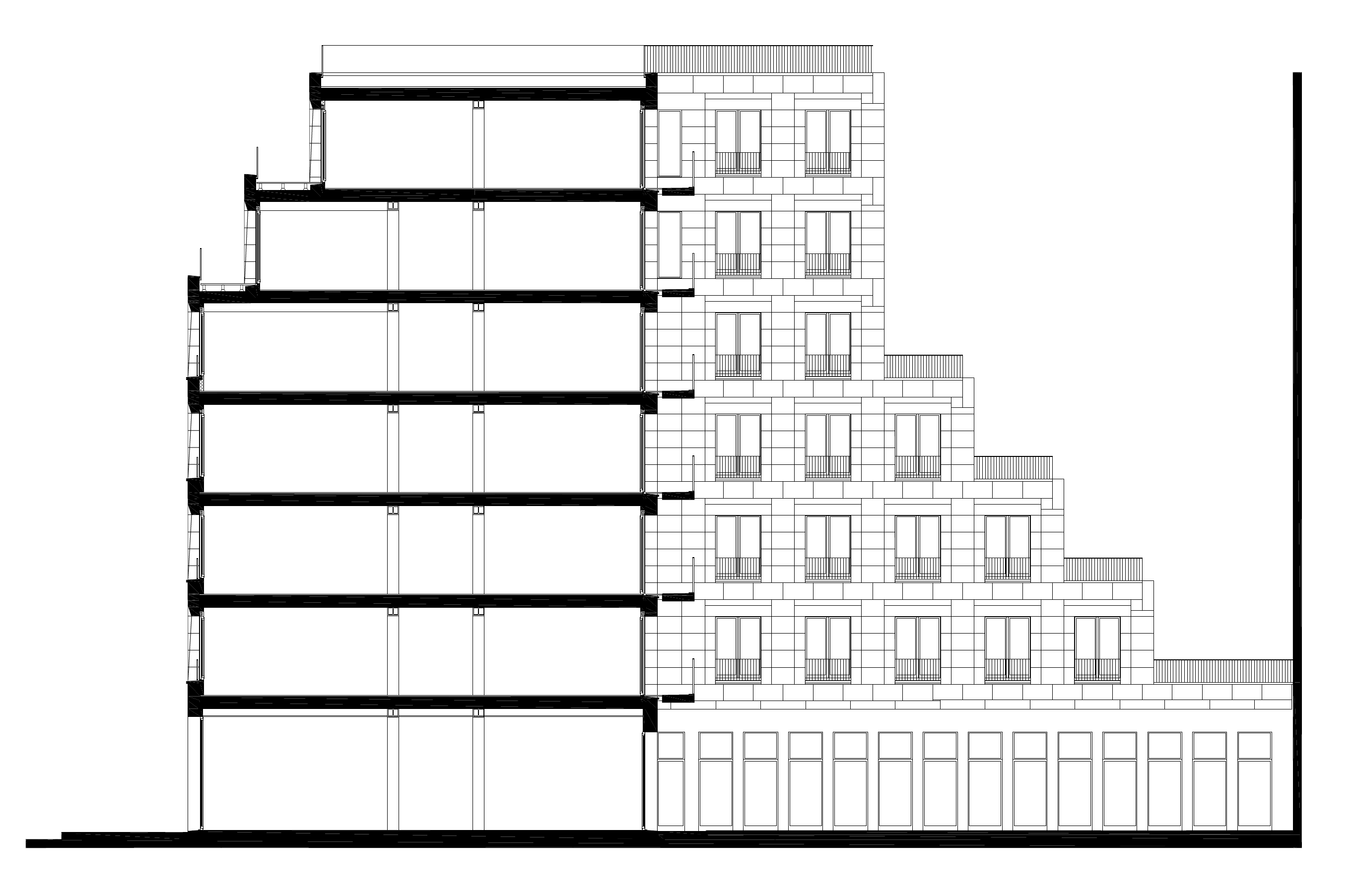
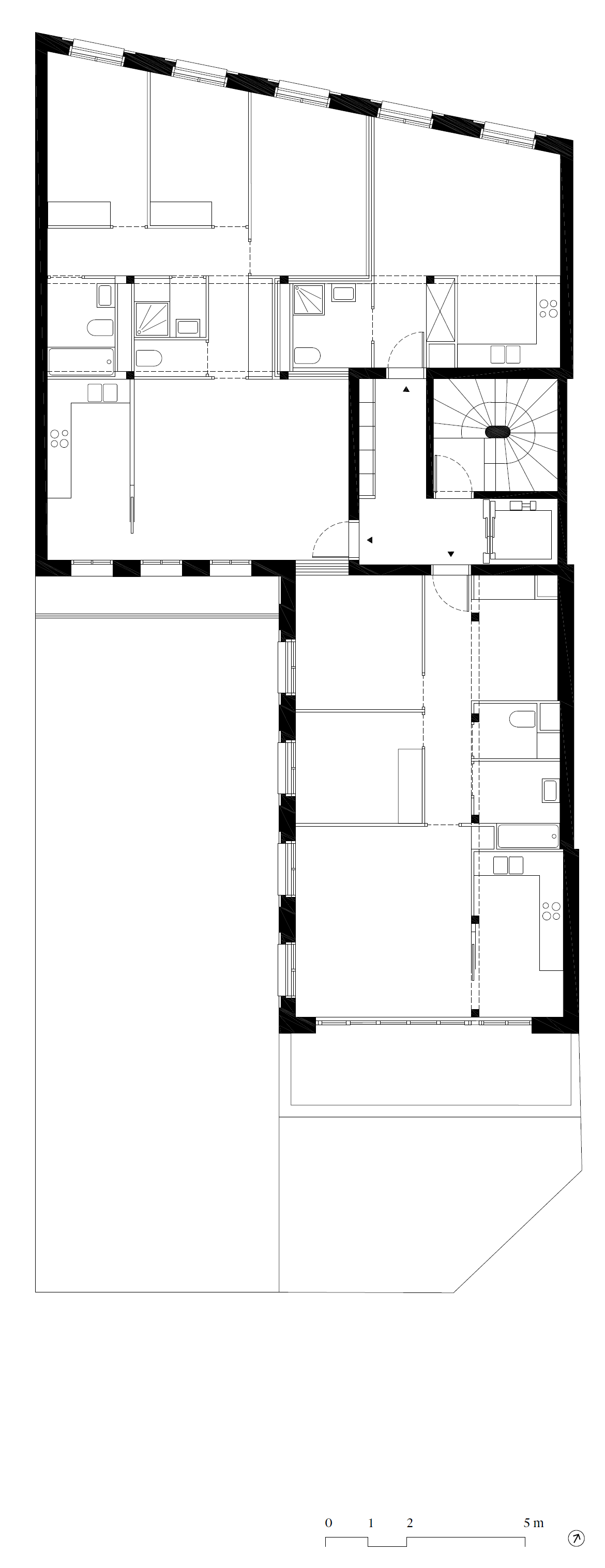
The volumetry of the building derives from urban regulations and the orientation of the site. The densest part of the building is aligned with the street whereas the second part, situated inside the block, is disposed in south-facing graded terrasses.
Stone: From Material to Resource
Stone is abundant in France and notably in the vicinity of Paris. Its use is virtuous environmentally and highly contextual, drawing on local resources and engaging the regional economy. Territory, city and architecture are thus brought together by this ancestral material. The energy necessary to extract, cut and lay stone is limited in comparison to other materials. It undergoes little transformation and its intrinsic properties are conserved in the process. Having been a geological layer, stone becomes a resource, imbued with new purpose and meaning.
Structure/Hybridation
The construction of the building is hybrid, composed of different materials each assuming a particular mechanical or thermal role. All the facades are in massive stone supported by reinforced concrete porticos on the ground floor. This juxtaposition recalls the Parisian building tradition, wherein the materiality of the lower and higher levels was typically differentiated. The thickness of the stone facade varies depending on the degree of its sollication, with 35 centimeters on the first level and 30 centimeters on the floors above. A metal frame associated with the facade reduces the load on the floor plates. Hemp concrete, whose breathability is well suited for stone masonry, insulates the building.
Stereotomy and Modenature
The science of stereotomy (art of cutting and assembling stone elements) leverages the significant technical advances associated with the building of cathedrals. For the project architects, an awareness of the life cycle of stone—extraction, transformation, use, reuse—gives new relevance to the architectural form and to construction details. As opposed to ornamentation by addition, the design of the window openings proceeds by subtraction, inspired by the Haussmannian pursuit of an economy of means and materials. The modernature hereby invokes history in order to innovate.

사이트
석조로 된 이 소셜하우징은 19세기 후반의 파리 개조 사업(Hausmannian: 1853년부터 1870년까지 진행된 프랑스의 수도 파리의 재건설 사업)과 함께 현지 토속 건축물이 공존하는 파리 11구에 위치해 있다.
양식
건물의 용적 측정은 도시의 규정과 부지의 방향성에서 비롯된다. 건물의 가장 밀도가 높은 부분은 도로와 일렬로 정렬되어 반면, 블록 내부에 위치한 두 번째 부분은 남쪽을 향한 계단식 테라스에 배치된다.
석재: 재료에서 자원으로
석재는 프랑스와 특히 파리 근교에 풍부한 재료다. 석재의 사용은 지역 자원을 활용하고 지역 경제를 참여시키는 환경적ㅇ고 매우 맥락적이다. 따라서 영토, 도시 및 건축은 이 재료에 의해 하나로 합쳐진다. 석재를 추출, 절단 및 배치하는 데 필요한 에너지는 다른 재료에 비해 제한적이다. 변형이 거의 없고 이 과정에서 고유한 특성이 보존된다. 지질층이었던 돌은 새로운 목적과 의미를 지닌 자원이 된다.
구조/혼성화
건물의 구조는 하이브리등이며, 각각 특정 기계적 또는 열적 역할을 가정하는 서로 다른 재료로 구성되어 있다. 모든 정면은 1층의 주랑 현관(portico)으로 지지되는 거대한 석재로 되어 있다. 이는 하층부와 상층부의 물질성이 전형적으로 구별되었던 파리의 전통적인 건축을 떠올리게 한다. 석조 파사드의 두께는 돌기 정도에 따라 달라지는데, 1층은 35cm, 위층은 30cm이다. 파사드에 사용된 금속 프레임은 바닥 판에 가해지는 하중을 감소시킨다. 석조 건축에 적합한 통기성을 지닌 삼베 콘크리트가 건물을 단열한다.
고정 관념과 현대
고정 관념의 과학(석재 요소를 자르고 조립하는 기술)은 대성당 건축과 관련된 중요한 기술 발전을 활용한다. 프로젝트 건축가에게 석재의 수명 주기(추출, 변형, 사용, 재사용)에 대한 인식은 건축 형태와 건축 세부 사항에 새로운 관련성을 부여한다. 더하기에 의한 장식과 대조적으로 창 개구부의 디자인은 수단과 재료의 경제를 추구하는 파리 개조 사업에서 영감을 받아 빼기로 진행된다. 이로써 근대성은 혁신을 위해 역사를 불러일으킨다.

















Architect Barrault Pressacco
Location Paris, France
Complete 2017
Collaborator Julie André-Garguilo(competition), Pauline Rabjeau(studies)
Structure, Thermal engineering LM Ingénieur
M&E engineering Atelux
Economist ALP ingénierie
Acoustics QCS services
Client RIVP
Photographer Giaime Meloni, Maxime Delvaux, Clément Guillaume
'Architecture Project > Multifamily' 카테고리의 다른 글
| SAKURAGICHO RESIDENCE (0) | 2022.10.25 |
|---|---|
| 110 HOUSING UNITS IN TOULOUSE (0) | 2022.09.30 |
| ARC (0) | 2022.09.21 |
| YEOKSAM MULTI-FAMILY RESIDENCE (0) | 2022.09.15 |
| Viale Giulini Affordable Housing (0) | 2022.09.05 |
마실와이드 | 등록번호 : 서울, 아03630 | 등록일자 : 2015년 03월 11일 | 마실와이드 | 발행ㆍ편집인 : 김명규 | 청소년보호책임자 : 최지희 | 발행소 : 서울시 마포구 월드컵로8길 45-8 1층 | 발행일자 : 매일



