
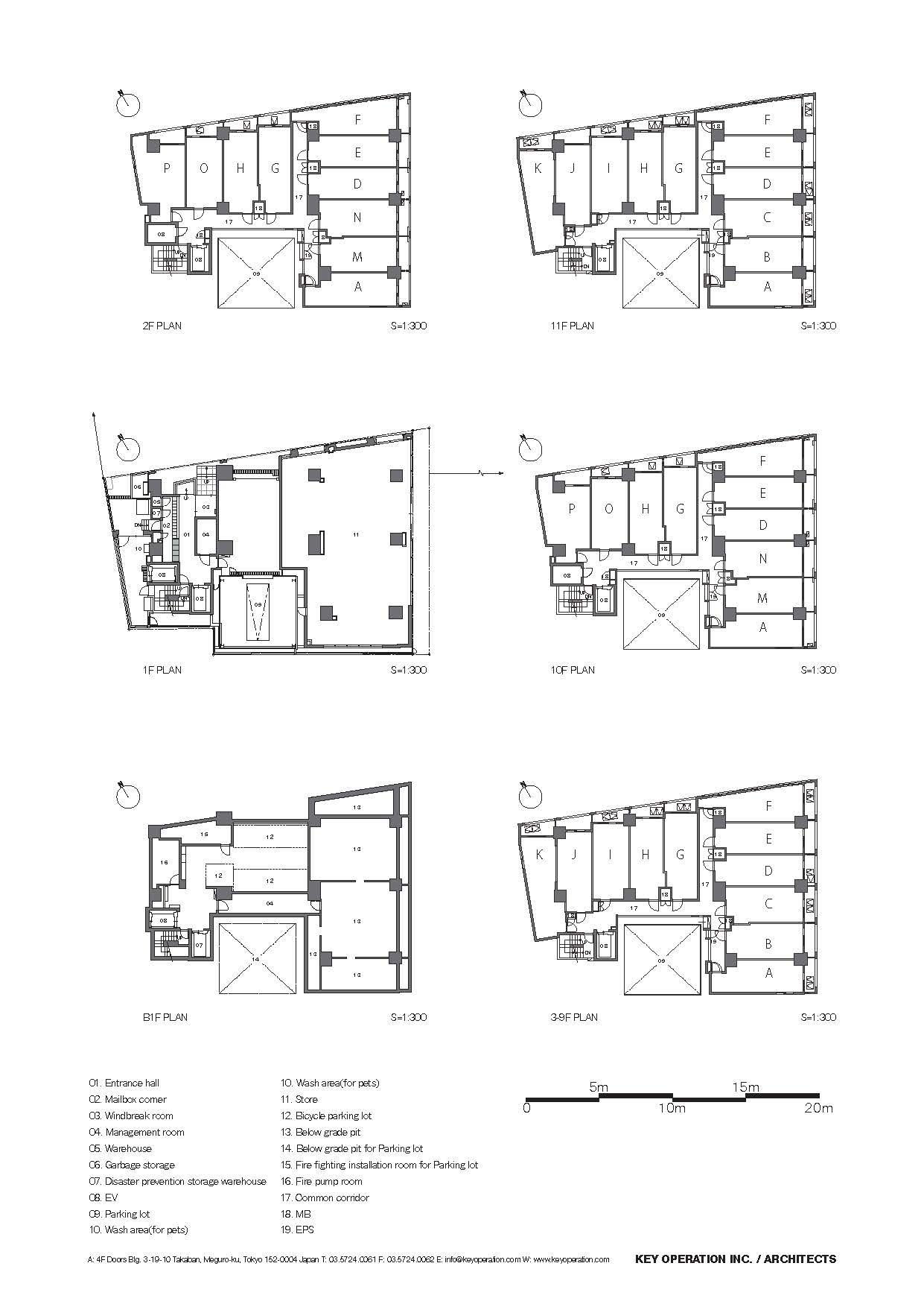
Apartment blocks sprang up across Japan after World War II, and by 2019, there were over 6.6 million units nationwide. Large buildings with over a hundred units, such as this one, significantly impact the appearance of the urban landscape. Many large multi-unit buildings have continuous balconies along their facades to improve the efficiency of emergency evacuations, and outdoor air conditioners are often placed on these balconies as well. This gives rise to the characteristic look of many apartment blocks, with balconies running the length of each floor punctuated by dividing walls between units. Beginning in the 1980s, developers began using tiled facades to give their buildings a classy appearance and improve marketability. But while tiling did raise the value of the units, in recent years accidents involving falling tiles have become a problem. This project seeks to redefine the familiar balcony-and-tile apartment block with a new look.
The facade of the residential portion of the building, which starts on the second floor, does indeed feature balconies across the length of each floor. However, an outer skin punctuated by evenly spaced openings wraps over the balconies, blending the upper floors with the commercial-use first floor and lending ambiguity to the facade, which could just as easily conceal a business complex as a residential one.
Instead of tiling the exterior, we used concrete imprinted with grooved formwork to reference the appearance of Yokohama’s classic brick buildings. A clear coating makes the concrete look like grey brick from a distance. We initially considered finishing the inside of the balconies with wood paneling, but due to the challenges of maintenance in apartment blocks, we settled on concrete imprinted with vertical grooves at intervals the width of wood panels. A light undercoat and darker topcoat were applied to the concrete, which was then scraped with a wood-graining tool before the stain dried to replicate wood panels.
In this project, an ambiguous concrete skin serves multiple function: referencing urban history, contributing to the cityscape, revitalizing the community, adding value for buyers and sellers, and easing maintenance. It is our hope that the project offers a new model for apartment block design.

제2차 세계 대전 이후 일본 전역에는 아파트가 생겨나기 시작했다. 2019년까지 일본 전역에 걸쳐 660만 호 정도의 아파트가 들어섰는데, 100개 이상의 대형 건물이 생겨나면서 도시 경관에 영향을 줬다. 대형 다세대 건물에는 효율적인 비상대피를 위해 정면을 따라 발코니를 줄지어 두었고, 종종 에어컨 실외기가 설치되어있는 걸 볼 수 있었다. 또한, 층을 따라 길게 만들어진 발코니를 벽으로 분리한 모습은 아파트 대다수에서 볼 수 있는 특징이다. 1980년대부터 건물 외관의 고급스러움과 시장성을 높이기 위해 입면에 타일을 사용하기 시작했다. 타일을 사용하며 건물의 가치는 높아졌으나, 타일이 떨어지는 문제가 생기기도 했다.
사쿠라기초 레지던스는 우리에게 익숙한 발코니와 타일식 아파트를 새로운 모습으로 재해석하는 프로젝트다. 2층에서부터 시작되는 주거 공간의 외관에는 층의 길이와 비슷한 발코니를 두었다. 균일한 간격으로 열린 외피는 발코니를 감싸고 있어, 외부에서 상업시설과 주거공간을 구분하기 어렵다. 외벽은 타일 대신 요코하마의 고전적인 벽돌 건물의 외관을 참고해, 홈이 있는 거푸집과 콘크리트를 사용했다. 투명한 코팅은 멀리서 보았을 때 콘크리트를 회색 벽돌처럼 보이게 한다. 처음에는 베란다 내부 마감 재료로 목재를 생각했지만, 아파트의 유지관리를 위해 목판 너비의 간격으로 수직 홈을 각인한 콘크리트로 결정했다. 콘크리트에 연한 언더코트와 어두운 탑코트를 사용했고, 스테인이 건조되기 전에 긁어내 나뭇결이 있는 목재처럼 보이게 했다.
이 프로젝트에서 모호한 콘크리트 외피는 도시의 역사를 담고 있으며, 지역 커뮤니티를 활성하하고, 새로운 도시 경관을 만든다. 또한, 판매자와 구매자를 위한 가치를 높이고, 유지관리를 편하게 하는 등 다양한 역할을 한다. 사쿠라기초 레지던스가 아파트 블록 디자인에 새로운 대안을 제공하는 프로젝트가 되길 희망한다.















Architect Akira Koyama + KEY OPERATION INC. / ARCHITECTS
Location Yokohama, Kanagawa Prefecture, Japan
Program Apartment
Site area 503.70㎡
Building area 416.90㎡
Gross floor area 4129.76㎡
Building scope B1, 11F
Completion 2021. 3
Client Tohshin Partners Co., Ltd.
Photographer Noriyuki Yano
해당 프로젝트는 건축문화 2022년 7월호(Vol. 494)에 게재되었습니다.
The project was published in the July, 2022 recent projects of the magazine(Vol. 494).
July 2022 : vol. 494
Contents : RECORDS I LIVE ALONE AND TOGETHER 나 혼자, 그리고 같이 산다 “SPACE COORDINATOR”, AN EXPERIMENTAL AND INNOVATIVE DISCOURSE THAT REVOLUTIONIZES THE CITY 도시를 새롭게..
anc.masilwide.com
'Architecture Project > Multifamily' 카테고리의 다른 글
| REAL DE LOS REYES RESIDENTIAL COMPLEX (0) | 2022.11.18 |
|---|---|
| TREE-HOUSE (0) | 2022.10.25 |
| 110 HOUSING UNITS IN TOULOUSE (0) | 2022.09.30 |
| SOCIAL HOUSING UNITS IN MASSIVE STONE (0) | 2022.09.28 |
| ARC (0) | 2022.09.21 |
마실와이드 | 등록번호 : 서울, 아03630 | 등록일자 : 2015년 03월 11일 | 마실와이드 | 발행ㆍ편집인 : 김명규 | 청소년보호책임자 : 최지희 | 발행소 : 서울시 마포구 월드컵로8길 45-8 1층 | 발행일자 : 매일



