
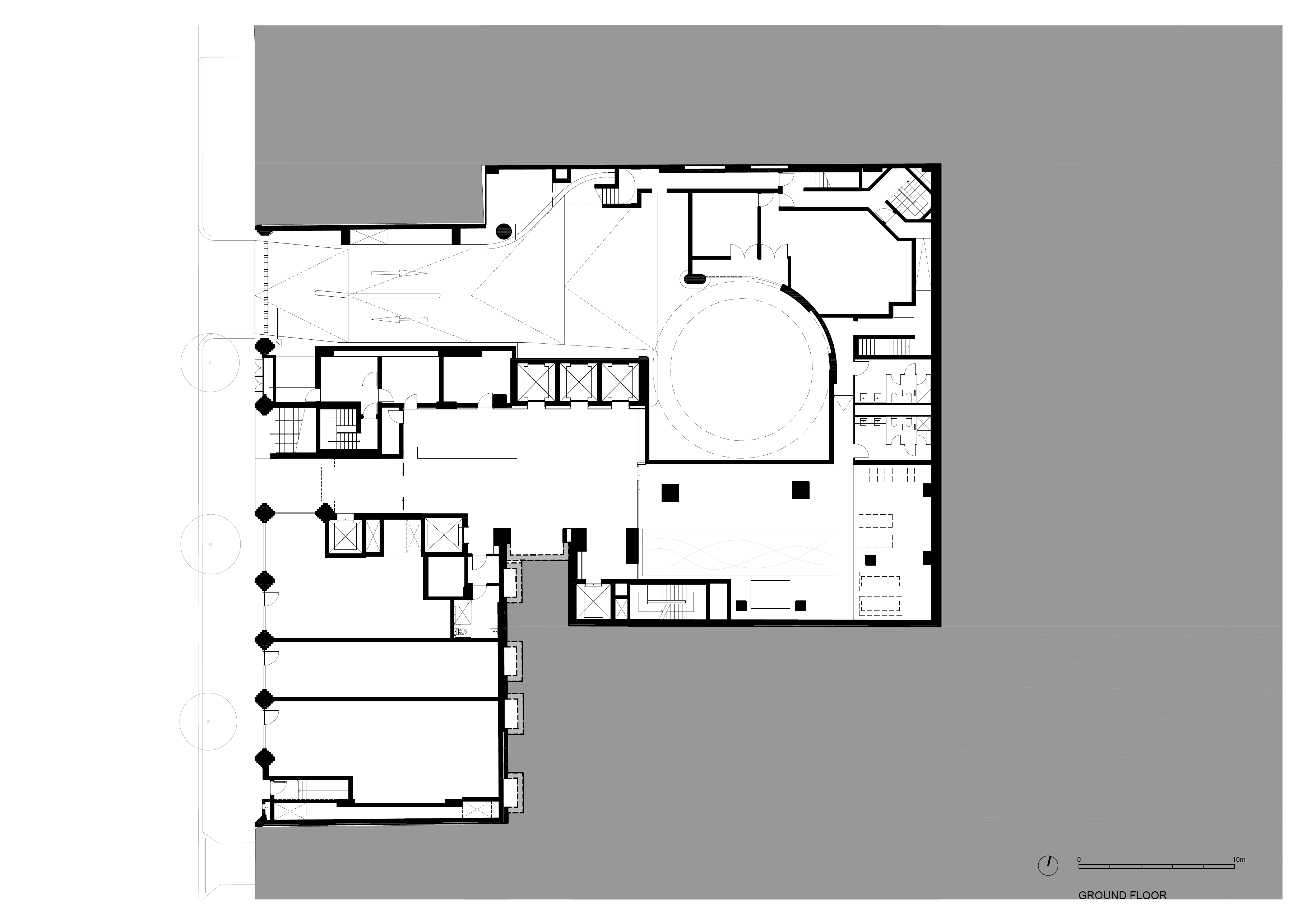
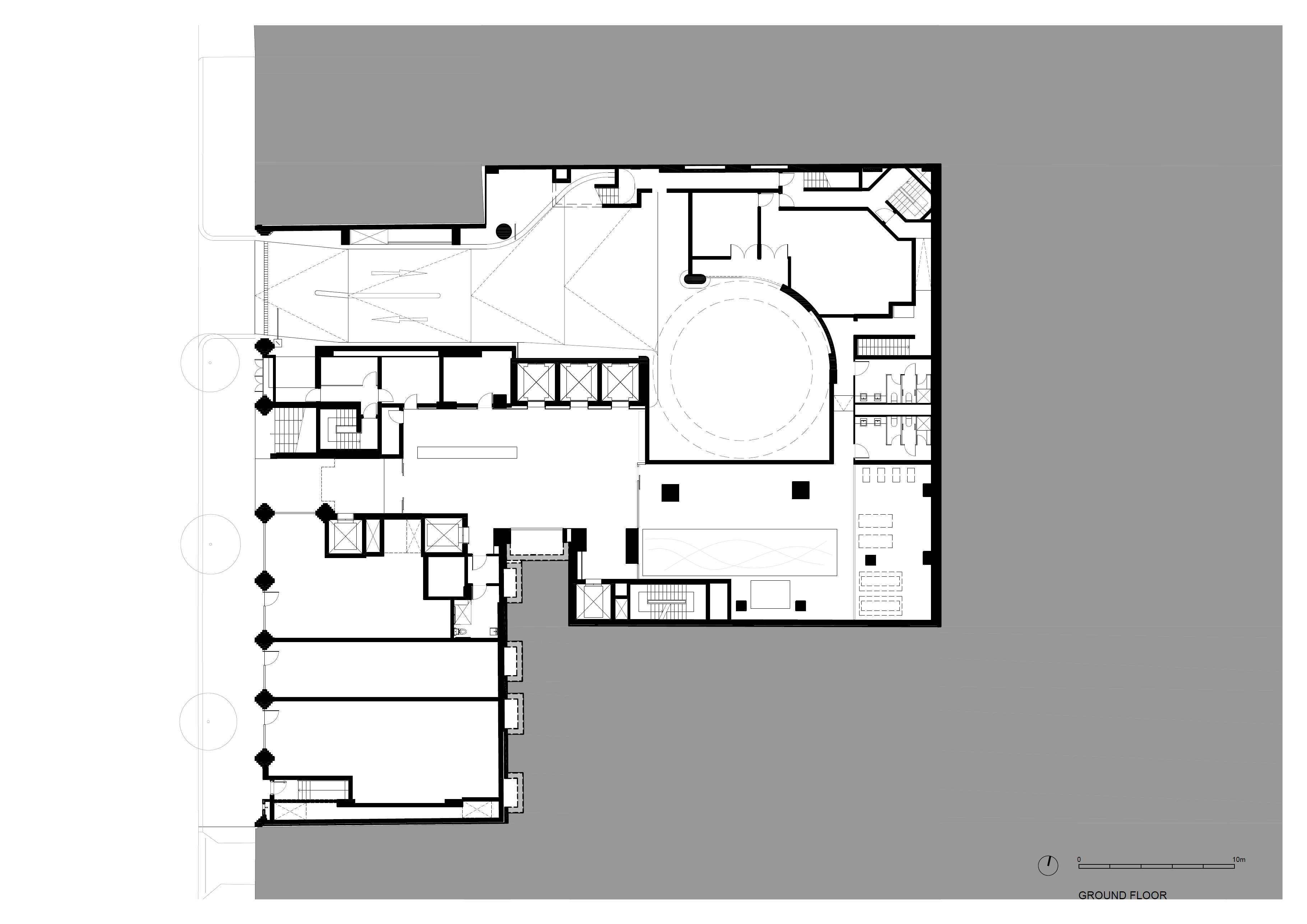
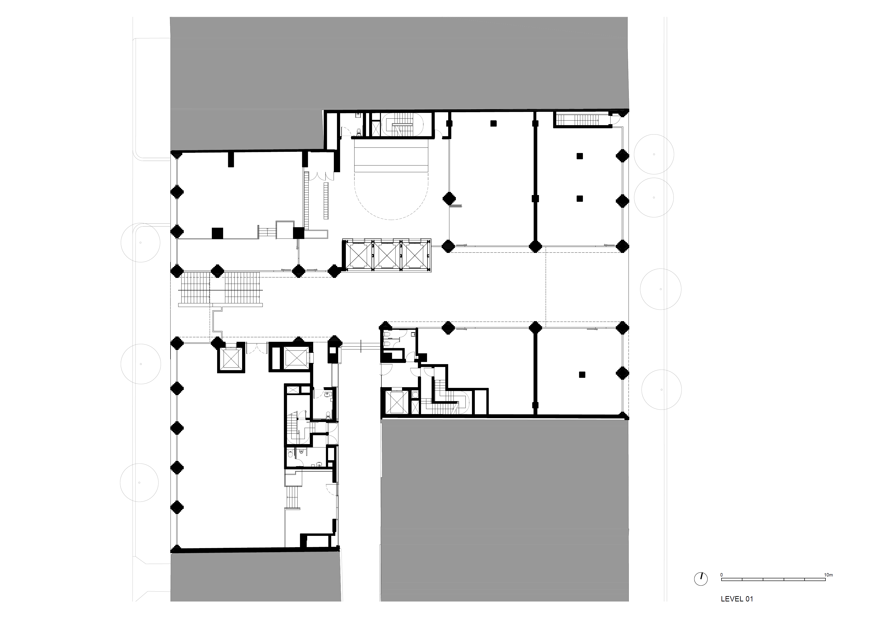
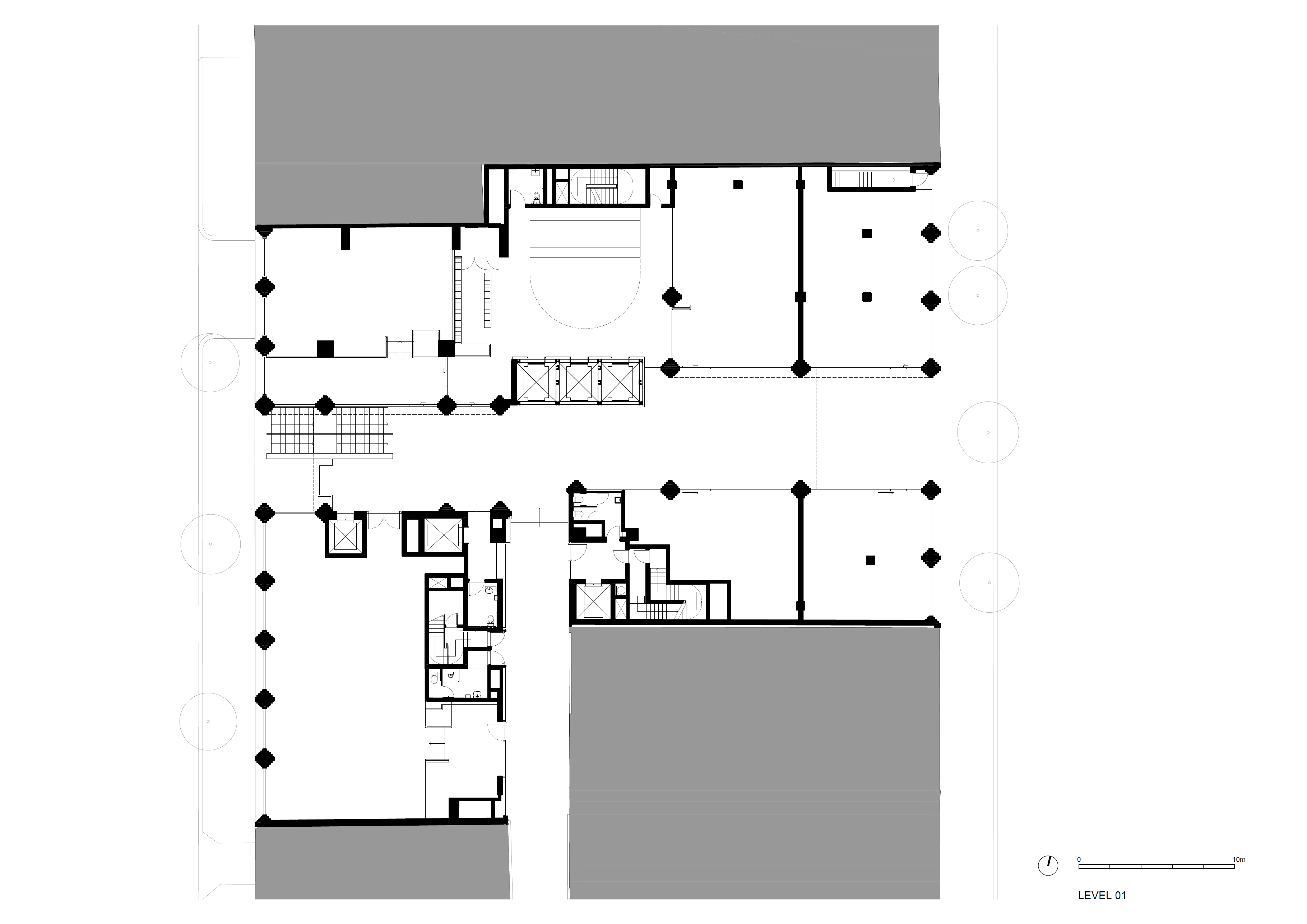
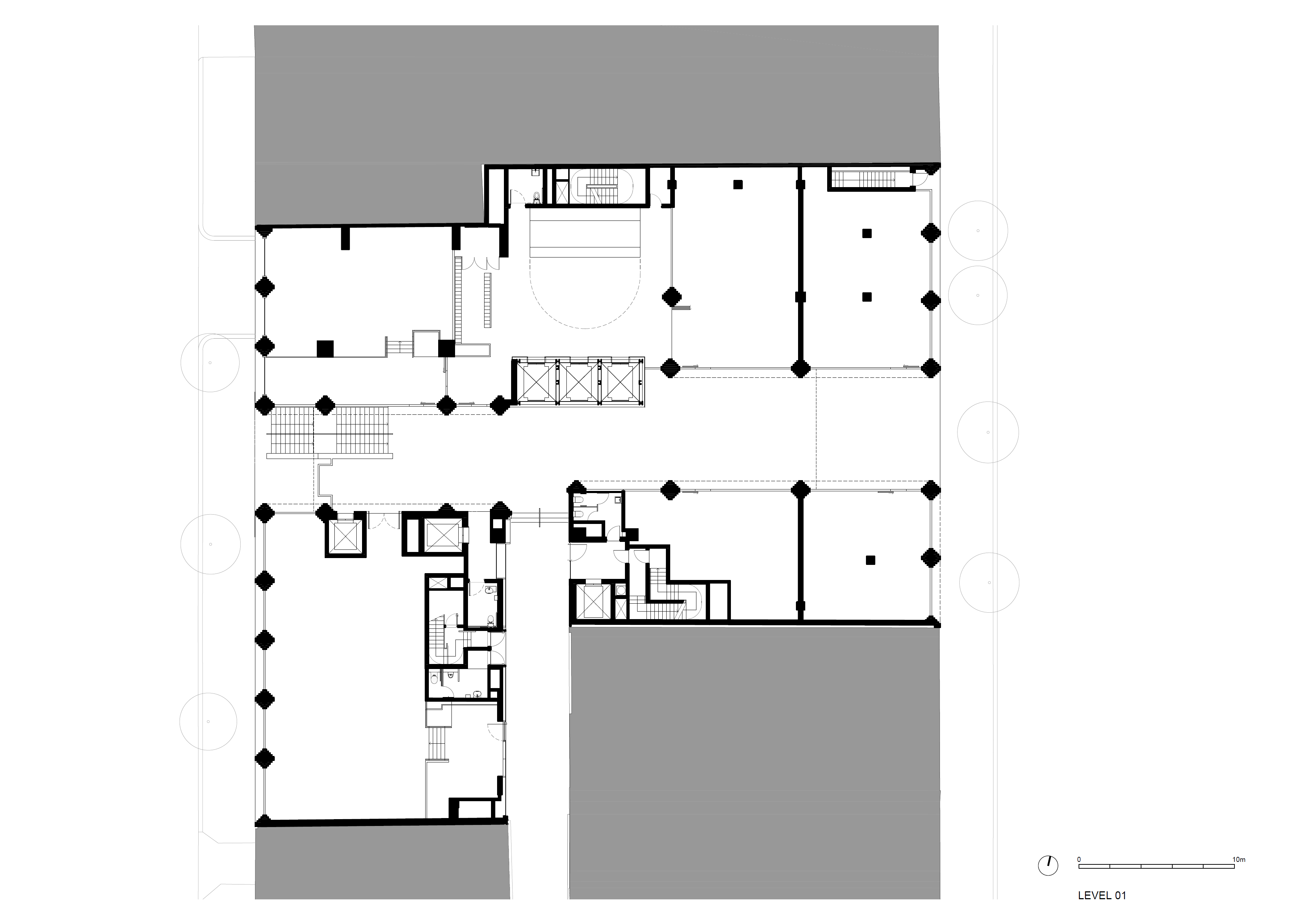
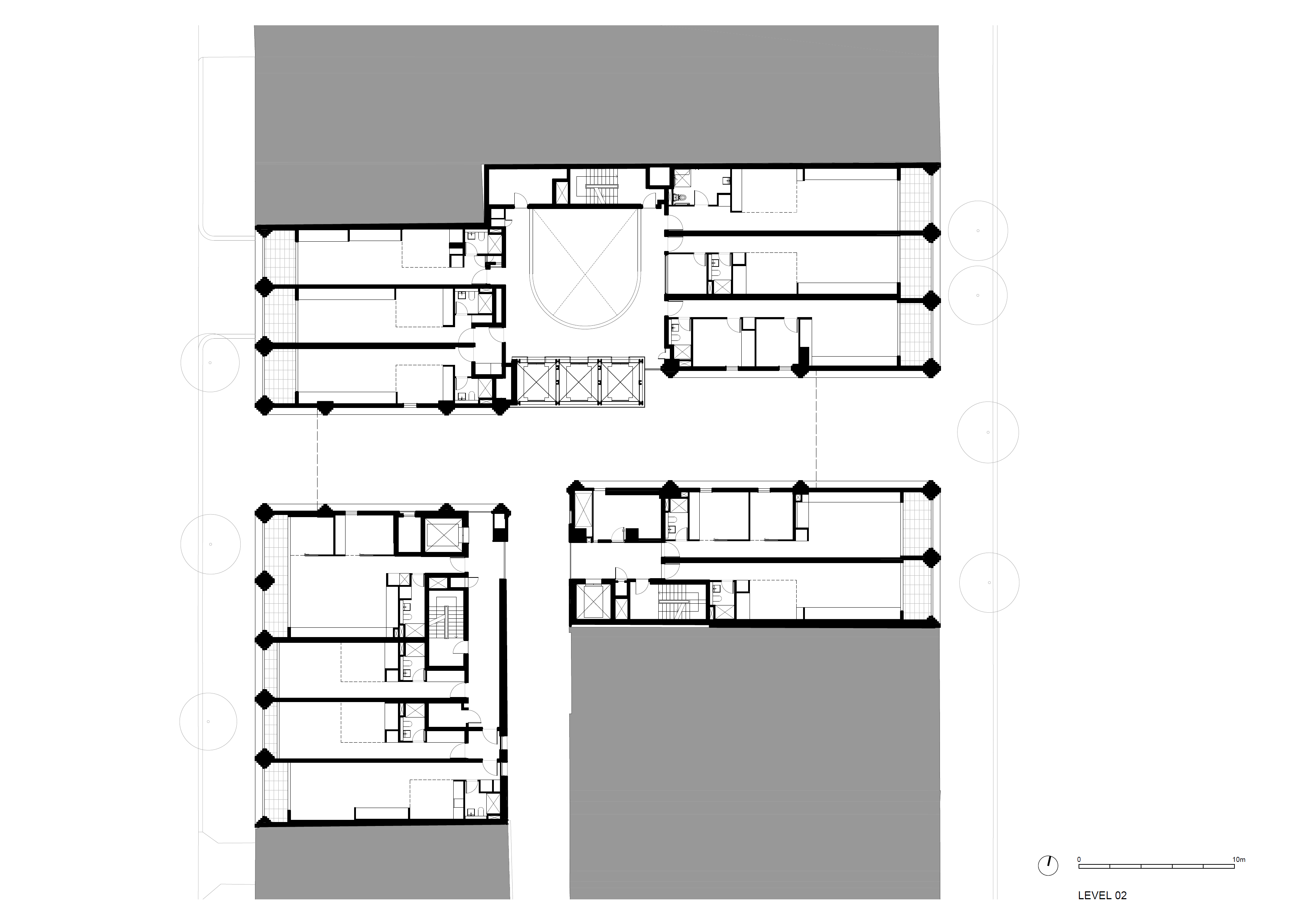
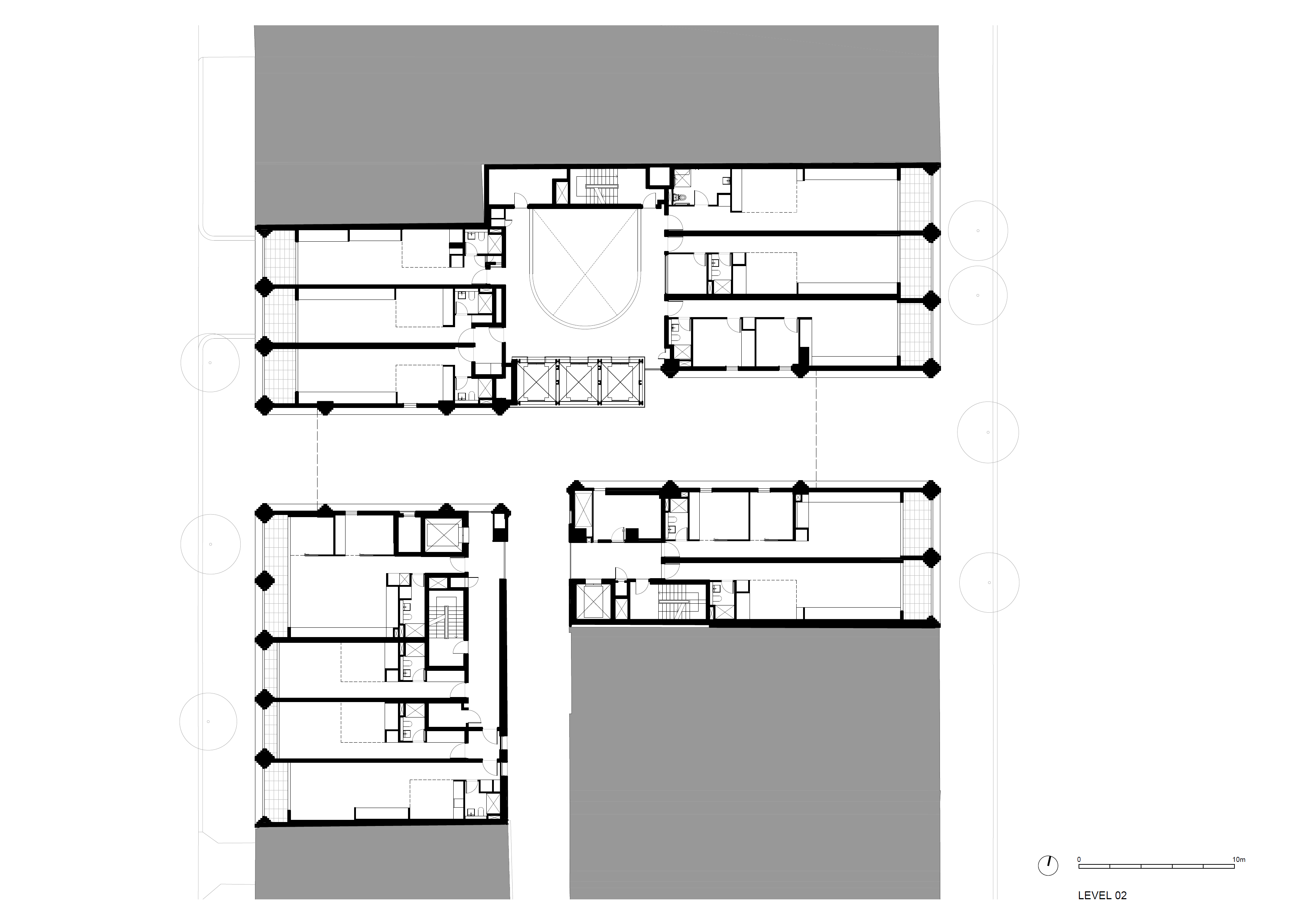
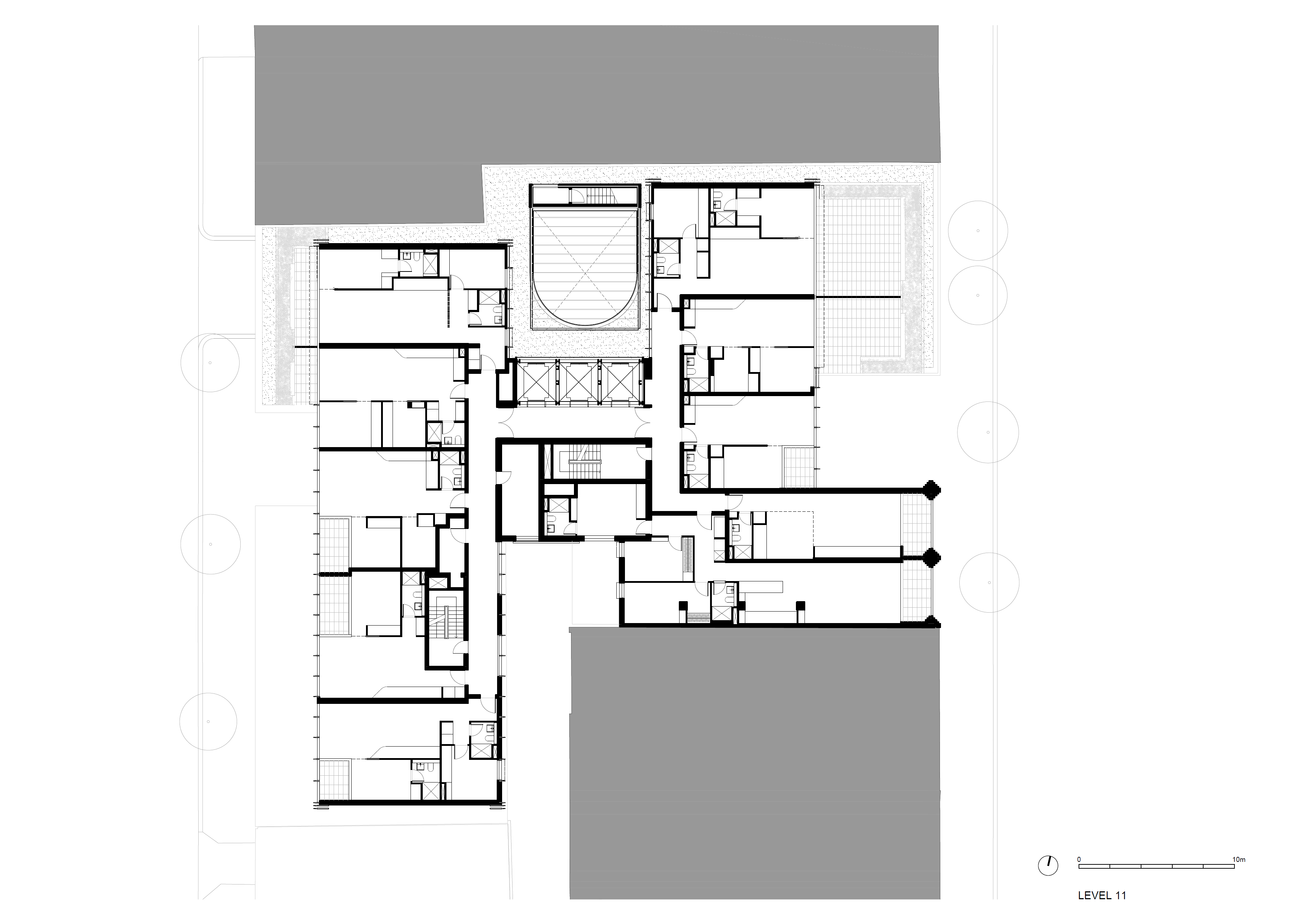
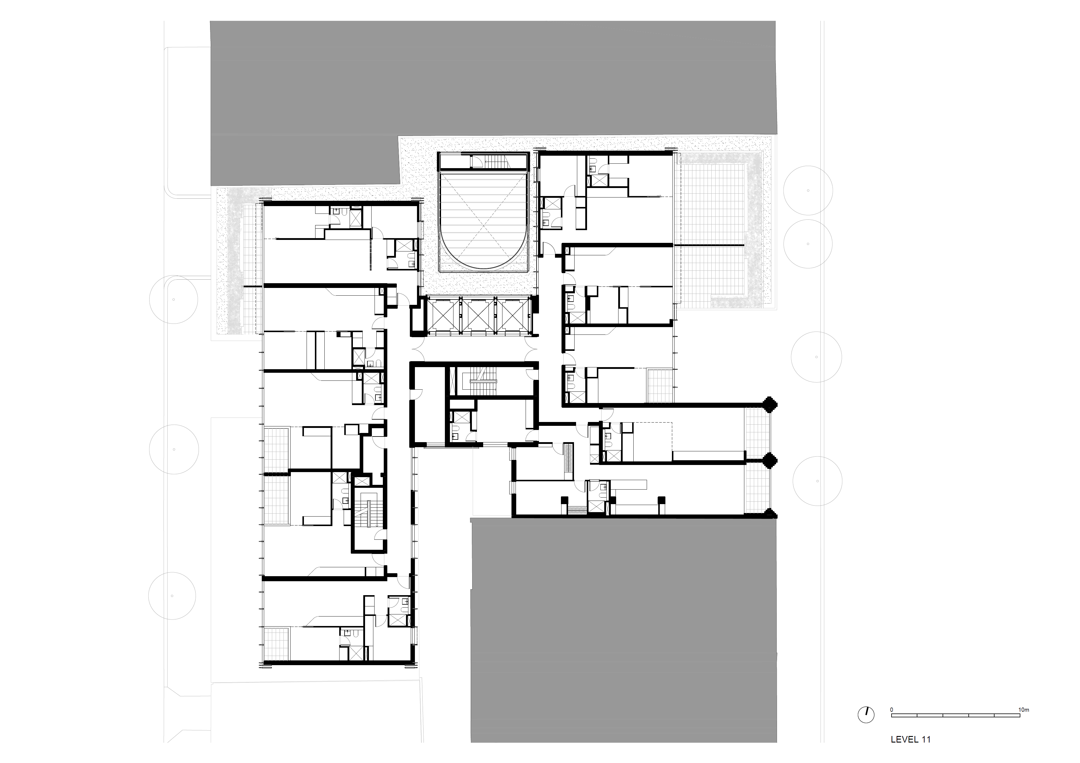
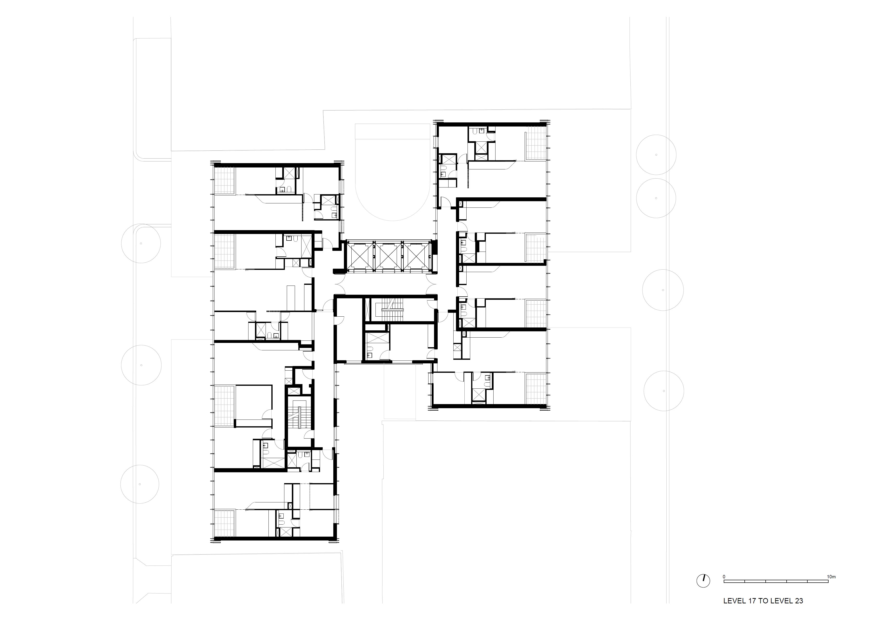
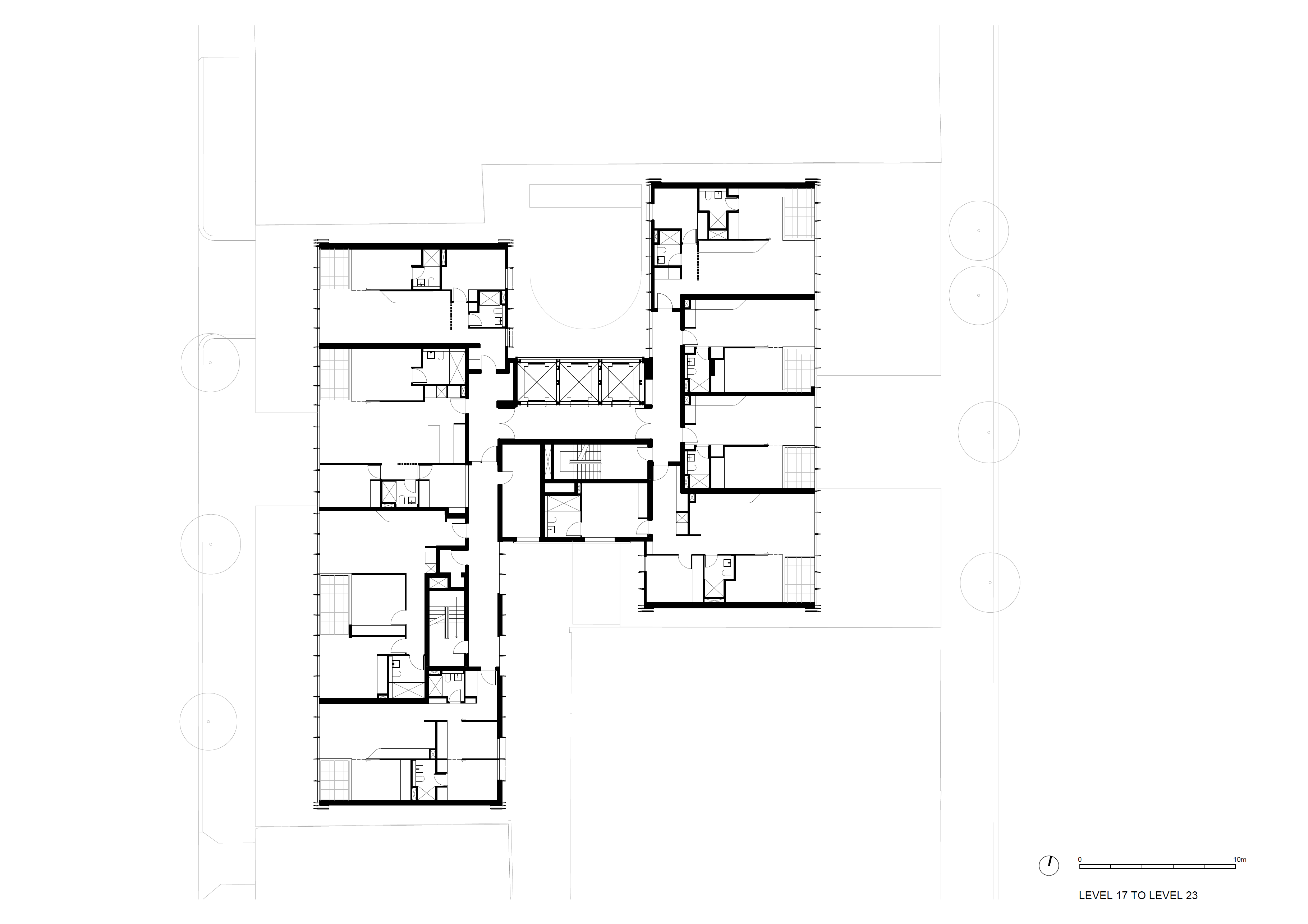
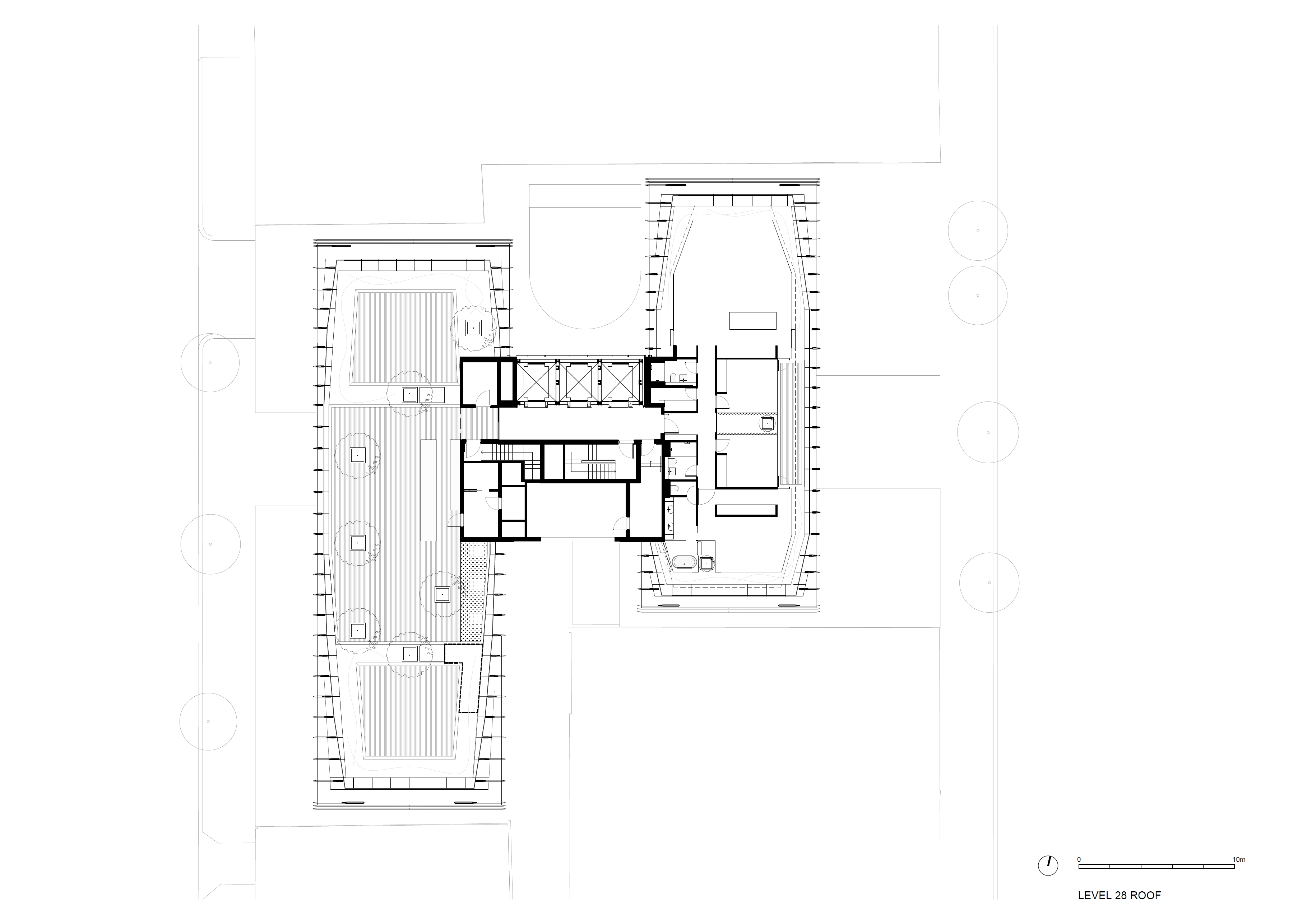
Winner of the City of Sydney Design Excellence Competition in 2013, Arc represents an architectural statement that combines craftsmanship and texture to create a contemporary tower that respects the rich historical context of its surrounding urban fabric. A pair of 26-storey towers with a distinctively arched roofscape becomes the latest mixed-use building to join Sydney’s celebrated skyline. The two slim towers rise from an 8-storey masonry podium inspired by the heritage buildings in the area. The 300,000 handcrafted bricks blend seamlessly within the delicate historic context creating a public through-site connection between Clarence and Kent Streets. The name, Skittle Lane, dates to the 1980s and draws its name from its past life as a bowling alley from sailors and soldiers. Above, 59 fins travel up the length of the building culminating in an organic crown feature, instantly distinguishing Arc from the rest of skyline, a curved roof form that celebrates how the tower meets the sky. The concept relates to the historical context of the site. We carefully studied the proportions of the arches and materiality used historically in Sydney. The design has a heavy masonry character at the base, whereas the tower above has a finer, lighter materiality. Despite our expectation, we have been overwhelmed with positive messages about the use of traditional brickwork. People have responded to the warmth and use of traditional methods being brought back to a modern city centre where most buildings are glass and metal. Inspired by the masonry component in the significant heritage buildings next door; The Red Cross Building and Andrew Bros Warehouse, and drawing from their characteristic arches, a duality is introduced to the façade and represented by the varied aesthetics of the podium and tower. Informed by the curvilinear nature of Sydney Harbour and the brickwork in neighbouring buildings, the materials and details have a level of intricacy and authenticity that relates strongly to Sydney’s past. The majority of the city has flat-topped buildings everywhere. Arc explores an opportunity to open up the rooftop. We designed to celebrate the great outdoor lifestyle that Sydney is famous for, and the first high-rise residential design to break the mould. We convinced the city and our clients that there is more value in using the roof for public amenity instead of private apartments - imagine a city where people can escape to the rooftop, where the architecture facilitates social interaction and the reimagining of the urban environment. An organic crown feature instantly distinguishes Arc from the surrounding context, a curved roof form that celebrates how the tower meets the sky. The rooftop opens up a new dialogue with what is possible in our future cities activating not only the ground plane but also the sky-plane. When you come up to the Arc rooftop, you can see the Sydney Harbour as a backdrop to the city view. The curved roof arches connect you with the organic and undulating lines of Sydney Harbour and its best natural assets.

호주 시드니에 위치한 ARC는 볼링장이었던 것에서 이름을 따왔다. 위에는 59개의 지느러미 형태가 건물의 전체를 따라 이동하며 자연스러운 꼭대기의 형태를 이룬다. 타워와 하늘이 맞닿는 것을 기념이라도 하듯 곡선 지붕 형태인 Arc가 스카이라인의 나머지 부분과 구별 짓는다. 이 개념은 장소의 역사적 맥락과 관련이 있다. 우리는 시드니에서 역사적으로 사용된 아치와 재질의 비율을 주의 깊게 연구했다. 기단부는 무거운 석조적 특징을 가지고 있는 반면, 위 탑은 더 미세하고 가벼운 재질을 가지고 있다. 우리도 모르게 기대하면서, 전통적인 벽돌의 사용에 대한 긍정적인 메시지에 휩싸여 있었다. 사람들은 대부분의 건물들이 유리와 금속인 현대 도시 중심부로 되돌아오는 전통적인 방법의 사용과 따뜻함에 반응했다. 이웃에 있는 중요한 유산 건물의 석조 구성 요소에서 영감을 받았다. 적십자 건물과 Andrew Bros Warehouse에서 특유의 아치 모양을 이끌어냈다. 이중성이 정면에 도입되었으며, 단과 타워의 다양한 미학이 표현되었다. 시드니 항구의 곡선적 특성과 인근 건물의 벽돌 세공물을 통해 알 수 있는 재료와 디테일은 시드니의 과거와 밀접한 관련이 있는 복잡성과 진정성이 있다. 도시의 대다수는 모든 곳에 평평한 지붕의 건물들이 있다. 아크는 옥상을 개방할 기회를 모색한다. 우리는 시드니의 유명한 훌륭한 야외 라이프 스타일과 틀을 깨는 최초의 고층 주거 디자인을 기념하기 위해 디자인했다. 우리는 개인 아파트 대신 공공 편의시설을 위해 지붕을 사용하는 것이 더 가치가 있다고 시와 고객들에게 확신시켰다. 건축물이 사회적 상호 작용과 도시 환경의 재해석을 용이하게 하는 옥상으로 사람들이 탈출할 수 있는 도시를 상상해보라. 유기적인 꼭대기의 모양은 탑이 어떻게 하늘과 만나는지를 기념하는 곡선 지붕 형태인 아크를 주변 환경과 즉시 구분한다. 옥상은 지반면뿐만 아니라 고층부까지 활성화하면서 우리의 미래 도시에서 가능한 것에 대한 새로운 대화를 연다. 아크 옥상에 올라오면 도시의 뷰를 배경으로 시드니 항구가 보인다. 휘어진 지붕 아치는 당신을 시드니 항구의 자연스럽고 물결모양인 선과 최고의 자연 자산과 연결시킨다.






















Architects Koichi Takada Architects
Location Sydney, Australia
Program Multi-Residential
Site area 1,447㎡
Gross floor area 17,400㎡
Height 80m
Completion 2018
Consulting Van Der Meer Consulting
Builder Hutchinson Builders
Façade engineer Inhabit / Surface Design
Masonry façade engineer AECOM (Brick)
Bricklayer(Masonry Subcontractor) Favetti
Clients Crown Group
Photographer Tom Ferguson, Martin Siegner, Martin Mischkulnig, Simon Wood
'Architecture Project > Multifamily' 카테고리의 다른 글
| 110 HOUSING UNITS IN TOULOUSE (0) | 2022.09.30 |
|---|---|
| SOCIAL HOUSING UNITS IN MASSIVE STONE (0) | 2022.09.28 |
| YEOKSAM MULTI-FAMILY RESIDENCE (0) | 2022.09.15 |
| Viale Giulini Affordable Housing (0) | 2022.09.05 |
| ANSEONG COMMERCIAL HOUSE "班" (0) | 2022.07.22 |
마실와이드 | 등록번호 : 서울, 아03630 | 등록일자 : 2015년 03월 11일 | 마실와이드 | 발행ㆍ편집인 : 김명규 | 청소년보호책임자 : 최지희 | 발행소 : 서울시 마포구 월드컵로8길 45-8 1층 | 발행일자 : 매일



