
The architectural typology of mixed-use urban house:
In recent years, the rapid rise of property prices and economic development in combination with the increasing demand of shop and apartment renting have made mixed-use urban houses become more and more popular in Vietnam’s big cities. This architectural typology requires highly effective design solutions in terms of business model and program, and also needs unique characteristics which are responsive to the context and fit with the occupants’ lifestyle.
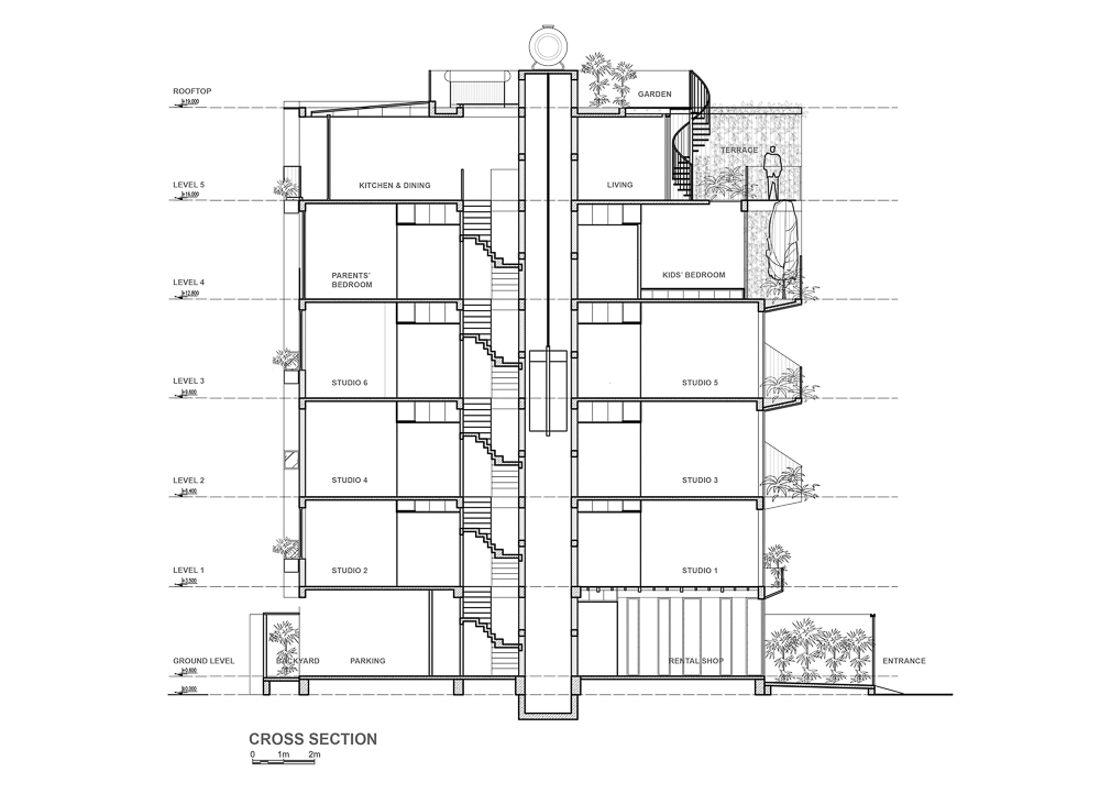
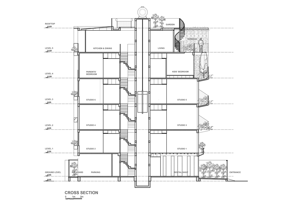
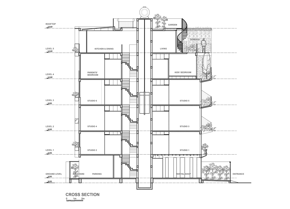
A 6 level townhouse located on an 80m2 land lot on a busy street in Ho Chi Minh City, Vietnam is a typical example of the architectural typology of mixed-use urban house in Vietnam’s cities. The building was designed to comprise a variety of different uses inside, including shared and service spaces; a small commercial space; and 6 fully-furnished rental studios in the lower three levels in combination with the 2 bedroom owner’s home on the top two levels.
A house is considered as an organic ecosystem:
The design concept is inspired from the formation of a growing tree. The tree root is similar with the building’s foundation with 25m deep piling, the lowest part of the trunk accommodates the shop and the entrance, the studios build up the tree trunk with leafy cantilevered balconies just like tree branches, the big tree canopy on top is imaginably formed by a double-high pergola and the owner’s home’s big terraces, this is also the focal point of the overall architectural form.
In this unique Tree-House, the tenants give a stable income to the owner, the owner warmly welcome and support the tenants every day. Each person has the privacy and independence while living in his or her space, and they altogether take care of the shared spaces, ensure the safety and security, and enjoy living together under one roof. The occupants create a closely-bound and supportive community just like a harmonious and diverse organic ecosystem in the nature.
Architecture connected with the nature:
The floor plans are designed with the circulation core at the center and habitable spaces at the front and rear. The 3.5m setback forms a courtyard at the front, a bike and bicycle parking area is located at the rear, next to a backyard. The front and rear voids engage sufficient natural ventilation and daylighting into the rooms. Rustic and natural-friendly materials such as exposed concrete ceiling and terrazzo floor are harmoniously combined with recyclable wooden joinery and glazing.
The facade consists of zig-zagging walls finished in sand-washed paint which effectively reflect the sound, reduce the noise from the busy street, and are also visually related to the ridges of a tree bark. Diverse landscape spaces are placed throughout the facade in forms of planters and balconies. The two top levels are attached with leafy gardens and a vine-covered pergola which minimizes the direct sunlight. From there, a spiral stair leads to a secret rooftop garden with panorama view to the city. All these design elements have created a vibrant connection between architecture and the nature.

트리 하우스
복합용도 도시 주택의 건축 유형
최근 몇 년 사이 베트남의 경제가 발전하며, 부동산 가격이 급격하게 높아졌다. 대도시의 상점과 아파트 임대 수요가 증가하면서 복합용도의 도시 주택이 점점 더 인기를 끌고 있다. 이러한 건축 유형에는 비즈니스 모델, 프로그램 측면에서 효과적인 설계가 필요했고, 주변 컨텍스트와 거주자의 라이프스타일에 맞는 고유한 특성도 필요했다.
베트남 호치민시 번화가의 80㎡ 크기의 대지에 있는 6층짜리 타운하우스는 베트남에서 흔히 볼 수 있는 복합용도 도시 주택의 유형 중 하나다. 내부는 다양한 프로그램으로 구성되어있는데, 공유 공간과 서비스 공간, 작은 상업 공간과 6개의 풀옵션 임대 스튜디오가 있고, 맨 위의 2개 층에는 2개의 침실이 있는 건축주의 집이 있다.
집은 유기적으로 연결된 생태계다
자라나는 나무의 모습에서 영감을 받아 디자인 콘셉트를 정했다. 나무뿌리가 25m 깊은 곳까지 뿌리를 내리는 것이 건물의 기초 공사와 비슷하다고 생각했다. 줄기의 가장 낮은 부분은 가게와 입구를 두었고, 스튜디오는 나뭇가지처럼 잎이 무성한 캔틸레버 발코니를 가진 나무줄기가 되도록 했다. 건물의 상층에는 이중 높이의 퍼골라와 건축주의 큰 테라스 두었고, 전체적인 건축 형태의 중심이 될 수 있도록 했다.
개성 넘치는 트리 하우스에서 거주자들은 건축주에게 안정적인 소득을 제공하고, 건축주는 매일 거주자들을 환영하는 편안한 환경을 제공한다. 거주자들은 자신의 공간에서 독립된 생활을 하면서도 공유 공간을 같이 관리하고, 안전과 보안이 보장된 한 지붕 아래에서 함께 즐겁게 살아간다. 거주자들은 자연 속 조화로운 유기 생태계처럼 서로 밀접하게 연결되고 공유하는 공동체를 만들어간다.
자연과 연결된 건축
평면은 순환 코어를 중심으로 설계되었고, 전면과 후면에 거주 공간을 두었다. 전면은 3.5m 정도 뒤로 물러나게 해 안뜰을 만들었고, 후면의 뒤뜰 옆에는 자전거 주차장을 만들었다. 전면과 후면의 보이드는 공기 순환을 돕고, 객실마다 빛이 들어오게 한다.노출 콘크리트 천장, 테라조 바닥 등, 소박하면서도 자연 친화적인 재료는 재활용 가능한 목제 가구, 유리와 조화롭게 어우러진다.
나무 껍질처럼 보이는 건물의 전면은 지그재그 형태의 벽을 모래 세척 페인트로 마감했고, 번잡한 거리의 소음을 반사해 줄여준다. 전면에는 화분과 발코니 형태로 다양한 형태의 조경공간을 만들었다. 맨 위 두 개의 층에는 잎이 무성한 정원과 직사광선을 최소화하는 포도나무로 덮인 퍼골라가 있다. 나선형 계단은 도시의 전경을 볼 수 있는 비밀의 옥상 정원으로 이어진다. 모든 디자인 요소들은 건축과 싱그러운 자연을 이어준다.








































Architect ROOM+ Design & Build
Location Binh Thanh, Ho Chi Minh, Vietnam
Program Single family house
Site area 80㎡
Gross floor area 420㎡
Completion 2021
Principal architect Vinh Phuc Ta
Project architect Anh Tuan Pham
Design team Hoang Nam Nguyen, Nguyen Vu Le, Kim Quy Nguyen
Construction team Van Kieu Pham, Minh Thai Le, Tan Trung Ta
Photographer Sonmeo Nguyen Art Studio
해당 프로젝트는 건축문화 2022년 7월호(Vol. 494)에 게재되었습니다.
The project was published in the July, 2022 recent projects of the magazine(Vol. 494).
July 2022 : vol. 494
Contents : RECORDS I LIVE ALONE AND TOGETHER 나 혼자, 그리고 같이 산다 “SPACE COORDINATOR”, AN EXPERIMENTAL AND INNOVATIVE DISCOURSE THAT REVOLUTIONIZES THE CITY 도시를 새롭게..
anc.masilwide.com
'Architecture Project > Multifamily' 카테고리의 다른 글
| ROSE & MUSTARD BUILDING (0) | 2022.11.22 |
|---|---|
| REAL DE LOS REYES RESIDENTIAL COMPLEX (0) | 2022.11.18 |
| SAKURAGICHO RESIDENCE (0) | 2022.10.25 |
| 110 HOUSING UNITS IN TOULOUSE (0) | 2022.09.30 |
| SOCIAL HOUSING UNITS IN MASSIVE STONE (0) | 2022.09.28 |
마실와이드 | 등록번호 : 서울, 아03630 | 등록일자 : 2015년 03월 11일 | 마실와이드 | 발행ㆍ편집인 : 김명규 | 청소년보호책임자 : 최지희 | 발행소 : 서울시 마포구 월드컵로8길 45-8 1층 | 발행일자 : 매일



