
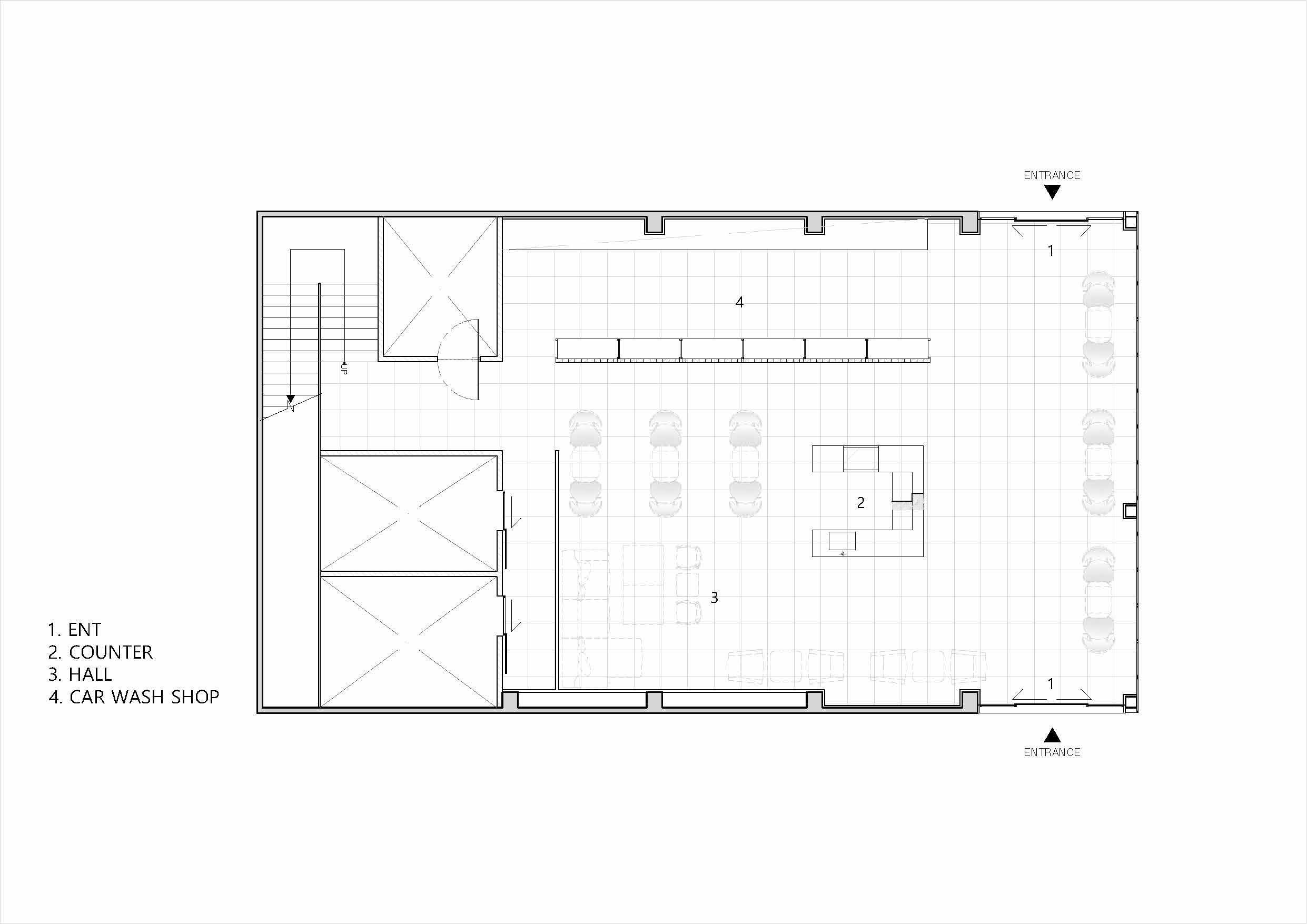
Located in Seoham, this cafe is a cafe that runs with a car wash shop. As it is a place that sells car washing products, it is designed to melt clean and organized images throughout the space so that you can feel a unified sense of value.
The concept of this space is "awareness" that represents the ability to realize the rationality of things. In the process of grasping the initial design, it was inspired by a straight line, which is the basis of the shape, so the synesthesia was constructed with cool lines.
It provides a cool sense through a straight glass block and projects objects inside with translucent silhouettes to induce consumer curiosity. In addition, a connection with the glass block is formed through the grating of the ceiling, thereby forming a stable feeling. The counter and furniture in the center of space use black to balance the overall weight of the space.

서하남에 위치하고 있는 이 카페는 세차용품샵과 함께 운영되는 카페이다. 세차용품을 판매하는 곳이니만큼 깔끔하며 정돈된 이미지를 공간 전체에 녹여내어 통일된 가치관을 느낄 수 있도록 설계하였다.
이 공간의 컨셉은 사물의 이성을 실현할 수 있는 능력을 나타내는 "인식"이다. 초기 디자인을 잡는 과정에서 형태의 기초가 되는 직선에서 영감을 받아 시작하게 되었으며 때문에 시원하게 뻗은 선들로 공감각을 구성하였다.
직선 유리 블록을 통해 시원한 감각을 제공하고 반투명 실루엣으로 내부에 있는 물체를 투사하여 소비자의 호기심을 유발한다. 또한, 천장의 그레이팅을 통하여 유리블록과의 연결성이 형성되어 안정적인 느낌을 형성한다. 공간 중앙의 카운터와 가구는 블랙을 사용하여 공간의 전반적인 무게 균형을 잡아주는 역할을 한다.














DESIGN : fratt
LOCATION : SEOHANAM, South Korea
SITE AREA : 211.4㎡
METERIAL : Polycarbonate, Acryl, Wood
'Interior Project > Cafe&Restaurant' 카테고리의 다른 글
| Re coffee roasters (0) | 2022.09.05 |
|---|---|
| TIDEWATER (0) | 2022.08.09 |
| ТАЮ gelaterie (0) | 2022.07.25 |
| off. o (0) | 2022.07.18 |
| PINOCCHIO (0) | 2022.07.11 |
마실와이드 | 등록번호 : 서울, 아03630 | 등록일자 : 2015년 03월 11일 | 마실와이드 | 발행ㆍ편집인 : 김명규 | 청소년보호책임자 : 최지희 | 발행소 : 서울시 마포구 월드컵로8길 45-8 1층 | 발행일자 : 매일



