
Pinocchio is a handmade gelato shop located in Seorae Village.
The client wanted to talk about this and that with the local people, starting with a story about what ingredients they made, not just giving it to customers. And it is said that the restaurant with a warm atmosphere that the CEO often went to as a child still remains a good memory, and Pinocchio also wanted to be a memorable store for residents for a long time.
We thought about what other ways could be possible than color as a condition for a space that feels warm.
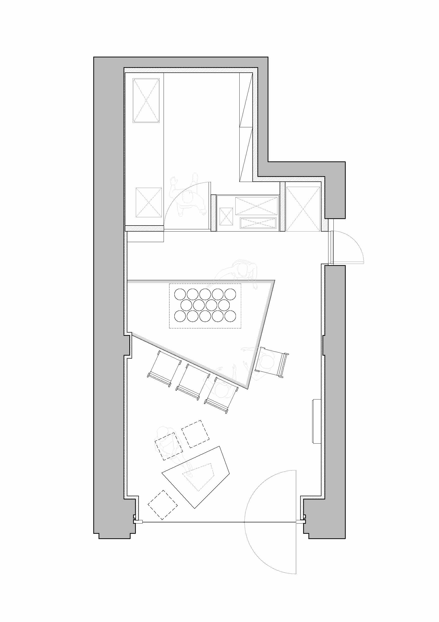
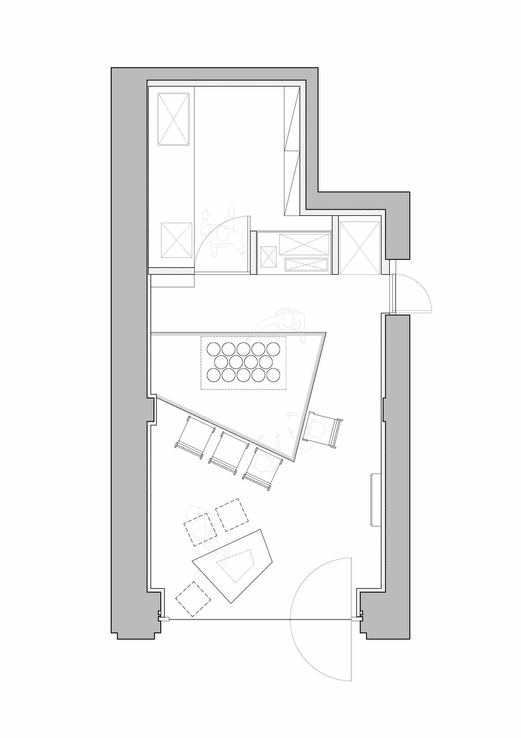
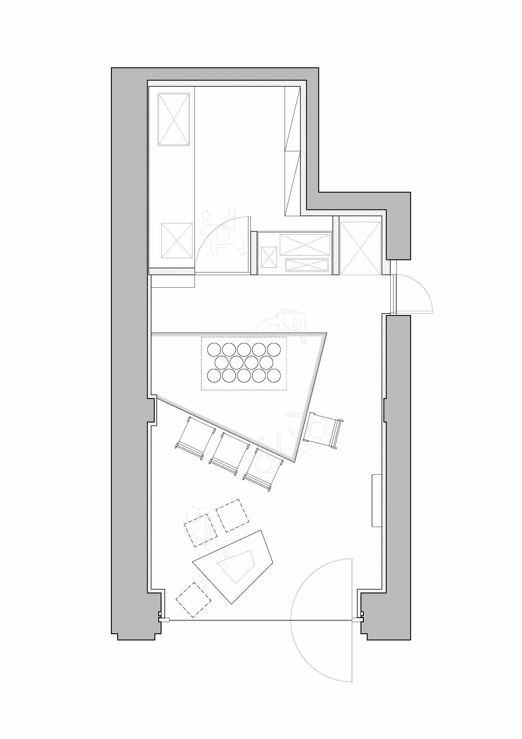
First, because it's facing north, I always had perforated lights that give me a warm, subtle glow in the faade, and secondly, I wanted to round off the door handle that I touched for the first time, and the edges of the furniture that touched my body, to give it a visually soft feeling. Lastly. Rather than looking straight at each other, we designed a diagonal table that's better for huddling around and having a light conversation.
Since it is such a narrow space, rather than building a wall, we chose a method of naturally dividing the space where the customer stays and the space where the movement occurs by forming a diagonal line rather than a straight line using the arrangement of furniture. Let's hope that the movement of people inside like this looks lively and rich from the outside.

피노키오는 서래마을에 위치한 수제 젤라또 가게다.
클라이언트는 손님에게 내어주는 것에만 그치지 않고, 어떠한 재료로 만들었는지에 대한 이야기를 시작으로 동네 주민들과 이런저런 대화를 나누고 싶어 했다. 그리고 대표님의 어린 시절 자주 갔던 따뜻한 분위기의 경양식집이 지금까지도 좋은 기억으로 남아있다고 하시는데, 피노키오도 주민들에게 오랫동안 기억에 남는 가게가 되고자 했다.
우리는 따뜻하다고 느끼는 공간의 조건으로 색감 이외의 다른 방법이 무엇이 있을지 고민했다. 첫째, 현재 위치가 북향이기 때문에 항상 파사드에서 따뜻하고 은은한 빛을 느낄 수 있는 타공판 조명을 두었고, 둘째는 처음 만지게 되는 문 손잡이와 신체에 닿는 가구의 모서리 부분들을 둥글게 마감하고, 시각적으로도 부드러운 느낌을 주고자 했다. 마지막으로는. 서로의 시선이 정면을 응시하는 것보다, 옹기종기 둘러앉아 가벼운 대화를 나누기 좋은 사선형 테이블을 디자인했다.
워낙 좁은 공간이다 보니 벽체를 세우기보다는, 가구의 배치를 이용해 직선이 아닌 사선으로 구성하여, 손님이 머무는 공간과 동선이 생기는 공간을 자연스럽게 나누는 방법을 선택했다. 이렇게 내부에서 일어나는 사람들의 움직임이 밖에서 보았을 때 활기 있고 풍성해 보이길 바랐다.
















Design WARP AND WOOF
Location 104-4, Banpo-dong, Seocho-gu, Republic of korea
Gross floor area 35㎡
Building scope 1F
Completion 2022
Project architect Yoonsun Kwon
Construction Yoonsun Kwon
Photographer Dongkyu Kim
'Interior Project > Cafe&Restaurant' 카테고리의 다른 글
| ТАЮ gelaterie (0) | 2022.07.25 |
|---|---|
| off. o (0) | 2022.07.18 |
| will.b Bakery Cafe (0) | 2022.07.08 |
| Slit (0) | 2022.07.07 |
| EGEO (0) | 2022.06.21 |
마실와이드 | 등록번호 : 서울, 아03630 | 등록일자 : 2015년 03월 11일 | 마실와이드 | 발행ㆍ편집인 : 김명규 | 청소년보호책임자 : 최지희 | 발행소 : 서울시 마포구 월드컵로8길 45-8 1층 | 발행일자 : 매일



