
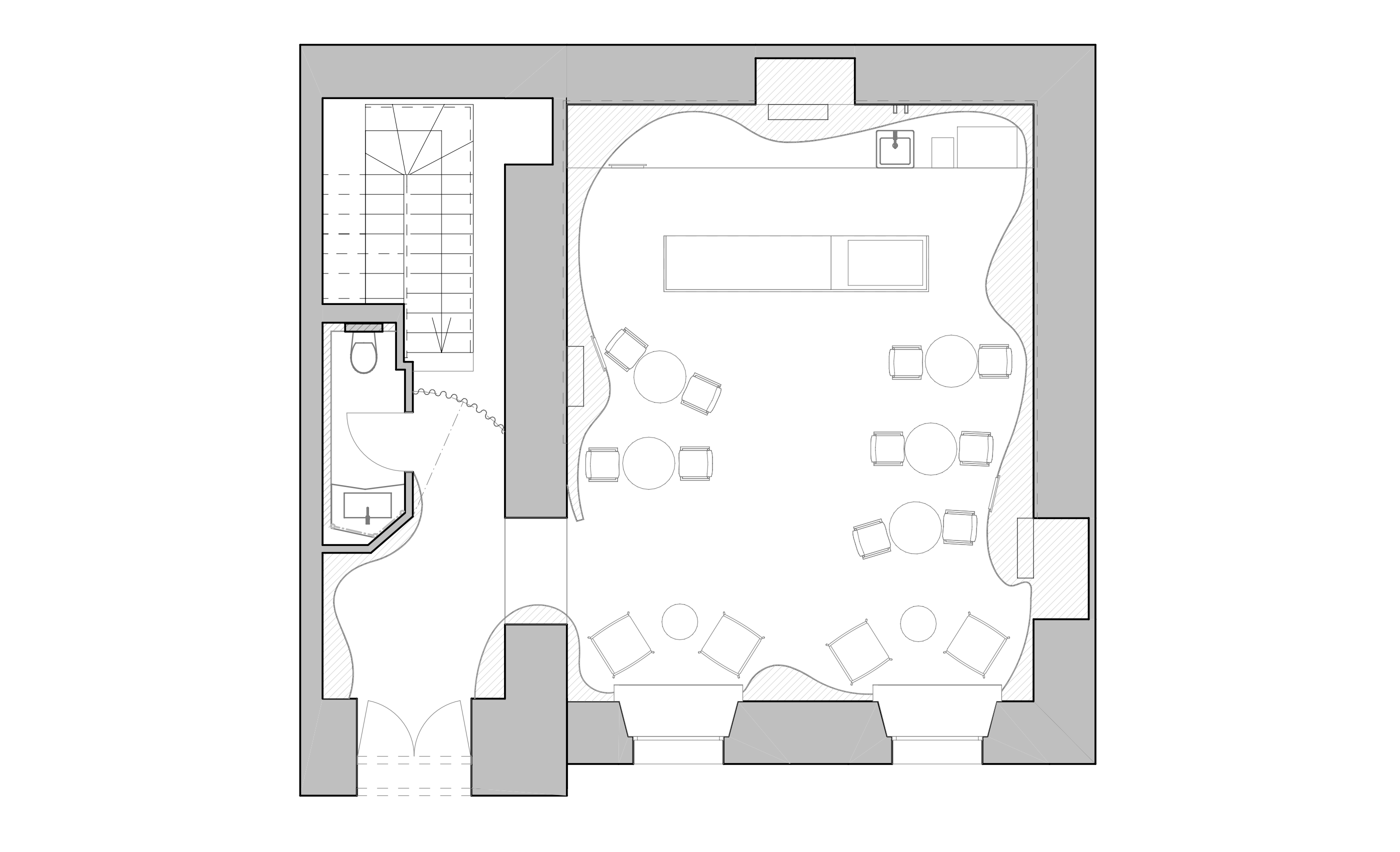
"ТАЮ" translates from Ukrainian as "I'm melting," and the menu only includes ice cream and juices.
For a long time, we were looking for a simple solution, simple materials, and one clear idea that would create and unite the whole interior. We had a very tight deadline. As usually happens with commercial establishments, when you have to pay the rent and open quickly. So we wanted to find one common solution for the entire design, to implement the interior in collaboration with as few contractors as possible.
Therefore, the interior solution of one solid metal wave had to solve not only the aesthetic side but also reduce the timing of the interior.
The name and the ice cream itself gave us the idea. The ice cream melts, the architecture of classicism melts and its massive decorative ceiling flows down into the smooth curves of the metal walls.
The gelateria is in an old, historic building, which strongly influenced the design and technical decisions. It is impossible to design without paying attention to the context. We were given ready-made, decorated ceilings. We decided to keep them and they became part of the overall concept.
The ceiling links the interior, the house, and its history.
The windows in the building would not open, and the large, beautifully decorated ceiling would not allow itself to be spoiled by the sight of the ventilation ducts. It would have lost the elegance and sophistication of the design. So we placed the supply and exhaust vents behind the metal waves on the wall.
We designed and manufactured the fixtures for this project ourselves because we couldn't find any that matched the design concept. And while it usually takes about six months to develop a prototype, here we were able to create and produce everything in just a couple of months.

겔라테리아는 지역 내의 오래되고 역사적인 건물에 위치해 있는데, 이 가게는 '아이스크림과 주스' 라는 2가지 종류의 메뉴만을 판매하고 있다. 간단한 메뉴인만큼 건물의 내부 자체도 크고 아름다운 장식물, 기교가 아닌 간단한 종류의 오브제로 구성되어 있다. 내부의 전체 인테리어를 구현하고 통합 할 하나의 분명한 아이디어를 찾으려 수 많은 고민을 했고, 그 결과 이 가게만이 가질 수 있는 하나의 공통 솔루션을 찾게 되었다. 이름에서도 알다시피 아이스크림이 녹는 것을 형상화해 건축물이 미끄러지듯 녹는 형태의 재료로 풀어내기 위해 곡선의 부드럽고도 매끄러운 금속 벽을 사용하였고, 고체 금속의 심미적인 측면까지 고려하게 되었다.이것은 디자인과 기술적인 결정에 큰 영향을 미쳤다.
디자인 컨셉에 맞는 오브제를 찾을 수 없었기 때문에 이 프로젝트의 고정장치를 직접 디자인하고 제작했다. 프로토타입을 개발하는 데 보통 6개월이 걸리지만, 가게의 오픈 날짜에 맞추어 마감을 하다보니, 우리는 단 두 달 만에 모든 것을 만들고 생산할 정도로 빠른 기간안에 설계와 시공은 진행되었다.
이 프로젝트의 중심적인 개념이자 오브제는 천장은, 그대로를 유지하기로 하였다.
간단하고도 단순한 재료의 마감과 상반되는 장식적인 천장은 공간의 색다른 변화를 주기에 적합하다고 판단했고,
우리는 이미 완성되어진, 장식이 가미된 천장 그대로를 사용하게 되었다. 그 장식들과 건물을 잇는 천장은 내부의 전체적인 개념의 일부가 되었고, 그 천장을 타고 내려오면 보이는 고체 금속의 벽 뒤에는 배기구들을 배치해 공간을 구성하게 되 었다.














Design : sivak-partners
Location : Pushkinskaia 5, Odesa, Ukraine
Site area : 74㎡
Completion : 2022
Principal architect : Dmitry Sivak, Ivanna Gaidarzhy, Yuliia Storozheva,
Project architect : Angelina Stelmakh
Photographer : Yevhen Kariev
'Interior Project > Cafe&Restaurant' 카테고리의 다른 글
| TIDEWATER (0) | 2022.08.09 |
|---|---|
| HANAM (0) | 2022.08.05 |
| off. o (0) | 2022.07.18 |
| PINOCCHIO (0) | 2022.07.11 |
| will.b Bakery Cafe (0) | 2022.07.08 |
마실와이드 | 등록번호 : 서울, 아03630 | 등록일자 : 2015년 03월 11일 | 마실와이드 | 발행ㆍ편집인 : 김명규 | 청소년보호책임자 : 최지희 | 발행소 : 서울시 마포구 월드컵로8길 45-8 1층 | 발행일자 : 매일



