
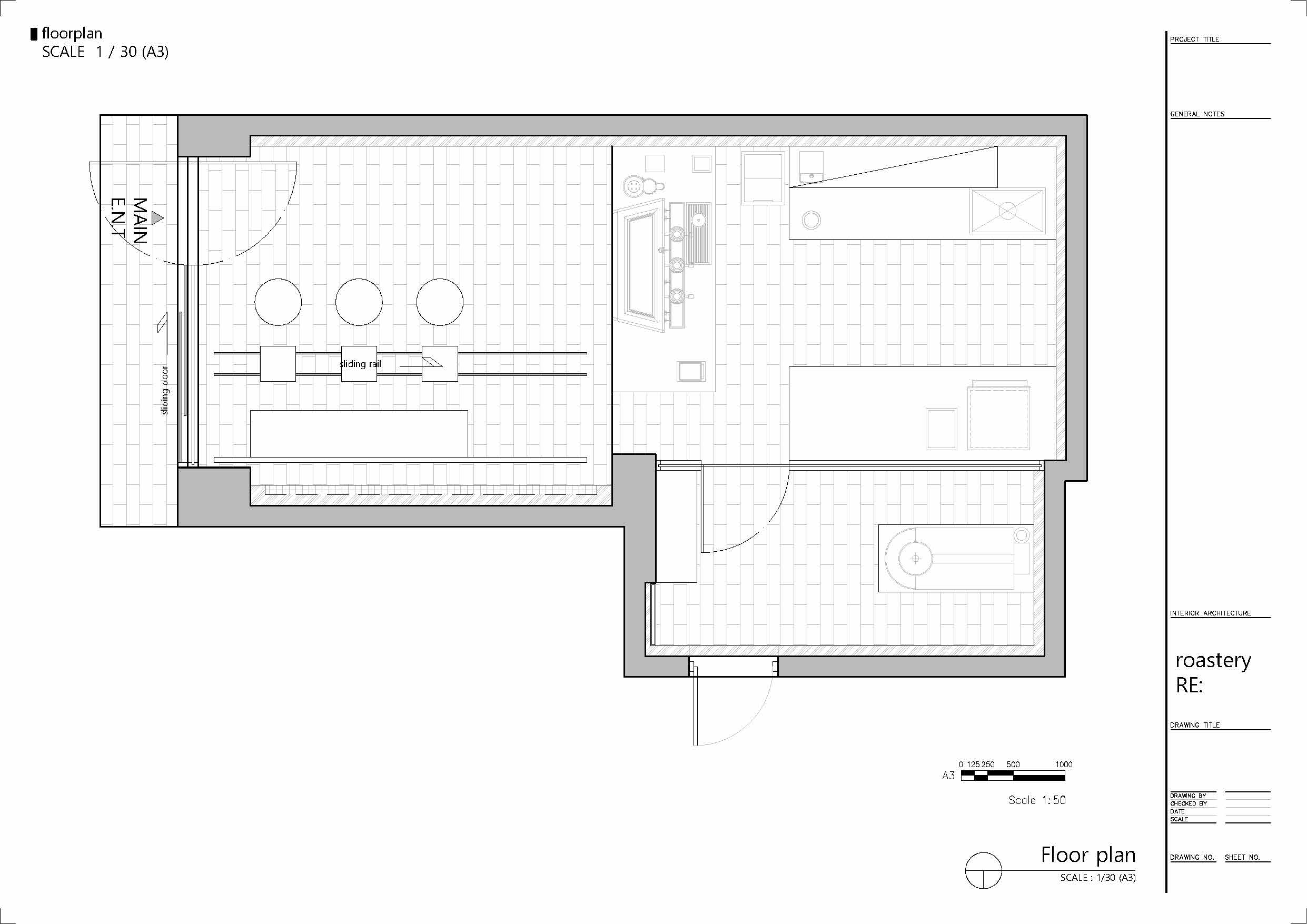
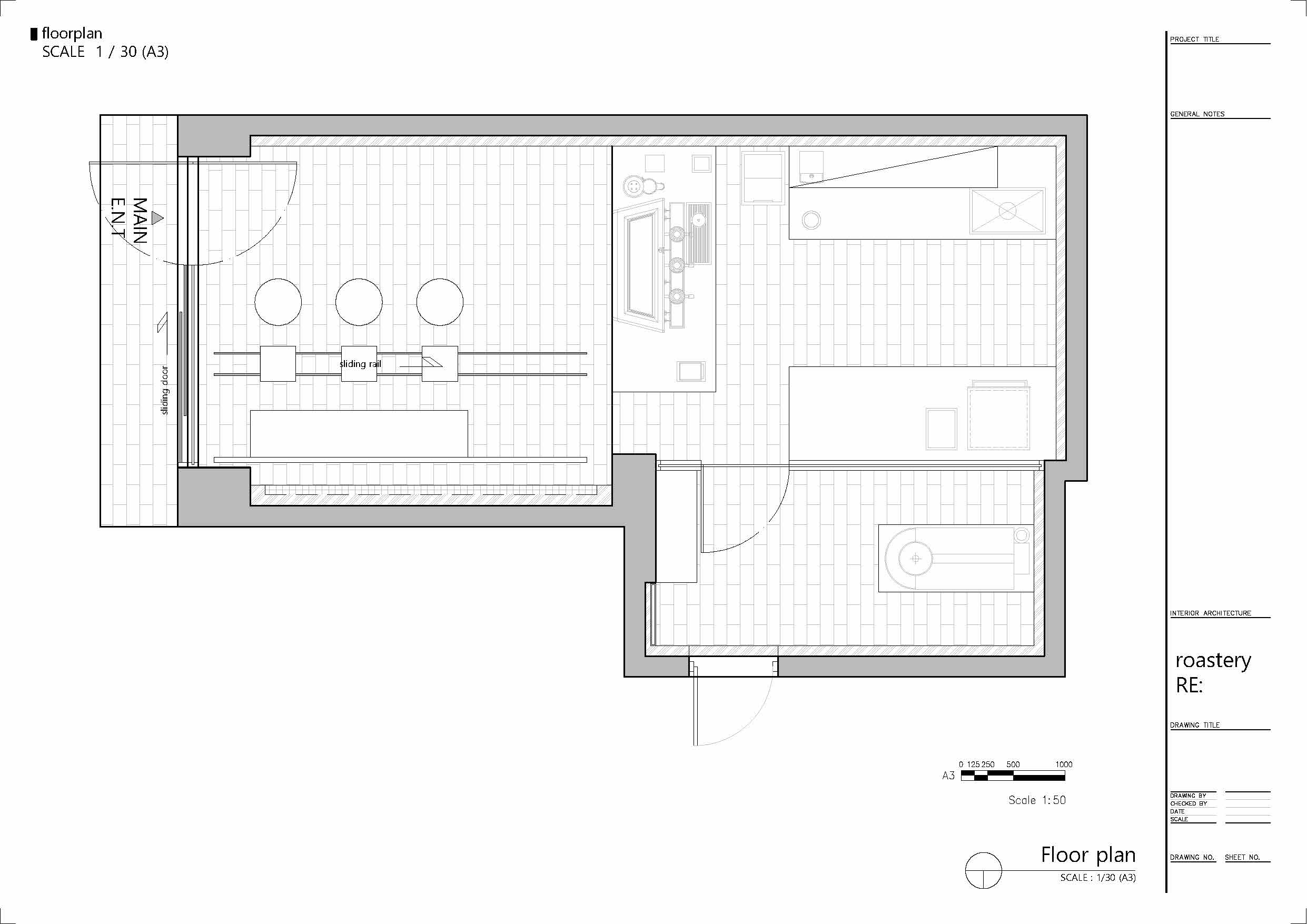
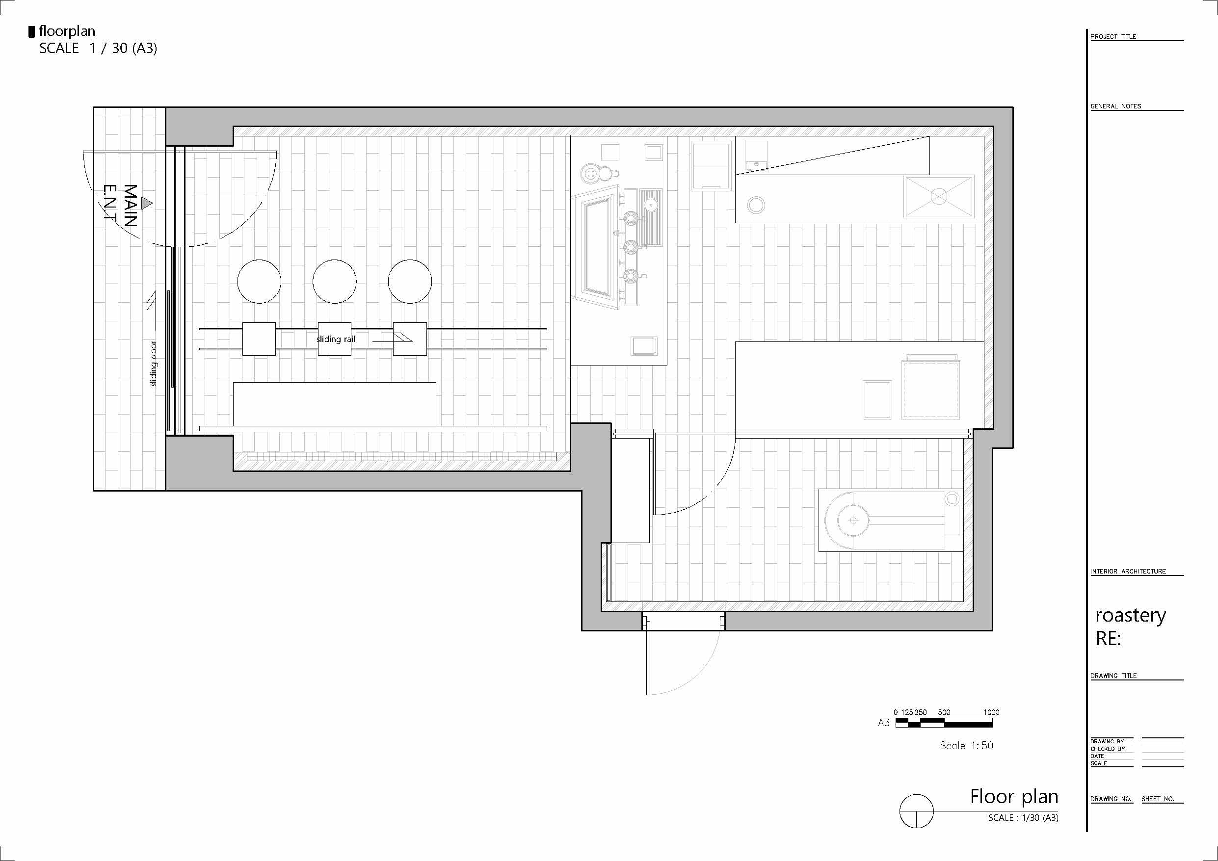
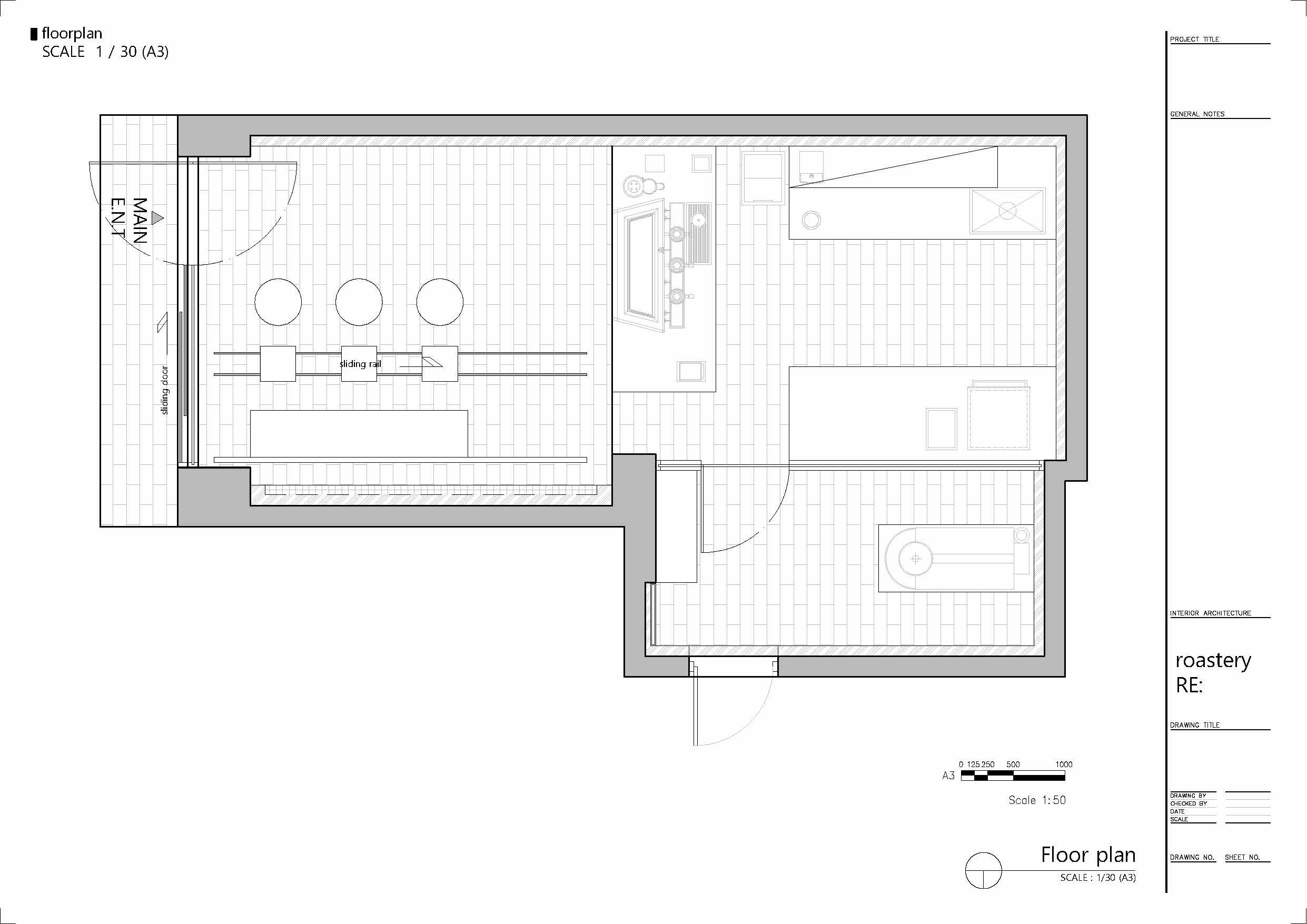
Lee Coffee Roasters is a small roasterry coffee shop with a size of about 10 pyeong.
Since there were many conditions to fill in the narrow space, such as roasting facilities, kitchen, service space, and interior seats, the direction of design naturally focused on the relationship of objects placed in the space, and the structure was organized as concisely as possible. It also tried to expand the narrow space through horizontal straight lines on the ceiling, walls, and floors. In contrast, the images output from the LED display, the furniture that the user can walk directly, and the dynamic sliding doors are the same It creates an unpredictable sensory experience for visitors.

리커피 로스터스는 10평정도의 소규모 로스터리 커피전문점이다.
협소한 공간안에 로스팅 시설, 주방과 서비스공간 그리고 내부 좌석 등 채워나가야할 조건들이 많았기 때문에 자연스럽게 디자인의 방향성은 공간에 배치되는 사물들의 관계에 집중하였고, 구조도 최대한 간결하게 구성하였다. 또한, 천장과 벽체, 바닥에 있는 라인들의 수평적 직선들을 통해 좁은 공간을 확장 시켜주려 했다. 그와 대비되는 LED display에서 출력되는 영상들과 사용자가 직접 워킹할 수 있는 가구, 슬라이딩 도어들의 동적임들은 방문객들에게 예측할 수 없는 감각적 경험을 만들어 낸다.














Design : wuut
Location : 1F. 42. Bogneunsa-ro 114-gi, Seoul
Site area : 41㎡
Construction : wuut
'Interior Project > Cafe&Restaurant' 카테고리의 다른 글
| Walls Restaurant (0) | 2022.09.16 |
|---|---|
| Lantern Coffee (0) | 2022.09.15 |
| TIDEWATER (0) | 2022.08.09 |
| HANAM (0) | 2022.08.05 |
| ТАЮ gelaterie (0) | 2022.07.25 |
마실와이드 | 등록번호 : 서울, 아03630 | 등록일자 : 2015년 03월 11일 | 마실와이드 | 발행ㆍ편집인 : 김명규 | 청소년보호책임자 : 최지희 | 발행소 : 서울시 마포구 월드컵로8길 45-8 1층 | 발행일자 : 매일



