
According to an official statistic in 2020, urban townhouses accounted for more than 88% of the total of 1.92 million homes in Ho Chi Minh City. However, many outdated and degraded townhouses do not meet with the modern lifestyle and higher living standards of the next generation anymore. Understandably, renovating old townhouses in order to well accommodate contemporary living needs has become a very challenging yet inspiring type of work for many local architects.
A 15-year-old typical small townhouse located in a small alleyway within a very high-density neighborhood has been recently renovated to match with the new living needs while most of its main structure has been carefully preserved due to the tight budget. The old house was musty and degraded with a bulky concrete staircase at the center; dark and poorly-ventilated kitchen and bedroom at the back; as well as a dusty and abandoned rooftop terrace. Besides, the 3m wide alleyway, is frequently stuffed with busy and noisy traffic as it is a shortcut connected to two main roads.
The design brief asked for a contemporary and artistic refurbishment which would hopefully improve the comfortability, ensure sufficient day-lighting and natural ventilation, reduce the impact of traffic noise, and also enhance the privacy and security of the interior space. The architectural and interior design concept was based on a dual approach: rearranging and renovating all the internal spaces at all levels; and attaching a unique cage-like structure with integrated gardens onto the external façade.
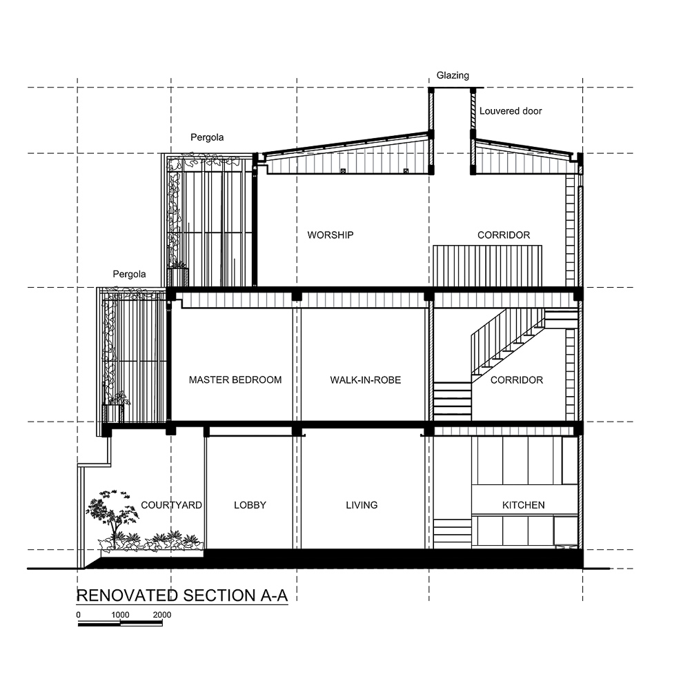
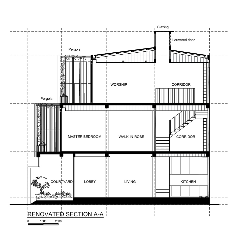
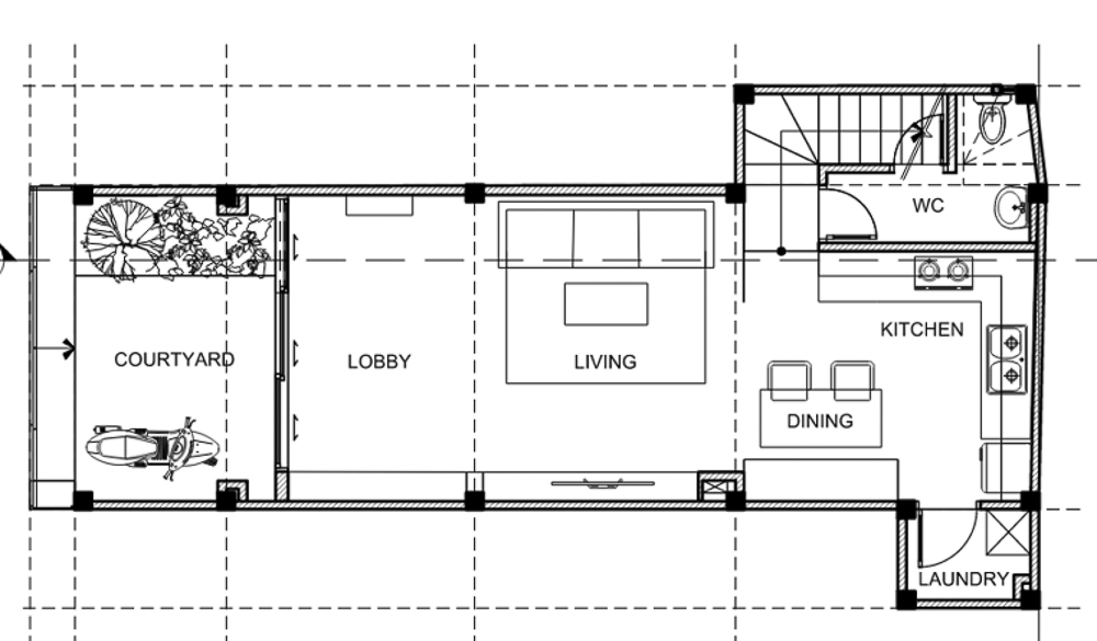
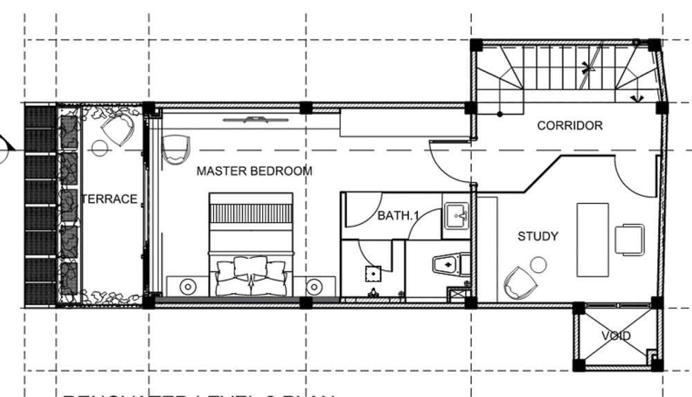
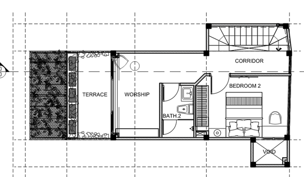
Firstly, the central concrete staircase was replaced by a light-weight one made of custom-made iron-frame and timber treads under a glazed void; another small void was carved out at the rear corner to provide daylight to the kitchen and dining area at the back of the ground level while the front space is dedicated to a spacious living area combined with the main lobby and a landscaped courtyard. The master bedroom and bathroom were relocated at the front area of the second floor and finished with large glazing, laminated timber floor and black tiles. A study / home library is positioned at the rear end and well-lit with soft daylight via the sky-well. The third floor has a 2-meter setback and is still spacious enough to neatly accommodate the second bedroom, a shared bathroom and a cozy worship area.
Secondly, the entire old and outdated façade was carefully “cut and carved” piece by piece then structurally attached with a 2-level stepping iron “cage”, which is consisted of fairly thin iron bars placed at random distances in combination with two wire-mesh trellises above. Two sizeable terraces with many leafy plantings and lively flowers are partly-hidden right behind the metal façade. These landscaping areas have effectively reduced the noise from the busy traffic below, and greatly enhanced the privacy and security of the interior spaces. Moreover, they are also considered as important green buffer-zones which draw the young owners closer to the refreshing nature every day, and positively contribute to the urban streetscape at the same time.

도심과 자연의 완충 지대, 케이지 하우스
‘케이지 하우스’는 초고밀도 동네의 작은 골목길에 있는 15년 된 전형적인 작은 타운 하우스를 새로운 생활 방식에 맞춰 리모델링한 프로젝트다. 빠듯한 예산으로 주요 구조의 대부분은 남기면서 작업을 진행해야 했다. 기존의 곰팡이가 핀 오래된 집의 중앙에는 부피가 큰 낡은 콘크리트 계단이 있었고, 부엌과 침실은 어둡고 환기가 되지 않았다. 또한, 버려진 옥상 테라스에는 먼지가 가득했고 집 앞 3m 폭의 골목길은 주요 도로와 연결되는 지름길로 차가 항상 붐벼 시끄러웠다.
건축주는 편안하고, 햇빛이 풍부하며 환기가 잘 되는 집을 원했다. 또, 도로의 소음을 줄일수 있으면서도 내부의 프라이버시를 보장하는 안전하고 현대적인 디자인을 요청했다. 요청에 따라, 건물의 내부와 외부 디자인 콘셉트는 이중 접근을 기반으로 했다. 모든 층의 공간을 재배치했고, 외부 파사드에 통합된 정원이 있는 독특한 새장과 같은 구조를 부착했다.
내부는 중앙에 있던 콘크리트 계단은 천창 아래에 철골과 목재로 맞춤 제작한 가벼운 계단으로 바꿨다. 또한, 뒤쪽 코너에 있는 작은 빈공간의 위에도 천창을 두어 1층 뒤쪽의 주방과 다이닝 공간까지 햇빛이 들어오도록 했다. 앞쪽으로는 메인 로비의 안뜰과 연결된 넓은 거실이 뒀다. 안방과 욕실은 2층의 전면부로 옮겨 대형 유리와 합판 목재 바닥, 검은색 타일로 마감했다. 뒤쪽 끝에 있는 서재와 도서관은 천창을 통해 부드러운 일광이 흘러들어온다. 3층은 다른 층보다 2m 물러나 있지만, 침실과 공용욕실, 아늑한 예배 공간을 배치할 수 있을 만큼 넓은 면적을 가지고 있다.
외부는 낡고 오래된 전면 전체를 한 조각씩 조심스럽게 잘라내고 조각한 다음, 와이어로 2단 스테핑 아이언 케이지를 부착했는데, 두 개의 철망과 조합하여 자유롭게 배치된 아주 얇은 철봉으로 구성되어 있다. 잎이 무성한 식물과 생기 있는 꽃이 심어진 2개의 큰 테라스는 금속 파사드 뒤에 숨겨져 있다. 파사드와 테라스는 도로의 차가 만드는 소음을 효과적으로 줄이고, 프라이버시와 거주자들을 안전하게 보호한다. 또한, 자연을 집으로 끌어들여 매일 상쾌한 자연과 함께하는 녹색 완충지대의 역할을 하면서, 도시의 거리 경관을 풍요롭게 한다.

























Architects 룸+ 디자인 & 빌드 | ROOM+ Design & Build
Location Ho Chi Minh, Vietnam
Program house
Building area 55㎡
Gross floor area 160㎡
Building scope 3F
Building to land ratio 93%
Completion 2022
Principal architect Vinh Phuc Ta
Project manager Anh Tuan Pham
Photographer Sonmeo Nguyen Art Studio
May 2022 : vol. 492
Contents : RECORDS THE STORY OF THE CITY THAT PUBLISHERS DREAMED OF, RELEASED 꿈꾸던 도시가 들려주는 이야기, <위대한 계약: 파주, 책, 도시> 개봉 : NEWS / COMPETITION / BOOKS : SK..
anc.masilwide.com
'Architecture Project > Single Family' 카테고리의 다른 글
| HOUSE C (0) | 2022.09.07 |
|---|---|
| CANAL HOUSE HUMBEEK (0) | 2022.09.02 |
| PS HOUSE (0) | 2022.07.25 |
| GO-GANG HOUSE (0) | 2022.07.20 |
| SENTINEL HOUSE (0) | 2022.07.13 |
마실와이드 | 등록번호 : 서울, 아03630 | 등록일자 : 2015년 03월 11일 | 마실와이드 | 발행ㆍ편집인 : 김명규 | 청소년보호책임자 : 최지희 | 발행소 : 서울시 마포구 월드컵로8길 45-8 1층 | 발행일자 : 매일



