
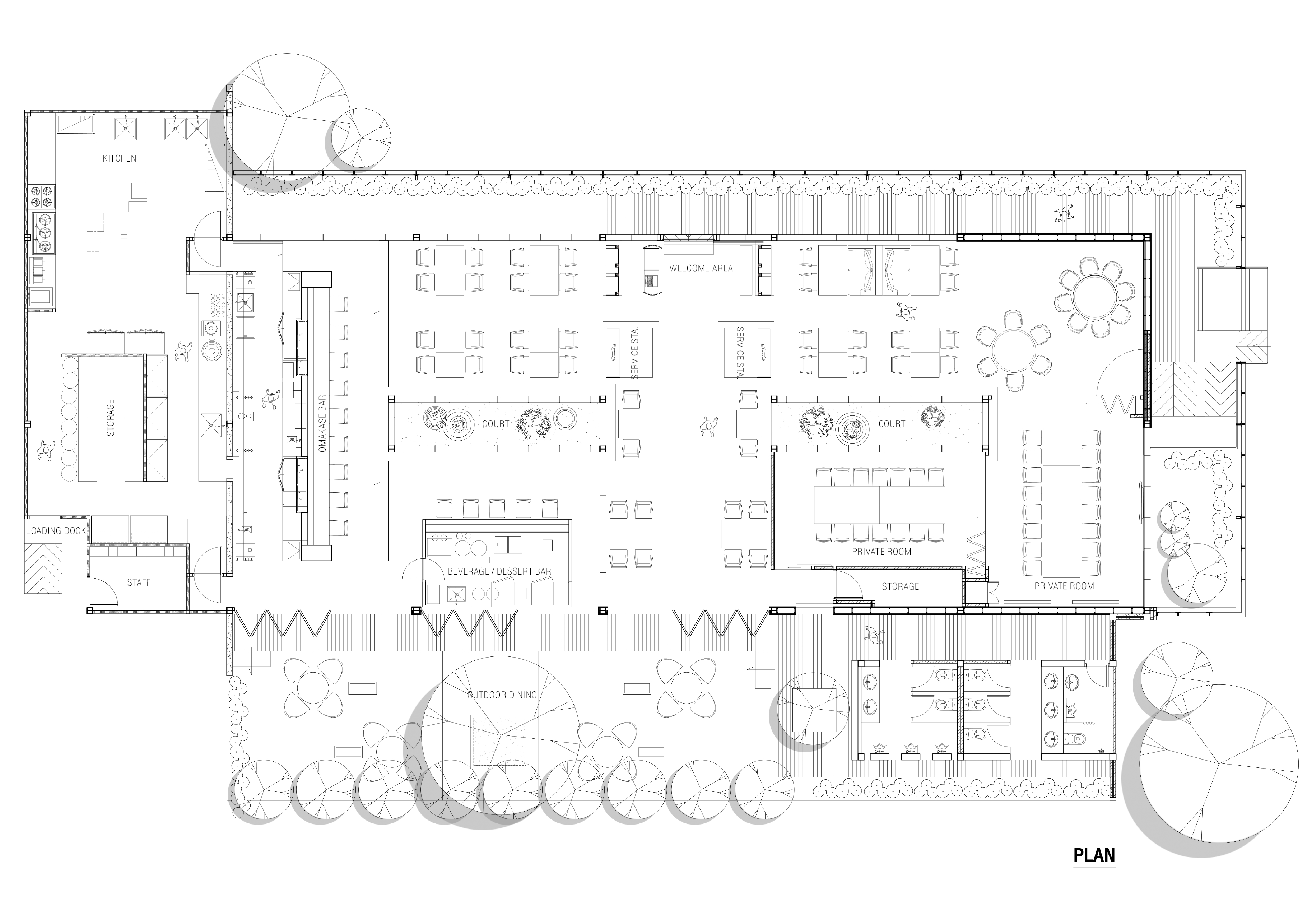
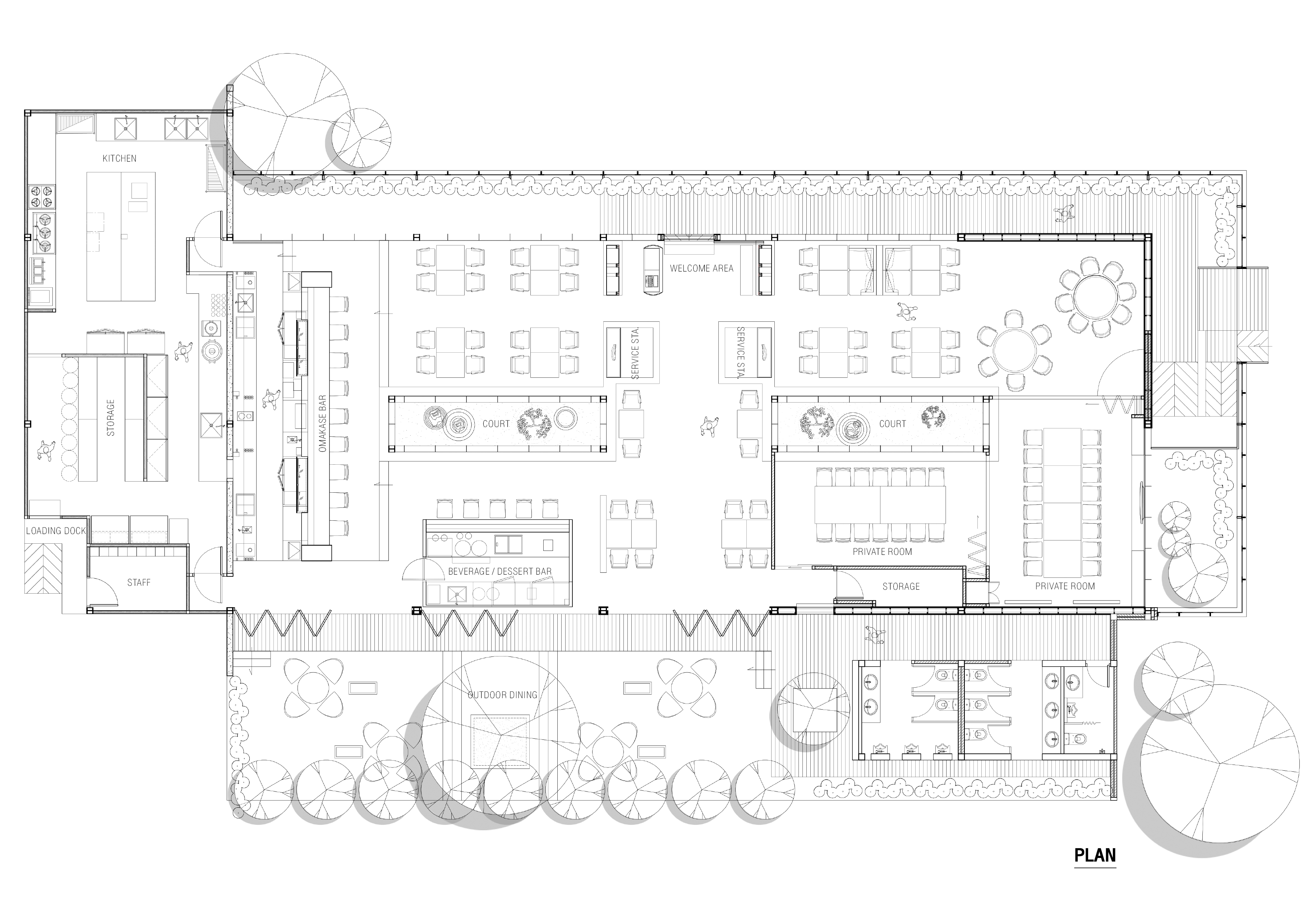
“Mizu Mori'' means “Water and Forest” This building was designed to be a place that users can dine seamlessly with the nature by created the internal & external environment with “Bamboo” which is a local plant, to be the building Facade with is not only enhance the esthetic of the building but also help reduce heat and air pollution. To reduce the heat, Floor level of the building has been raised, increasing air flow under the building. Natural Indirect Light has also been brought into the building to increase visual comfort for users as well.

“미즈 모리”는 “물과 숲”을 의미한다. 이 건축물은 방콕 현지의 토종 식물인 “대나무”를 건축물의 파사드가 되게 하여 건축물의 아름다움을 향상 시킬 뿐 아니라 열과 대기 오염을 감소시키는 데 도움을 주며, 내부 및 외부 환경을 만들어냄으로써 사용자들이 자연스럽게 자연과 함께 식사할 수 있는 장소가 되도록 설계되었다. 열을 감소시키기 위해, 건축물 하부의 공기 흐름을 증가시키고자 건축물의 1층은 상승되었다. 자연적인 간접 채광 또한 사용자들의 시각적인 편안함을 증가시키기 위해 건축물에 들여와졌다.














Architects architecture's matter
Location Kanlapaphruek Rd. Bangkok, Thailand
Site area 2,551㎡
Building area 462㎡
Building to land ratio 18%
Design period 2018. 08 - 2019. 01
Construction period 2019. 03 - 2020. 02
Completion 2020
Design team Nachapon Rujirasophon, Natapon Hongthong, Pongsatorn Phimnualsri
Structural engineer Kraisorn Lueangnakphaisan
Construction PPP Construction
Client Yonin Bar co.,ltd
Photographer Witsawarut Kekina
'Architecture Project > Commercial' 카테고리의 다른 글
| Villa Magallon (0) | 2022.08.04 |
|---|---|
| TAKE A BREATH CAFE (0) | 2022.07.27 |
| NINE WINDOWS (0) | 2022.06.30 |
| IN A LITTLE TIME (0) | 2022.06.17 |
| JEROME COFFEE & BITES (0) | 2022.06.16 |
마실와이드 | 등록번호 : 서울, 아03630 | 등록일자 : 2015년 03월 11일 | 마실와이드 | 발행ㆍ편집인 : 김명규 | 청소년보호책임자 : 최지희 | 발행소 : 서울시 마포구 월드컵로8길 45-8 1층 | 발행일자 : 매일



