
An industrial complex was built a few years ago between Namdaejeon IC at the southern end of Daejeon city and Maninsan Natural Recreation Forest. Within the site of a support facility right next to the industrial complex, there is a cafe called JEROME coffee & bites. The client, who has been specializing in the repair of imported large motorcycles for about 10 years, was thinking about relocating as their lease was about to expire. They soon decided to build a building and found this place outside the city center where the land prices were relatively lower. Although the romantic atmosphere of the past has mostly disappeared as the road widened with the creation of an industrial complex, the course to Daedunsan Mountain through the Mainsan Natural Recreation Forest is still a favorite among riders in Daejeon. The client wanted to balance out the unfavorable condition of being located on a side street, as two sites in the north-south direction were purchased and joined, with a building that has a strong presence, and wanted to create a synergy effect for the program by merging a motorcycle repair shop and a cafe.
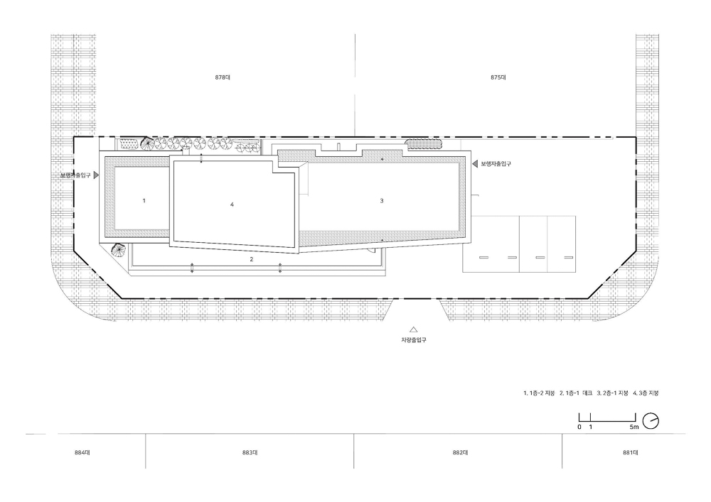
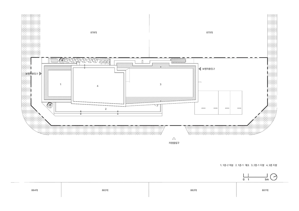
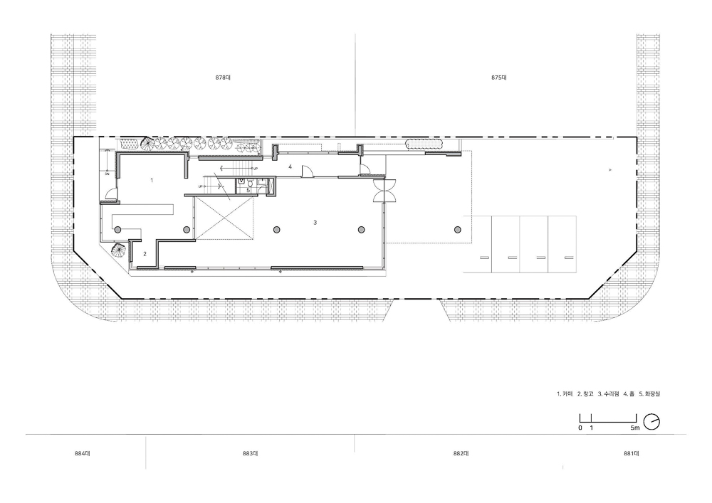
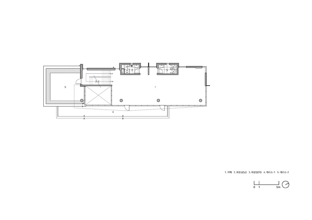
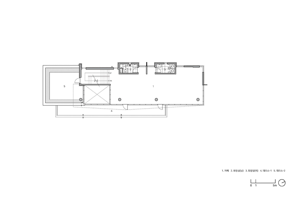
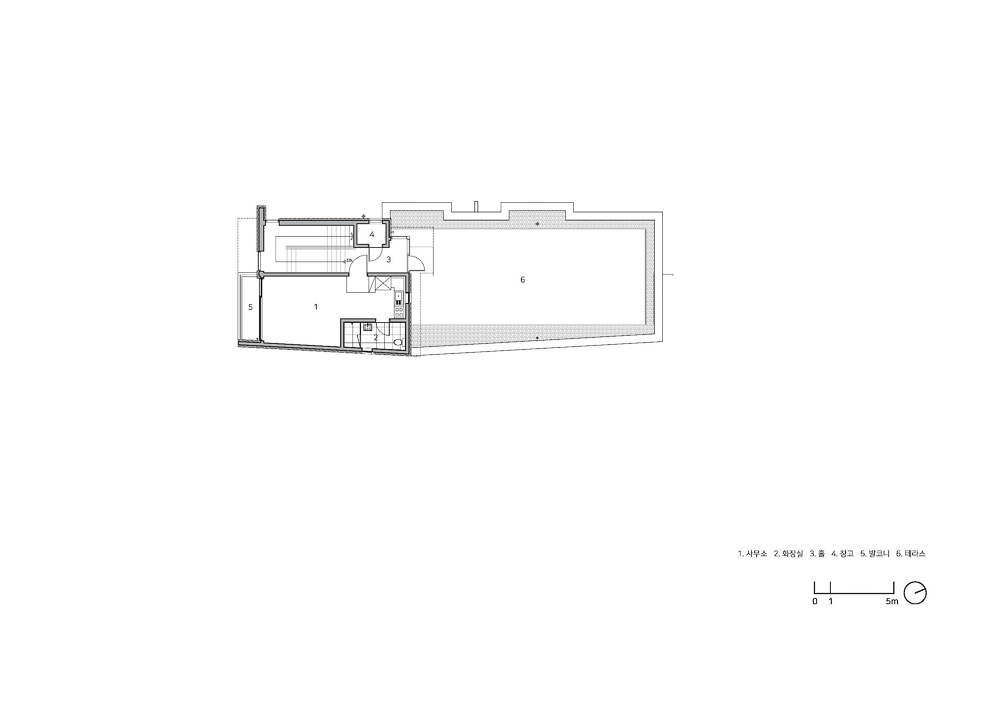
The site has a level difference of about half a storey between the north-south and east-west directions. To naturally overcome this and to be able to separate the entrances of and combine the cafe and the motorcycle shop, a skip-floor arrangement method was used, and a void space was placed next to the vertical circulation where the two levels meet to create a visual intersection between the programs. The interior wall was finished with EuroForm exposed concrete, which is somewhat rough but cost-effective. Motorcycles and their parts were used as interior props, and two motorcycles were hung from the ceiling in the void space. Customers who enter the cafe’s entrance can order their coffee, see the motorcycles hanging in the air and being repaired, and understand as well as enjoy the unique characteristics of this place at a glance.
This project was one that we tried to sublimate the somewhat unfavorable locational conditions and programs that may differ into favorable conditions with the power of architecture. We hope that this effect will lead to good sales for the client.

스킵플로어로 두 프로그램을 교차시킨 공간, 제롬커피앤바이츠
대전의 남쪽 끝자락 남대전 IC와 만인산 자연 휴양림 사이에는 몇 년 전에 산업단지가 생겼다. 바로 옆 지원시설 용지에 카페 제롬커피앤바이츠가 있다. 10여 년 전부터 수입 대형 바이크 수리를 전문으로 해온 건축주는 임대기간 만료로 이전을 고심하던 차에 건축물을 지어 보고자 마음먹고 도심 외곽의 상대적으로 땅값이 저렴한 이곳을 찾게 되었다. 산업단지가 생기면서 길도 넓어지고 해서 예전의 낭만적인 분위기는 많이 사라졌지만, 여전히 만인산 휴양림을 거쳐 대둔산으로 넘어가는 코스는 대전의 라이더들이 즐겨 찾는다. 두 필지를 남북방향으로 합쳐 구입하여 이면도로에 위치한 불리한 조건을 존재감 있는 건물로 상쇠 시키고자 한 건축주는 프로그램도 바이크 수리 샵과 카페를 융합시켜 시너지 효과를 내고자 하였다.
대지는 남쪽과 북쪽, 동쪽과 서쪽이 반 층 정도 레벨 차이가 난다. 이를 자연스럽게 극복하고 카페와 바이크 샵의 출입구를 분리하며 결합할 수 있게 스킵플로어 방식으로 배치하고 두 레벨이 만나는 수직 동선 옆에 보이드 공간을 두어 프로그램 간의 시각적 교차를 만들어 냈다. 내부 벽 마감은 다소 거칠지만 가격 대비 효과가 좋은 유로폼 노출 콘크리트로 마무리하였다. 바이크와 그 부품들을 인테리어 소품으로 활용하고 보이드 공간에 바이크 두 대를 천장에 매달아 연출하였다. 카페 쪽 입구로 들어온 고객들이 커피 주문을 하며 공중에 매달린 바이크와 수리하는 모습을 보며 이곳만의 특징을 한눈에 파악하고 즐길 수 있게 하였다.
다소 불리한 입지 조건과 서로 상이할 수 있는 프로그램을 건축의 힘으로 유리한 조건으로 승화시키려 고심한 프로젝트다. 그 효과가 건축주에게 좋은 매출로 이어지길 기대해 본다.



















Architects YEHA ARCHITECTS │ 건축사사무소 YEHA
Location Haso-ro, Dong-gu, Daejeon, Republic of Korea
Program Neighborhood Living Facility
Site area 697.6㎡
Building area 302.11㎡
Gross floor area 486.69㎡
Building scope 3F
Building to land ratio 43.31%
Floor area ratio 69.77%
Design period 2020. 7 - 8
Construction period 2020. 9 - 2021. 3
Completion 2021. 3
Principal architect Hanmook Cho
Project architect Hanmook Cho
Design team Hyunah Cho, Jiyoung Kim, Taeyang Kim
Structural engineer Dahn Engineers & Consultants Inc.
Mechanical engineer Samin Engineering
Electrical engineer Joeun Electricity
Construction Kungdo Engineering & constraction.co.ltd
Client Miseon Cho, Heungkyu Park
Photographer Woosang Yang
해당 프로젝트는 건축문화 2022년 4월호(Vol. 491)에 게재되었습니다.
The project was published in the April, 2022 recent projects of the magazine(Vol. 491).
April 2022 : vol. 491
Contents : RECORDS DIÉBÉDO FRANCIS KÉRÉ, WINNER OF THE 2022 PRITZKER ARCHITECTURE PRIZE 2022년 프리츠커 건축상 수상자, 디에베도 프란시스 케레 : NEWS / COMPETITION / BOOKS : SKET..
anc.masilwide.com
'Architecture Project > Commercial' 카테고리의 다른 글
| NINE WINDOWS (0) | 2022.06.30 |
|---|---|
| IN A LITTLE TIME (0) | 2022.06.17 |
| HOTEL WIND (0) | 2022.06.08 |
| HOHO WIEN (0) | 2022.06.08 |
| NEW ARCADE - 114 ZHENBANG RD (0) | 2022.06.07 |
마실와이드 | 등록번호 : 서울, 아03630 | 등록일자 : 2015년 03월 11일 | 마실와이드 | 발행ㆍ편집인 : 김명규 | 청소년보호책임자 : 최지희 | 발행소 : 서울시 마포구 월드컵로8길 45-8 1층 | 발행일자 : 매일



