
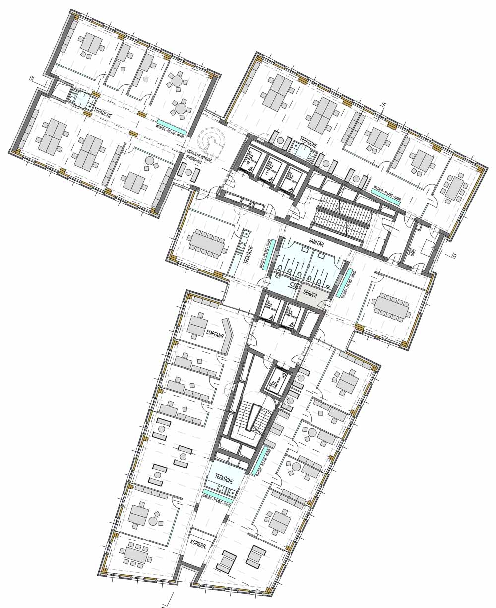
Concept
The basic approach of RLP for the timber tower HoHo Vienna was to combine a timber construction system with an efficient building layout. In comparison with pure timber construction, the HoHo Vienna demonstrates the advantages of a hybrid construction: Supporting concrete cores are used for vertical access and supply. The self-supporting timber structural system is then secured to these cores, creating the volumes for the building’s varied uses. Each material is used to best suit the different requirements of structural engineering, fire protection, flexibility, economy and spatial quality. In this way, the fundamental requirements for the use of a high-rise building- with its strict building regulations -can be met. In the buildings composition from the ground floor up, the proportion of wood used can be estimated at 75%.
Sustainability and flexibility
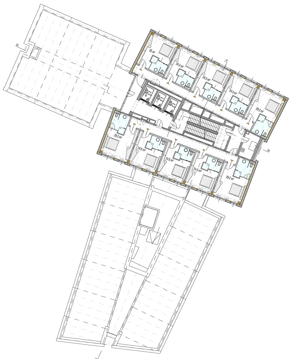
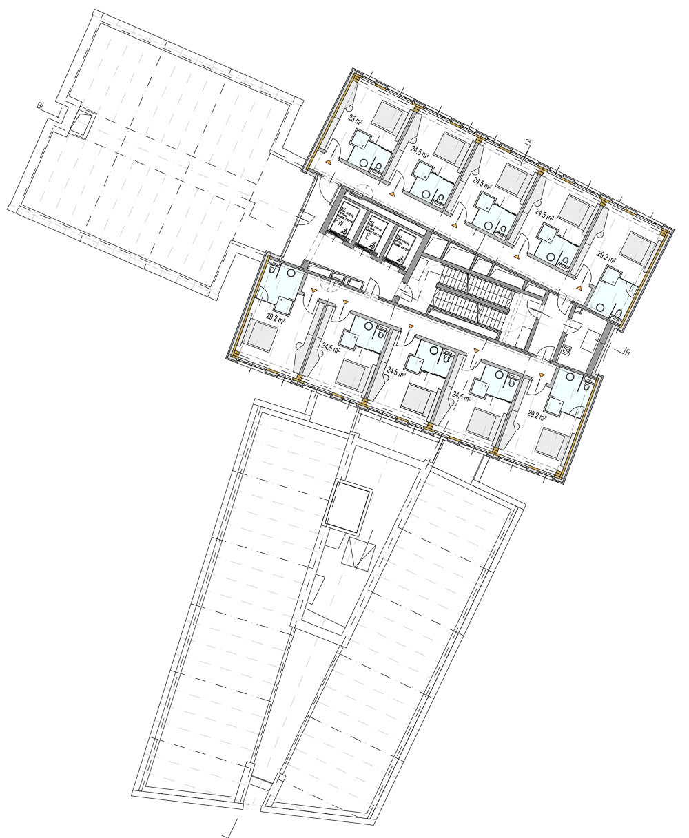
The timber construction system provides high efficiency in terms of thermal insulation and serviceability. Wood-composite floors are secured to the central concrete supporting cores, and extend out to the building edge. These floor panels are supported by a wooden column system around the outline of the building. This structure then supports pre-fabricated external wall modules that combine solid wood panels with an ‘earthy’ concrete shell to form the building’s facade.
The inside surfaces of the exposed wood ceilings, columns and the outer wall create a sensual, natural atmosphere. The modular design and flexibility of use result in a high building serviceability. Serviced apartments, offices, restaurant and spa facilities are provided in the HoHo Vienna. Subsequent changes in user or building function can be performed efficiently. The sustainability of the new wooden tower results from the pooling of conceptual approaches: Wood is resource-efficient, also in terms of the embodied energy. The flexible and adaptable layout ensures that the wood tower can be used for a long time. This longevity is an essential factor in the consideration of efficient sustainability. And as established in the concept of RLP for the high-rise building, the goal is to ensure that economy and ecology become mutually beneficial.
Architecture
In the high-rise building in Aspern’s Urban Lakeside, the use of wood provides a sensual experience. Wood in its truest sense forms an appreciable part of the spatial atmosphere that will contribute to the well-being of the users. The ultimate goal is to understand the authenticity of the material used as an element for an architecture which remains valid for the respective fads. For users and pedestrians alike, the wooden skyscraper is a physical and emotive part of everyday life in the city district. The prefabricated external wall modules permit a sculptural and richly varied facade design. The variations on the basic architectural theme of open and closed area offer both open views and intimacy. These variations are accentuated rhythmically and are connected by a facade texture to enrich the ambience within the Vienna’s Urban Lakeside.

하이브리드형 목조 주거건축의 새로운 시각, 호호 빈
오스트리아 빈에서도 신도시인 아스퍼른(Aspern)은 미래지향적이고 친환경적인 도시계획을 기반으로 개발지구이다. 이 신도시의 가장 큰 특징은 오랜 기간을 두고 지속 가능한 도시의 모습을 만드는 것에 있는데, 이는 현대의 신도시가 우후죽순으로 건축물을 세우며 도시를 만드는 모습과는 정반대의 노선을 취한다고 할 수 있다. 그중에서도 아스퍼른의 중심지에 있는 호호 빈은 목조와 콘크리트의 하이브리식 구조의 정점을 찍는 건물이다. 자립형 목재 구조 시스템을 콘크리트 코어에 고정하고, 건물의 다양한 용도를 위한 볼륨이 형성되어 있는 모습이다. 각 자재는 구조 공학, 방화, 유연성, 경제성 및 공간 품질의 다양한 요건에 가장 적합하게 사용됐으며, 고층 건축물에 적용되는 엄격한 규정을 충족할 수 있었다. 1층에서부터 건물 구성에서 사용되는 목재의 비율은 75%로 추정된다.
목구조 시스템은 단열 및 사용성 측면에서 높은 효율성을 제공한다. 목재 복합 바닥은 중앙의 콘크리트 코어에 고정되고 건물 가장자리까지 확장된다. 이와 같은 목재 바닥 패널은 건물 외곽선 주위에 나무 기둥 시스템에 의해 지지 된다. 그런 다음 이 구조는 단단한 목재 패널과 ‘흙같은’ 콘크리트 쉘을 결합하여 건물의 정면을 형성하는 사전 제작된 외부 벽 모듈을 지지한다.
노출된 목재 천장 내부 표면과 기둥, 외벽 등이 감각적이고 자연스러운 분위기를 자아낸다. 모듈식 설계와 사용상의 유연성은 고층빌딩의 서비스 가능성을 높인다. 호호 빈에는 서비스 아파트, 사무실, 레스토랑, 스파 시설이 있다. 사용자에 따라 또는 건물 기능에 있어 추후 변경을 효율적으로 할 수 있다. 새로운 목조 타워의 지속 가능성은 개념적 접근 방식의 통합에서 비롯된다. 목재는 내재된 에너지 측면에서도 자원 효율적이다. 유연하고 적응성이 뛰어난 레이아웃으로 목재 타워를 오랫동안 사용할 수 있다. 이러한 수명은 효율적인 지속 가능성을 고려하는 데 필수적인 요소다.
아스퍼른 도심 속에서도 호숫가에 위치한 호호 빈은 목조 고층빌딩만의 감각적인 경험을 제공한다. 목재의 사용을 통해 사용자의 웰빙에 기여할 공간적 분위기를 형성하고, 각각의 유행에 유효한 건축의 요소로 사용되는 재료의 진정성을 이해하는 것이다. 사용자와 보행자 모두에게 목조 마천루는 도시 지역의 일상생활의 물리적이고 정서적인 부분이다. 조립식 외벽 모듈은 다양한 외관 디자인을 허용한다. 열린 공간과 닫힌 공간의 기본 건축 테마에 대한 변형은 열린 전망과 친밀감을 모두 제공하며, 이러한 변화는 리드미컬하게 강조되어 비엔나의 어반 레이크사이드 내의 분위기를 풍부하게 하는 입면의 질감으로 연결된다.

















Architects RLP Rudiger Lainer + Partner
Location Vienna, Austria
Site area 3,920㎡
Gross floor area 25,000㎡
Building scope 24F
Design period 2014. 3 - 2016
Construction period 2016. 10 - 2019
Completion 2020
Principal architect Rudiger Lainer, Oliver Sterl
Structural engineer RWT+ZT GmbH, MZT Dr. Ronald Mischek ZT GmbH
Fire protection engineering Kunz - die innovation Brandschutzplaner
Construction Handler Gruppe
Client Cetus Baudevelopment GmbH
Photographer Cetus.at+Thomas Lerch, Cetus Baudevelopment u kito at, György Palkó
해당 프로젝트는 건축문화 2022년 3월호(Vol. 490)에 게재되었습니다.
The project was published in the March, 2022 recent projects of the magazine(Vol. 490).
March 2022 : vol. 490
Contents : RECORDS THE BEGINNING OF THE JOURNEY TO THE MUSEUM OF ART IN THE FOREST, 《MMCA GWACHEON PROJECT 2021: ART BUS SHELTER》 숲 속 미술관으로 가는 여정의 시작, 《MMCA 과천프로젝트 2..
anc.masilwide.com
'Architecture Project > Commercial' 카테고리의 다른 글
| JEROME COFFEE & BITES (0) | 2022.06.16 |
|---|---|
| HOTEL WIND (0) | 2022.06.08 |
| NEW ARCADE - 114 ZHENBANG RD (0) | 2022.06.07 |
| TIANYA BOOKS (0) | 2022.05.30 |
| ICARO HOTEL (0) | 2022.05.27 |
마실와이드 | 등록번호 : 서울, 아03630 | 등록일자 : 2015년 03월 11일 | 마실와이드 | 발행ㆍ편집인 : 김명규 | 청소년보호책임자 : 최지희 | 발행소 : 서울시 마포구 월드컵로8길 45-8 1층 | 발행일자 : 매일



