
Positioned on the Alpe di Siusi plateau at 1,900m above sea level and set within South Tyrol’s Dolomites UNESCO World Heritage site, the hotel’s humble origins date back to a simple 1930s mountain lodge. Granddaughter to the founder of the original Icaro lodge, Angelika Sattler commissioned MoDusArchitects to overhaul the structure and reimagine its identity. The various interventions include an underground parking extension, the separate staff quarters, a guest room addition, the reorganization of all the common spaces including the pool area, and the sweeping, giant order colonnade of wood along the main facade that intercepts the breathtaking mountain views.
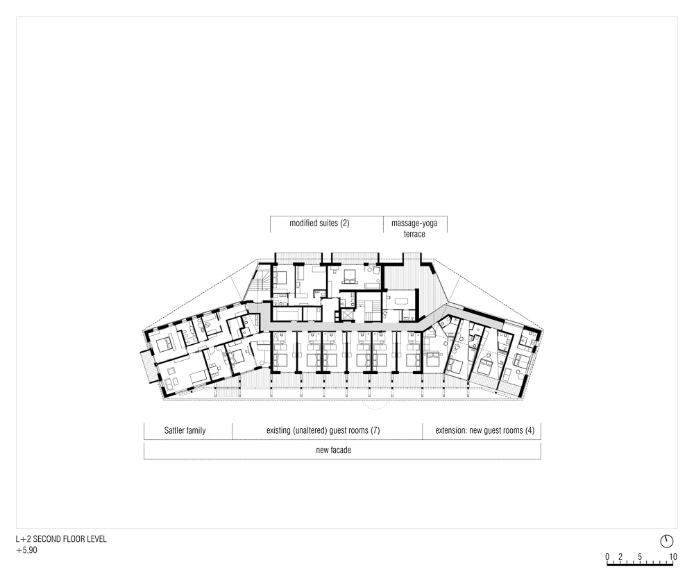
In plan, the new addition mirrors the existing west wing along the axis of the original lodge to forge a symmetry of parts to the whole relationship. On the outside, the thickened saw-toothed larch-wood skin, together with the large pitched wooden roof and the timber columns, constitute an ordering system that subsumes the myriad of past modifications into a cohesive architectural body. The 13 branching wood columns 7.5m high that march down the 55m length of the south-facing facade and span over the two upper floors are structural elements that tie the roof into place and serve as a middle-ground frame through which guests measure themselves up against the architecture and the landscape. The first floor terrace draws a straight line across the two far corners of the building to define an airy, double-height loggia that extends the interior spaces of the guest rooms outwards.
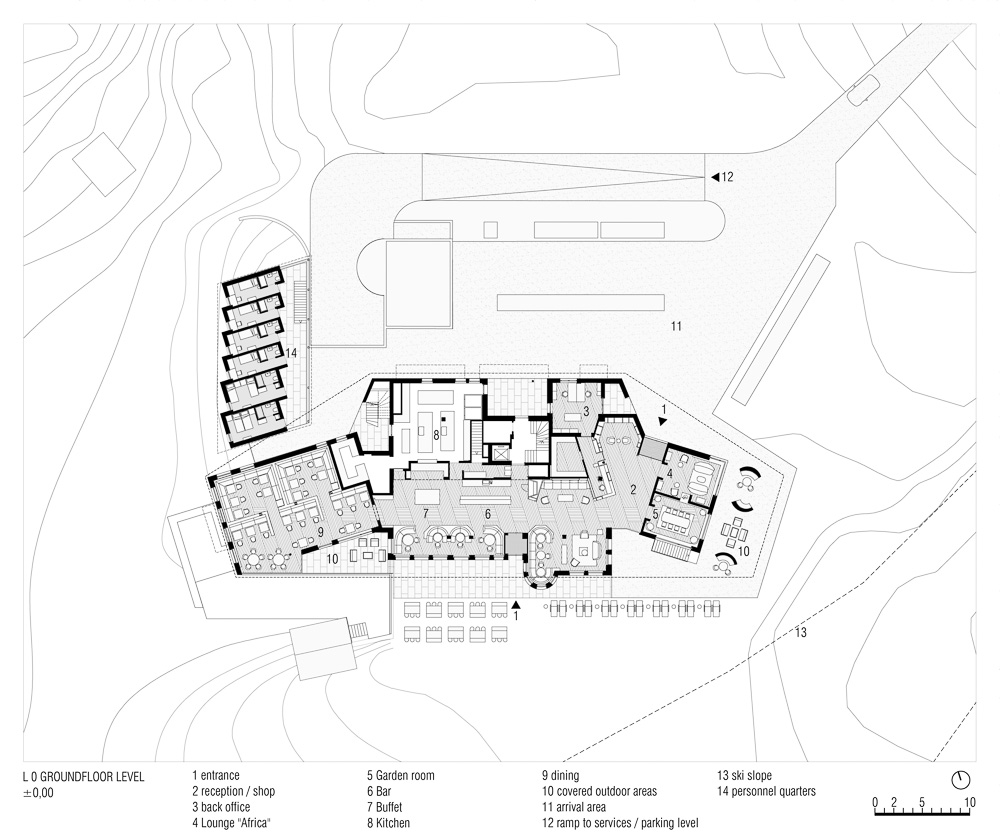
At the ground level, down the length of the building, a clearly defined throughway unravels a succession of common areas: entry, reception, shop, lounge, bar and dining hall all participate in the colorful exchange between guests, visitors, outdoor enthusiasts and the Sattler family. The eclectic convergence of materials, textures and fixed furniture elements string the programs together and rescripts the collective memory of traditional alpine interior spaces. While the wood lined dining alcoves with banquette seating conjure up the hospitality of long-established lodge interiors, the monolithic, cloudy-grey marble of the buffet table and bar counter anchor the defining moments of gastronomical delight at the center of this spatial continuum. Similarly, the characteristic coffering of the alpine wood is revisited with an all-enveloping surface of acoustic-felt panels partitioned by notched, intersecting yellow moulding profile. In tandem with the overhead paneling, the braided texture of the oak planked flooring weaves together the mirrored angles of the hotel’s footprint in a subtle tete-a-tete between old and new.
Embedded within the interiors of the hotel lie stories, family heirlooms, and a celebration of contemporary artistic endeavors and artisanal know-how. The reception, shop and lounge area are designed as a full-height, thickened wainscoting of oak panels and deep blue recesses that collect a disparate range of subjects much like a cabinet of curiosities. The juxtaposition of people, animals, books, art, objects and hospitality accoutrements explore the folkloric otherness of the local culture.

고산의 풍경과 뒤섞인 예술과 건축, 이카로 호텔
해발 1,900m의 알페 디 시우시 고원에 위치하고 사우스 티롤의 돌로미테스 유네스코 세계문화유산 내에 세워진 이 호텔의 기원은 1930년대 산장으로 거슬러 올라간다. 최초 이카로 호텔 설립자의 손녀는 모드스아키텍츠에 구조 보강과 함께 이곳의 아이덴티티 재해석을 의뢰했다. 또한, 지하주차장 확장, 별도의 직원 숙소, 추가 객실, 수영장을 포함한 모든 공용공간의 재정비를 요청했고, 숨이 막힐 정도로 아름다운 산의 경치를 가로채는 파사드에 나열된 거대한 나무 기둥들이 포함되었다.
새롭게 증축된 부분은 기존 건물의 축을 따라 서쪽 날개를 미러링하여 전체적으로 대칭을 형성한다. 바깥쪽으로는 굵은 톱니 모양의 낙엽송 목재 스킨은 큰 경사의 목재 지붕 및 목재 기둥과 함께 과거의 무수한 수정 사항을 응집력 있는 건축물로 포함하는 하나의 질서체계를 만든다. 높이 7.5m의 나무 기둥 13개가 55m의 남향 파사드를 따라 2개 층에 걸쳐 있다. 이 기둥은 지붕을 고정하면서 손님들이 건축물과 풍경을 만나게 하는 중간 틀의 역할을 한다. 1층 테라스는 건물의 두 모서리를 가로지르는 직선을 그어 통풍이 잘되는 이중 높이의 열린 복도로 계획하여 객실의 내부 공간을 외부로 확장한다.
1층은 출입구, 리셉션, 상점, 라운지, 바, 식당 등 일렬로 놓인 공용 공간은 투숙객과 방문객, 야외 애호가, 건축주의 가족 간에 다채로운 교류를 하게 한다. 재료, 질감, 고정 가구 요소의 다양한 조합은 프로그램을 하나로 묶고 전통적인 고산 지역의 실내 공간을 기억하게 한다. 나무로 마감된 식당의 벽은 오랫동안 자리 잡은 산장 인테리어를 연상시키는 반면, 뷔페 테이블과 바 카운터의 모놀리식 흐릿한 회색 대리석은 이 공간의 중심에 미식이라는 즐거움의 결정적인 순간을 고정한다. 유사하게, 고산 목재의 특징적인 코퍼링은 교차하는 노란색 몰딩 프로파일에 의해 분할된 음향 펠트 패널의 전체를 둘러싸는 표면을 통해 다시 살펴보게끔 한다. 오버 헤드 판넬과 함께 오크 판자 바닥의 질감은 호텔의 발자국의 거울 각도를 함께 엮어 오래된 것과 새로운 것 사이의 미묘한 사담을 만들어 낸다.
호텔 내부에는 이야기, 가족 가보, 현대 미술의 노력과 장인의 노하우가 담겨 있다. 리셉션, 상점 및 라운지 공간은 마치 다양한 주제를 모으는 호기심 가득한 캐비닛처럼 두꺼운 웨인스코팅의 오크 패널과 진청색 홈으로 꾸며졌다. 사람, 동물, 책, 예술, 물건 및 환대 장신구의 병치는 지역 문화의 민속적인 다른 점을 탐구한다.

































Architects MoDusArchitects | 모드스아키텍츠
Location Castelrotto, Bolzano, Italy
Program Hotel
Building area 1,360㎡
Gross floor area 5,040㎡
Building scope B1, 3F
Design period 2018 - 2020
Construction period 2020 - 2021
Completion 2021. 8
Principal architect Sandy Attia, Matteo Scagnol
Design team Sandy Attia, Matteo Scagnol, Filippo Pesavento
Structural engineer Ing. Ulrich Kauer (KS Engineering)
Mechanical engineer Ing. Kurt Trobinger (KTB Engineering)
Electrical engineer Ing. Mirko Beikircher (KTB Engineering)
Client Angelika Sattler
Photographer Gustav Willeit
해당 프로젝트는 건축문화 2022년 3월호(Vol. 490)에 게재되었습니다.
The project was published in the March, 2022 recent projects of the magazine(Vol. 490).
March 2022 : vol. 490
Contents : RECORDS THE BEGINNING OF THE JOURNEY TO THE MUSEUM OF ART IN THE FOREST, 《MMCA GWACHEON PROJECT 2021: ART BUS SHELTER》 숲 속 미술관으로 가는 여정의 시작, 《MMCA 과천프로젝트 2..
anc.masilwide.com
'Architecture Project > Commercial' 카테고리의 다른 글
| NEW ARCADE - 114 ZHENBANG RD (0) | 2022.06.07 |
|---|---|
| TIANYA BOOKS (0) | 2022.05.30 |
| S BUILDING (0) | 2022.05.20 |
| LE BATIMENT DESCENDANT L’ESCALIER (0) | 2022.05.19 |
| GONGGANMEME (0) | 2022.05.04 |
마실와이드 | 등록번호 : 서울, 아03630 | 등록일자 : 2015년 03월 11일 | 마실와이드 | 발행ㆍ편집인 : 김명규 | 청소년보호책임자 : 최지희 | 발행소 : 서울시 마포구 월드컵로8길 45-8 1층 | 발행일자 : 매일



