
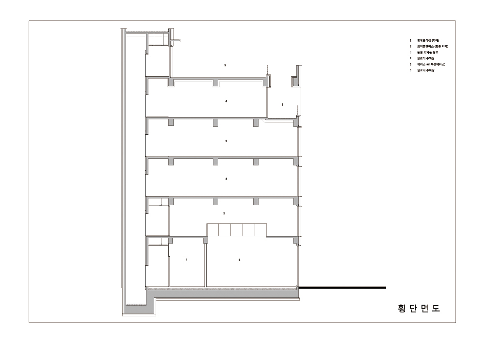
‘S Building’, with its old blue bricks that create a neat atmosphere, is a neighborhood living facility in the Hakha district of Daejeon’s new town. Three sides of the site are surrounded by roads, and there is an adjacent site to the southwest. The building, which will be used as a neighborhood living facility, was made to be entered from the large road considering the special characteristics of its use, and the first-floor space that was provided to run a cafe was connected so that it could be entered from the pedestrian road. To maximize practicality, the core was placed towards the southwest facing the adjacent site. Floor-to-ceiling windows were placed towards the southeast side of the road, where the view is open, to solve the problem of arranging the direction was solved.
Since a simple, rectangular mass that extends vertically can seem stifling and heavy, the building was divided horizontally using large openings and windows. It was planned as an open space so that the areas of each floor can secure light and a view when viewed from the inside. The client wanted an office building, where both an animal drug company and cafe can be run together, with a flawlessly clean and impactful appearance. The most difficult part of the elevation plan with a simple and concise concept was possibly the selection of materials. This is because choosing various materials to avoid dullness could lead to a chaotic facade. It seemed that it would be better to choose one unified material to appeal to the charm of the wide floor-to-ceiling windows in the front of the building.
The material that was chosen, after grappling with a way to make the perfectly square form seem soft, was old bricks. New buildings, with their clean and sharp appearance, in urban sections of a new town sometimes seem cynical. We wanted the building, which is full of artificial straight lines, to hold the broken and rounded times at the end lines of the materials. As the old bricks, which have an attractive and unique weightiness, met sharp lines, a sense of stability was provided. Old blue bricks with a gray tone were needed to harmonize with the brown-toned colored glass, so we also faced the trouble of sorting out red-colored old bricks that were mixed with the imported old bricks at the site. We believe that the client’s special affection of visiting not only the same region but also other regions far away to think about the bricks, and close communications during the design process played a big role in the selection of materials.
To prevent the monotony that can come from using a single material, we sought visual diversity. The old bricks were stacked diagonally using ‘perforated masonry’. The gaps of the bricks were recognized as an interesting design element and became a way to secure sunlight. The light shining through the bricks changes from time to time, and the casted shadows and beams of light create a different atmosphere depending on the season and time. In addition to the interior space, perforated masonry was used for the exterior wall of the piloti parking lot on the first floor, allowing privacy to be secured and providing an aesthetic effect. Whenever the sensor lights are activated, the light shining through the holes on the side wall changes the face of the building, giving an interesting impression.
During the day, the sunlight shining in from the outside casts a shadow and beautifies the interior, and at night, the lights from the inside brighten the streets in the dark. Deep down, we hope that the light shining on the other side through the old blue brick tunnel can be a warm greeting to users who enter this building for the first time or to the cold new town that has not yet been vitalized.

청고의 터널을 지나 흐르는 빛, 에스빌딩
단정한 분위기를 자아내는 청고벽돌이 돋보이는 ‘에스빌딩’은 대전 신도시 학하지구에 있는 근린생활시설이다. 대지의 3면은 도로로 둘러싸여 있고, 남서쪽으로 인접 대지가 있다. 근생으로 사용될 건축물의 용도를 고려해 큰 도로에서 진입하도록 설계했고, 카페 운영을 위해 마련된 1층 공간은 보행자도로에서 진입할 수 있도록 연계 배치했다. 실용성을 극대화하기 위해 인접 대지와 맞붙은 남서쪽으로 코어를 두었다. 시야가 열린 남동쪽 도로변으로 통창을 두어 향 배치의 난점을 해결했다.
수직으로 곧게 뻗은 사각형의 단순한 매스는 자칫 답답하고 무거운 느낌이 들 수 있기에, 큰 개구부와 통창을 통해 수평으로 분절시켰다. 내부에서 볼 때, 각 층의 영역이 조망과 채광을 확보할 수 있도록 열린 공간으로 계획한 것이다. 건축주는 동물약품회사 사무실과 카페를 함께 운영할 수 있는 군더더기 없이 깔끔하고 임팩트 있는 외형의 사옥을 원했다. 단순하고 간결한 콘셉트의 입면 계획에서 가장 고심해야 하는 부분은 재료 선택이었다. 지루함을 피하려 다양한 재료를 선택하다 보면 난잡한 느낌의 정면이 될 수 있기 때문이다. 건물 전면부에 시원하게 뚫린 통창의 매력 어필을 위해 하나로 통일된 재료 선택이 나을 듯했다.
네모반듯한 형체를 부드럽게 느껴지도록 하는 방법을 고심하다 선택한 재료가 고벽돌이었다. 새로운 신도시 시가지에 깔끔하고 반듯한 새 건물들은 간혹 냉소적으로 느껴질 때가 있다. 인위적인 직선이 가득한 건축물의 재료 끝 선에서 부서지고 둥그러진 세월을 안고 있길 바랐다. 특유의 무게감이 매력적인 고벽돌은 날카로운 선들과 만나면서 안정감을 느끼게 해준다. 딥 브라운톤 컬러유리와의 조화를 위해 그레이톤의 청고벽돌이 필요했기에, 현장에서는 수입된 고벽돌에 섞여 있는 붉은 컬러의 고벽돌을 골라내는 수고로움도 있었다. 벽돌에 대한 고민을 위해 같은 지역은 물론 멀리 타 지역까지도 가서 답사하는 건축주의 남다른 애정과 설계 과정에서 긴밀한 소통이 재료 선정에 큰 역할을 했다고 생각한다.
하나의 재료에서 올 수 있는 무료함을 벗어나고자 시각적 다채로움을 꾀했다. ‘영롱 쌓기’를 이용해 고벽돌을 어슷하게 쌓아 올렸다. 벽돌의 틈은 재미있는 디자인의 요소로 인지되면서, 채광을 확보할 방안이 되었다. 벽돌 사이로 흘러들어오는 빛은 시시때때로 변화하고, 만들어진 그림자와 빛줄기는 계절에 따라, 시간에 따라 다른 분위기를 연출한다. 내부공간이 아닌 외부 1층 필로티 주차장의 외벽도 영롱 쌓기를 통해 프라이버시를 확보하면서 심미적인 효과를 얻었다. 센서 등이 작동할 때마다 측벽의 구멍에서 나오는 빛이 건물의 얼굴을 변화시켜 흥미로운 감상을 선사한다.
주간에는 밖에서 흘러들어오는 햇빛이 그림자를 드리우며 내부를 아름답게 하고, 야간에는 안에서 흘러나오는 조명 빛이 어둠 속 거리를 밝힌다. 청고의 터널을 지나 반대편에 흐르는 빛이 건축물에 처음 들어온 이용자에게 또는 아직 활성화되지 않은 차가운 신도시에 전하는 따뜻한 인사가 될 수 있지 않을까 기대한다.




























Architects DOHA. Architecture & Design Group│건축사사무소 도하
Location Hakhabogyongseo-ro, Yuseong-gu, Daejeon, Republic of Korea
Program neighborhood living facilities
Site area 374.8㎡
Building area 224.48㎡
Gross floor area 999.62㎡
Building scope 5F
Building to land ratio 59.84%
Floor area ratio 266.71%
Design period 2019. 7 - 2020. 1
Construction period 2019. 12 - 2020. 11
Completion 2020. 11
Principal architect / Project architect Bae, KiCheo
Structural engineer Dong Yang Structure Engineering Co., Ltd.
Mechanical engineer / Electrical engineer Daelim MEC Co., Ltd.
Construction LEEHAN Construction Co., Ltd.
Client Mingeun Park, Jiyeon Hwang
Photographer Hanbit Kim
해당 프로젝트는 건축문화 2022년 3월호(Vol. 490)에 게재되었습니다.
The project was published in the March, 2022 recent projects of the magazine(Vol. 490).
March 2022 : vol. 490
Contents : RECORDS THE BEGINNING OF THE JOURNEY TO THE MUSEUM OF ART IN THE FOREST, 《MMCA GWACHEON PROJECT 2021: ART BUS SHELTER》 숲 속 미술관으로 가는 여정의 시작, 《MMCA 과천프로젝트 2..
anc.masilwide.com
'Architecture Project > Commercial' 카테고리의 다른 글
| TIANYA BOOKS (0) | 2022.05.30 |
|---|---|
| ICARO HOTEL (0) | 2022.05.27 |
| LE BATIMENT DESCENDANT L’ESCALIER (0) | 2022.05.19 |
| GONGGANMEME (0) | 2022.05.04 |
| AMI-COTE (0) | 2022.05.03 |
마실와이드 | 등록번호 : 서울, 아03630 | 등록일자 : 2015년 03월 11일 | 마실와이드 | 발행ㆍ편집인 : 김명규 | 청소년보호책임자 : 최지희 | 발행소 : 서울시 마포구 월드컵로8길 45-8 1층 | 발행일자 : 매일



