
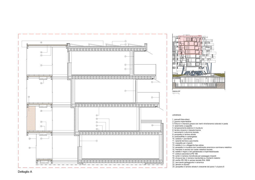
Le batiment descendant l’escalier is a project that, starting from the peculiarities of the place and the client’s request, develops without apparently questioning either one or the other. However, the project tries to exploit the position and the building typology to imagine an architecture in which the use of shared spaces becomes its best quality. The project involves the urban space to activate those links between public and private use of the space. The separation between the residential part of the building and commercial one produces an elevated floor for collective condominium use, a new partially covered artificial territory, equipped with a solarium, relax area and swimming pool. This physical detachment between the two functions allows the articulation of those expressive structural elements that characterize the building. The irregular metal stilts connect the cartesian structural system of the ground and basement floors with the radial pattern of the load bearing walls suspending the appartments. The living spaces are arranged like a vineyard and they step back to provide the the best exposure to the sun and the better views. The distribution system is designed to be the continuation of that common floor. The distribution galleries expand and narrow, becoming rest areas to promote neighborhood sociability. This distribution system is a device which allows the active use of a functional space inviting to look north towards the Venetian Lagoon and the Dolomites.

중간 회랑으로 기능적 분리를 시도한 주상복합, 르 바티마 데스사다 르에스카이제
르 바르다 데스사다 르에스카이제(Le batiment descendant l’escalier)라고 불리는 이 계단식 건축물의 정체는 공유 공간이 최대의 효과를 누리도록 설계된 공동 주거 건축물이다. 공적 공간과 사적 공간 사이의 연결을 활성화 하기 위해 도시 공간을 포함한다. 건물은 주거용 부분과 상업용 부분으로 분리되는 주상복합형이다. 두 가지 기능적 측면으로 보면, 물리적인 분리는 구조적 요소들의 표출과 건물의 특징으로 표현된다. 불규칙하게 놓여있는 금속 기둥은 1층과 지하실의 계단식 구조 시스템과 아파트의 방사형 패턴의 내력벽을 연결해준다. 생활 공간은 포토밭을 연상시키며 줄지어 있고, 한 발치 뒤로 들어간 듯한 구조는 높은 채광과 더 나은 경관을 선사한다. 이 건물의 회랑 구조는 공용 공간의 연장으로서 설계되었다. 넓거나 혹은 좁게 이뤄진 회랑은 이웃과의 교류를 가능하게 해주는 휴식 공가닝 된다. 또한, 회랑 구조는 기능적 공간을 보다 능동적으로 사용할 수 있게 해주는 장치로써 베니스 라군(Venetian Lagoon)과 돌로미티(Dolomites)의 모습을 바라볼 수 있도록 북쪽을 향해 있다. 포디움 위에 마련된 공간은 일광욕과 휴식이 가능한 공간과 수영장을 갖추고 있다.










Architect ELASTICOFarm + BPLAN STUDIO
Location Lido di Jesolo, Venice, Italy
Gross floor area 4.500㎡
Design period 2015. 4
Construction period 2018. 9 - 2020. 12
Completion 2021. 3
Design team Stefano Pujatti, Alberto Del Maschio, Marco Bottosso, Valeria Brero, Daniele Almondo, Serena Nano, Andrea Rosada, Boris Cibin
Structural engineer SAICO Ingegneria Srl
Mechanical engineer Studio Termotecnico Gabrielli
Construction C.E.V. Spa
Client NUMERIA SGR Spa
Photographer Iwan Baan
해당 프로젝트는 건축문화 2022년 2월호(Vol. 489)에 게재되었습니다.
The project was published in the February, 2022 recent projects of the magazine(Vol. 489).
February 2022 : vol. 489
Contents : RECORDS THE NATIONAL MUSEUM OF MODERN AND CONTEMPORARY ART DISCLOSES PLANS FOR 2022 국립현대미술관 2022년 전시 계획 공개 : NEWS / COMPETITION / BOOKS : SKETCH THE QUIET..
anc.masilwide.com
'Architecture Project > Commercial' 카테고리의 다른 글
| ICARO HOTEL (0) | 2022.05.27 |
|---|---|
| S BUILDING (0) | 2022.05.20 |
| GONGGANMEME (0) | 2022.05.04 |
| AMI-COTE (0) | 2022.05.03 |
| HOTEL HOPPIPOLLA (0) | 2022.05.02 |
마실와이드 | 등록번호 : 서울, 아03630 | 등록일자 : 2015년 03월 11일 | 마실와이드 | 발행ㆍ편집인 : 김명규 | 청소년보호책임자 : 최지희 | 발행소 : 서울시 마포구 월드컵로8길 45-8 1층 | 발행일자 : 매일



