
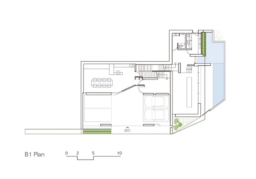
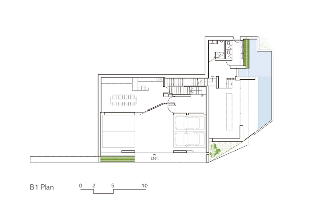
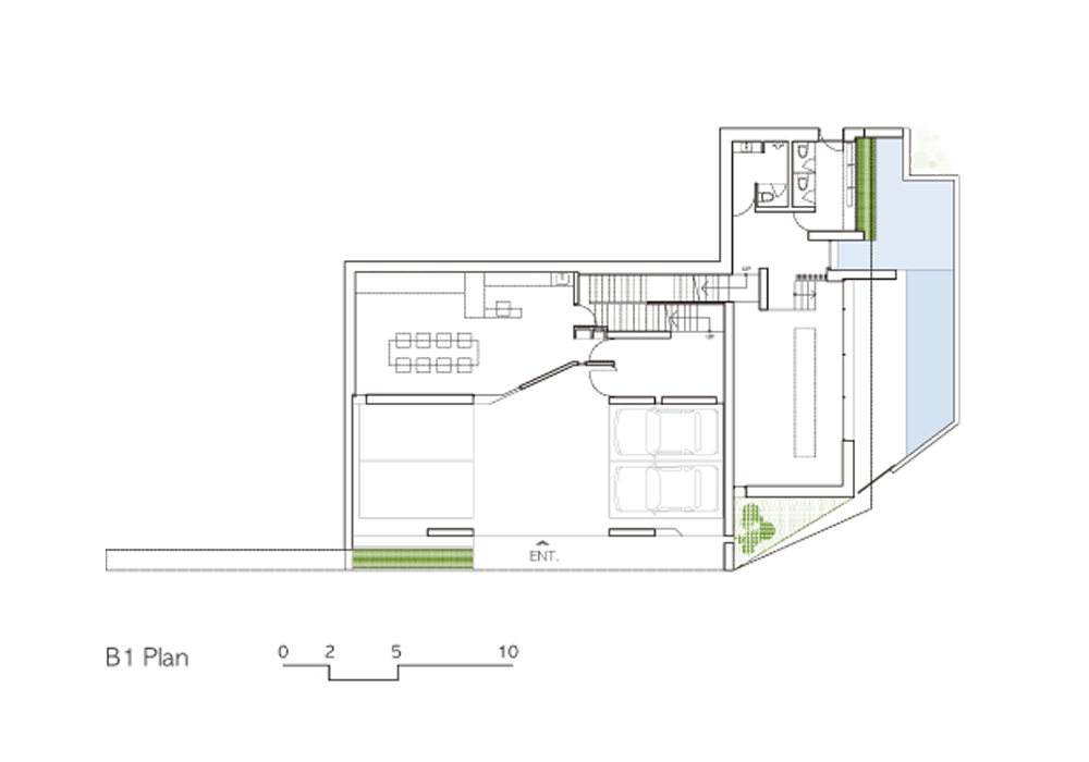
At the foot of Yeongchuksan Mountain in Yangsan, Gyeongsangnam-do, Hansong Art Village is the last project site among urban planning facilities and is located at the entrance to the Art Village. Yeongchuksan Mountain, where Tongdosa Temple is located, has a steep incline in the east and a gentle valley has developed in the west, contrasting with the topography of the east. The spatial meme on the western edge contains the shape created
from the shape of the land and the height of the terrain. From the sweet potato-shaped land with a gentle slope, the use was defined and the landscape reconstructed. Centering on the wall dividing the site, it was divided into a
commercial space and an artist space connected with the external space. How can we connect the place separated from the nature that remains?
Contain the rhyme of space
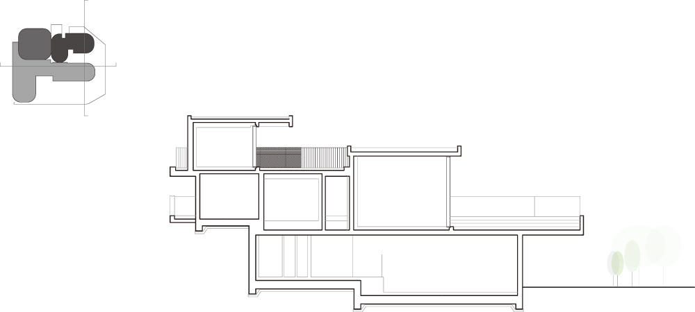
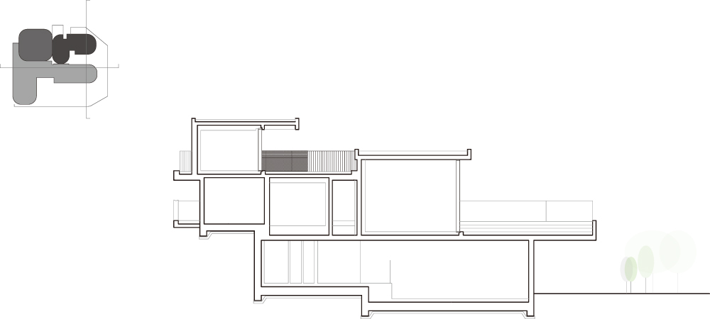
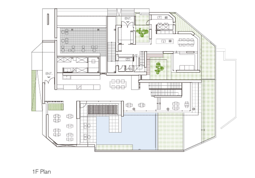
The stepped space using the form of the board connected from the ground and slopes have individuality and are composed of a continuous space. The vertical and horizontal heights and widths in each space create a hierarchy in the space necessary for the use and play a role in guiding the circulation line according to the characteristics. We suggest a rhyme felt in a space that changes according to the circulation.
Architecture in the background
Architecture exists as a background to highlight the work. A water space was planned at the center of the landscape to mediate between the distant view. The artificial horizon contains uncertain boundaries and creates a new natural landscape. The space and the work of art change every moment according to the coordinated perspective and the angle of light. Landscape and architecture, architecture and works of art meet, and color and light are added to the space to be recognized as a third space.
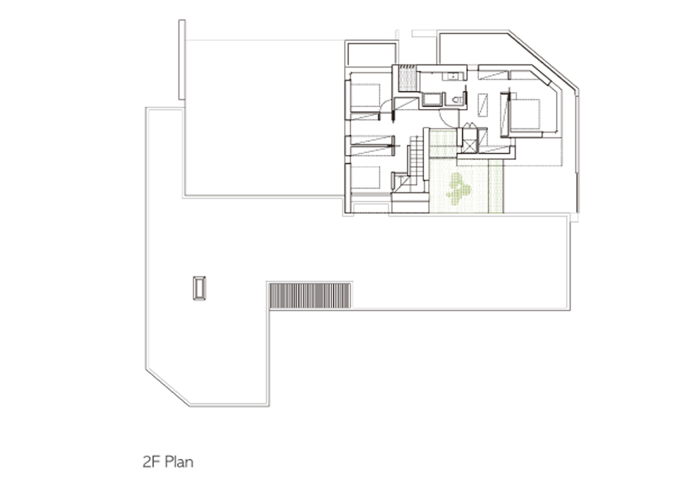
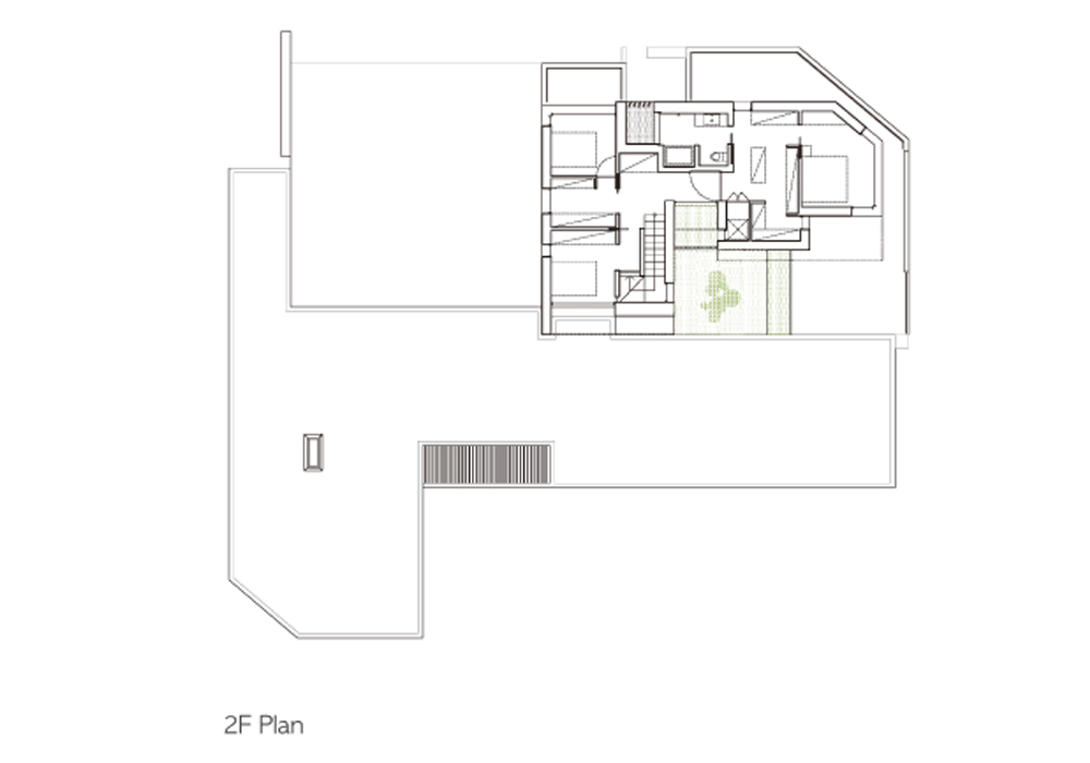
MEME
The spatial meme, built for the purpose of conveying various cultures and arts, is divided largely into a gallery for exhibition of works, a workshop, and a space for education. The process of expanding by delivering culture is in proximity with architecture that expands vertically and horizontally with a spatial hierarchy.

경상남도 양산 영축산 자락, 한송예술촌 도시계획시설 중 마지막 사업지로 예술촌 입구에 있다. 통도사가 위치한 영축산은 동쪽은 급경사를 이루고, 서쪽은 완만하고 계곡이 발달하여 동쪽의 지형과는 대조를 이룬다. 서쪽 자락에 있는 공간밈은 땅의 모양과 지형의 높낮이로부터 만들어진 형태를 담았다. 완만한 경사를 가진 고구마 형태의 땅에서 용도를 정의하고 풍경을 재구성했다. 대지를 나누는 벽체를 중심으로 외부공간과 연계한 상업공간과 작가공간으로 구분하였다. 남겨진 자연과 구분된 장소를 어떻게 연속적으로 연계할 수 있을까?
공간의 운율을 담다
땅에서 연결된 판의 형태와 경사지를 이용한 계단식 공간은 개별성을 가지는 동시에 연속적인 공간으로 구성된다. 각 공간에서의 수직, 수평의 높이와 폭은 용도에 맞는 필요한 공간에서 위계를 만들고 특성에 맞춘 동선을 유도하는 역할을 한다. 동선에 따라 변화하는 공간에서 느껴지는 운율을 제안한다.
배경의 건축
건축은 작품을 부각하기 위한 배경으로 존재한다. 풍경의 중심에 수공간을 계획하여 원경을 조율했다. 인공의 수평선은 불확실한 경계를 담고, 새로운 자연경관을 만든다. 조율된 원경과 빛의 각도에 따라 공간도 예술작품도 시시각각 변화한다. 풍경과 건축, 건축과 예술작품이 만나고, 공간에 색과 빛이 더해져 제3의 공간으로 인식되고자 한다.
공간밈(meme)
다양한 문화 예술을 전달하는 목적으로 지어진 공간밈은 크게 작품 전시를 위한 갤러리, 작업실, 교육을 위한 공간으로 나누어져, 문화를 전달하여 확장되는 과정은 공간의 위계를 가지고 수직, 수평으로 확장되어 가는 건축과 맞닿아 있다.






















Architects PLS Architects │ 피엘에스 건축사사무소
Location 140, Yein-gil, Habuk-myeon, Yangsan-si, Gyeongsangnam-do, Republic of Korea
Use Tourist rest facility (convenience exhibition hall)
Site area 651.14㎡
Total floor area 857.83㎡
Floor B1, 2F
Height 6.8m
Structure RC structure, steel-frame structure
Exterior finish waterproof on exposed concrete
Interior finish water-based paint
Design period 2019.04 - 2019.08
Construction period 2019.08 - 2021.09
Architect Yeonjung Lee, Hyukhyu Shin
Design team Jiyoung Um
Structural engineer MOA structural engineerings
Mechanical & Electrical engineer Kwang myoung engineering corp
Landscape Hana landscape
Furniture INNOMETSA
Construction Centuim construction (Joonsung Park)
Photographer Joonhwan Yoon
해당 프로젝트는 건축문화 2022년 2월호(Vol. 489)에 게재되었습니다.
The project was published in the February, 2022 recent projects of the magazine(Vol. 489).
February 2022 : vol. 489
Contents : RECORDS THE NATIONAL MUSEUM OF MODERN AND CONTEMPORARY ART DISCLOSES PLANS FOR 2022 국립현대미술관 2022년 전시 계획 공개 : NEWS / COMPETITION / BOOKS : SKETCH THE QUIET..
anc.masilwide.com
'Architecture Project > Commercial' 카테고리의 다른 글
| S BUILDING (0) | 2022.05.20 |
|---|---|
| LE BATIMENT DESCENDANT L’ESCALIER (0) | 2022.05.19 |
| AMI-COTE (0) | 2022.05.03 |
| HOTEL HOPPIPOLLA (0) | 2022.05.02 |
| Wind Clinic (0) | 2022.04.11 |
마실와이드 | 등록번호 : 서울, 아03630 | 등록일자 : 2015년 03월 11일 | 마실와이드 | 발행ㆍ편집인 : 김명규 | 청소년보호책임자 : 최지희 | 발행소 : 서울시 마포구 월드컵로8길 45-8 1층 | 발행일자 : 매일



