
Ami-cote means 'on the hillside' in French and is located at an elevation of 265m above sea level at the foot of Unmunsan Mountain (the height of Namsan Mountain in Seoul). A small commercial space and housing were planned on the land divided by reclamation of the mountainous area. It started with the purpose of researching a healthy life by making authentic healthy juice with good ingredients on the mountainside and providing drinks using local specialties. When I visited the site, it reminded me of beautiful Korean paintings with overlapping mountains and mist. I felt a sense of fresh admiration towards the client for leaving the city and opening a commercial space on the mountainside. We tried to create a reason to visit this place despite it being in a mountainous area, by making the most of the advantages of the site. Due to the limited project cost, only the cafe building has been built, and the rest is expected to be carried out in stages.
Town making: minimal architecture, maximal scenery
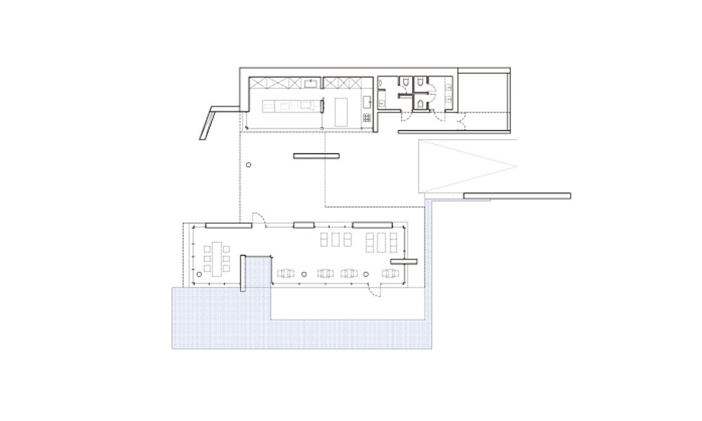
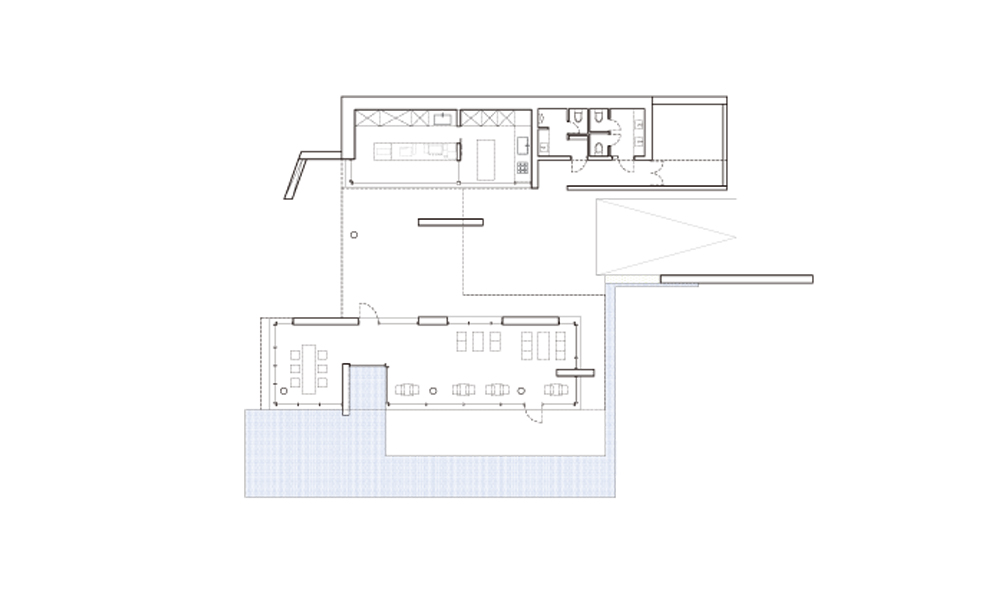
Sales facilities, restaurant lounges, and detached houses are gathered in the two business sites to become a village. The central building consists of a courtyard and annexes connected in an 'ㅏ' shape. Using the divided site and the difference in elevation, the horizontal wall that meets at the entrance draws users to the center of the village. When you enter through the courtyard, you can experience the connected external space. Through the road, you meet the space, and spaces meet to form an architectural village that becomes a landscape.
Landscape crack
The crack in the landscape is the most important idea in Ami-cote. The gap created by using the difference in elevation of the site divides or connects the space. A gap in the landscape separates the functional space from the lounging space, allowing one to commune with the nature that remains. In the gaps and spaces created, we hope users forget the architecture and communicate with nature.

아미꼬뜨는 프랑스어로 '산 중턱에' 라는 뜻으로 운문산 자락 해발고도 265m(서울 남산의 높이)에 위치한다. 산지를 개간하여 분할한 토지에 작은 상업공간과 주택을 계획했다. 산 중턱에서 좋은 재료로 진정성 있는 건강즙을 만들고, 지역의 특산물을 활용한 음료를 제공하여 건강한 삶을 연구하는 목적으로 시작되었다. 대지를 방문하였을 때 중첩된 산과 운무로 아름다운 한국화가 연상되는 곳이었다. 도시를 떠나 산중턱에서 상업공간을 열겠다는 건축주의 용기가 새삼 대단하게 느껴졌다. 산지임에도 불구하고 대지의 장점을 최대한 살려 이곳을 방문해야 하는 이유를 만들고자 했다. 제한된 사업비로 인해 현재는 카페 동만 건축되었고, 나머지는 단계적으로 진행되길 기대하고 있다.
마을 만들기: 최소한의 건축, 최대한의 풍경
2개의 사업지에 판매시설, 휴게음식점, 단독주택이 모여 마을이 되고자 한다. 중심 건물은 'ㅏ' 자 형태로 연결된 중정과 부속 건물로 구성된다. 분할된 대지와 고저 차를 활용해 진입로에서 만나는 가로 벽은 마을 중심으로 이용자를 끌어들인다. 마당을 거쳐 들어오면, 연결된 외부공간을 경험할 수 있다. 길을 통해 공간과 만나고, 공간과 공간이 만나 풍경이 되는 건축 마을이 구성된다.
풍경의 틈(Landscape crack)
풍경의 틈은 아미꼬뜨에서 가장 핵심적인 생각이다. 대지의 고저 차를 이용해 만들어진 틈은 공간을 분절하기도 혹은 연결하기도 한다. 풍경의 틈을 통해 기능 공간과 휴식 공간을 분리하고, 남겨진 자연과 교감할 수 있도록 한다. 만들어진 틈과 공간에서 사용자는 건축을 잊고 자연과 교감하기를 기대한다.














Architects PLS Architects │ 피엘에스 건축사사무소
Location 305, Onam-gil, Maejeon-myeon, Cheongdo-gun, Gyeongsangbuk-do, Republic of Korea
Use Neighborhood facility
Site area 1,245㎡
Built area 190.27㎡
Total floor area 190.27㎡
Floor 1F
Structure RC structure
Exterior finish Waterproof on exposed concrete
Interior finish Water-based vinyl paint
Design period 2017.09 ~ 2019.12
Construction period 2018.07 ~ 2020.06
Architect Kanghee Park, Yeonjung Lee, Hyukhyu Shin
Design team Jiyoung Um
Structural engineer MOA Structural engineerings
Mechanica l& Electrical engineer Kwang myoung engineering corp
Construction N1 Architecture
Photographer Joonhwan Yoon
해당 프로젝트는 건축문화 2022년 2월호(Vol. 489)에 게재되었습니다.
The project was published in the February, 2022 recent projects of the magazine(Vol. 489).
February 2022 : vol. 489
Contents : RECORDS THE NATIONAL MUSEUM OF MODERN AND CONTEMPORARY ART DISCLOSES PLANS FOR 2022 국립현대미술관 2022년 전시 계획 공개 : NEWS / COMPETITION / BOOKS : SKETCH THE QUIET..
anc.masilwide.com
'Architecture Project > Commercial' 카테고리의 다른 글
| LE BATIMENT DESCENDANT L’ESCALIER (0) | 2022.05.19 |
|---|---|
| GONGGANMEME (0) | 2022.05.04 |
| HOTEL HOPPIPOLLA (0) | 2022.05.02 |
| Wind Clinic (0) | 2022.04.11 |
| NGÓI SPACE (0) | 2022.04.08 |
마실와이드 | 등록번호 : 서울, 아03630 | 등록일자 : 2015년 03월 11일 | 마실와이드 | 발행ㆍ편집인 : 김명규 | 청소년보호책임자 : 최지희 | 발행소 : 서울시 마포구 월드컵로8길 45-8 1층 | 발행일자 : 매일



