
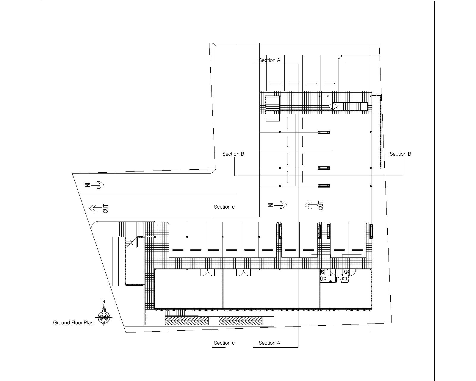
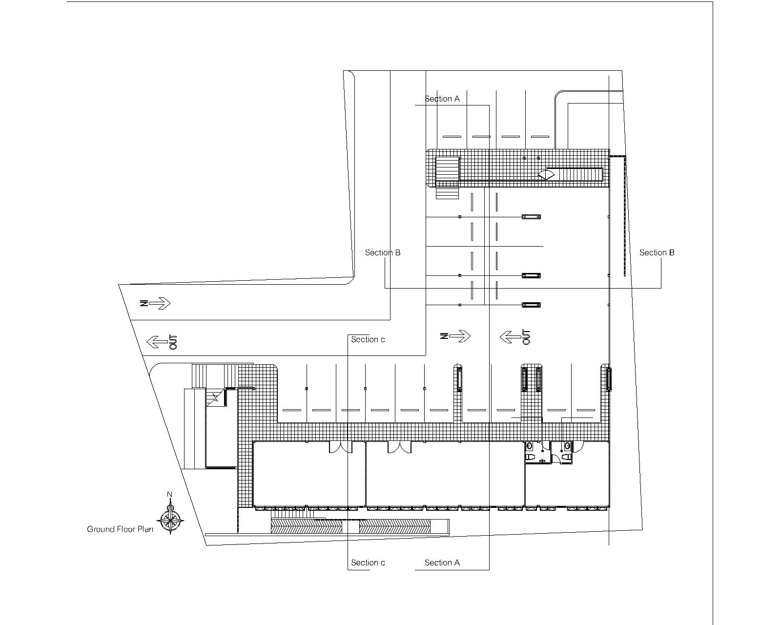
The Wind clinic is a beauty clinic project that located in the downtown of Ubon Ratchathani Province, Thailand. It is designed and made from a steel structure. It is the main structure of the project and the important material of the facade is the glass block.
On the owner’s demand. Dr. Bas, he needs a building that was eyecatching for people passing by in the area of this intersection, and the building must not be very hot because the building faces the west so we still need natural light in the project and space within the “Glass Block” Project. Therefore it is an option that we choose to use as the main material because it can answer many things for us so we want our project to have the natural light area. Trees within the project area need light without being very hot inside and sparkle in the sun will shine to the building in the afternoon to make the building look outstanding according to the needs of the project owner.
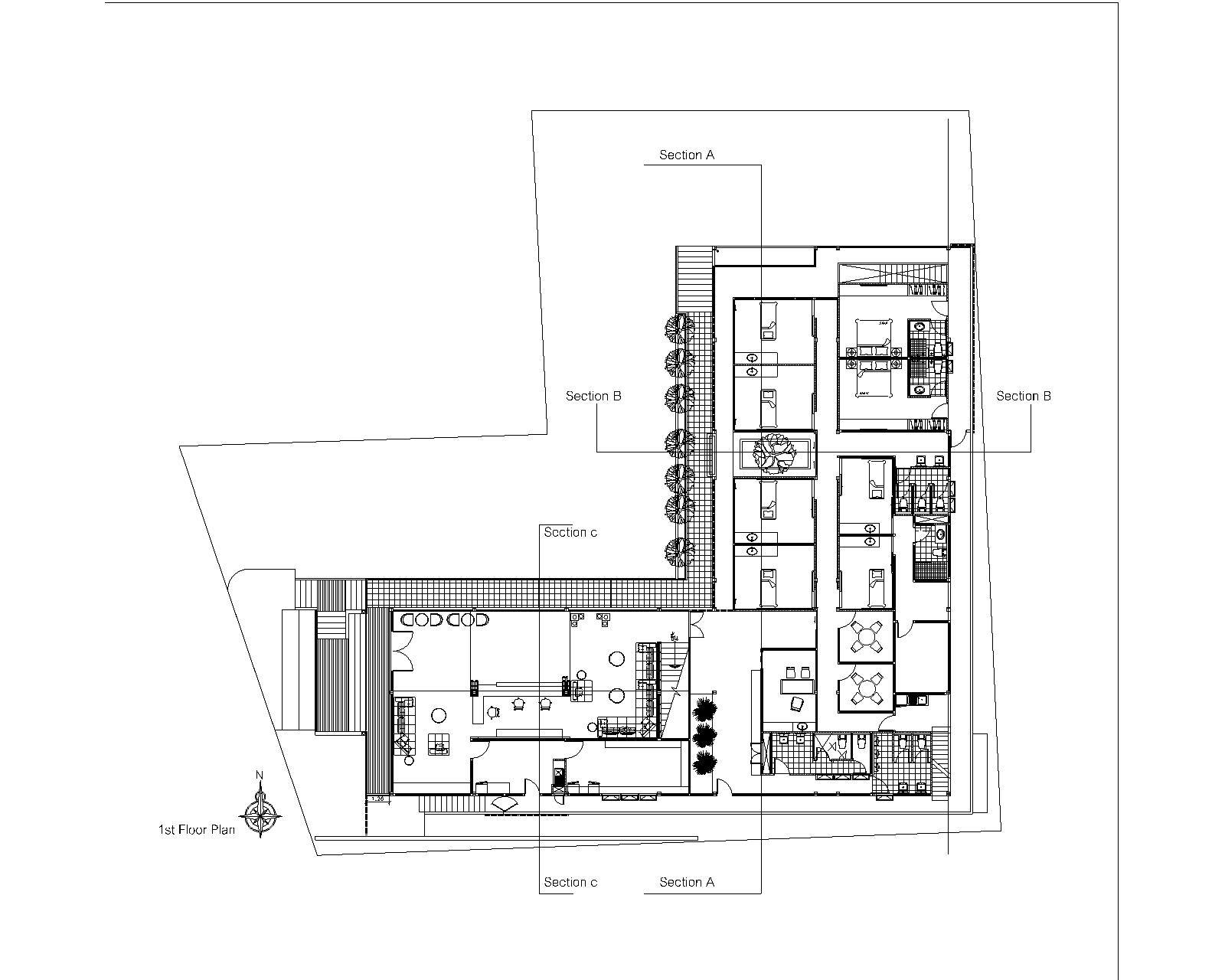
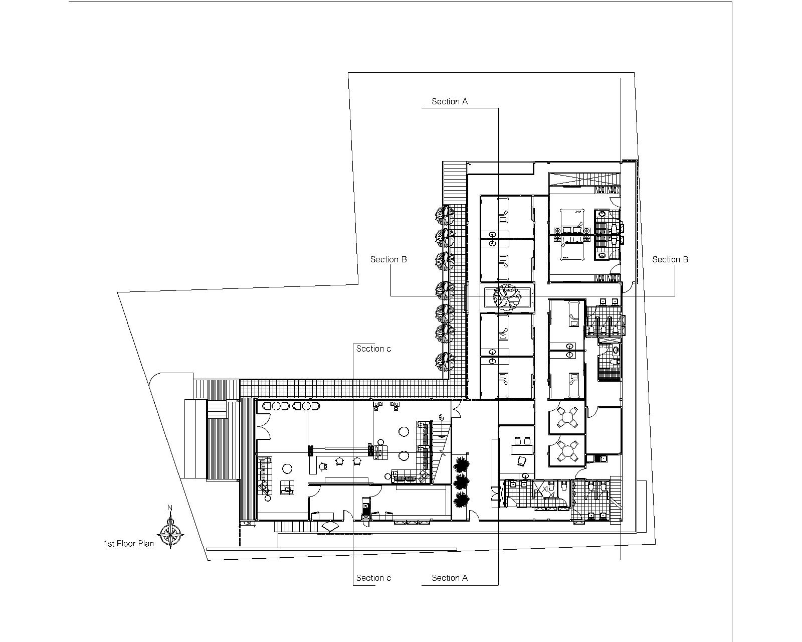
The design of this project might be an experiment that does something new for us and it is able to connect creative idea and the main problem that project owner wants together. The customers must come and feel comfortable. They will not feel like to come to the general clinic. We hope them feel relaxed when entering to the space, project and space connected by trees and gardens which makes this building look outstanding both inside and outside, becoming a new beauty clinic that meets the needs of customers and project owner excellently.

유리블록으로 적절한 실내환경을 조성한 윈드 뷰티클리닉
윈드 클리닉은 태국 우본라차타니주 시내에 있는 뷰티클리닉이다. 철골구조로 설계된 이 프로젝트에서 강철은 주요 구조이며, 파사드 유리블록은 가장 중요한 재료다. 건축주인 Dr. Bas는 교차로를 지나가는 사람들의 시선을 사로잡을 만한 건물을 원했다.
건물이 서쪽을 향해 있어 너무 덥지 않아야 했고, ‘유리블록’ 프로젝트에는 자연채광을 받아들일 공간이 필요했다. ‘유리블록’은 자연채광이 들어오게 하면서 여러 이슈를 해결할 수 있어 주 재료로 선택되었다. 유리블록 내의 식물은 너무 덥지 않은 온도와 빛이 필요했고, 건축주가 원했던 것처럼 오후에는 건물이 햇빛을 반사해 반짝이며 눈에 띈다. 이 프로젝트의 디자인은 새로운 실험이면서 창의적인 아이디어를 중요한 문제와 연결해 건축주가 원하는 것을 함께 해결하는 시도였다.
고객이 방문했을 때 편안함을 느낄 수 있어야 하며, 일반 클리닉에 가는 것과는 다른 느낌을 줄 수 있도록 했다. 건물을 돋보이게 하는 외부에서부터 내부로 연결된 나무와 정원을 통해 방문객이 공간을 들어서는 순간 편안함을 느끼길 바라며, 고객과 건축주가 원하는 것을 완벽하게 충족시켜주는 새로운 뷰티클리닉이 되기를 바랐다.




















Architect Sute Architect
Location Ubon Ratchathani, Thailand
Program Clinic
Gross floor area 1,200㎡
Principal architect Sittiphon Komonwetchakun
Photographer Issira Tonehongsa
해당 프로젝트는 건축문화 2022년 1월호(Vol. 488)에 게재되었습니다.
The project was published in the January, 2022 recent projects of the magazine(Vol. 488).
January 2022 : vol. 488
Contents : RECORDS NEW PROPOSAL FOR THE HOUSING PROBLEM IN SEOUL FOUND IN RURAL AREA 서울 주거 문제의 새로운 대안, 농촌에서 찾다 : NEWS / COMPETITION / BOOKS : SKETCH MY HOUSE ..
anc.masilwide.com
'Architecture Project > Commercial' 카테고리의 다른 글
| AMI-COTE (0) | 2022.05.03 |
|---|---|
| HOTEL HOPPIPOLLA (0) | 2022.05.02 |
| NGÓI SPACE (0) | 2022.04.08 |
| Casamia Community House (0) | 2022.04.06 |
| ROUTE52 CC CLUBHOUSE (0) | 2022.03.28 |
마실와이드 | 등록번호 : 서울, 아03630 | 등록일자 : 2015년 03월 11일 | 마실와이드 | 발행ㆍ편집인 : 김명규 | 청소년보호책임자 : 최지희 | 발행소 : 서울시 마포구 월드컵로8길 45-8 1층 | 발행일자 : 매일



