
The purpose of this project is to renovate an empty building in Myeong-dong, one of the most chaotic places in Seoul due to the collision of contexts from the past and the ones in progress, into a corporate headquarters.
Thus, this program started from the idea of transforming both the inside and outside of the building that stood still for a long time against change to regenerate its existence and realize new programs, while building relationships with the surroundings.
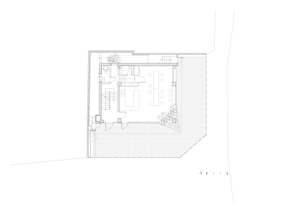
Nine Windows – Material Collage
The design concept originally came from the consideration on how windows or architectural elements can relate to the properties of the past as the owner of the building wanted to remain red tiles covering its outside walls as they were. Here, we decided to use 9 different types of windows consist of transparent glasses that were visually open, glass blocks that absorbed light but blocked the view, and stones that had meaning from the exterior of the building, while separating the inside from the outside.
Borrowing of diverse materials and compositions provided a new and rather strange appearance to existing windows that looked dull with unilateral patterns like others that were easy to find anywhere. It was an attempt to give the pleasure in the unfamiliar by slightly changing the monotonous context of nearby buildings that were from being there and had similar patterns and same materials with no characteristics.
Landscape – Primitive Garden & Urban Terrace
A primitive garden would be placed outside of the building as if it was there before. It indicates a memory of garden vanished in the city. A strange feeling, excitement, thrilling, and a sense of harmony presented by the nature in the middle of a city...... The garden will connect the past and present, and serve as a place of the future.
Previously, its rooftop was an empty space blocked from the surroundings with high walls. The first thing we did was to partially remove the walls to establish relationships with nearby landscape and installed decks as well to create a space where people could take a rest in the urban terrace.
Interior - Regeneration
The interior focus of the building was to expose its existing materials. Namely, it was to take off the properties added again and again as the time passed.
The paint reapplied to stairs was removed, terrazzo floors were completely repaired, and ceiling finishes were eliminated to reveal the existing structure... It was not about adding things to the building. On the contrary, it was to maximize the gap between the past and present by removing materials and which would certainly bring a little strange but new excitement and expectation to people.
Likewise, this building will create a gap in mundane life and monotony in urban context by a presenting new look and regenerating the nature lost in the city through various windows. In doing so, its interior will gradually reflect the time of the past and provide a tactile experience that is quite unfamiliar to many.

서울에서 과거의 컨텍스트와 현재 개발되어 만들어지는 컨텍스트로 인해서 가장 카오스적이라고 할 수 있는 명동에 비어있던 건물을 기업의 사옥으로 리모델링하는 프로젝트이다. 오랜 시간 변화하지 않고 멈춰진 채 존재해왔던 건물을 변화시켜 새로운 프로그램을 담고 주변과 관계를 가지게 만들면서 건물의 존재를 재생시키는 것으로부터 기획이 시작되었다.
Nine Windows - Material Collage
이 건물 외벽의 붉은 타일을 그대로 유지하고 싶다는 건축주의 요구로 창(wnindow)이라는 건축적 요소를 가지고 과거의 물성과 어떠한 관계를 맺는 것으로 디자인이 시작되었다. 여기에서 창은 시각적으로 열려 있는 투명한 유리, 빛은 받아들이지만 시야를 차단을 시키는 유리블록, 그리고 내외부를 차단하면서 외부에서 의미를 가지는 돌로 이루어진 9가지의 다양한 창을 통해서 구성되었다.
이것은 획일화되어 단조로워 보였던 기존 창에 다양한 재료와 구성을 통해서 창이 가지는 일반적 모습에서 벗어나 새롭고 낯선 입면을 통해서 건물의 존재를 드러내고자 한 것이다. 주변의 건물들이 비슷한 형태, 같은 재료를 가지고 어떠한 특성도 없이 존재함으로 만들어지는 지루한 컨텍스트를 조금이나마 변화시켜서 사람들에게 낯선 즐거움을 불러일으키고자 한 것이다.
Landscape - Primitive Garden & Urban Terrace
이 건물의 외부 코너에 마치 존재했던 것 같은 원시적 정원을 계획하였다. 이것은 도시에서 사라진 정원에 대한 기억이라고 할 수 있다. 도시에서의 자연이 주는 낯섦, 기대, 흥분, 공감..... 이것은 현재와 과거가 만나는 접점이자 미래를 위한 공간이 될 것이다.
그리고 기존 옥상은 높은 벽으로 주변과 차단된 채 비어진 공간이었다. 가장 먼저 벽을 부분적으로 없앰으로 주변의 풍경과의 관계를 만들었고 조경과 데크를 통해서 사람들이 쉴 수 있는 공간으로 구성하였다.
Interior - Regeneration
이 건물의 내부는 기존의 재료를 드러내는 것으로 시간과 함께 덧붙여진 물성을 벗겨내는 작업이었다. 계단실의 덧발라진 페인트를 벗겨내고, 바닥의 테라조를 보수하여 갈아내고, 천장에 붙여져 있던 마감들을 제거하여 기존 구조를 드러내고.... 이것은 기존 건물에 무엇인가를 다시 덧붙이는 것이 아니라 제거해나감으로 현재와의 간극을 극대화하는 것으로 사람들에게 낯설지만 새로운 흥분과 기대를 불러일으킬 것이다.
이렇게 이 건물은 다양한 창을 통해서 새롭게 모습을 드러내고 도시에서 사라진 자연을 만들어 냄으로 일상의 단조로움 그리고 도시가 가진 획일적 컨텍스트에 하나의 간극을 만들어 낼 것이다. 그러면서 내부의 모습은 과거의 시간을 드러냄으로써 사람들에게 낯선 촉각적 경험을 줄 것이다.





























Architects S.E.E.D HAUS │ 씨드하우스
Location Myeong-dong, Jung-gu, Seoul, Republic of Korea
Use Office
Site area 252.90㎡
Built area 115.79㎡
Total floor area 712.17㎡
Floors B1, 5F
Structure Reinforced concrete
Exterior finish Brick, Glass block, Stone, Sto
Interior finish Exposed concrete, Sto, Glass block, Lavastone polishing
Design period 2020.06 - 2020.08
Construction period 2020.09 - 2020.12
Architect Sanghoon Baek
Design team Eunjung Baek, Sunghyun Ahn, Heejung Kim
Cooperation Interior Design_ Design Laundry, Landscape_ Openness Studio
Construction INFULLSPACE
Photographer Kyung Roh
해당 프로젝트는 건축문화 2022년 4월호(Vol. 491)에 게재되었습니다.
The project was published in the April, 2022 recent projects of the magazine(Vol. 491).
April 2022 : vol. 491
Contents : RECORDS DIÉBÉDO FRANCIS KÉRÉ, WINNER OF THE 2022 PRITZKER ARCHITECTURE PRIZE 2022년 프리츠커 건축상 수상자, 디에베도 프란시스 케레 : NEWS / COMPETITION / BOOKS : SKET..
anc.masilwide.com
'Architecture Project > Commercial' 카테고리의 다른 글
| TAKE A BREATH CAFE (0) | 2022.07.27 |
|---|---|
| MIZU MORI JAPANESE RESTAURANT (0) | 2022.07.21 |
| IN A LITTLE TIME (0) | 2022.06.17 |
| JEROME COFFEE & BITES (0) | 2022.06.16 |
| HOTEL WIND (0) | 2022.06.08 |
마실와이드 | 등록번호 : 서울, 아03630 | 등록일자 : 2015년 03월 11일 | 마실와이드 | 발행ㆍ편집인 : 김명규 | 청소년보호책임자 : 최지희 | 발행소 : 서울시 마포구 월드컵로8길 45-8 1층 | 발행일자 : 매일



