
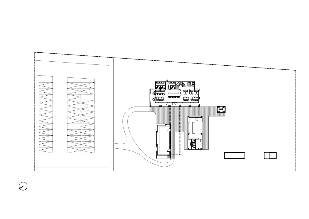
Take a breath cafe is a new cafe and restaurant with the inspiration of a barn in the wood that separated into a cluster of the building in three main buildings by its functions as a cafe, restaurant, and kitchen along with a high noticeable bell tower.
The site located in Bangkok’s western suburb, approximately 4,600㎡, is surrounded by a high-density residential zone. The restaurant aims to connect people with nature by creating modern barns in the forest following the first concept by Tastespace, our collaboration team and interior designer of this project. After design development, The cafe has a cluster of three main volumes with almost 500m2 of the total built area., all with the gable roof: a cafe, restaurant, and kitchen, along with the highest volume of 8-meter height for a bell tower and two small glasshouses.
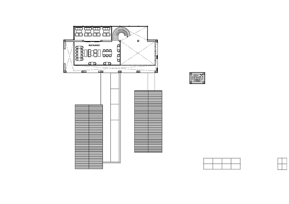
The main restaurant has one-and-a-half-story structures that provide a space for the main dining area, oriented perpendicularly towards a kitchen and a cafe which fit in the other two main paralleled buildings connected by the roofed corridor. Another reason to separate each building is the building code in this area, which does not allow a restaurant bigger than its limit for one building.
The layout is separated into three parts from the front to the back of the site sequencing is the parking area, the functional area, and the backyard area. A wood-like metal sheet was selected as the primary material to clad all siding along the roof, with arch-shape openings making them a homogeneous look bold from the surrounding context. Various size of arch-shaped voids is specifically randomly located, such as the corner of the central kitchen, which tends to show the movement of the chefs for the newcomer guest, the backside of the main dining area, and the cafe to provide the view to the backyard behind.

도시와 자연을 연결하는 숲 속 헛간, 테이크 어 브레스 카페
‘테이크 어 브레스 카페’는 숲 속 헛간에서 영감을 받은 프로젝트로, 3개의 건물로 나누어진 프로젝트다. 각 공간은 기능에 따라 나뉘었는데, 가장 먼저 눈에 들어오는 높은 종탑과 카페, 레스토랑, 주방으로 구성된다.
카페는 ‘테이스트스페이스’의 콘셉트를 따라, 숲 속에 있는 현대적인 헛간이 자연과 사람들을 연결한다. 카페는 총 3개의 볼륨으로 구분되며, 모든 건물은 박공지붕의 형태를 하고 있다. 또한, 종탑과 두 개의 작은 온실과의 높이를 맞추기 위하여 카페, 레스토랑과 주방이 있는 건물의 최고 높이는 약 8m 정도로 정해졌다. 레스토랑의 메인 식사 공간은 복층으로 되어있고, 주방과 카페를 수직으로 지나는 외부 복도는 나란히 서 있는 두 개의 건물을 연결하고 있다. 각 기능에 따라 건물이 나뉘게 된 것은 건축 법규상 한 건물에 큰 레스토랑을 둘 수 없었기 때문이었다.
대지는 크게 세 구역으로 나뉜다. 앞에서부터 뒤로 대지를 따라 주차공간, 기능적 공간, 뒷마당으로 구분된다. 지붕과 외벽의 주재료로 나무처럼 보이는 금속판이 선택됐는데, 이 건물의 외벽에 있는 아치형 개구부는 비슷한 형태의 건물을 대담해 보이게 한다. 다양한 크기의 아치형 개구부는 무작위로 배치됐다. 중앙 주방 건물의 모퉁이에 있는 개구부는 셰프의 움직임을 보여주고, 레스토랑의 뒷면, 카페는 뒷마당의 풍경을 제공한다.


























Architects 에이에스더블유에이 | ASWA
Location Bangkok, Thailand
Program Cafe, Restaurant
Site area 2,400㎡
Building area 500㎡
Gross floor area 800㎡
Building to land ratio 15%
Floor area ratio 17%
Completion 2022
Project architect Chotiros Techamongklapiwat, Phuttipan Aswakool
Design team Chotiros Techamongklapiwat, Phuttipan Aswakool, Pohntanate
Interior design Taste Space
Construction Local Contractor
Photographer Phuttipan Aswakool
May 2022 : vol. 492
Contents : RECORDS THE STORY OF THE CITY THAT PUBLISHERS DREAMED OF, RELEASED 꿈꾸던 도시가 들려주는 이야기, <위대한 계약: 파주, 책, 도시> 개봉 : NEWS / COMPETITION / BOOKS : SK..
anc.masilwide.com
'Architecture Project > Commercial' 카테고리의 다른 글
| Cantina Podernuovo a Palazzone (0) | 2022.09.01 |
|---|---|
| Villa Magallon (0) | 2022.08.04 |
| MIZU MORI JAPANESE RESTAURANT (0) | 2022.07.21 |
| NINE WINDOWS (0) | 2022.06.30 |
| IN A LITTLE TIME (0) | 2022.06.17 |
마실와이드 | 등록번호 : 서울, 아03630 | 등록일자 : 2015년 03월 11일 | 마실와이드 | 발행ㆍ편집인 : 김명규 | 청소년보호책임자 : 최지희 | 발행소 : 서울시 마포구 월드컵로8길 45-8 1층 | 발행일자 : 매일



