
'The playscape' is a refurbishment inside an existing industrial complex in the north of Beijing. A 1970's warehouse complex for grain storage supported by a transport facility. Our client was a healthcare provider specializing in observing, and supporting children’s development relating to movement for a broad range of age groups. The playscape is a tool to promote learning while allowing narrative creation for children to dream and develop senses relating to equilibrium (balance) and proprioception (awareness). Balance is taken for granted until it is challenged. It is our hope that activity based emotional responses to this built environment and the perceptions harnessed. Can augment the client’s tools in helping strengthen co-ordination within the child’s development.
The building complex is formed by a cluster of existing warehouses encircling a courtyard. A public street disconnects the south building which is re-connected by the use of an aerial bridge to link the roof terraces. Access also provides a private route to an adjoining Kindergarten, and an option to enter the adjacent public park.
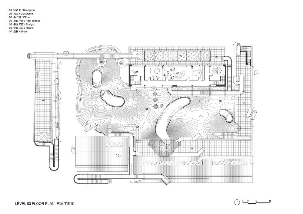
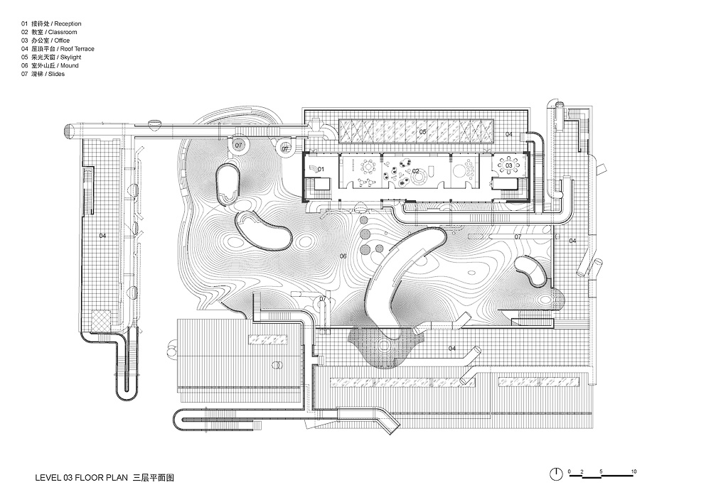
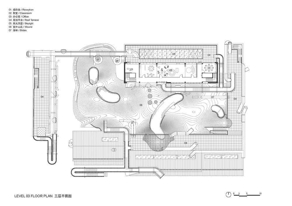
The existing cluster provides for 3 internal play spaces. Playspace 1 is a single level low pitched 6m volume. Used for 2-4 years old as a crawlspace with hanging fabrics. Features also include a soft space topography for babies supplemented with a restaurant and library. Playspace 2 is divided vertically into three levels. A tiered environment for ages over 4 including a subterranean interactive environment, a steep climbing topography, with a suspended tensile Net all connected with slides. Additional directed learning can be found on level 2 and 3 with a total of 6 Multifunctional Classroom’s. A single slide connects vertically 7m from the classroom to level 1. The South Building competes the courtyard adjacent to the road with views into a public park. All buildings have a looped roof terrace easing parents observation of children, while being able to access parent specific amenities including a terraced bar.
Children are often passive in decision making scenarios. Play is often the only period under their own control. The Design Focus was to address the missing elements of inner-city dwelling, distorting scales, manipulating movement sequences to build a tool for sensory learning. Where the iconography of the project becomes about the activity and embracing a degree of risk we hope to nudge children to imagine and feel what they see as the limits to their own adventure.

아이들의 신체 발달을 위한 모험의 공간, 더 플레이스케이프
'더 플레이스케이프'는 베이징 북부에 있던 산업 단지의 내부를 바꾼 프로젝트로, 기존 건물은 1970년대의 운송시설이 지원하는 곡물 저장 창고 단지였다. 건축주는 다양한 연령대의 움직임과 관련해 아이들의 발달을 관찰하고 지원하는 전문 의료 관계자다. ‘더 플레이스케이프’는 아이들이 균형과 자기 몸을 인식하는 감각을 발달시키고 꿈을 꾸게 하면서 학습을 촉진하는 도구다. 균형은 도전을 받을 때까지 당연하게 여겨진다. 건축가는 환경과 인식에 대한 감정적 반응을 기반으로 하는 활동들이 활용되기를 바랐다. 아동 발달에서 조절 능력을 키우는 데 도움이 되도록 건물을 보강했다. 건물 단지는 안뜰을 둘러싼 창고들로 형성되어 있었다. 남쪽 건물과 옥상 테라스를 연결하는 공중 다리를 두어 분리됐던 건물을 다시 연결했다. 이러한 접근은 가까운 유치원으로 가는 전용 동선이 되며, 가까운 공원으로 갈 수도 있다. 기존의 단지에서는 3개의 실내 놀이공간을 제공했다.
놀이공간1은 단층으로 낮은 높이가 6m인 볼륨을 갖고 있다. 걸어두는 천을 이용해 기어다니는 2~4세 유아를 위한 공간으로 사용된다. 레스토랑과 도서관을 갖춘 아기를 위한 부드러운 공간 지형이 특징이다. 놀이공간2는 3개의 레벨이 수직으로 나뉜다. 지하와 소통할 수 있는 환경, 가파른 오르막 지형, 현수식 네트가 모두 슬라이드와 연결된 4세 이상의 연령대를 위한 계층화된 공간이다. 총 6개의 다목적 교실이 있는 2층과 3층에서는 추가로 자기주도학습을 할 수 있는 공간이 있다. 7m 길이의 미끄럼틀은 교실에서 1층까지 수직으로 연결된다. 남쪽 건물은 도로에 인접한 안뜰과 공원을 바라보는 전망을 가지고 있다. 모든 건물에는 환형의 옥상 테라스가 있어 부모가 자녀를 쉽게 볼 수 있고, 테라스 바를 비롯한 부모를 위한 시설을 이용할 수 있다. 아이들은 종종 의사 결정 과정에서 수동적이다. 놀이는 아이들이 스스로 누릴 수 있는 유일한 시간이다.
디자인의 초점은 도심에서 볼 수 없는 것, 왜곡된 크기 그리고 감각을 학습할 수 있는 도구를 만들기 위해 움직임의 순서를 다루는 것에 맞춰졌다. 프로젝트의 형태가 활동에 관한 것이고, 어느 정도 위험을 감수할 수 있다면, 아이들이 자신의 모험에 대한 한계를 경험하고 상상하고 느낄 수 있길 바랐다.

























Atchitects waa
Location Chaoyang District, Beijing, China
Site area 3,921.26m2
Gross floor area 2,657.47m2
Principal architect Di Zhang, Jack Young
Design team Minghui Huo, Yuqing Feng, Min Wang, Jing Zhu, Mengbo Cao, Hualin Yang, Weiya Li, Qiwen Cao, Heff Jin
Design period 2018. 3 - 2019. 12
Construction period 2019. 12 - 2021. 5
Structural engineer Jinbin Zhang, Lida Tang
Client Beijing NuanQin
Photographer Tian FangFang
해당 프로젝트는 건축문화 2022년 4월호(Vol. 491)에 게재되었습니다.
The project was published in the April, 2022 recent projects of the magazine(Vol. 491).
April 2022 : vol. 491
Contents : RECORDS DIÉBÉDO FRANCIS KÉRÉ, WINNER OF THE 2022 PRITZKER ARCHITECTURE PRIZE 2022년 프리츠커 건축상 수상자, 디에베도 프란시스 케레 : NEWS / COMPETITION / BOOKS : SKET..
anc.masilwide.com
'Architecture Project > Cultural' 카테고리의 다른 글
| GERMAN PAVILIONat EXPO 2020 DUBAI (0) | 2022.08.08 |
|---|---|
| KUNSTHAUS ZÜRICH (0) | 2022.07.11 |
| THE ENERGY PLUG (0) | 2022.06.15 |
| THE HAKKA TRIANGLE HOUSE (0) | 2022.06.03 |
| Void (0) | 2022.06.02 |
마실와이드 | 등록번호 : 서울, 아03630 | 등록일자 : 2015년 03월 11일 | 마실와이드 | 발행ㆍ편집인 : 김명규 | 청소년보호책임자 : 최지희 | 발행소 : 서울시 마포구 월드컵로8길 45-8 1층 | 발행일자 : 매일



