
GROWING’ A NEW CONDITION OUT OF AN OLD ONE:
The site of this project is in a northern suburb of Paris, where Electricite de France (EDF), the country’s major energy provider, used to have a vast storage and repair area for a nearby, highly polluting, coal-fired power station. Constructed in the 1930s, it was decommissioned in the ‘60s, with EDF using part of the site to build their headquarters. The other part remained derelict until 2019, when the building was made available for the C40 Reinventing Cities competition. When completed, our winning project will be located next to a new station of the Grand Paris Express and to the Olympic and Paralympic Village 2024.
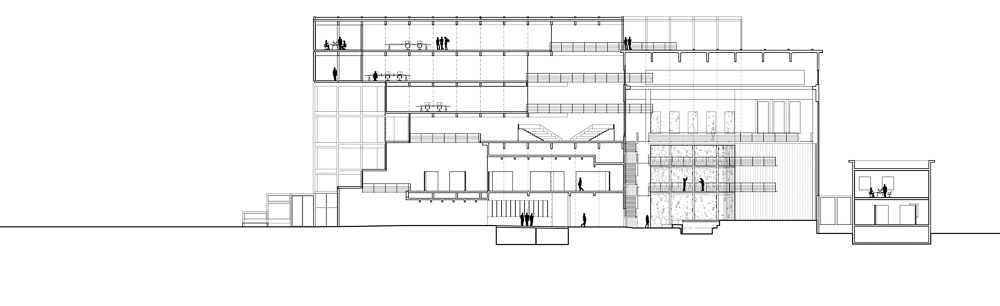
The project was based on achieving synergy between existing and new architecture a synergy imagined as plugging into the old to give it a new lease of life. The intention was to preserve an “environmentally challenged” 20th-century building and adapt it to new uses while achieving zero-carbon performance. This was made possible through the Energy Plug system developed by our team.
The Energy Plug is an adaptable prototype that can be clipped onto any ex-industrial building. Based on a prefabricated modular timber structure, its design defines interior comfort through allowing natural lighting and ventilation, limiting heat loss and controlling solar gain. A vertical greenhouse integrated in the south facade not only produces food, but also supports a pleasant indoor climate almost all year round and with no additional air conditioning. The building is protected from solar gain by the world’s first “solar canopy” that has a 4-fold utility: electricity and heat production; rainwater recovery and thermal protection.

혁신 도시 모습을 제안하는 목조건축 프로젝트 첫 번째, 에너지 플러그
과거에 불어넣은 새로운 생명
파리 북부 교외에 프랑스의 주요 에너지 공급업체인 EDF(Electricite de France) 석탄 화력 발전소가 방대하게 자리잡은 일대가 있었다. 이 건물은 1930년대에 지어졌다가 60년대에 해체되었는데, EDF는 부지 일부를 사용하여 본사를 설립했고, 나머지 부분은 방치되어 있다가 버려진 산업 시설에 대한 혁신적인 제안들이 쏟아지는 “C40 혁신도시 공모전(C40 Reinventing Cities Competition)”으로 2019년 다시 주목받았다.
에너지 플러그는 기존 건축과 새로운 건축 간의 시너지, 즉 옛 건축물에 새로운 생명을 불어넣는다. 친환경적이기 어려운 20세기의 오래된 건축물을 보존하면서도, 새로운 용도에 맞게 고치는 것으로 ‘탄소 제로’를 물리적으로 구현한다. 사실, 이 에너지 플러그는 모든 건물에 고정할 수 있는 ‘적응형 프로토타입’이다. 조립식 모듈 목재 구조를 기반으로 하는 디자인이 채광과 환기를 원할하게 만들며, 열 에너지에 대한 손실량은 감소시킨다. 또한, 태양열을 조절해 쾌적하고 편안한 내부 공간을 만들어준다. 남쪽 파사드에 있는 수직 온실은 식량을 생산할 뿐만 아니라, 에어컨 없이도 일 년 내내 쾌적한 내부 환경을 조절하는 곳이다. 세계 최초로 4열의 ‘태양 캐노피’는 건물을 태양으로부터 보호하면서 전력과 열에너지 생산, 빗물 회수, 열에너지 보호 등의 기능을 한다. 이 곳에서는 과학 워크숍, 청정에너지 관련 스타트업, 지역 학교들을 위한 교육 프로그램 등이 마련될 뿐만 아니라, 청정 에너지를 사용하는 것을 보여주는 하나의 대표적 건축 사례로 이러한 혁신적인 움직임을 촉진시킬 수 있다.
구 발전소, 중심지로 바꾸다 1930년대에 설계된 기존 건물은 ‘끝없는 미래’라는 시대적 개념을 구현했다. 그 시대의 산업 건물들의 전형인 지배적이고 영웅적인 스타일은 ‘에너지를 위해 만들어졌을 뿐인 대성당’같은 곳들이었다. 하지만 현대로 오면, 이 ‘대성당’같은 공간들은 인간과 환경 사이의 관계나 에너지 생산과는 거리가 멀었다. 건축가는 산업 시대의 유산인 ‘대성당’을 철거하는 대신, 그것을 기반으로 더 지속 가능하며 포괄적인 의미를 담은 공간으로 재해석해냈다.
“우리들의 작업은 파괴에 관한 것이 아니라, 늘 적응에 관한 것이었다. 우리는 역사 속 잘못된 것들을 지우는 것이 아닌, 과거의 그 실수에서 배울 수 있다고 믿는다. 자연의 진화와 마찬가지로 성장은 적응과 개선의 지속적인 과정을 통해 일어난다.”









Architects Jakob + MacFarlane
Location Saint-Denis, France
Structural engineer Eckersley O’Callaghan
Environmental innovation EDF research team
해당 프로젝트는 건축문화 2022년 3월호(Vol. 490)에 게재되었습니다.
The project was published in the March, 2022 recent projects of the magazine(Vol. 490).
March 2022 : vol. 490
Contents : RECORDS THE BEGINNING OF THE JOURNEY TO THE MUSEUM OF ART IN THE FOREST, 《MMCA GWACHEON PROJECT 2021: ART BUS SHELTER》 숲 속 미술관으로 가는 여정의 시작, 《MMCA 과천프로젝트 2..
anc.masilwide.com
'Architecture Project > Cultural' 카테고리의 다른 글
| KUNSTHAUS ZÜRICH (0) | 2022.07.11 |
|---|---|
| THE PLAYSCAPE (0) | 2022.07.07 |
| THE HAKKA TRIANGLE HOUSE (0) | 2022.06.03 |
| Void (0) | 2022.06.02 |
| CHUNCHEON COMMONZ FIELDMULTI-PURPOSE HALL (0) | 2022.04.22 |
마실와이드 | 등록번호 : 서울, 아03630 | 등록일자 : 2015년 03월 11일 | 마실와이드 | 발행ㆍ편집인 : 김명규 | 청소년보호책임자 : 최지희 | 발행소 : 서울시 마포구 월드컵로8길 45-8 1층 | 발행일자 : 매일


