
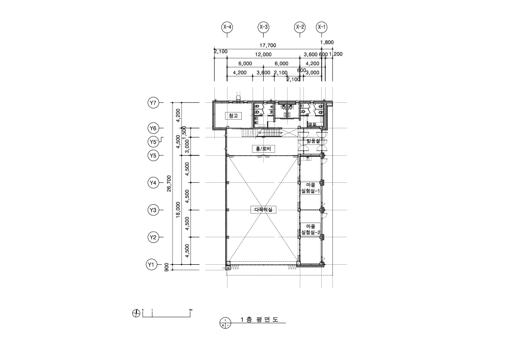
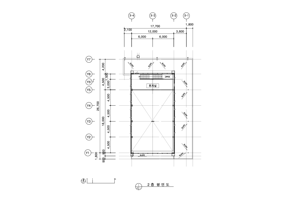
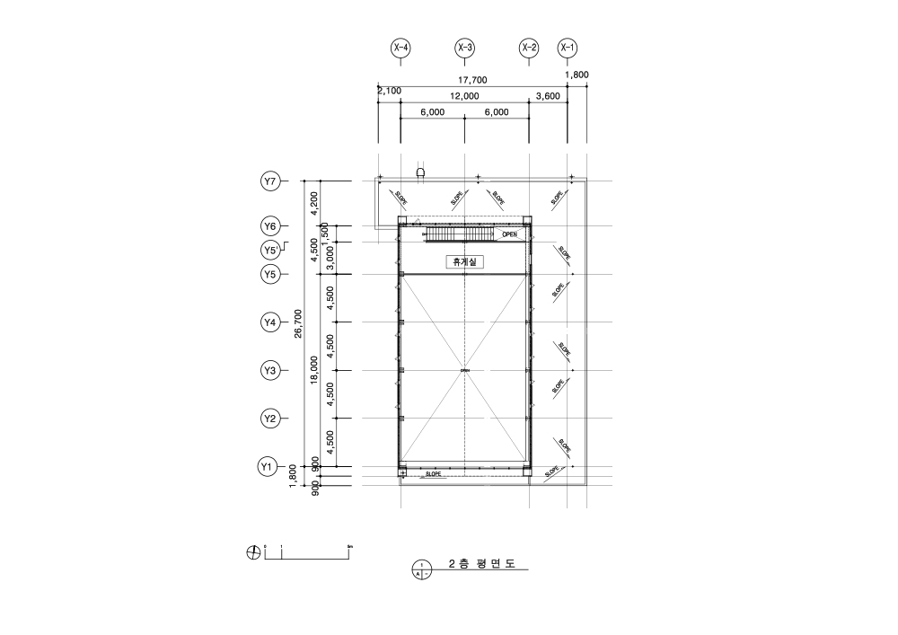
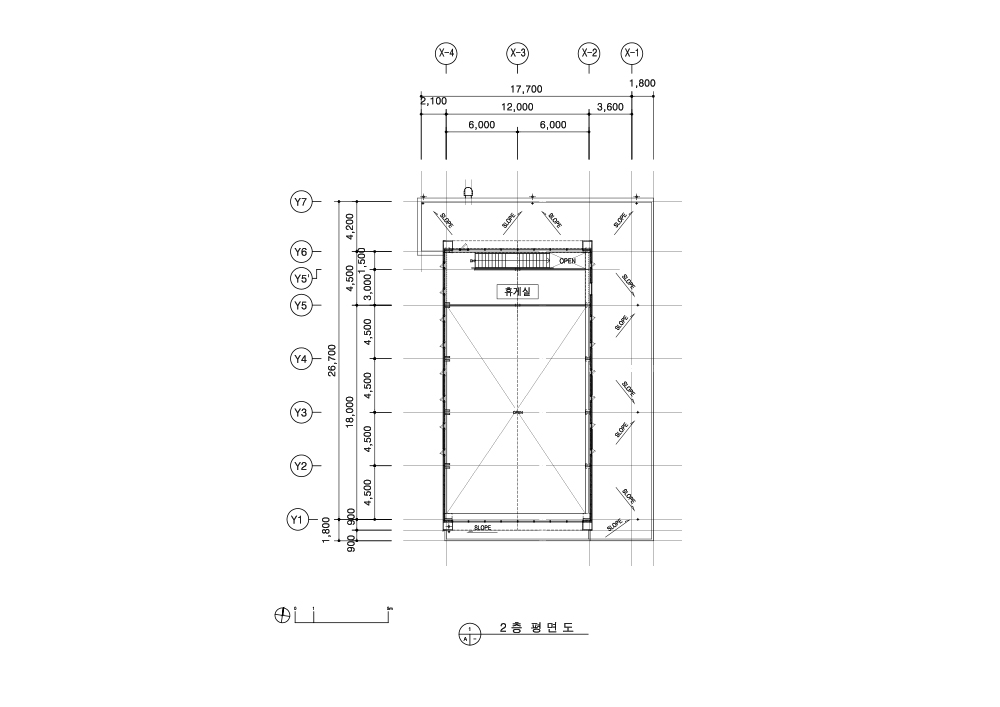
The social innovation center( Commonz Field) is a regional base citizen communication and collaboration space, which the old public procurement department building has re-modeled, opened in 2019. It is a place that plays a role in making positive changes to the local community by deriving ideas and seeking new solutions through various experiments led by various communities and citizens. The newly expanded Commonz Field Multipurpose Hall was planned as a variable space where residents-led public opinion halls, variable events for residents’ events, exhibitions of local artists’ works and local contents, residents-led local labs, and village laboratories should play an all-round role. The multipurpose hall of Commonz Field, expanded in an old residential area in Chuncheon’s representative central city, is open as a low-barrier space where local residents can relax and chat. This building was constructed in a medium wood structure, and the space consists of a large high floor hall and a village laboratory that meets the side square. The village laboratory is a space where citizens can freely conduct small-scale experiments, but if necessary, it is integrated with the multi-purpose room to perform various programs. Wood, the main structure exposed inside the building, and glass filling the slopes of the building were used to fill the empty interior space with light to make it a bright and warm space.

사회혁신센터(커먼즈필드)는 지역거점 시민소통협력 공간으로 옛 조달청 건물을 리모델링하여 2019년 문을 열었다. 다양한 커뮤니티들과 시민의 주도로 여러 가지 실험을 통해 아이디어를 도출하고 새로운 해결책을 모색하여 지역사회에 긍정적인 변화를 만드는 역할을 하는 곳이다. 새롭게 증축된 커먼즈필드 다목적 홀은 주민주도 공론장, 주민행사가 가능한 가변적 행사장, 지역작가의 작품 및 지역 콘텐츠의 전시, 주민주도 로컬 랩, 마을실험실 등 만능의 역할을 수행하여야 하는 가변적인 공간으로 계획됐다. 춘천의 대표적인 구심 시가지의 오래된 주택가에 증축된 커먼즈필드의 다목적홀은 지역주민이 편하게 들려 쉴 수 있고 담소를 나눌 수 있는 담이 낮은 공간으로 열려 있다. 본 건물은 중목구조로 시공됐으며, 공간은 크게 높은 층고의 홀과 측면 광장과 만나는 마을 실험실로 이루어져 있다. 마을실험실은 시민의 자유로운 소규모 실험을 할 수 있는 공간이지만 필요할 때 다목적실과 통합되어 다양한 프로그램을 수행할 수 있는 공간이 된다. 건물 내부에 드러나는 주 구조재인 목재와 건물의 사면을 채우고 있는 유리를 사용하여, 비어있는 내부의 공간을 빛으로 채워, 밝고 따뜻한 공간이 되도록 계획했다.

















Architect 바른건축사사무소 | BARUNARCHITECTURE
Location Hyoja-dong, Chuncheon-si, Gangwon-do, Republic of Korea
Program Office
Site area 4,884.00㎡
Building area 1,163.685㎡
Gross floor area 2,4443.618㎡
Building scope 2F
Building to land ratio 23.83%
Floor area ratio 45.41%
Design period 2020. 2 - 8
Construction period 2021. 6 - 11
Completion 2021. 11
Principal architect Seohee Jeon
Project architect Seohee Jeon
Design team Dahee Song
Structural engineer Teo Structure
Landscape engineer IL E&E
Construction Keeheung Constructiom Co.,Ltd.
Client Chuncheon City
Photographer Yongsu Kim
해당 프로젝트는 건축문화 2022년 2월호(Vol. 489)에 게재되었습니다.
The project was published in the February, 2022 recent projects of the magazine(Vol. 489).
February 2022 : vol. 489
Contents : RECORDS THE NATIONAL MUSEUM OF MODERN AND CONTEMPORARY ART DISCLOSES PLANS FOR 2022 국립현대미술관 2022년 전시 계획 공개 : NEWS / COMPETITION / BOOKS : SKETCH THE QUIET..
anc.masilwide.com
'Architecture Project > Cultural' 카테고리의 다른 글
| THE HAKKA TRIANGLE HOUSE (0) | 2022.06.03 |
|---|---|
| Void (0) | 2022.06.02 |
| Entrepreneurship & Innovation center in Dongbangtou Village (0) | 2022.03.29 |
| SPORTS HALL IN BORKY (0) | 2022.03.11 |
| COFFEE CULTURE COMPLEX (0) | 2022.02.24 |
마실와이드 | 등록번호 : 서울, 아03630 | 등록일자 : 2015년 03월 11일 | 마실와이드 | 발행ㆍ편집인 : 김명규 | 청소년보호책임자 : 최지희 | 발행소 : 서울시 마포구 월드컵로8길 45-8 1층 | 발행일자 : 매일



