
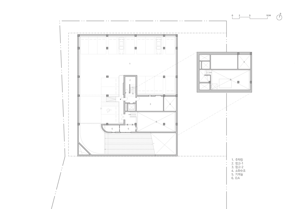
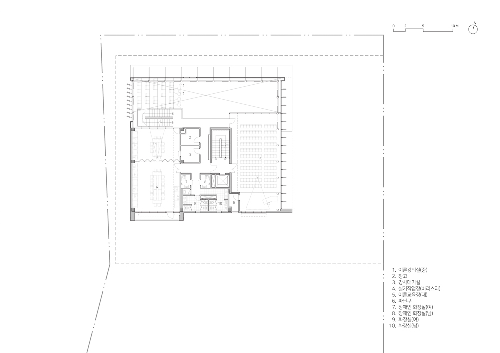
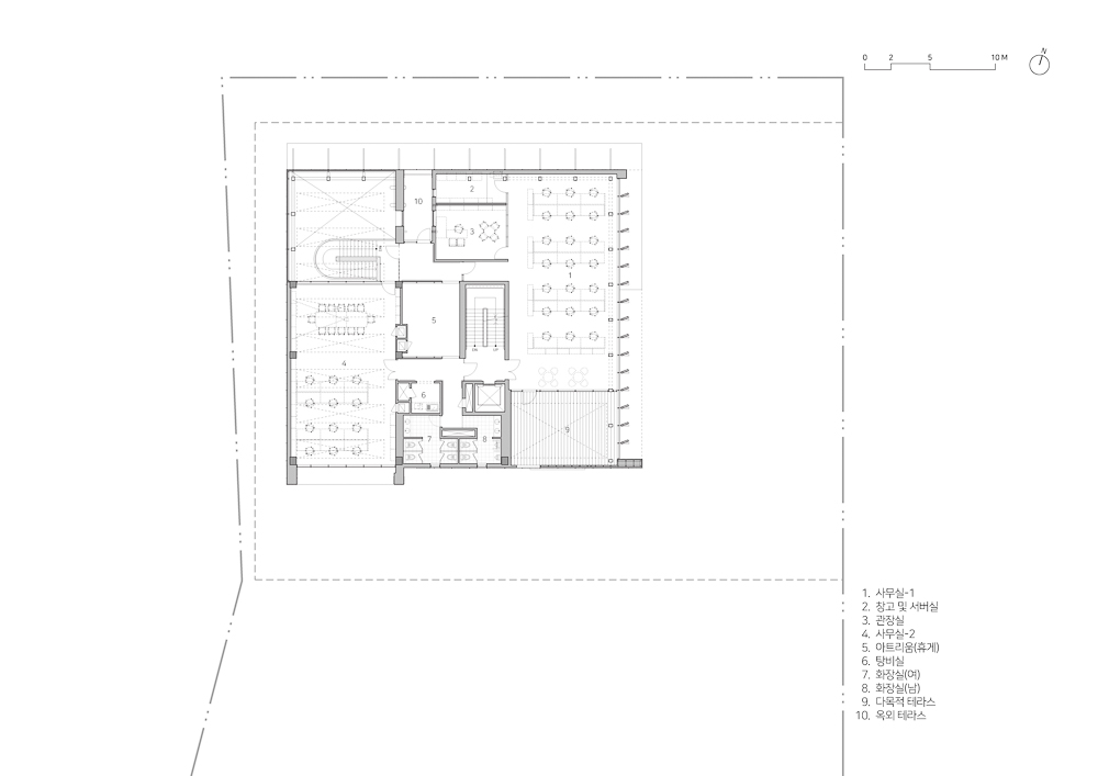
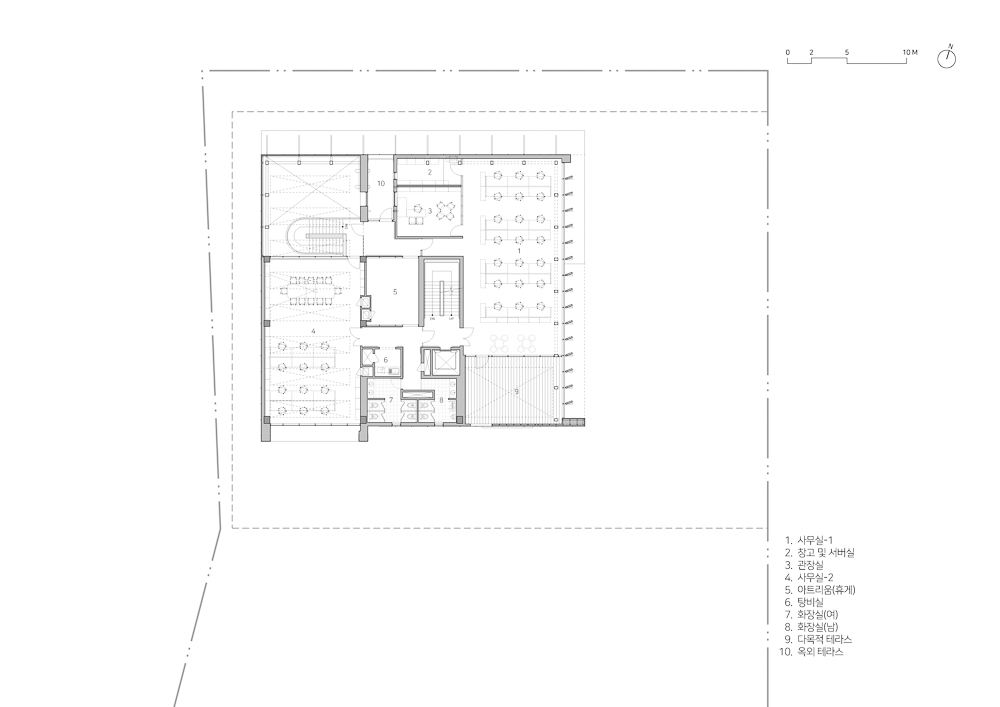
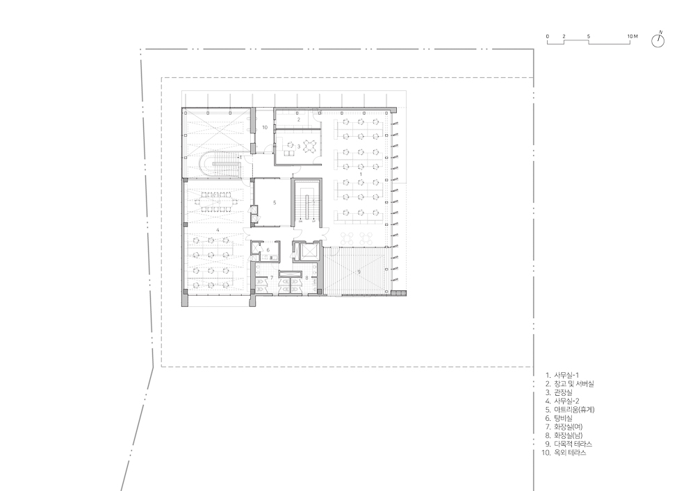
The Hwaseong Coffee Culture Center is a public facility located in a neighborhood park in Bongdam New Town, which is still under construction. It is a facility for the elderly, whose demand is rapidly increasing in the aging modern society. The center provides programs that support the re-employment education, cultural and leisure activities of the elderly through coffee, as well as support the economic activities of the elderly, such as the Nono Cafe, one of Hwaseong City’s representative participatory welfare projects for the elderly. This unique type of small public facility is three-dimensionally combined with an educational space, a space for the elderly, a neighborhood facility, and a public workspace.
A simple red cube: unexpected encounters in everyday life
Unlike large cities, in rural areas where there is little floating population, the premise of the success or failure of public cultural facilities is to publicize the existence of the facilities, and the most important goal of the design is to secure awareness. In a rural park where green is the main color, an unexpected design strategy of intense ‘red cube’ was adopted to induce awareness and interest of local residents. Like the Red Ball Project, a public art project that artist Kurt Perschke started in St. Louis in 2001, we chose pure red as an object that creates new evoking and possibilities for space and place. After the completion of the small new town, in the corner of a neighborhood park, it is an intentional directing imagining the situation of encountering an unexpected simple red box that contains culture, the public, and the lives of the elderly in the daily.
Factory for coffee and culture: Blending of experiences that stimulate the five senses
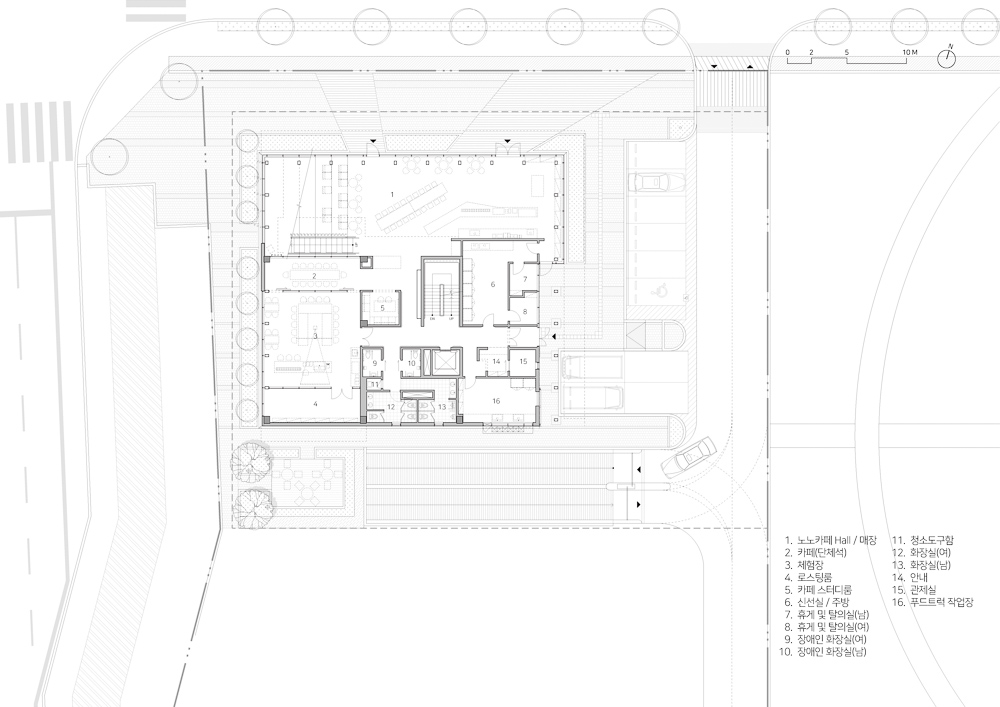
The second strategy was to satisfy the insufficient public construction cost through the construction of a factory at osphere full of raw materials and surfaces and to express the unique spatiality of dynamic production space. Like the blending that creates a new coffee with a variety of flavors and aromas by adding other beans to one coffee bean, the Coffee Cultural Center is a space where coffee meets culture and experiences are added to education. It is also a cultural complex that expands by adding the elderly, welfare, and jobs one after another. The Nono Cafe and Experience Center are configured as a factory-scale central space with a height of 2-3 stories, and in the large-scale space, various programs are offered. We pursued a blending space of experiences that could be connected and mixed in a visually, olfactory, auditory, and tactile sense along with the strong aroma of coffee and the sweetness of desserts.
The 3rd Space: Expanding into nature and community
The entire eastern facade of the coffee complex, located at the northwestern end of the park, opens toward the park, drawing the park into the coffee space. As the third space that Ray Oldenburg said, we pursued a comfortable space where we could rest and recharge with nature. A place with neutral ground, conversation, appreciation of human personality and individuality, easily accessible, Playful mood, refresh atmosphere. The six characteristics of the third space that Oldenburg emphasized are also important space themes in the Coffee Cultural Center. It is hoped that the third space realized in this way will expand into a cultural and spatial community of exchanging meanings where young and older generations, regions and communities meet.

새로운 환기와 가능성의 빨간 상자, 커피복합문화시설
화성시 커피복합문화센터는 아직 조성중인 봉담 신도시 내 근린공원에 자리 잡은 공공시설로서 노령화 되어가는 현대사회에서 그 수요가 빠르게 늘고 있는 노령층을 위한 시설이다. 커피를 매개로 노인의 재취업 교육, 문화 및 여가 활동을 지원하는 동시에 화성시의 대표 참여적 노인복지사업의 하나인 노노(老-NO)카페 등 노년의 경제활동을 돕는 프로그램을 수용하고 있는 커피복합문화센터는 교육공간이자 노유자 공간이며 판매를 하는 근린생활시설공간, 그리고 공공업무공간이 입체적으로 결합된 독특한 유형의 소규모 공공시설이다.
단순한 빨간 상자: 기대하지 않은 일상의 새로운 만남
대도시와 달리 유동인구가 거의 없는 농촌 지역에서 공공문화시설의 성패의 전제는 시설의 존재를 널리 알리는 것이라고 판단하고 인지성의 확보를 디자인의 가장 중요한 목표로 삼았다. 초록이 주조색인 농촌지역 공원 내에서 강렬한 ‘레드 큐브’라는 의외의 디자인 전략을 채택하여 지역주민의 인지와 관심을 유발토록 하였다. 아티스트 커트 퍼스 (Kurt Perschke)가 2001년 세인트 루이스에서 시작한 공공미술프로젝트인 빨간공프로젝트(Red Ball Project)처럼 공간과 장소에 대한 새로운 환기와 가능성을 만들어내는 오브제로서 순수한 빨강을 선택하였다. 소규모 신도시가 완성되고 주민들의 일상 속에서 문화와 공공, 그리고 노인의 삶을 담는, 기대한 적 없는 단순한 빨간 상자를 근린공원 구석에서 마주치는 의외의 상황을 상상한 의도적 연출이다.
커피공장, 문화팩토리: 오감을 자극하는 경험의 블렌딩(Blending)
날 것 느낌 가득한 공장 분위기의 건축을 통해 넉넉하지 않은 공공건축 공사비를 충족하고 다이나믹한 생산의 공간이라는 독특한 장소성 발현을 두 번째 전략으로 삼았다. 하나의 원두에 다른 원두를 더하여 다채로운 맛과 향의 새로운 커피를 탄생시키는 커피의 블렌딩처럼 커피복합문화센터는 커피와 문화가 만나고 교육에 체험이 더해지며, 거기에 노인과 복지, 일자리가 차례차례 덧붙여져 확장되는 복합문화공간이다. 노노(老-NO)카페와 체험장을 2-3개 층 높이를 가진 공장스케일의 중심공간으로 구성하고 그 큰 스케일의 공간 안을 진한 커피향, 디저트의 달콤함과 함께 여러 프로그램이 시각적, 후각적, 청각적, 촉각적으로 연결되고 섞일 수 있는 경험의 블렌딩 공간을 추구하였다.
제3의 공간: 자연과 커뮤니티 속으로 확장되는
공원의 서북쪽 끝에 자리잡은 커피복합문화시설의 동쪽 전체 입면은 공원을 향해 열려 커피공간에 공원을 끌어들인다. 레이 올덴버그(Ray Oldenburg)가 말한 제3의 공간으로서 자연과 더불어 휴식과 재충전을 할 수 있는 편안한 공간을 추구하였다. 중성적이고, 대화가 중심이 되며, 개개인이 존중되고, 누구나 접근할 수 있으며, 즐겁고 편안한 분위기의, 휴식/재충전이 가능한 공간. 올덴버그가 강조한 제 3공간의 6가지 특징이 커피복합문화센터에서도 중요한 공간의 주제이다. 이렇게 구현된 제3의 공간에서 젊은 세대와 기성세대, 지역과 커뮤니티가 만나 문화 공간적 의미교류의 공동체로 확장되어 나가길 기대한다.






















Architect HANGMAN ZO(SNU)
Location Neighborhood Park, Bongdam2 Housing Zone, Hwaseong-si, Gyeonggi-do, Republic of Korea
Program Child and geriatric welfare institution
Site area 32,235.00㎡
Building area 622.570㎡
Gross floor area 2,237.029㎡
Building scope B1, 3F
Height 15.2m
Building to land ratio 1.931%
Floor area ratio 4.463%
Design period 2018. 1 - 11
Construction period 2019. 1 - 2020. 8
Completion 2020. 8
Principal architect (SNU Architecture) Hangman Zo
Project architect (SNU Architecture) Hangman Zo
Design team (TAAL Architects) Jiyoung Seo, Jonghoon Im, Garim Kim
Structural engineer SM Structural Consultant
Mechanical engineer Samoo M.E.P. Consultant
Electrical engineer Samoo Electrical Consultant
Construction (SA Construction Company) Sangguk Lee
Client Hwaseong-si, Geonggi-do
Photographer (Submarine) Jeonghyeon Kim
해당 프로젝트는 건축문화 2021년 12월호(Vol. 487)에 게재되었습니다.
The project was published in the December, 2021 recent projects of the magazine(Vol. 487).
December 2021 : vol. 487
Contents : RECORDS MESSAGES OF SYMBIOSIS, CONNECTION, AND BALANCE WITHOUT WALLS 구획을 벗어나 보여지는 공생, 연결, 균형의 메시지들 : NEWS / COMPETITION / BOOKS : SKETCH VLADIVOSTOK S..
anc.masilwide.com
'Architecture Project > Cultural' 카테고리의 다른 글
| Entrepreneurship & Innovation center in Dongbangtou Village (0) | 2022.03.29 |
|---|---|
| SPORTS HALL IN BORKY (0) | 2022.03.11 |
| HANAM WIRYE LIBRARY (0) | 2022.01.25 |
| BOGORCREATIVE HUB (0) | 2022.01.21 |
| LA MAISON DEL’ÌLE AUX OISEAUX (0) | 2022.01.20 |
마실와이드 | 등록번호 : 서울, 아03630 | 등록일자 : 2015년 03월 11일 | 마실와이드 | 발행ㆍ편집인 : 김명규 | 청소년보호책임자 : 최지희 | 발행소 : 서울시 마포구 월드컵로8길 45-8 1층 | 발행일자 : 매일



