
Designed as generator for creative people in Bogor, this creative hub aims as a collective space of activities that acts as an open platform for exchange, spontaneous, informal exercise & inspiring spaces. This building stands in 1.3 Haland with 200 years old existing building built by Dutch colonial time, leaves an open space that can be utilized as casual and extension activity. This complex extends to larger neighborhood of Taman Hutan Raya Bogor of Presidential Palace of Indonesia, making it very prominent yet carefully thoughtful in design language.
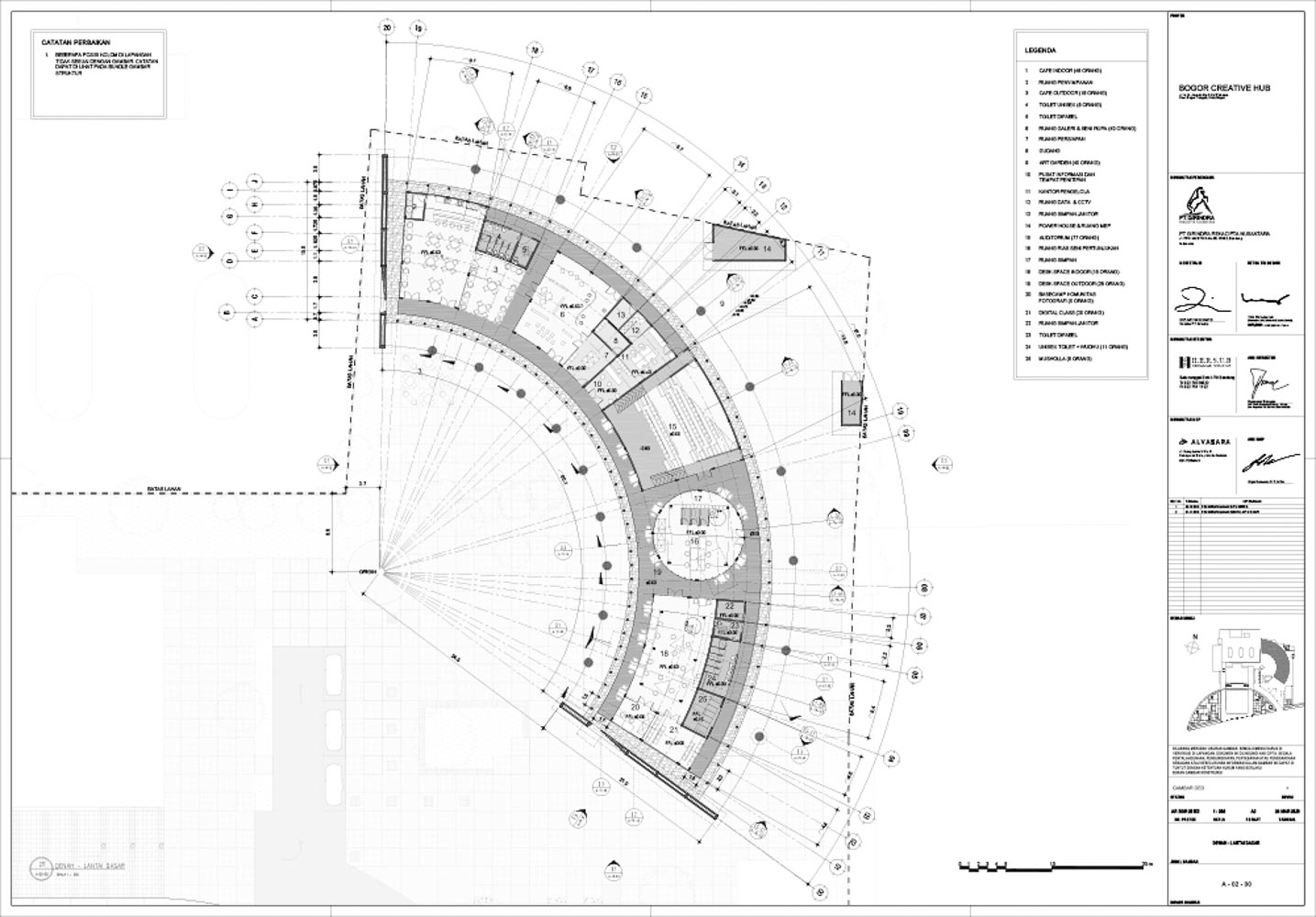
The Creative hub is conceived as a single building, with porous accessibility from all directions, smoothly connects all open space in the complex for open-air activities & extends to the park. The C form is organized by facing existing big trees & old building like it’s covering & filling out the edge of the complex. The programs inside (auditorium- classrooms – Gallery) occupy different geometries under single curvy roof that reflects as a dominant expression of tropical design. All programs are surrounded by open terrace that enlarge the space as communal space and accessibility.
The experience throughout the building takes visitors to repetitive columns, combining terrace within inside-out area to the park. The sensation of covered open space continuous thru the terrace, providing an inclusive environment between education, leisure & outdoor performance. The building themselves leave room within the scheme, such as outdoor plaza to historical building, and to breed creativity through a social, informal space and dedicated programs.
“We try to respect as much as we could in order to harmonize between historical building & massive green forest by designing a simple, quite, non-provocative yet flexible for creative spirit” Gemawang Swaribathoro explains about the approach to the creative hub. The concept is to maintain this building as a blank canvas for creative spirit to filling in and activate it with their color & soul. The park in-between old building itself becomes an outdoor stage; performances can either face the large public plaza or as an extensive room from the program inside. The Grand design is organized the whole complex as a catalyst as public and as open as possible to visitors.

방문자와 지역 주민을 다양한 프로그램으로 이끄는 건축, 보고르 크리에이티브 허브
보고르의 창조적인 사람들을 위한 발전소로 설계된 보고르 크리에이티브 허브는 여러 활동의 교류, 자발적, 비공식적 운동과 영감을 주는 공간을 위한 열린 플랫폼이다. 이 건물은 네덜란드 식민지 시대에 지어진 200년된 옛날 건물이며, 1.3ha 부지 안에 위치한다. 이 단지는 인도네시아 대통령궁의 보고르 그랜드 산림공원으로 확장되어, 매우 눈에 띄는 디자인이지만 세심하게 설계됐다.
크리에이티브 허브는 모든 방향에서 다공적 접근성이 있는 단일 건물이다. 야외 활동을 위한 단지의 모든 열린 공간을 원활하게 연결하고 공원으로 확장시킨다. C모양의 형태는 기존 큰 나무와 오래된 건물이 단지의 가장자리를 덮고 채우는 것과 같이 마주하여 구성된다. 내부의 프로그램(강당-교실-갤러리)은 단일 곡선 지붕 아래 다른 기하학적 구조를 담당한다. 모든 프로그램은 개방된 테라스로 둘러싸여 있어 접근성이 좋은 공용공간으로 확장한다.
건물 전체에 걸친 경험은 방문객들을 내부와 외부의 테라스 및 공원으로 이어지는 반복적인 열주공간으로 이끈다. 테라스를 통해 연속적으로 덮인 열린 공간의 감각은 교육, 레저 및 야외 공연이 가능한 환경을 제공한다. 건물 자체는 역사적 건물에 야외 광장과 같은 공간을 남기고 사교적이고 비공식적인 공간과 전용 프로그램이 있는 공간을 통해 창의성을 기를 수 있도록 계획되었다.
콘셉트는 이 건물을 빈 캔버스로 유지하여 창조적인 정신이 자신의 색과 영혼으로 채우고 이를 활성화하는 것이다. 오래된 건물 사이의 공원자체가 야외 무대가 되며 공연은 큰 공공 광장을 향하거나 프로그램 내부의 넓은 공간에서 행해진다. 보고르 크리에이티브 허브는 대중에게 최대한 개방적으로 다가간다.









Architect LOCAL ARCHITECTURE BUREAU
Location Bogor City, West Java, Indonesia
Program Cultural Center
Site area 13,000㎡
Building area 966㎡
Gross floor area 1,564㎡
Building to land ratio 7.4%
Floor area ratio 12%
Design period 2018. 12 - 2019. 5
Construction period phase 1 2019. 10 - 2020. 1
Construction period phase 2 2020. 8 - 2020. 11
Completion 2020
Principal architect Gemawang Swaribathoro, Tan Tik Lam
Project architect Hafri Alfian
Design team Hafri Alfian, Aldo Feandri, Rifandi Febrianto, Angga Meigandana, Gilang Aji Sagara
Structural engineer H.E.R.S.U.B.
Mechanical engineer ALVASARA
Electrical engineer ALVASARA
Construction PT Luxindo Putra Mandiri, PT Lingkar Persada
Client Dinas Perumahan dan Permukiman Provinsi Jawa Barat
Photographer DKD/ Dedi Dwitomo
해당 프로젝트는 건축문화 2021년 10월호(Vol. 485)에 게재되었습니다.
The project was published in the October, 2021 recent projects of the magazine(Vol. 485).
October 2021 : vol. 485
Contents : RECORDS SEOUL ARCHITECTURE FESTIVAL 2021 성황리에 마친 서울건축문화제 2021 FORESCO, PREPARING FOR THE "CARBON NEUTRAL" THROUGH RECYCLING EXHIBITION 포레스코, 리사이클링 ..
anc.masilwide.com
'Architecture Project > Cultural' 카테고리의 다른 글
| COFFEE CULTURE COMPLEX (0) | 2022.02.24 |
|---|---|
| HANAM WIRYE LIBRARY (0) | 2022.01.25 |
| LA MAISON DEL’ÌLE AUX OISEAUX (0) | 2022.01.20 |
| VISITOR CENTER OF DUNA-IPOLY NATIONAL PARK (0) | 2022.01.19 |
| HIMITSUJANAI KICHI (0) | 2022.01.18 |
마실와이드 | 등록번호 : 서울, 아03630 | 등록일자 : 2015년 03월 11일 | 마실와이드 | 발행ㆍ편집인 : 김명규 | 청소년보호책임자 : 최지희 | 발행소 : 서울시 마포구 월드컵로8길 45-8 1층 | 발행일자 : 매일



