
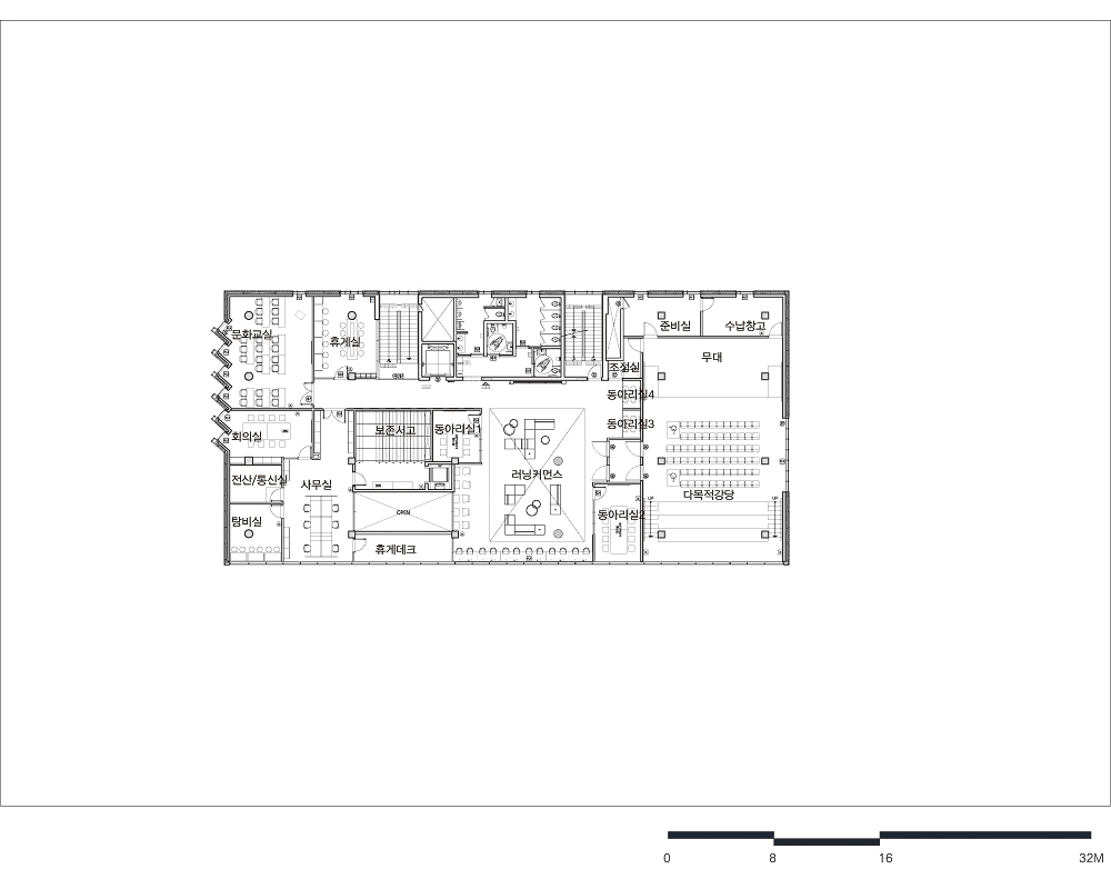
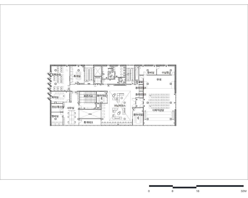
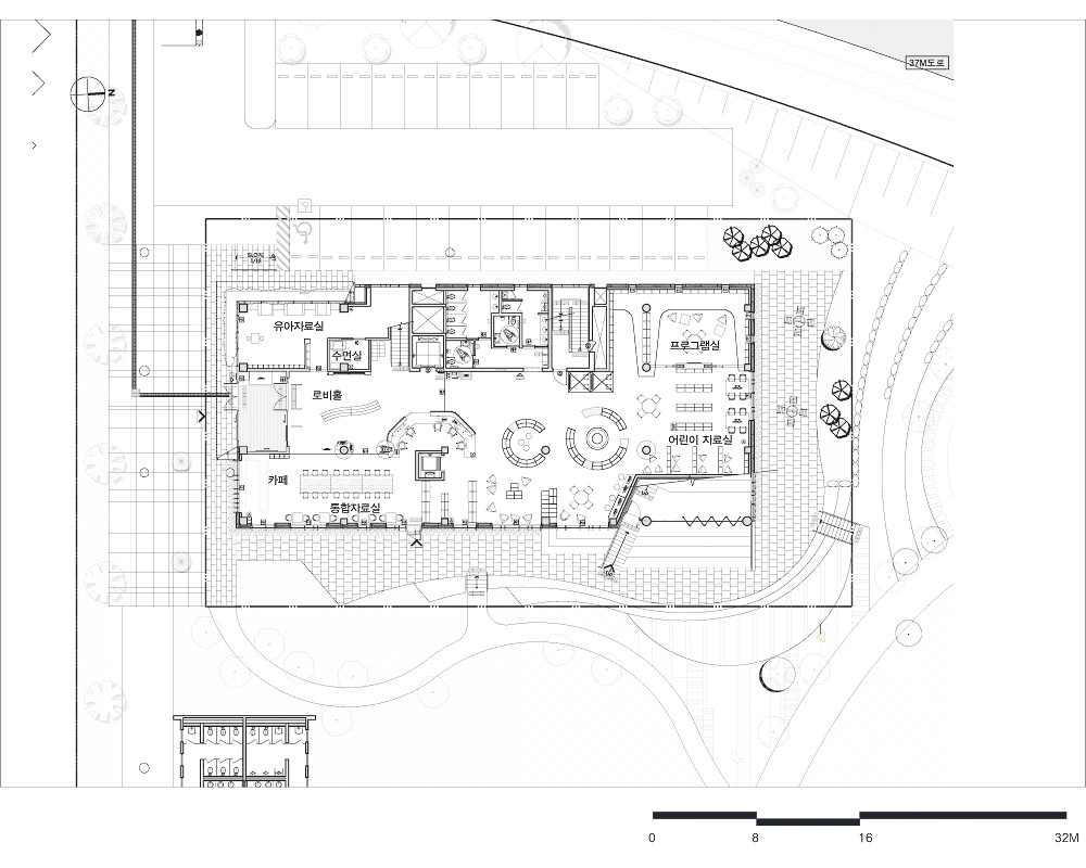
Today’s libraries are not just a limited space such as a reading room where one reads books and gains knowledge, but are a daily space, a comfortable space and a multifaceted place where complex and casual connections and active activities occur. Furthermore, according to a research called ‘Super library’, a library is a space that promotes self-development, accumulation of knowledge, and a space that inspires creativity for individual citizens. From a social point of view, it is a space used by the widest range of age groups and classes, in other words, a space of socialization. Under this background, the new library in Wirye New Town exists as a space of modern resident communication. Within a site that embraces a park, the library becomes a part of the park and leads meetings and exchanges between citizens.
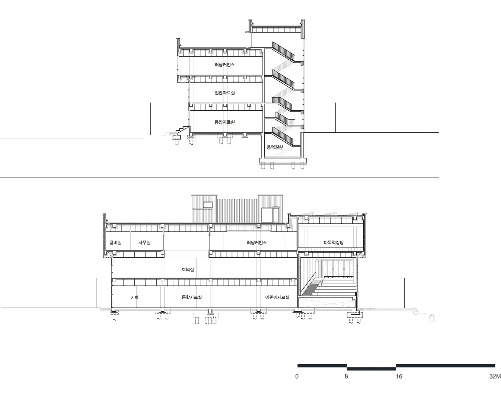
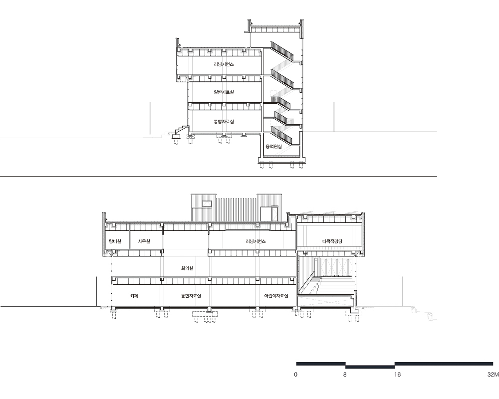
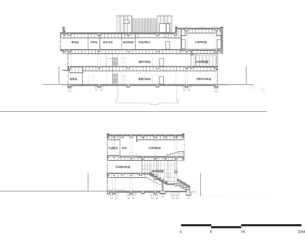
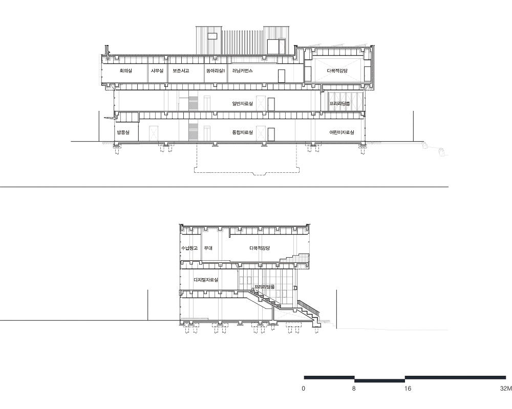
Under the condition that it is a site within a park surrounded by green spaces, Wirye Library exists as a facility in the park, rather than an independent space by interpreting the library area as the entire park under the condition. The park, which leads to the back of the library, becomes a large front yard of the library, and the library and the park serve as a shelter for each other and extend into an everyday and friendly living space. Since the entrance yard is open and connected to the park, it is an active space for relaxation, culture, as well as events. Reading rooms and spaces for cultural activities are located on the second and third floors. The plans that allow free communication between spaces are linked with the abundant external space outside the library to create a richer reading space. The reading room attracts the scenery of the park into the interior, and the open layout allows flexible space utilization. At the same time, the single mass of a simple form overlooking the park at the upper area reveals the unique symbolism of Wirye Library. The vertical elements of the facade are reminiscing of the surrounding trees, and the transparent and simple mass form harmoniously blends with the park and trees in the surrounding. Along with the road leading to the park, the library becomes an open cultural space in the park. In addition, it functions as a ‘living room of the village’ for multiple purposed, where citizens can meet, communicate, and experience together. The Happening Stage, which serves as a place full of casual encounters and events in everyday life, allows various activities to take place. Wirye Library is a cultural center that stages various events as it connects the exterior and the interior, a part of the park used as a resting space and communication space, and a complex cultural space where active communication and exchanges take place.

공원과 공존하는 현대적 도서관의 제안, 하남시 위례도서관
오늘날 도서관은 책을 읽고 지식을 얻는 독서실과 같은 단순하고 한정된 공간을 넘어 일상적이고 편안한 공간이자, 복합적이고 우연한 소통들과 활발한 활동이 일어나는 다중적 장소다. 이와 더불어, ‘수퍼 라이브러리’라는 연구 자료에 따르면 도서관은 시민 개개인에게 자기개발과 지식의 축적, 상상력을 촉진하는 공간이자 사회적으로는 가장 폭넓은 연령대와 계층이 이용하는 공간, 곧 사회화의 공간이라 일컫는다. 위례신도시의 새로운 도서관은 이러한 배경 아래 현대적 주민 소통의 공간으로 존재한다. 공원을 품은 대지 안에 공원의 일부가 되어 시민간의 만남과 교류를 주도하는 곳이다.
위례도서관은 녹지로 둘러싸인 공원 안의 부지라는 조건에서 도서관의 영역을 공원 전체로 해석하여 독립된 공간이 아닌, 공원 속 하나의 시설물로 존재한다. 이렇게 도서관 뒤쪽으로 이어지는 공원은 도서관의 넓은 앞마당이 되며, 도서관과 공원이 서로의 쉼터 역할을 하며 일상적이고 친축한 생활 공간으로 연장되도록 만든다. 1층은 진입 마당은 개방되어 있어 공원과 연계되고 휴식, 문화, 이벤트의 장이 되는 활동적 공간이다. 2, 3층은 열람실과 문화를 위한 활동 공간들이 위치한다. 공간들간의 자유로운 소통이 오갈 수 있는 계획들은 도서관 밖 풍부한 외부공간과 함께 연계되어 더욱 풍부한 독서 공간을 만든다. 열람실은 공원의 풍경을 내부로 끌어들이고, 개방적인 오픈 배치들이 유연한 공간 활용이 가능하다. 이와 함께, 상부는 공원을 바라보는 심플한 형태의 단일한 매스가 위례도서관만의 상징성을 드러낸다. 파사드의 수직적인 요소는 주변 나무들을 떠올리게 만들며 투명하고 심플한 매스 형태가 주변 공원과 나무들과 조화롭게 어우러진다. 공원과 이어지는 길을 따라 도서관은 공원 속 개방적인 문화공간으로 자리하게 된다. 이와 함께, 시민들이 만나고 소통하며, 함께 체험하는, 복합적인 용도의 ‘마을의 거실’로서 기능한다. 일상 생활 안에서 우연한 만남과 사건이 넘치는 소통의 장으로서의 무대(Happening Stage)도 있어 다양한 활동을 이끌어낸다. 위례도서관은 외부와 내부가 연계되며 다양한 이벤트의 무대가 되는 문화센터이자, 쉼터 및 소통공간으로 활용되는 공원의 일부, 활발한 소통과 교류가 이루어지는 복합문화공간이다.
















Architect SUN+partners
Location Hakam-dong, Hanam-si, Gyeonggi-do, Republic of Korea
Program Library
Site area 1,500㎡
Building area 844.87㎡
Gross floor area 2,218.45㎡
Building scope B1, 3F
Building to land ratio 4.23%
Floor area ratio 10.66%
Design period 2018. 12 - 2019. 11
Construction period 2019. 12 - 2021. 1
Completion 2021. 1
Principal architect Yongnmin Lee
Project architect Youngtaek Park
Design team Sunjin Kim, Hyungjin Kim, Ieseol Choi, Soyoung Kim, Jangmi Heo
Structural engineer BAREUN Structural Engineers CO., LTD
Mechanical engineer DAEA M&C CO., LTD
Electrical engineer Korea Electrical Engineering Association CO., LTD
Construction DOSUNG Construction CO., LTD
Client Hanam Public Library
해당 프로젝트는 건축문화 2021년 11월호(Vol. 486)에 게재되었습니다.
The project was published in the November, 2021 recent projects of the magazine(Vol. 486).
November 2021 : vol. 486
Contents : RECORDS OPEN EXPO 2020 DUBAI, AND KOREA PAVILION 세계에 퍼지는 한국의 친환경 메시지, 그리고 “마당" : NEWS / COMPETITION / BOOKS : SKETCH THE REMARKABLE PLACE IN THE NEIGHBO..
anc.masilwide.com
'Architecture Project > Cultural' 카테고리의 다른 글
| SPORTS HALL IN BORKY (0) | 2022.03.11 |
|---|---|
| COFFEE CULTURE COMPLEX (0) | 2022.02.24 |
| BOGORCREATIVE HUB (0) | 2022.01.21 |
| LA MAISON DEL’ÌLE AUX OISEAUX (0) | 2022.01.20 |
| VISITOR CENTER OF DUNA-IPOLY NATIONAL PARK (0) | 2022.01.19 |
마실와이드 | 등록번호 : 서울, 아03630 | 등록일자 : 2015년 03월 11일 | 마실와이드 | 발행ㆍ편집인 : 김명규 | 청소년보호책임자 : 최지희 | 발행소 : 서울시 마포구 월드컵로8길 45-8 1층 | 발행일자 : 매일



