
The site used to be the heat treatment center of Yifeng Machinery Factory, a village-run enterprise. It consists of several buildings with a single-storey structure and steel roof, occupying a gross floor area of about 900m². Some of the workers were still on duty when we investigated the site. It was presumed that the plant was constructed in the late 1990s, but there was no drawing or material to prove that.
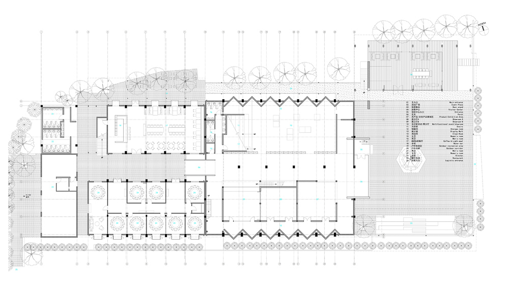
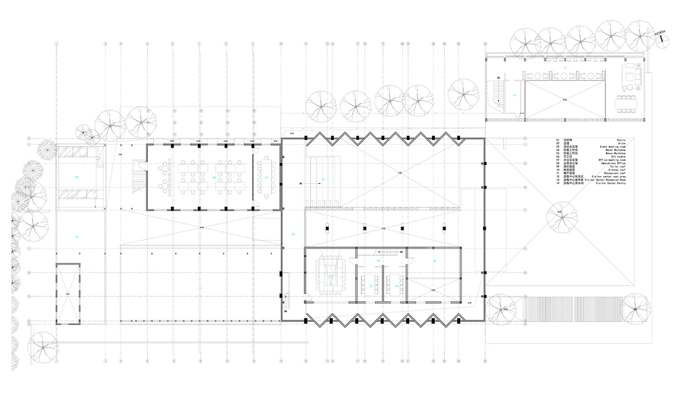
The design task of this project was to turn an old factory into Entrepreneurship & Innovation Center, making it an important destination for gatherings and cultural activities. The project will be a multi-functional complex that integrates the functions of display, cultural creation, leisure, cafe, and office, which is aimed to attract talents to come back home and entrepreneurs and tourists to go to the village, and promote rural revitalization and development.
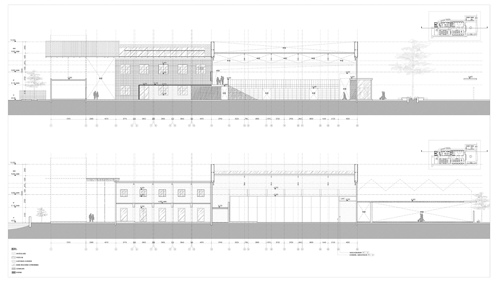
After demolition, it was difficult for the remaining retained buildings to become a whole. Through analysis, we stacked polycarbonate panels on the original walls in an enclosed manner to raise the overall height, so as to balance with the height of back buildings’ roofs. The added public washroom, the original kitchen and the cafe are covered by a continuous pitched tiled roof, together forming a whole. The newly built tourist center and the parking area outside continue the elements of triangular sloped roof, which echoes the existing constructions and creates a dialogue between the old and the new.
The original aging rooftop is replaced by raised polycarbonate panel walls. The two sides are lifted, and a skylight is set at the intersection of walls to bring in daylight. The original roof was demolished, and the glass skylight takes the place of original ventilation roof in the middle, so as to maximize the introduction of natural light. Two folding walls were inserted on both sides of the workshop area to increase the area of display wall for the future exhibition hall.
For this project, we planned to retain the old textures of the existing walls, so as to form a contrast with the new folding display walls. However, under the requirements of several relevant parties, the walls were eventually clad in new textured paint. As most people have be accustomed to exquisite building coatings and decorations, the fixed
aesthetic taste and thinking make them hardly willing to accept the coexistence of the old and new. The intention that we wanted to preserve some old textures of the buildings is to create a contrast between the new and old, and to let the space to inherit past memories and show imperfect beauty.

폐공장에서 지역의 혁신 거점시설로 탈바꿈한 동방터우마을 창업혁신센터
이곳은 마을이 운영하는 기업인 이펑 기계 공장의 열처리 센터였던 곳이다. 단층 구조와 강철 지붕의 여러 건물로 구성되어 있으며, 약 900m2의 연면적을 차지한다. 공장은 1990년대 후반에 건설된 것으로 추정되는데, 이를 증명할 도면이나 자료는 없었다. 이 프로젝트의 설계 과제는 오래된 공장을 창업 혁신센터로 전환하여 모임과 문화 활동을 위한 공간으로 만드는 것이었다. 전시, 문화 창조, 레저, 카페, 오피스 등의 기능을 통합한 복합단지로, 인재와 기업인 및 관광객 유치, 농촌 활성화 및 개발을 도모한다.
철거 후 남아있는 건물을 하나로 만들기는 쉽지 않았다. 연구를 통해 기존 벽에 폴리카보네이트 패널을 밀폐 방식으로 적층하여 전체 높이를 높여 뒷 건물의 지붕 높이와 균형을 이루도록 계획했다. 추가된 공중화장실, 기존 주방 및 카페는 연속적인 타일 경사 지붕으로 덮여 전체를 형성한다. 새로 지어진 관광 센터와 외부 주차장은 삼각형 경사 지붕의 요소를 이어가며 옛것과 새로운 것 사이의 대화를 만들어낸다. 기존의 노후화된 옥상은 폴리카보네이트 패널 벽으로 대체되었다. 양쪽 면을 들어 올리고 벽의 교차점에 채광창을 설치하여 일광을 들인다. 기존 지붕을 철거하고 중앙에 기존의 환기 지붕 대신 유리 채광창을 설치하여 자연광의 유입을 극대화했다. 작업장 양쪽에 2개의 접이식 벽체를 삽입하여 향후 전시장을 위한 전시 벽의 면적을 늘렸다. 이 프로젝트를 위해 기존 벽의 오래된 질감을 유지하여 새로운 접이식 디스플레이 벽과 대조를 형성할 계획이었으나 여러 관련 당사자의 요구 사항에 따라 벽은 결국 새로운 질감의 페인트로 덮이게 되었다. 대부분의 사람이 정교한 건물의 코팅과 장식에 익숙했기 때문에, 고정된 미적 취향과 생각은 옛것과 새것의 공존을 받아들이기 어렵게 만들었다. 디자인의 의도는 건물의 오래된 질감을 일부 보존하여 새것과 옛것의 대비를 만들고, 공간이 과거의 기억을 계승하도록 하여 불완전한 아름다움을 보여주고자 했다.























Architect y.ad studio + Shanghai Times Architecture Design Co., Ltd.
Location Jiaxing, Zhejiang, China
Gross floor area 2,405.50㎡
Building scope 2F
Building to land ratio 32.44%
Design period 2019. 10 - 2020. 3
Construction period 2019. 12 – 2021. 5
Completion 2021. 9
Principal architect Yan Yang, Yan Yu
Project architect Yan Yang, Yan Yu
Design team SungHyun Yoon, Sungha Kim
Structural engineer Huo Zhenzhong
Construction (Landscape Construction & Development Co., Ltd.)Shanghai Jingyu
Photographer Peter Dixie / Lotan Architectural Photography, Yan Yang
해당 프로젝트는 건축문화 2022년 1월호(Vol. 488)에 게재되었습니다.
The project was published in the January, 2022 recent projects of the magazine(Vol. 488).
January 2022 : vol. 488
Contents : RECORDS NEW PROPOSAL FOR THE HOUSING PROBLEM IN SEOUL FOUND IN RURAL AREA 서울 주거 문제의 새로운 대안, 농촌에서 찾다 : NEWS / COMPETITION / BOOKS : SKETCH MY HOUSE ..
anc.masilwide.com
'Architecture Project > Cultural' 카테고리의 다른 글
| Void (0) | 2022.06.02 |
|---|---|
| CHUNCHEON COMMONZ FIELDMULTI-PURPOSE HALL (0) | 2022.04.22 |
| SPORTS HALL IN BORKY (0) | 2022.03.11 |
| COFFEE CULTURE COMPLEX (0) | 2022.02.24 |
| HANAM WIRYE LIBRARY (0) | 2022.01.25 |
마실와이드 | 등록번호 : 서울, 아03630 | 등록일자 : 2015년 03월 11일 | 마실와이드 | 발행ㆍ편집인 : 김명규 | 청소년보호책임자 : 최지희 | 발행소 : 서울시 마포구 월드컵로8길 45-8 1층 | 발행일자 : 매일



