
The Community Centre is located in Conghua District, Guangzhou, Guangdong Province. After the project officially put into use, it will carry the daily leisure activities of nearby residents such as reading, gathering and so on. For this project Shanghai based architecture studio TEAM_BLDG works on both architecture and interior and gets inspired from the local architectural culture. A building deeply bonded with the territory which refers to the form and concept of the traditional local housing typology named Wei Long Wu (Hakka Dragon House).
“Wei Long Wu” (Round Dragon Housing), also named “Long Wu”, is a variation of Hakka architecture, mostly spread around Guangdong Province and is a common form of traditional clan housing. Wei Long Wu uses rammed earth as the outer wall to enclose inner housing which forms multiple concentric semi-circular structures, which have distinct functional zoning. In this project, the design adopts a contemporary composition to break the traditional Hakka architecture's layout. The geometric space is transformed from multiple concentric semicircles into similar triangles. The frames repetition, the plane and the overall scheme emphasizes the depth of field. The resulting configuration creates a visual sensation of layers while maintaining an open space.
Architects attempted to create an architectural form integrating both traditional culture and modern values by employing contemporary theories, structures, materials and therefore the traditional Hakka architecture turning from reclusion to openness.
As Hakka buildings are located in the nature, this double-story building has a close relationship to the surrounding environment: the silhouette of the triangular roof overshadows the ground like a mountain while the metal columns supporting the triangular roof connect with the outdoor trees like a forest. Waterscape around the site smoothens the strict geometries. Large areas of glazing and surrounding green space redefines the relationship between the building and the environment. Elegant roofs, clusters of poles, full height curtain walls: a poem of mountains, trees and water.
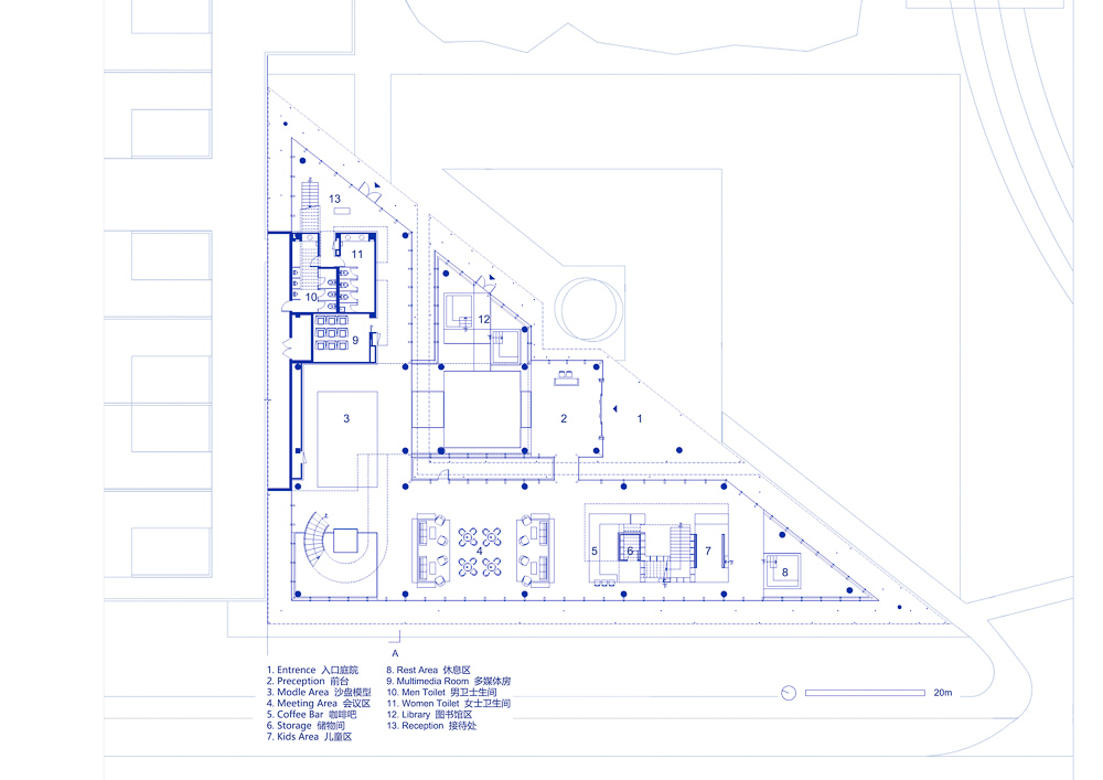
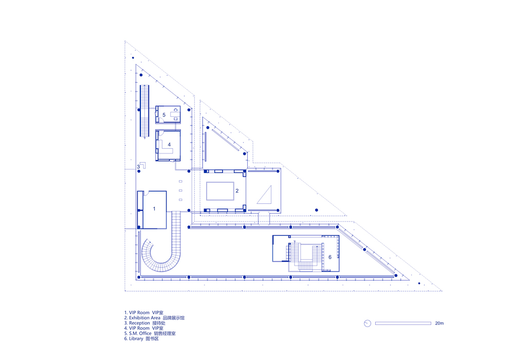
A generous canopy welcomes the visitors into the space, a 10m double height featuring suspended wooden boxes. The curtain wall guarantees the same transparent visual experience at all angles. Spaces with different functions are sophisticatedly arranged to be separated while keeping overall integrity: the sunken resting area, the wooden screen hanging from the ceiling, the meeting spaces in between stairs and bookshelves, the private VIP lounge on the second floor.
The sunken resting area is surrounded by water creating an analogy of the patio in Hakka architecture which collects and drains rainwater. The water not only reflects the variations of light and shadow, it also brings greenery into the space and builds up a harmonic environment integrating human and nature.
The main meeting area creates a stable and open atmosphere by emphasizing depth and transparency of the space. A spiral stair is finely designed in the rigid space. The staircase does not require columns thanks to the precise calculation of the steel structure. Visitors have access to the VIP lounge and the offices via this spiral staircase and enjoy the picturesque natural scenes framed by the windows.
To adapt to the local climate, suspended wooden screen in the double height space on the south side are designed to create shading while also contributing to zoning. This vertical waving screen enriches the static and quiet mood echoing the exterior poles while also forming a volume in relation to the functional areas on the second floor.
By approaching the design from both architectural and interior aspects, the integrity of the building is elegantly achieved. The traditional Hakka values are vividly embodied in a contemporary form. The delicate and delightful spaces continue to create unique experiences for visitors. The whole space experience is a continuum, the traditional Hakka village relives in a contemporary spirit with no boundaries.

이 커뮤니티 센터는 광둥성 광저우시 충화구에 세워진 독서, 모임 등 인근 주민의 일상적인 여가 활동이 진행될 곳이다. 커뮤니티 센터는 광둥성 광저우시 충화구에 세워진 독서, 모임 등 인근 주민의 일상적인 여가 활동이 진행될 곳이다. 이 프로젝트를 위해 상하이에 있는 건축 스튜디오 TEAM_BLDG가 건축 및 인테리어를 전담하여 작업하였으며, 현지 건축 문화에서 영감을 얻었다. 이 건물은 “Wei Long Wu (Hakka Dragon House)”라는 전통적인 지역 주택 유형의 형태와 개념을 참조하며 영토와 깊은 유대감을 가진 건물이다.
“Long Wu”라고도 불리는 “Wei Long Wu(라운드 드래곤 하우스)”는 하카(Hakka) 건축의 변형으로 주로 광둥성 주변에 퍼져 있으며 전통적인 클랜 주택의 일반적인 형태이다. Wei Long Wu는 받힌 흙을 외벽으로 사용하여 기능적인 구역이 뚜렷한 여러 개의 동심 반원형 구조를 형성하는 내부 하우징을 둘러싼다. 이 프로젝트는 전통적인 하카 건축의 레이아웃을 깨기 위해 현대적인 구성을 채택하여 디자인되었다. 기하학적 공간은 여러 동심 반원에서 유사한 삼각형으로 변환된다. 프레임 반복, 평면 및 전체 구성은 피사계 심도를 강조한다. 이러한 배치 형태의 결과물은 열린 공간을 유지하는 동시에 시각적으로는 레이어의 느낌을 만든다.
건축가는 현대 이론, 구조, 재료를 이용하고, 은둔에서 개방으로 전환하는 전통적인 하카 건축을 사용하여 전통 문화와 현대 가치를 모두 통합하는 건축 형식을 만들고자 했다. 하카 건물은 자연 속에 자리잡고 있으므로 이 복층 건물도 주변 환경과 밀접한 관계를 맺고 있다. 삼각형 지붕의 실루엣은 산처럼 땅을 덮고 삼각형 지붕을 지탱하는 금속 기둥은 마치 숲처럼 야외의 나무와 연결된다. 사이트 주변의 수경은 엄격한 기하학적 구조를 부드럽게 한다. 넓게 유약처리된 영역과 주변 녹지 공간은 건물과 환경 간의 관계를 재정의한다. 우아한 지붕, 기둥 무리, 천장까지 닿는 커튼월, 그리고 산, 나무, 물의 시(詩).
10m 두 배 높이에 매달린 나무 상자가 있는 넉넉한 캐노피는 방문객을 환영한다. 커튼월은 모든 각도에서 동일하게 투명한 시각적 경험을 보장한다. 선큰 휴게 공간, 천장에 매달린 목제 스크린, 계단과 책장 사이의 회의 공간, 2층의 프라이빗 VIP 라운지 등 다양한 기능을 가진 공간은 전체적인 통합성을 유지하면서 분리되도록 정교하게 배치되어 있다. 선큰 휴게 공간은 물로 둘러싸여 있어, 우수를 모으고 배수하는 하카 건축의 안뜰에 비유된다. 물은 빛과 그림자의 변화를 반영할 뿐만 아니라 공간에 푸르름을 불어넣고 인간과 자연이 통합된 조화로운 환경을 조성한다.
주된 미팅 공간은 공간의 깊이와 투명도를 강조하여 안정적이고 개방적인 분위기를 연출한다. 딱딱한 공간에 나선형 계단을 정교하게 디자인했다. 철골 구조의 정확한 계산 덕분에 계단에는 기둥이 필요하지 않다. 방문객들은 이 나선형 계단을 통해 VIP 라운지와 사무실에 접근할 수 있고 창문을 통해 그림 같은 자연경관을 즐길 수 있다.
남쪽의 이중 높이 공간에 매달린 목재 스크린은 그늘을 만드는 동시에 구역 설정에 기여하도록 설계되었다. 이 수직적인 물결 형태의 스크린은 2층의 기능적인 영역과 관련하여 매스를 형성하는 동시에 외부 기둥을 모방하여 정적이고 조용한 분위기를 풍요롭게 한다.
건축적 측면과 인테리어 측면 모두에서 디자인에 접근함으로써 건물의 무결성이 우아하게 달성되었고, 전통적인 하카 가치는 현대적인 형태로 생생하게 구현되었다. 섬세하고 유쾌한 공간은 방문객에게 계속해서 독특한 경험을 선사한다. 전체적인 공간 경험은 연속체이며, 경계가 없는 현대 정신을 통해 전통적인 하카 마을을 새롭게 체험할 수 있다. 이 프로젝트를 위해 상하이에 있는 건축 스튜디오 TEAM_BLDG가 건축 및 인테리어를 전담하여 작업하였으며, 현지 건축 문화에서 영감을 얻었다. 이 건물은 “Wei Long Wu (Hakka Dragon House)”라는 전통적인 지역 주택 유형의 형태와 개념을 참조하며 영토와 깊은 유대감을 가진 건물이다.
“Long Wu”라고도 불리는 “Wei Long Wu(라운드 드래곤 하우스)”는 하카(Hakka) 건축의 변형으로 주로 광둥성 주변에 퍼져 있으며 전통적인 클랜 주택의 일반적인 형태이다. Wei Long Wu는 받힌 흙을 외벽으로 사용하여 기능적인 구역이 뚜렷한 여러 개의 동심 반원형 구조를 형성하는 내부 하우징을 둘러싼다. 이 프로젝트는 전통적인 하카 건축의 레이아웃을 깨기 위해 현대적인 구성을 채택하여 디자인되었다. 기하학적 공간은 여러 동심 반원에서 유사한 삼각형으로 변환된다. 프레임 반복, 평면 및 전체 구성은 피사계 심도를 강조한다. 이러한 배치 형태의 결과물은 열린 공간을 유지하는 동시에 시각적으로는 레이어의 느낌을 만든다.
건축가는 현대 이론, 구조, 재료를 이용하고, 은둔에서 개방으로 전환하는 전통적인 하카 건축을 사용하여 전통 문화와 현대 가치를 모두 통합하는 건축 형식을 만들고자 했다. 하카 건물은 자연 속에 자리잡고 있으므로 이 복층 건물도 주변 환경과 밀접한 관계를 맺고 있다. 삼각형 지붕의 실루엣은 산처럼 땅을 덮고 삼각형 지붕을 지탱하는 금속 기둥은 마치 숲처럼 야외의 나무와 연결된다. 사이트 주변의 수경은 엄격한 기하학적 구조를 부드럽게 한다. 넓게 유약처리된 영역과 주변 녹지 공간은 건물과 환경 간의 관계를 재정의한다. 우아한 지붕, 기둥 무리, 천장까지 닿는 커튼월, 그리고 산, 나무, 물의 시(詩).
10m 두 배 높이에 매달린 나무 상자가 있는 넉넉한 캐노피는 방문객을 환영한다. 커튼월은 모든 각도에서 동일하게 투명한 시각적 경험을 보장한다. 선큰 휴게 공간, 천장에 매달린 목제 스크린, 계단과 책장 사이의 회의 공간, 2층의 프라이빗 VIP 라운지 등 다양한 기능을 가진 공간은 전체적인 통합성을 유지하면서 분리되도록 정교하게 배치되어 있다. 선큰 휴게 공간은 물로 둘러싸여 있어, 우수를 모으고 배수하는 하카 건축의 안뜰에 비유된다. 물은 빛과 그림자의 변화를 반영할 뿐만 아니라 공간에 푸르름을 불어넣고 인간과 자연이 통합된 조화로운 환경을 조성한다.
주된 미팅 공간은 공간의 깊이와 투명도를 강조하여 안정적이고 개방적인 분위기를 연출한다. 딱딱한 공간에 나선형 계단을 정교하게 디자인했다. 철골 구조의 정확한 계산 덕분에 계단에는 기둥이 필요하지 않다. 방문객들은 이 나선형 계단을 통해 VIP 라운지와 사무실에 접근할 수 있고 창문을 통해 그림 같은 자연경관을 즐길 수 있다.
남쪽의 이중 높이 공간에 매달린 목재 스크린은 그늘을 만드는 동시에 구역 설정에 기여하도록 설계되었다. 이 수직적인 물결 형태의 스크린은 2층의 기능적인 영역과 관련하여 매스를 형성하는 동시에 외부 기둥을 모방하여 정적이고 조용한 분위기를 풍요롭게 한다.
건축적 측면과 인테리어 측면 모두에서 디자인에 접근함으로써 건물의 무결성이 우아하게 달성되었고, 전통적인 하카 가치는 현대적인 형태로 생생하게 구현되었다. 섬세하고 유쾌한 공간은 방문객에게 계속해서 독특한 경험을 선사한다. 전체적인 공간 경험은 연속체이며, 경계가 없는 현대 정신을 통해 전통적인 하카 마을을 새롭게 체험할 수 있다.

























Architects TEAM_BLDG
Location Conghua, Guangzhou, China
Program Community Center
Built area 1,200㎡
Design period 2018. 1 - 7
Construction period 2018. 8 - 2019. 4
Project architect Xiao Lei, Cao Yi, Pedro Manzano Ruiz, Eleonora Nucci
Structural consultant AND Office / Zhang Zhun
Construction drawing BXHH Architects
Client Guangzhou Poly Group
Photographer Jonathan Leijonhufvud
해당 프로젝트는 건축문화 2022년 3월호(Vol. 490)에 게재되었습니다.
The project was published in the March, 2022 recent projects of the magazine(Vol. 490).
March 2022 : vol. 490
Contents : RECORDS THE BEGINNING OF THE JOURNEY TO THE MUSEUM OF ART IN THE FOREST, 《MMCA GWACHEON PROJECT 2021: ART BUS SHELTER》 숲 속 미술관으로 가는 여정의 시작, 《MMCA 과천프로젝트 2..
anc.masilwide.com
'Architecture Project > Cultural' 카테고리의 다른 글
| THE PLAYSCAPE (0) | 2022.07.07 |
|---|---|
| THE ENERGY PLUG (0) | 2022.06.15 |
| Void (0) | 2022.06.02 |
| CHUNCHEON COMMONZ FIELDMULTI-PURPOSE HALL (0) | 2022.04.22 |
| Entrepreneurship & Innovation center in Dongbangtou Village (0) | 2022.03.29 |
마실와이드 | 등록번호 : 서울, 아03630 | 등록일자 : 2015년 03월 11일 | 마실와이드 | 발행ㆍ편집인 : 김명규 | 청소년보호책임자 : 최지희 | 발행소 : 서울시 마포구 월드컵로8길 45-8 1층 | 발행일자 : 매일



