
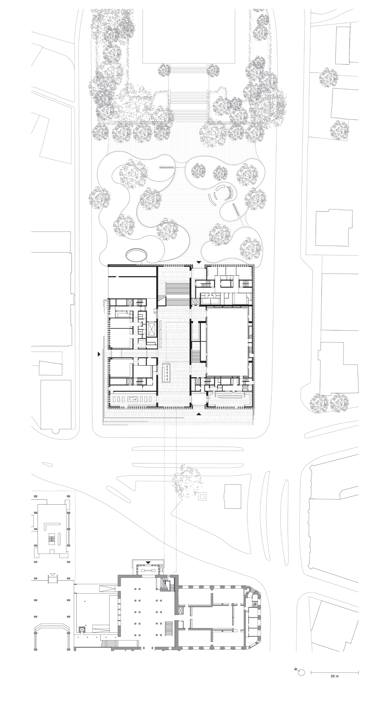
David Chipperfield Architects - Kunsthaus ZürichThe new Kunsthaus Zürich extension, designed by David Chipperfield Architects Berlin, expands the existing Kunsthaus museum, situated between the Grossmünster church and the university. The Kunsthaus Zürich now represents the largest art museum in Switzerland, comprising four buildings from different eras - the Moser building (1910), the Pfister building (1958), the Müller building (1976) and now the Chipperfield extension(2020). The new freestanding building houses the collection of classic modernism, the Bührle collection, temporary exhibitions and art from 1960 onwards. Based on the Central Campus masterplan published in 2007, the museum buildings and the Schauspielhaus theatre located on the east side of the urban square Heimplatz, form a gateway of the arts as an urban entry to the education mile. Here, the large freestanding buildings of Zurich’s universities are lined up like a string of pearls leading northwards.
The urban concept for the extension envisaged the placement of a clear geometric volume on the northern edge of the square. The building form takes inspiration from the old cantonal school, built in 1842 to the north of the site, which defines the urban frame with its architectural clarity. The urban plan defines two new external spaces: the urban square to the south, framed on all four sides by buildings and the new Garden of Art to the north as an open and permeable natural environment. An expansive entrance hall, spanning the full length of the building, creates a link between these two new urban spaces. Due to its low-threshold accessibility it likewise acts as a public link between the institution and the city. A visitor passageway running underneath the square connects the new building with the existing Kunsthaus, creating one institutional entity. The architectural identity is modelled on traditional stone façades, as found in the existing Kunsthaus and many other significant public buildings in Zurich. The extension is therefore embedded in a building culture that is an expression of an enlightened civil society. The new building combines tradition and innovation through slender vertical fins crafted from local Jurassic limestone with sawn surfaces and placed at regular intervals in the façade, embedding the building it its urban and cultural context in a contemporary manner.
The internal organisation is based on the concept of a ‘house of rooms’. This idea finds its expression in the different design of the rooms in terms of size, orientation, materiality and lighting, giving each its own character and creating a diverse sequence of spaces. All public functions such as the café/bar, events hall, museum shop and museum education services are arranged around the central entrance hall at ground floor level, while the two upper floors are reserved exclusively for the display of art. The varyingly dimensioned exhibition spaces are characterised by a calm materiality and an abundance of daylight – side light on the first floor and skylight openings on the second floor – placing the immediate experience of art at the centre of the visitor experience.

데이비드 치퍼필드 아키텍츠 (David Chipperfield Architect)s – 쿤스트하우스 취리히(Kunsthaus Zürich) 데이비드 취퍼필드 아키텍츠 베를린(David Chipperfield Architects Berlin)이 설계한 새로운 쿤스트하우스 취리히 (Kunsthaus Zürich)의 확장프로젝트는 그로스뮌스터(Grossmünster) 교회와 대학 사이에 위치한 기존 쿤스트하우스(Kunsthaus) 박물관을 확장한다. 쿤스트하우스 취리히 (Kunsthaus Zürich)는 현재 스위스에서 가장 큰 미술관으로, 모서(Moser) 건물(1910), 피스터(Pfister) 건물(1958), 뮐러(Müller) 건물(1976), 현재 치퍼필드(Chipperfield) 확장 건물(2020) 등 서로 다른 시대의 4개 건물로 구성되어 있다. 새로운 독립 건물에는 1960년 이후의 고전적인 모더니즘 컬렉션, Bührle 컬렉션, 임시 전시회 및 예술 작품이 소장되어 있다. 2007년에 발표된 센트럴 캠퍼스 마스터플랜을 바탕으로 하임플라츠(Heimplatz) 도심 광장 동쪽에 위치한 박물관 건물과 샤우스필하우스(Schauspielhaus) 극장은 교육 거리로의 도시 진입으로서 예술의 관문을 형성한다. 여기에 취리히 대학의 대형 독립 건물이 북쪽으로 이어지며 마치 진주 줄처럼 늘어서 있다.
확장을 위한 도시 개념은 광장의 북쪽 가장자리에 명확한 기하학적 볼륨의 배치를 계획했다. 건물 형태는 1842년에 부지 북쪽에 지어진 오래된 주립 학교에서 영감을 받아 도시의 틀을 건축학적으로 명확하게 정의한다. 도시 계획은 두 개의 새로운 외부 공간을 정의한다. 남쪽의 도시 광장은 사방이 건물로 둘러싸여 있고 북쪽의 새로운 예술 정원은 개방적이고 투과 가능한 자연 환경이다. 건물 전체에 걸쳐 있는 광대한 현관 홀은 이 두 개의 새로운 도시 공간을 연결한다. 접근성이 낮기 때문에 기관과 도시 사이의 공공 연결 고리 역할도 한다. 광장 아래에 있는 방문객 통로는 새 건물과 기존 쿤스트하우스(Kunsthaus)를 연결하여 하나의 제도적 실체를 만든다. 건축적 정체성은 기존의 쿤스트하우스(Kunsthaus)와 취리히의 다른 많은 중요한 공공 건물에서 볼 수 있는 전통적인 석조 외관을 모델로 한다. 따라서 확장은 계몽된 시민 사회의 표현인 건축 문화에 내재되어 있다. 새 건물은 현지 쥬라기의 석회암으로 제작된 가느다란 수직 지느러미와 톱질 표면을 통해 전통과 혁신을 결합하고 건물의 도시 및 문화적 맥락을 현대적인 방식으로 건물에 내포된다.
내부 조직은 “방들의 집”이라는 개념을 기반으로 한다. 이 아이디어는 크기, 방향, 물성 및 조명 측면에서 방의 다양한 디자인에서 표현되며, 각각 고유한 특성을 부여하고 다양한 공간 시퀀스를 생성한다. 카페/바, 이벤트 홀, 뮤지엄 샵, 박물관 교육 서비스와 같은 모든 공공 기능은 1층 중앙 입구 홀 주변에 배치되며, 지상의 두 개의 층은 예술 전시 전용으로 예약된다. 다양한 크기의 전시 공간은 차분한 물성과 풍부한 일광(1층의 측면 조명과 2층의 채광창 개구부)이 특징이며 방문객 경험의 중심에 즉각적인 예술 경험을 제공한다.























Architects David Chipperfield Architects
Location Zurich, Switzerland
Competition 2008
Project start 2009
Completion 2020
Gross floor area 23,300㎡
Partners David Chipperfield, Christoph Felger (Design lead), Harald Müller
Project architects Hans Krause (Competition, Concept design), Barbara Koller (Schematic design, Design development, Technical design), Jan Parth (Technical design, Site design supervision), Markus Bauer (Deputy project architect, 2009 – 2014), Robert Westphal (Deputy project architect, 2015 – 2020)
Project team Wolfgang Baumeister, Leander Bulst, Beate Dauth, Kristen Finke, Pavel Frank, Anne Hengst, Ludwig Jahn, Frithjof Kahl, Guido Kappius, Jan-Philipp Neuer, Mariska Rohde, Diana Schaffrannek, Eva-Maria Stadelmann, Marc Warrington; Graphics, Visualisation: Konrad Basan, Dalia Liksaite, Maude Orban, Ken Polster, Antonia Schlegel, Simon Wiesmaier, Ute Zscharnt
Competition team Ivan Dimitrov, Kristen Finke, Annette Flohrschütz, Pavel Frank, Gesche Gerber, Peter von Matuschka, Sebastian von Oppen, Mariska Rohde, Franziska Rusch, Lilli Scherner, Lani Tran Duc, Marc Warrington; Graphics, Visualisation: Dalia Liksaite, Antonia Schlegel, Ute Zscharnt
Executive architect b + p baurealisation ag(Zurich), David Michel, Christian Gruober
Overall management Niels Hochuli, Dreicon AG(Zurich)
Structural engineer IGB Ingenieurgruppe Bauen, Karlsruhe dsp - Ingenieure & Planer AG, Greifensee Ingenieurgemeinschaft Kunsthauserweiterung(Zurich)
Services engineer Polke, Ziege, von Moos AG(Zurich) / Hefti. Hess. Martignoni. Holding AG(Aarau)
Building physics Kopitsis Bauphysik AG(Wohlen)
Fire consultant Gruner AG(Basel), ContiSwiss(Zurich)
Façade consultant Emmer Pfenninger Partner AG(Munchenstein)
Lighting consultant matí AG Lichtgestaltung, Adliswil(Artificial light), Institut für Tageslichttechnik, Stuttgart(Daylight)
Signage L2M3 Kommunikationsdesign GmbH(Stuttgart)
Landscape architect Wirtz International nv(Schoten), KOLB Landschaftsarchitektur GmbH(Zurich)
Client Einfache Gesellschaft Kunsthaus Erweiterung – EGKE
Photographer Noshe
'Architecture Project > Cultural' 카테고리의 다른 글
| THE GREEN ARCH - BELGIAN PAVILIONat EXPO 2020 DUBAI (0) | 2022.08.09 |
|---|---|
| GERMAN PAVILIONat EXPO 2020 DUBAI (0) | 2022.08.08 |
| THE PLAYSCAPE (0) | 2022.07.07 |
| THE ENERGY PLUG (0) | 2022.06.15 |
| THE HAKKA TRIANGLE HOUSE (0) | 2022.06.03 |
마실와이드 | 등록번호 : 서울, 아03630 | 등록일자 : 2015년 03월 11일 | 마실와이드 | 발행ㆍ편집인 : 김명규 | 청소년보호책임자 : 최지희 | 발행소 : 서울시 마포구 월드컵로8길 45-8 1층 | 발행일자 : 매일



